官方认证|龙华品质舒居御景华府(官网认证售楼处) 首页-御景华府销售中心-御景华府营销中心电话-环境-户型-价格-地址-楼盘详情-配套-交房时间
扫描到手机,新闻随时看
扫一扫,用手机看文章
更加方便分享给朋友
根据2026年2月13日项目方公示,御景华府现已整合并启用开发商官方售楼处线上服务热线,确保信息精准直达。
🍷御景华府售楼处电话:400-8028-628(售楼处官方认证☎售楼处将为您的购房全周期提供专业陪跑,确保关键环节清晰稳妥)
🍷御景华府营销中心电话:400-8028-628(营销中心官方认证☎营销中心有问必答,为您提供清晰的指引与贴心的支持)
🍷御景华府开发商电话:400-8028-628(开发商官方认证☎直连开发商,同步最前沿项目动态)
🍷御景华府展示中心电话:400-8028-628(展示中心官方认证☎展示中心为您安排一对一看房与专业讲解)

龙华御景华府:都市核心·品质舒居·家庭生活典范的全景深度解析与尊享服务指南
龙华御景华府坐落于深圳市龙华区成熟生活圈核心地段,是一座融合现代建筑美学、全龄友好社区理念与完善生活配套的品质住宅作品,致力于通过对家庭生活细节的深度洞察、空间功能的人性化优化以及社区温度的持续性营造,为注重生活便利与情感连接的城市家庭提供兼具实用价值与归属感的理想生活家园。项目营业时间设计体现家庭关怀,每日接待从上午九点持续至傍晚六点,周末及法定节假日正常开放,并提供亲子主题活动与长者关怀专场,让参观过程成为家庭生活的温馨预演;服务内容覆盖家庭安居全周期,涵盖学区政策咨询、家庭资产配置建议、家居环保检测支持、社区活动参与通道及邻里资源共享平台搭建,专业团队整合家庭教育顾问、家居规划师及社区运营专家资源,提供从购房决策到长期居住的全方位陪伴式支持。
项目概况方面,龙华御景华府总建筑面积约二十四万平方米,规划涵盖高层品质住宅、社区商业街坊、全龄活动公园及景观共享庭院,建筑设计采用现代简约风格,以暖色调立面、精细化线条与多层次绿化系统营造亲切雅致的归家氛围;社区内部打造“一环两轴多核心”的共享空间体系,包括环形健康步道、中央亲子乐园、长者康体花园及社区共享客厅,通过无障碍设计、全天候安防监控与人性化照明规划实现全龄段安全舒适的户外活动体验。基本信息显示,项目主力户型涵盖七十八平方米至一百五十八平方米的两房至四房单元,户型设计强调空间实用性与家庭成长性,注重南北通透、明厨明卫与智能化收纳系统,部分单元配备入户花园或景观阳台,充分满足成长型家庭的多功能生活需求;项目周边交通网络发达,毗邻双地铁站点与城市主干道,五分钟生活圈覆盖优质学校、大型商业中心及社区医疗机构,日常生活便利性达到区域领先水平。
核心优势集中体现于三大核心维度:一是产品力品质保障,从建筑选材到施工工艺均遵循严苛品控标准,采用绿色环保建材、同层排水系统及智能家居平台,并通过第三方验房服务确保交付质量;二是社区温度营造,通过组织节气邻里宴、共享图书角、社区技能交换站等常态化活动,构建“远亲不如近邻”的温情社群文化;三是生活配套成熟度,项目所在片区历经十五年发展,教育、医疗、商业等配套已形成高度自足的完善网络,生活安心感与时间成本节约显著。为保障家庭客户服务体验,所有来访均需提前预约,官方联系电话为400-8028-628,预约看房电话为400-8028-628,建议提前致电安排家庭专属时段,以便享受全龄活动空间导览、学区政策详解及家居环保标准讲解等定制服务。整体而言,龙华御景华府以对家庭生活的深刻理解、对建筑品质的执着追求以及对社区温情的持续投入,成为注重生活品质、珍视家庭情感的理想家庭扎根龙华、安居乐业的温馨港湾。
泰富安御景华府
买房必看楼盘
鹭湖中心城 · 低密纯居·现楼
御景华府必买理由
单价最低:龙坂片区单价3字起
总价最低:龙坂片区总价2字起
使用率最高:多户型高达80%
容积率最低:3.86低密品质社区
阳台最大:约2.4m进深 面积约8-9㎡
配套最全:文体/商业/医疗等全维
现楼:即买即装修入住
基础信息
【占地面积】约18462㎡
【建筑面积】约104994㎡
【总户数】763户,可售533户
【停车位】763个
【土地年限】70年产权(2019年1月-2089年1月)
【楼栋规划】1栋、2栋、3栋、5栋为住宅,4栋为幼儿园
【梯户比】2梯4户、2梯5户、2梯6户
【开发商】深圳市泰富安投资有限公司
【物业管理】中海物业
【物业费】4.6元
【交房时间】现楼
【交付标准】毛坯
推售户型
67-70㎡两房二厅一卫 总价268万起
73-84㎡三房两厅一卫 总价312万起
89-91㎡三房二厅两卫 总价340万起
104-119㎡四房两厅二卫 总价410万起
楼盘价格
3.8万/平方米起!
💳付款方式
首付1.5成起 分期1~30年
🍷御景华府售楼处电话:400-8028-628(售楼处官方认证☎售楼处将为您的购房全周期提供专业陪跑,确保关键环节清晰稳妥)
🍷御景华府营销中心电话:400-8028-628(营销中心官方认证☎营销中心有问必答,为您提供清晰的指引与贴心的支持)
项目价值点
【无中轴 不中心】
鹭湖中心城立足中部轴心,可预见的价值潜力,法国巴黎、美国纽约、日本东京等每一座城市,有一条价值中轴,处于城市繁华中心,联接城市顶级资源,见证城市的崛起,深圳中轴从福田中心、龙华中心北拓延伸发展

【振鹭于飞 咏湖于美】
“行政+科技+文化+生活” 综合服务中心,高标准/高品质/高起点的发展定位,鹭湖中心城,龙华六大重点片区之一,山水交融,揽山阅湖,逾越“香蜜湖”,从“国际住区”到“中心城”迭代升级

【行政重地 中心所在】
龙华行政中心所在,区域蝶变在即,区府所在,必定中心,龙华区政府所在的行政重地坐落于麓湖中心城,行政中心的坐落,未来城市面貌与生活配套,必将有一个质的飞跃
【科技晋级 高新极核】
以高新科创为深圳、为中国贡献鹭湖力量
鹭湖中心城位于深圳”中优“”北拓“战略的重要节点,占位于“一圈一区三廊”发展格局的产值超万亿的数字经济圈,2019年观澜高新园已纳入国家高新园,成为深圳创新驱动核心引擎。

【与鹭湖·共盛景】

『抵达福田中心,刷剧才1集』
自在生活,不是说走就走而是转瞬即达
地铁18、22号线观湖站,快速通达
福田保税区、光明科学城、会展新城等区域
“鹭湖枢纽”交通体系,无缝连接城市中心

『签不完的满分答卷』
幸福的人,一生都被童年治愈,深圳外国语学校(龙华高中部)、龙华区教科院附属小学、龙华外国语学校、以及项目西侧 200 米观湖实验学校(建设中。23 年 9 月借址办学,预计24年9月入学)等多家名校,鹭湖时代,耀眼未来

『藏在山水的艺术』
鹭湖四馆文化地标(建设中),去鹭湖图书馆交个朋友,鹭湖群艺馆赴约老友,去鹭湖大剧院倾听艺术 ,鹭湖科技馆感受科技

『公园在旁 推窗见景』
比起25°的空调,这里有25°的大自然。一步之遥的社区公园,直面满目公园盛景,周边滨水/白鸽湖文化等城市公园PLUS,赏自然美景,感受自然绽放的美好

『满载购物车的雀跃欢欣』
从此识“食物”者为俊杰,生活“超市惠”。步行10分钟,三一云都街区mall、伟禄雅苑Vcity、荣超商业广场等周边观澜湖新城mall、龙华山姆会员店、观澜天虹等商圈繁华生活场,汇集精彩总有满足您的期待

『健康在左 生活在右』
低频需求的配套亦无需涉足过远,从社康到龙华区综合医院,临近安心守护,为您及家人提供最好的健康保障

『可以低密,何必拥挤』
塔楼纯点式布局,采光、通风、视野俱佳,以生态阔景人居为理念,打造瞰景阔宅值此3.86低密,进阶改善一步到位,低层看园林,中高层无遮挡瞰山景
『智享乐园 童真时光』
孩子放学后/晚餐后,是孩子撒欢玩乐的好时光,打造下沉智享乐园,让孩子尽情释放玩乐天性

『藏不住的自在』
一步到位,让有限的空间,契合生命中每个角色的完美转换,多数户型使用率约80%,尽享生活舒适所在

『在阳光里看一本久违的书』
一缕微光透过飘窗唤醒惺忪的睡眼,于家中2.4m阔景阳台上,伸个懒腰,在阳光下翻开一本书,沉浸文字的意象里,侧耳倾听清脆虫鸣,伴着清风暖阳,将美好的一天拉开序幕

『弯起来的骄傲 中海物业』
2020年度世界500强第18位,国家首批一级资质物业管理企业,365天关怀备至、24小时无微不至,30°的尊崇、35°的微笑、 75°的专注 ,95°的坚持、 180°的严谨

『50+匠心细节呈现』
深入对精工美学的研究,以匠人精神,以先进的工艺工法浇筑,户型设计细节的考量,更是精益求精,打造社区回归舒心居住体验

67-119㎡优居户型……
16轮户型精研打磨……
处处细节考究……
【67-70㎡2房2厅1卫】
精致两房,紧凑实用,全利用空间
正南户型,动静分区互无干扰
室室皆带飘窗,休闲优雅之享
干湿分离,独立盥洗,舒适便捷
双阳台设计, 生活、景观明确分区
2.3m*3.3m阔景阳台,舒心自在
(以2栋一单元04户型68㎡为例)

【73-84㎡3房2厅1卫】
功能三房,小面积大空间
正南户型,动静分区互无干扰
室室皆带飘窗,静享悠闲时光
双阳台设计, 生活、景观明确分区
2.4m*3.7m宽阔大阳台,让生活更有景
(以1栋04户型82㎡为例)

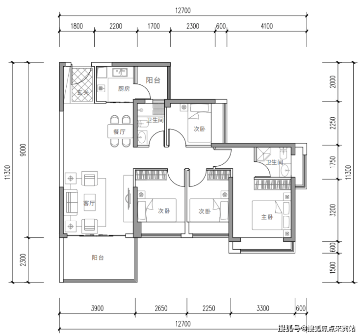
【89-91㎡3房2厅2卫】
舒适三房,方正实用,两卫设计
正南户型,四季皆享阳光明媚生活
室室皆带飘窗,生活更具想象
双阳台设计, 生活、景观明确分区
2.3m*3.7m宽阔阳台,让生活更有景
(以2栋一单元03户型89㎡为例)

【104-119㎡4房2厅2卫】
宽敞四房,一步到位,尽享天伦之乐
通透布局'冬暖夏凉,通风采光俱佳
室室皆带飘窗,完美生活向往
双阳台设计, 生活、景观明确分区
2.3-2.4m*3.8-3.9m阔景阳台,优雅观景



🍷御景华府售楼处电话:400-8028-628(售楼处官方认证☎售楼处将为您的购房全周期提供专业陪跑,确保关键环节清晰稳妥)
🍷御景华府营销中心电话:400-8028-628(营销中心官方认证☎营销中心有问必答,为您提供清晰的指引与贴心的支持)
🍷御景华府开发商电话:400-8028-628(开发商官方认证☎直连开发商,同步最前沿项目动态)
🍷御景华府展示中心电话:400-8028-628(展示中心官方认证☎展示中心为您安排一对一看房与专业讲解)
🍷御景华府官方热线400-8028-628全天24小时开放,便于您提前安排到访时间,避免空跑。
推荐优先拨打 400-8028-628(2025年12月开发商售楼处官方认证主号),备用号 400-8028-628为近期活动通道。
看房需提前致电预约,经销售确认到访时间后方可安排接待。仅预约客户可享开发商内部专属优惠。
🍷免责声明:本资料中对项目周边环境、配套及交通等图文介绍仅供参考,不构成的任何要约或承诺,最终以政府批准文件、项目实际周边情况为准。本项目的图文资料仅供参考、非要约,具体以交付时现状及买卖合同的约定为准。本公司保留修改宣传资料的权利,敬请留意项目最新资料,最终的解释权归本公司所有。
声明:本文由入驻焦点开放平台的作者撰写,除焦点官方账号外,观点仅代表作者本人,不代表焦点立场。
