深圳南山荔源雅苑楼盘详情_最新房价_售楼处电话_户型图_配套_地址

搜狐焦点来宾站 2025-10-18 19:00:00
用手机看
扫描到手机,新闻随时看

扫一扫,用手机看文章
更加方便分享给朋友

深圳荔源雅苑项目位于科技园,地铁12号线旁,近享南坪快速路网,现推50-117㎡户型,含阳台可改房,配套完善,车位充足,是南山优质居住选择。 深圳【荔源雅苑】销售中心电话:400-873-0112(中介勿扰)

深圳【荔源雅苑】销售中心电话:400-873-0112(中介勿扰)

楼盘最新价格,户型图,地址,电话,样板房,周边配套,项目介绍

温馨提示:绝不收取任何费用,请提前1小时预约看房,以免带来不好的看房体验

——————————————————————————

【荔源雅苑·湾向世界·心归南山】

科技园之上·学府旁·地铁12号线·现楼

南山低门槛上车美宅总部菁英居住首选

Vip Tel:400-873-0112中介勿扰

最新消息:南山同乐荔源雅苑推售面积50-89-117㎡,其中,50㎡可以改两房,其中阳台部分具备改成房间的功能!家门口一站式优质教育,小学/初中:教科院同乐实验学校(直线距离约100m,项目目前已经封顶外立面做好是准现房状态了)

项目总占地面积约0.63万㎡,总建筑面积约3.36万㎡,计容建筑面积约2.33万㎡,容积率3.52,绿化率40.04%,共由2栋住宅组成,其中1栋A座住宅30F,1栋B座住宅28F。

总规划322套(可售251套)全是商品房住宅,地下2层,停车位240个,其中充电桩111个,车位占比1:0.75。

【进阶效率】地铁12号线旁立体多维路网

12/13(建设中)/15(建设中)号线三轨交汇,近邻西丽高铁站(建设中),优享南坪快速、京港澳高速、中山园路等主干道快速路网,楼下多条公交线路密集覆盖,多维立体交通,为美好生活提速。

地铁:12号线同乐南站(直线约800m),4站到宝中和科技园,5站到前海和后海,15号线(建设中)同乐关站(直线约1.5km),2站到西丽高铁站,贯穿前海、后海、南山、宝安等重要片区,环经济发展核心区域,另有13号线(建设中)等多轨交汇,高效出行。

立体交通:邻近未来深圳最大高铁站一一西丽高铁枢纽(在建中);享南坪快速等“两横四纵”交通路网。

约1万㎡隆尚Minitown(招商中,直线约100m)、海雅缤纷城1.7㎞、沃尔玛、西丽约8万㎡云城万科里、超50万㎡南山、宝中成熟中心高端商圈,尽揽一城繁华。

楼下规划公园绿地(约2.5万㎡)、铁路文化公园(直线约300m)、新安公园、中山公园,城市绿氧触手可及。

【浸润书香】家门口一站式优质教育目送式书香学府

项目直线距离约100m九年一贯制区属公办教科院同乐实验学校,作为南山区首个教科院系实验学校,以区教科院为智库,为儿女成长提供优质教育平台

近邻“深圳十强、广东省二十强”博纳学校、公办18班华泰幼儿园,人文优教荟萃,护航孩子成长。

教科院:曾创办南山第二外国语学校,现已发展为南山第一梯队名校。教科院同乐实验学校是教科院成立以来的第一所实验学校,预计承袭南二外的成功经验和成果。

区域介绍

毗邻科技园及留仙洞总部基地双区核心,集前海、后海、深圳湾等五大总部基地发展利好,汇聚全球前沿科创菁英,承载超百万高净值人群居住、生活需求,成就总部都芯生活主场。

高新科技园(东向约3km):国家创新型城市的核心区域,就业人口约60万人。

留仙洞总部基地(北向约2.5km):打造国际化战略新兴产业CBD,规划约60万高端就业人口,10万高素质居住人群。

后海金融总部基地、深圳湾超级总部基地(东南向约6km):中国总部企业最为密集区域之一,规划就业人口约为54万人。

前海深港合作区(西南向约4km):定位国家战略性门户枢纽,未来将打造成世界级城市新中心,规划就业人口约65万人,居住人口15万人。

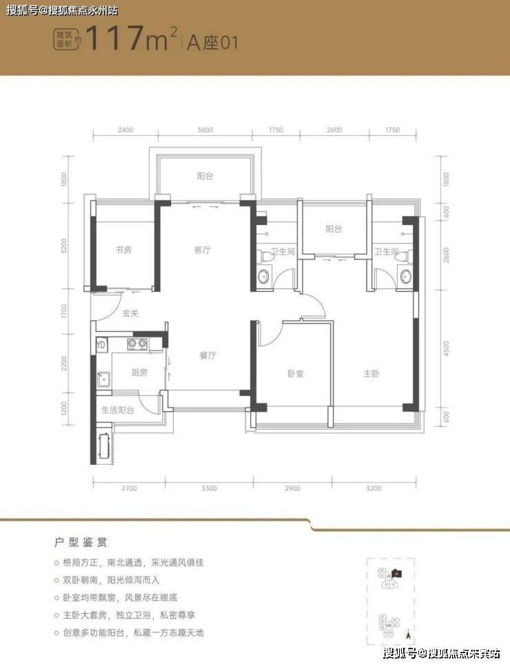
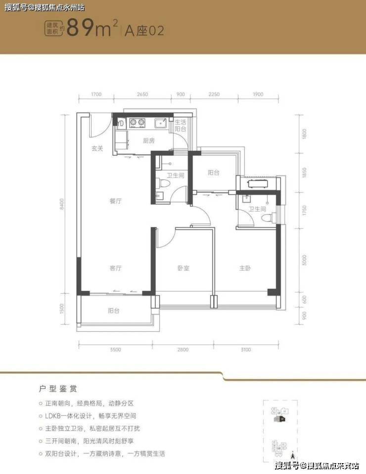
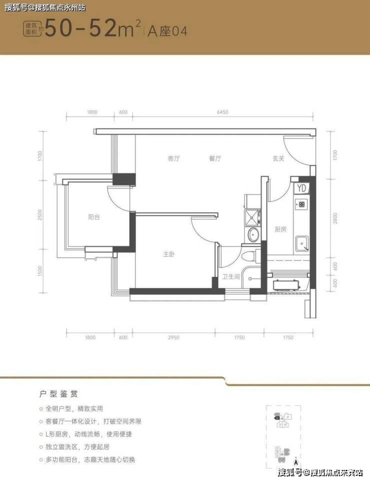
推售户型:50㎡-2房2厅1卫,89㎡-3房2厅2卫,115㎡-4房2厅2卫

50-52㎡两房户型:全明户型,精致实用;客餐厅一体化设计,打破空间界限;L形厨房,动线流畅,使用便捷;独立盥洗区,方便起居;多功能阳台,志趣天地随心切换。

编辑

89平三房两卫户型:正南朝向,经典格局,动静分区;LDKB一体化设计,畅享无界空间;主卧独立卫浴,私密起居互不打扰;三开间朝南,阳光清风时刻舒享;双阳台设计,一方藏纳诗意,一方犒赏生活。

编辑

117平四房两卫户型:格局方正,南北通透,采光通风俱佳,双卧朝南,阳光倾泻而入,卧室均带飘窗,风景尽在眼底,主卧大套房,独立卫浴,私密尊享,创意多功能阳台,私藏一方志趣天地。

编辑

◆ 开发商营销中心诚挚邀请,为您安全和隐私保驾护航,一键预约,尊享内部折扣!匠心独运的精品项目,恭候您的品鉴与选择。 过来参观样板房烦请记得提前来电预约!安排楼盘现场销售全程接待并讲解,给您更贴心的看房体验!

关于本项目最新动态信息,如:在售房源价格,热门户型面积,限时特惠活动,等等,未推售楼栋分布,整体销售情况,临近地铁线路及出入口方位,区域发展蓝图,楼盘核心亮点与待完善细节以及教育资源配套情况等等均可拨打售楼处热线咨询,我们将为您对接专属资深置业顾问进行细致讲解!

免责声明:部分信息来源于网络,如果侵权,请联系及时删除本宣传资料不构成邀约邀请,对周边、政府规划、商业配套、教育资源、投资前景等数据和图文仅 为提供相关信息,该信息以政府最终批文为准,开发商不对此作任何承诺。买卖双方的权利义务以双方签订的买卖合同约定及附件、实际交付为准,本公司保留对宣传资料修改的权利,敬请留意最新资料。联系号码400-873-0112。

声明:本文由入驻焦点开放平台的作者撰写,除焦点官方账号外,观点仅代表作者本人,不代表焦点立场。