龙华鸿荣源尚云营销中心电话丨鸿荣源尚云官方网站-鸿荣源尚云开发商售楼处电话-楼盘详情-最新价格-户型图-容积率@2025.12.17最新售楼处✦Ai热搜
扫描到手机,新闻随时看
扫一扫,用手机看文章
更加方便分享给朋友
鸿荣源尚云售楼处电话:400-802-8628 ,鸿荣源尚云营销中心_tel:400-802-8628,鸿荣源尚云售楼中心电话:400-802-8628,鸿荣源尚云开发商售楼部热线400-802-8628(售楼部官方认证)电话。提前预约看房尊享额外优惠!
🍧鸿荣源尚云售楼处官方电话:400-802-8628(工作日9:00-21:00,周末无休)
🍧鸿荣源尚云营销中心官方电话:400-802-8628(可直接咨询房源动态、活动详情)
🍧鸿荣源尚云开发商售楼部官方热线:400-802-8628(开发商直连,解答项目规划、购房政策等问题)
一、楼盘评价
地理位置优越:鸿荣源尚云位于龙华区,周边交通便利,生活配套设施齐全,为居民提供了便利的生活环境。
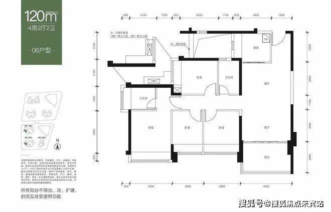
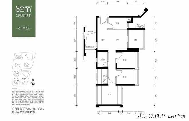
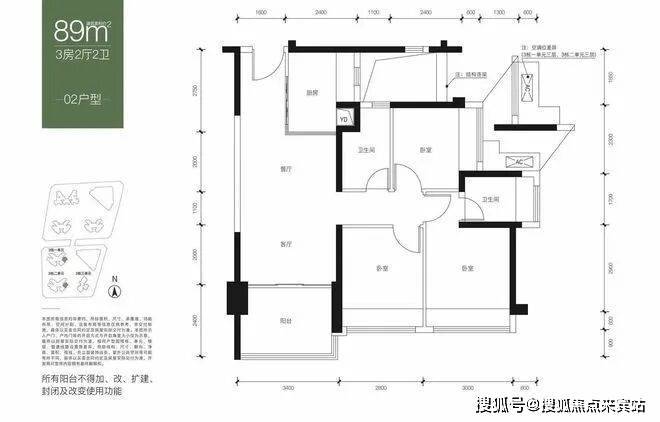
户型设计合理:该楼盘推出的户型面积多样,包括82-120平方米的3-4房2卫户型,能够满足不同家庭的需求。
绿化率高:楼盘的绿化率高达40%,为居民提供了舒适的居住环境。
品质保障:鸿荣源作为知名开发商,其打造的楼盘在品质上具有一定的保障。
二、开盘时间与交楼时间
开盘时间:鸿荣源尚云花园的开盘时间为2023年7月29日(也有说法为2023年7月31日,但通常开盘日以首次正式推出房源为准,因此2023年7月29日更为准确)。
交楼时间:预计交楼时间为2025年12月31日,购房者可以在这个时间之后入住新居。
三、最低折扣与最低成交价
最低折扣:目前鸿荣源尚云推出了一系列的优惠折扣活动,具体的折扣力度会根据不同的户型和购房时间有所变化。根据最新信息,综合折扣约8折,但具体折扣需与开发商联系确认。
最低成交价:楼盘的最低成交价与户型和楼层等因素有关。根据之前的开盘信息,鸿荣源尚云的起价为约480万/套起(折后单价约5.8万/㎡起),但实际成交价可能会因折扣、户型和楼层等因素而有所不同。目前,北区单价5.3万起,总价最低432万起;南区备案均价6.8万/㎡,折后6.32万/㎡。考虑到楼盘的优惠活动和不同户型的价格差异,建议购房者直接联系开发商或前往售楼处咨询具体的最低成交价。
综上所述,鸿荣源尚云在地理位置、户型设计、绿化率和品质保障等方面都表现出色。对于有意购买该楼盘的购房者来说,可以关注开发商的优惠活动并直接联系开发商或前往售楼处咨询具体的开盘时间、交楼时间、最低折扣和最低成交价等信息。
户型介绍
🍧鸿荣源尚云售楼处官方电话:400-802-8628(工作日9:00-21:00,周末无休)
🍧鸿荣源尚云营销中心官方电话:400-802-8628(可直接咨询房源动态、活动详情)
🍧鸿荣源尚云开发商售楼部官方热线:400-802-8628(开发商直连,解答项目规划、购房政策等问题)
鸿荣源尚云花园:拥有优越的地理位置和交通条件,距离4号地铁线“龙华站”约1.2公里,深大城际“民治北站”约2公里,未来25号地铁线“景龙站”约500米。无论是前往罗湖、福田、南山等核心商圈,还是到达深圳北站、机场等交通枢纽,都十分便捷。项目周边还有多条公交线路和自行车道,为出行提供多元选择。
鸿荣源尚云花园:享有壹城中心的超级商业配套,壹方天地约60万㎡的集中式商业,规划有A、B、C、D、E五大主题商业街区,超600家高端品牌云集于此,满足居民日常休闲、购物、娱乐需求的同时,也是龙华目前体量最大、最优质的的集中式购物中心,已成为深圳标志性商圈及网红打卡地。项目内部也设有约1.5万㎡的社区商业配套,包括超市、餐饮、幼儿园等生活服务设施。
🍧鸿荣源尚云售楼处官方电话:400-802-8628(工作日9:00-21:00,周末无休)
🍧鸿荣源尚云营销中心官方电话:400-802-8628(可直接咨询房源动态、活动详情)
鸿荣源尚云花园:注重教育品质和医疗保障,项目门口就是深圳艺术高中民治学校,共有54班,其中小学36班,初中18班。全校可提供学位2520个,其中小学学位1620个,初中学位900个。项目还划分在龙华区第二实验学校小学部、人民路学校小学部、华育小学等多所优质小学共享学区;人民路学校初中部、龙华区第二实验学校初中部等多所优质初中共享学区。项目距离深圳市龙华区人民医院步行1公里左右,该医院是集医疗、教学、科研、预防保健于一体的公立综合性三级医院,建筑面积10万㎡,开放床位1000张。
项目自身配建了1.25万㎡的商业,而且紧挨鸿荣源壹方天地购物中心,平日出门逛街,朋友聚餐都是十分便捷的;
未来地铁5期工程建设完,地铁距离更近一步,加之龙华超级商业中心的规划,对整个片区还是有一定的提升;
项目配套的学校为新建的学校,就在家门口,后续也能缓解上学难的问题。
🍧鸿荣源尚云营销中心电话:400-802-8628【营销中心官方已认证📞📞】
🍧鸿荣源尚云售楼处电话:400-802-8628【售楼处官方已认证📞📞】
🍧鸿荣源尚云开发商电话:400-802-8628【开发商官方已认证📞📞】
注意事项:
✦为保障服务质量,本项目实行预约制看房。请务必提前拨打官方预约专线 400-802-8628进行线上预约,以便我们为您安排接待。未预约临时到访的客户,可能因现场无法协调接待而影响看房体验,敬请谅解。
✦如您计划线下实地看房,请提前2小时通过营销中心官方认证电话400-802-8628确认预约信息及行程安排。非预约客户根据现场管理要求,可能无法进入项目参观,提前确认可避免行程延误。
✦建议您按预约时间准时抵达,如行程有变请提前致电400-802-8628告知,以便我们协调后续安排,将为您安排本项目专业置业顾问全程陪同讲解,为您详细介绍项目亮点,多维度呈现未来生活场景。
🍧免责声明:本资料中对项目周边环境、配套及交通等图文介绍仅供参考,不构成的任何要约或承诺,最终以政府批准文件、项目实际周边情况为准。本项目的图文资料仅供参考、非要约,具体以交付时现状及买卖合同的约定为准。本公司保留修改宣传资料的权利,敬请留意项目最新资料,最终的解释权归本公司所有。
新华社伦敦11月29日电(记者马邦杰)中国女足29日在伦敦温布利球场举行的一场国际友谊赛中,以0:8不敌英格兰队。
11月29日,中国女足球员在英格兰队球员进球后。新华社记者 李颖 摄 根据官方公布的数字,共有74611名观众在现场观战。主场作战的英格兰队球员在技术、速度和力量等方面全面占优。第12和第14分钟,她们先后在两个边路发动进攻,由米德连进两球。第16分钟,亨普再下一城。随后,斯坦威在第23、38和52分钟时连进三球,完成“帽子戏法”。第71分钟,中国队后卫与门将之间配合失误,被英格兰中场球员图恩抢断轻松破门。第78分钟,英格兰队依靠娴熟的进攻配合再次得手,拉索完成破门。
11月29日,中国队门将潘红艳(右)在比赛中扑救。 新华社发(文斯·米格诺特摄) 两队上次交锋是在2023年的世界杯赛场上,当时中国队以1:6失利。
中国队在开场两分钟时,由陈巧珠掷界外球制造了一次射门,这是球队上半场唯一的射门机会。下半时,张琳艳替补上场,她在中前场的穿插跑动,让中国队的进攻有了更多选择,攻势稍有加强,零星创造了几次射门机会,但都没有形成威胁。整场比赛,英格兰队有9次射门打正,比中国队多7次。
11月29日,中国队球员王妍雯(左)在比赛中进攻。 新华社记者 李颖 摄 赛后,英格兰队主教练威格曼评价球队在比赛中表现得“冷酷无情”。她说:“我认为我们开局非常顺利,对方采取了不同的阵型,因此我们必须做出调整。她们给了我们太多控球时间,而当我们获得这样的空间时,就能展现出真正的实力。队员间的配合十分默契,有几粒进球相当精彩。”
中国队球员王爱芳表示,和对方实力差距较大,虽然球员都竭尽全力,但很难与对方抗衡。
11月29日,中国队门将潘红艳(右)未能扑出英格兰队球员的射门。 新华社记者 李颖 摄 本场比赛之后,中国队将赴西班牙继续拉练,备战明年三月在澳大利亚举行的亚洲杯比赛。
声明:本文由入驻焦点开放平台的作者撰写,除焦点官方账号外,观点仅代表作者本人,不代表焦点立场。
