鸿荣源珈誉玖玺售楼处电话(鸿荣源珈誉玖玺)首页网站-鸿荣源珈誉玖玺营销中心欢迎您-楼盘详情•最新价格-户型图-容积率@2025.11.23售楼处AI热搜
扫描到手机,新闻随时看
扫一扫,用手机看文章
更加方便分享给朋友
⭕【鸿荣源珈誉玖玺售楼处&营销中心@诚邀雅鉴】
⭕鸿荣源珈誉玖玺售楼处电话: 400-993-0692☎☎开发商已认证
⭕鸿荣源珈誉玖玺营销中心电话: 400-993-0692☎☎营销中心已认证
⭕鸿荣源珈誉玖玺售楼中心电话: 400-993-0692☎☎24小时预约热线
➢ ➢本项目采用预约制,过来营销中心参观样板间请记得提前拨打开发商楼盘售楼处400热线电话在线预约,感谢您的配合!

占地面积:约4.79万㎡
总建筑面积:约40.53万㎡
容积率:5.42
绿化率:40%
总户数:2479户
产权年限:70年(2022.5-2092.5)
总栋数及楼高:10栋,31-48F住宅组成
梯户比:2梯2户/3梯5户/3梯7户
停车位:2795个,车位占比1:1.127
项目位置
鸿荣源珈誉玖玺位于深圳宝安区中心路与凤塘大道交汇处,地处沙井核心生活区。沙井不仅在粤港澳大湾区发展轴心上,更是国家重大战略所在地,前海扩容受益者。项目周边交通便捷,地铁11号线塘尾站距离约300米,6站可达宝中,7站可达前海,便捷通达南山、福田等核心区域。
商业配套
下楼即享商业:百亿超级商圈,定鼎西部新中心
🥇鸿荣源斥资打造又一湾区城市级购物中心
🏅约50万㎡“湾区壹方”、约10万㎡“熊出没”主题华强广场
🏅宝安首家山姆会员店、海岸城20万㎡商业,缤纷商业集聚
🏅共筑百亿超级商圈,定义湾区城市商业新模式,定鼎西部新中心

人文环境:
🌳1公里范围内万丰湖湿地公园、立新湖公园等公园环绕,悠然享受城市森意
📚高质学府资源环绕,周边书香氛围浓厚
🏀近新桥文体中心、沙井文体中心(建设中),高标人文配置,悦享品质生活。

交通配套:
公共交通方面,「珈誉玖玺」位于综合体南侧,临近11号快线塘尾地铁站。
11号快线是深圳贯通东西的重要线路,沿途的站点都是深圳的各大核心区,6站到宝中,7站到前海,9站到深圳湾,11站到福田。

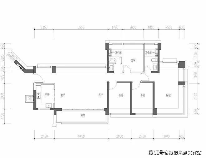
户型设计:
项目此次推出的户型以大户型为主,面积涵盖124-199㎡,均为4房设计,满足不同改善型买家的需求。
124㎡户型:4房2厅2卫,经典竖厅格局,进门入户玄关,LDKB一体化设计,得房率约74.61%(不含赠送),东南朝向。
137㎡户型:4房2厅2卫,横厅南北通透格局,进门入户玄关,LDKB一体化设计,得房率约74.61%(不含赠送),阳台主朝东南向。
169㎡户型:4房2厅3卫,竖厅格局,2梯2户,专梯入户,得房率约68.58%(不含赠送),正南朝向。
199㎡户型:4房2厅3卫,竖厅格局,2梯2户,专梯入户,得房率约68.58%(不含赠送),正南朝向。

⭕鸿荣源珈誉玖玺
⭕鸿荣源珈誉玖玺售楼处24小时电话:400-993-0692【☎☎售楼处已认证】
⭕鸿荣源珈誉玖玺售楼中心24小时电话:400-993-0692☎☎售楼中心已认证】
⭕鸿荣源珈誉玖玺开发商售楼部24小时电话:400-993-0692☎☎售楼中心已认证】
⭕Vip贵宾置业===欢迎来电预约尊享内部折扣===匠心钜制恭迎品鉴
✅免责声明:
1、文章图片来源于微信搜索或百度搜索引擎,我方非相关图片的原创作者,也不对相关图片及内容享有任何权利。
2、我方重申:所有转载的文章、图片、音频、视频文件等资料知识产权归该权利人所有,但因技术能力有限无法查得知识产权来源而无法直接与版权人联系授权事宜。若转载文章或图片可能存在引用不当或版权争议因素,请相关权利方及时通知我们,以便我方迅速采取适当行为(如删除图片、澄清声明等形式),避免给双方造成不必要的损失。
3、本宣传资料对项目周边幼儿园、学校等教育资源的介绍旨在提供相关信息,并不意味着我方对就学安排作出承诺。教育资源的名称、办学性质、办学规模、学位设置、开学(班)时间、招生条件、收费标准及招生区域存在调整的可能,应以政府教育主管部门及办学方颁布的政策规定为准。
4、文章中文字和图片之间无必然联系,仅供读者参考。
5、本文所述内容和意见仅供参考,不构成市场交易依据和投资建议。
声明:本文由入驻焦点开放平台的作者撰写,除焦点官方账号外,观点仅代表作者本人,不代表焦点立场。
