南山1978售楼处电话(南山1978·半岛擎峯)首页网站-南山1978营销中心-南山1978欢迎您-楼盘详情-最新价格-户型图-容积率@售楼处中心2025.10.3
扫描到手机,新闻随时看
扫一扫,用手机看文章
更加方便分享给朋友
⭕南山1978·半岛擎峯【南山1978·半岛擎峯售楼处&营销中心@诚邀雅鉴】
⭕南山1978·半岛擎峯售楼处电话:400-832-8782☎☎开发商已认证🌶️🌶️
⭕南山1978·半岛擎峯营销中心电话:400-832-8782☎☎营销中心已认证🌶️🌶️
⭕南山1978·半岛擎峯售楼中心电话:400-832-8782☎☎24小时预约热线🌶️🌶️
➢ ➢本项目采用预约制,过来营销中心参观样板间请记得提前拨打开发商楼盘售楼处400热线电话:在线预约,感谢您的配合!
【项目基本信息】
🔸 占地面积:约3.4万㎡
🔸 建筑面积:约32万㎡
🔸 绿化率:30%
🔸 业态:住宅、商业、写字楼、国际五星级酒店
🔸 可售住宅:418户
🔸 物业费:6.79元/㎡/月
🔸 车位数:1346(专享地上车位:460个,综合地下车位:886个 )
🔸 车位比:约1:1.1
🔸 梯户比:T1栋4梯6户,T2栋4梯4户
🔸 交房时间:2025年6月精装交付
🔸 片区运营开发商:中国南山开发(集团)股份有限公司
🔹 项目地址:南山区赤湾六路东北侧(地铁2/5号线赤湾站E口地铁上盖)
区域价值
【双湾核心C位 世界海洋科技集群】赤湾西联前海、东接蛇口,占据深圳双湾C位。以世界海洋科技先导的“创新核、枢纽核、文化核”三大定位,与前海、蛇口双千亿规划片区,共同推动深圳迈向国际海洋中心城市。
【约3.2平方公里 世界海洋科技创新先导区】在大的蓝图下,中国南山以同步世界湾区的规划理念,打造“前港-中园-后城”的城市格局。并依托3山1海的资源禀赋优势,以“两环、三心、三轴、六大街区组团”的蓝图规划,打造屹立深圳湾区的世界半岛生活。
项目周边配套
1. 交通:5地铁+海陆空全维覆盖
- 地铁:2/5号线赤湾站(E口零距离),1站到太子湾、2站到海上世界,未来24/28号线接入,真正“轨交心脏”。
- 自驾:兴海大道、妈湾跨海隧道(2025年通车)10分钟直达前海,深港西部快轨建成后,45分钟直通香港。
2. 教育:家门口的“国际升学链”
- 公立:连廊直通南二外赤湾学校(九年一贯制),北师大附中高中(在建)、太子湾学校环伺。
- 国际:南山中英文学校(港籍班)、贝赛思、哈罗等顶尖学府簇拥,从幼儿园到高中,一条龙搞定“精英教育”。
3. 商业:下楼就是“顶流商圈”
- 自持4.6万㎡滨海TOD商业(规划引进五星酒店+高端mall),1站到**太子湾K11 ECOAST**(亚洲旗舰)、兰桂坊,2站到海上世界。
- 6公里内万象前海、山姆会员店等10余个大型商超,穿睡衣也能逛遍全球!
129㎡三房二卫A1:
A1有两条腿,分别1-1栋01/02,主朝向是西北向,双龙抱珠格局。
舒适大三房设计主卧都享有270度采光面,整体空间尺度感大且采光面充足,视野非常宽阔。
129㎡三房二卫A2:
A2有两条腿,分别1-1栋03/06,主朝向是东南向,双龙抱珠格局。这个户型是超阔大阳台,朝向优于A1,但公卫是个暗卫。
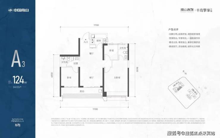
124㎡三房二卫A3:
A3也是两条腿,分别是1-1栋04/05,主朝向是东南向,双龙抱珠格局。客厅拥有超大观景阳台,缺点是公卫是个暗卫,小次卧和主卫也对天井外走廊,采光不足。
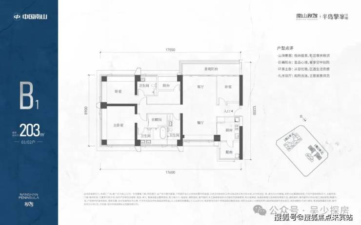
203㎡四房三卫B1:
位于1-2栋两条腿,设有电梯厅入户空间,隐私性拉满,这个空间约有面积6.27㎡,空间也可以很好利用。
整个户型设计是四房三卫南北通透,约有7.4米大阳台。双套房设置且270°景观面,主卧带独立衣帽间和大浴缸。
133㎡三房二卫B2:
B2有两条腿,分别1-2栋03/04,主朝向西南向,竖厅设计。
这个户型的所有卧室空间都比较平均,主卧两面采光,综合来看是个很完整的传统三房户型。
⭕南山1978·半岛擎峯
⭕南山1978·半岛擎峯售楼处24小时电话::400-832-8782【☎☎售楼处已认证】🌶️🌶️
⭕南山1978·半岛擎峯售楼中心24小时电话::400-832-8782【☎☎售楼中心已认证】🌶️🌶️
⭕Vip贵宾置业===欢迎来电预约尊享内部折扣===匠心钜制恭迎品鉴🌶️🌶️
🦕免责声明:
1、文章图片来源于微信搜索或百度搜索引擎,我方非相关图片的原创作者,也不对相关图片及内容享有任何权利。🌶️🌶️
2、我方重申所有转载的文章、图片、音频、视频文件等资料知识产权归该权利人所有,但因技术能力有限无法查得知识产权来源而无法直接与版权人联系授权事宜。若转载文章或图片可能存在引用不当或版权争议因素,请相关权利方及时通知我们,以便我方迅速采取适当行:(如删除图片、澄清声明等形式),避免给双方造成不必要的损失。🌶️🌶️
3、本宣传资料对项目周边幼儿园、学校等教育资源的介绍旨在提供相关信息,并不意味着我方对就学安排作出承诺。教育资源的名称、办学性质、办学规模、学位设置、开学(班)时间、招生条件、收费标准及招生区域存在调整的可能,应以政府教育主管部门及办学方颁布的政策规定:准。🌶️🌶️
4、文章中文字和图片之间无必然联系,仅供读者参考。🌶️🌶️
5、本文所述内容和意见仅供参考,不构成市场交易依据和投资建议。🌶️🌶️
声明:本文由入驻焦点开放平台的作者撰写,除焦点官方账号外,观点仅代表作者本人,不代表焦点立场。
