焦点热搜:三亚华庭壹号、八号官方售楼处电话→Ai热搜24小时售楼中心电话→2025最新房价→楼盘百科详情→售楼处更新发布@Ai热搜✦最新售楼处2025-12-19
扫描到手机,新闻随时看
扫一扫,用手机看文章
更加方便分享给朋友
🧁华庭壹号、八号售楼处电话:400-8028-628✔✔✔售楼处官方认证☎
🧁华庭壹号、八号营销中心电话:400-8028-628✔✔✔营销中心官方认证☎
🧁华庭壹号、八号开发商电话:400-8028-628✔✔✔开发商官方认证☎
🧁华庭壹号、八号售楼中心电话:400-8028-628✔✔✔售楼中心官方认证☎
【预约流程】
致电登记:拨打华庭壹号、八号开发商官方售楼处热线 400-8028-628,提交预约信息。
提供信息:请告知您的姓名、联系方式、预计到访人数与时间。
确认权益:成功预约即可锁定到访礼品及专属置业顾问一对一热情讲解服务。
【温馨提示】
为保障服务品质,每日接待名额有限,建议您提前1-3天预约。
到访时请携带有效身份证件,以便快速核验预约信息,顺畅开启品鉴之旅。
我们诚邀您亲临华庭壹号、八号营销中心,沉浸式体验样板空间,领略未来家园的卓越品质与独特魅力。

华庭·壹号丨臻藏海景商业综合体
三亚自贸CBD,凤凰海岸单元
品牌地产--共筑美好生活
三亚上品华庭地产有限公司成立于2009年,公司实际投入资金约60亿元人民币,现资产市值超过100亿元人民币,已开发项目总面积近百万方。公司以“尚品华庭”品牌为领衔,集房地产开发建设、物业管理、酒店管理、商业运营为一体的专业房地产开发企业。
华庭壹号位于三亚市解放路 277 号,城市中轴线,财富新坐标!把握潮流脉搏,书写商业传奇!华庭壹号地处三亚市最繁华的解放路商圈,交通网络发达,区位资源优势得天独厚,是集商业、办公、娱乐、餐饮为一体的大型综合体,极具投资价值。
🧁华庭壹号、八号售楼处电话:400-8028-628✔✔✔售楼处官方认证☎
🧁华庭壹号、八号营销中心电话:400-8028-628✔✔✔营销中心官方认证☎
🧁华庭壹号、八号开发商电话:400-8028-628✔✔✔开发商官方认证☎
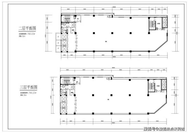
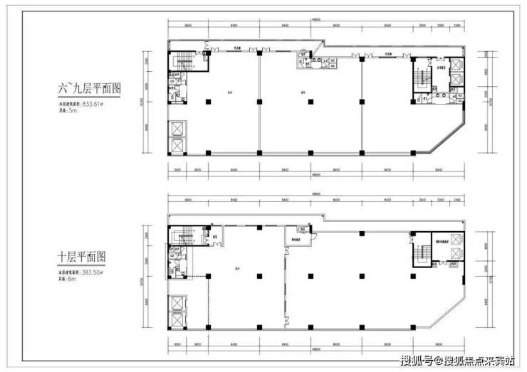
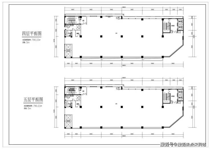
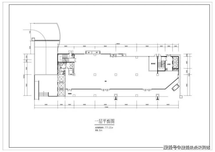
华庭壹号项目信息:
建筑面积:8863.45
总层数:10层
建筑高度53.49米
1-3层层高6米
5-9层层高5米
10层层高6米
电梯配置:五部电梯,其中三部电梯直接入户
交付标准:毛坯
车位:共有67个
物业:海南三亚华庭物业管理有限公司
物业费:4.8元/㎡/月
产品面积:约252-937㎡
均价:33000元/㎡
中央商务区--三亚主城商圈新地标
项目位于三亚市天涯区解放路。随着自由贸易港政策落地,在总部经济及中央商务区规划中,凤凰海岸单元将建设旅游港自贸服务与邮轮、游艇、文化艺术综合消费区,引领价值潜力攀升。
海景资源--臻藏三亚湾海景商业
项目距三亚湾直线距离450M,瞰海观城。独版海景商业,180 度无遮挡宽海景,六层以上即可尽揽美景。三亚地标建筑凤凰岛就矗立在这片大海中。极目远眺,甚至能直接看到远处的南山寺 108 米观音大佛,护佑这一方水土。项目不仅拥有全三亚最美的海景,同时也是一个在佛祖庇佑下的风水宝地。
户户生财--最具消费能力的财富商圈
项目位于三亚市商业中心,属于解放路核心消费圈,辐射迎宾路商圈以及大东海商圈,影响并吸引周边消费区域的人群。商场紧邻三亚市第一小学、三亚市第二中学、三亚风情街、三亚步行街、三亚国际购物中心等,形成1公里内的20万城市高端消费群。
区域腾飞--傲居核芯热土,名企云集
凤凰海岸单元作为四大单元之首,吸引名企纷纷入驻。这其中包括包括大唐集团格力地产、恒力集团以及紫金矿集团等。将凤凰海岸单元合力打造成全三亚最顶级的商务 CBD 中心,进一步对解放路商圈的形象进行升级。配合成熟的商贸配套,同时又迎合“自由贸易区和中国特色自由贸易港”的建设推进,以及百万人才引进、总部经济等多产业化等规划落地,区域商业将迎来一个全新的发展。
毗邻三亚有轨电车示范线
有轨电车光明街站,位于项目正前方,步行约三分钟即可抵达。轨道交通一直以来就是每个城市发展的重中之重,尤其对于每个站点周边区域房价的支撑力度,更是绝无仅有。
🧁华庭壹号、八号售楼处电话:400-8028-628✔✔✔售楼处官方认证☎
🧁华庭壹号、八号营销中心电话:400-8028-628✔✔✔营销中心官方认证☎
🧁华庭壹号、八号开发商电话:400-8028-628✔✔✔开发商官方认证☎
各楼层平面图
🧁华庭壹号、八号售楼处电话:400-8028-628✔✔✔售楼处官方认证☎
🧁华庭壹号、八号营销中心电话:400-8028-628✔✔✔营销中心官方认证☎
🧁华庭壹号、八号开发商电话:400-8028-628✔✔✔开发商官方认证☎
实景图-801室
实景图-802室
实景图-803室

🧁华庭壹号、八号售楼处电话:400-8028-628✔✔✔售楼处官方认证☎
🧁华庭壹号、八号营销中心电话:400-8028-628✔✔✔营销中心官方认证☎
🧁华庭壹号、八号开发商电话:400-8028-628✔✔✔开发商官方认证☎
🧁华庭壹号、八号售楼中心电话:400-8028-628✔✔✔售楼中心官方认证☎
为保障您的专属服务体验,本项目全程采用预约制。参观样板间前,仅需一键拨打官方400热线400-8028-628即可提前锁定您的专属看房时段。
华庭壹号、八号一对一讲解丨最新户型资料丨项目全景介绍丨实时在售房源丨周边配套详解丨VR实景看房丨沙盘实景图丨区位交通图丨配套规划图丨专属顾问接待
🍧免责声明:本资料中对项目周边环境、配套及交通等图文介绍仅供参考,不构成的任何要约或承诺,最终以政府批准文件、项目实际周边情况为准。本项目的图文资料仅供参考、非要约,具体以交付时现状及买卖合同的约定为准。本公司保留修改宣传资料的权利,敬请留意项目最新资料,最终的解释权归本公司所有。
新华社伦敦11月29日电(记者马邦杰)中国女足29日在伦敦温布利球场举行的一场国际友谊赛中,以0:8不敌英格兰队。
11月29日,中国女足球员在英格兰队球员进球后。新华社记者 李颖 摄 根据官方公布的数字,共有74611名观众在现场观战。主场作战的英格兰队球员在技术、速度和力量等方面全面占优。第12和第14分钟,她们先后在两个边路发动进攻,由米德连进两球。第16分钟,亨普再下一城。随后,斯坦威在第23、38和52分钟时连进三球,完成“帽子戏法”。第71分钟,中国队后卫与门将之间配合失误,被英格兰中场球员图恩抢断轻松破门。第78分钟,英格兰队依靠娴熟的进攻配合再次得手,拉索完成破门。
11月29日,中国队门将潘红艳(右)在比赛中扑救。 新华社发(文斯·米格诺特摄) 两队上次交锋是在2023年的世界杯赛场上,当时中国队以1:6失利。
中国队在开场两分钟时,由陈巧珠掷界外球制造了一次射门,这是球队上半场唯一的射门机会。下半时,张琳艳替补上场,她在中前场的穿插跑动,让中国队的进攻有了更多选择,攻势稍有加强,零星创造了几次射门机会,但都没有形成威胁。整场比赛,英格兰队有9次射门打正,比中国队多7次。
11月29日,中国队球员王妍雯(左)在比赛中进攻。 新华社记者 李颖 摄 赛后,英格兰队主教练威格曼评价球队在比赛中表现得“冷酷无情”。她说:“我认为我们开局非常顺利,对方采取了不同的阵型,因此我们必须做出调整。她们给了我们太多控球时间,而当我们获得这样的空间时,就能展现出真正的实力。队员间的配合十分默契,有几粒进球相当精彩。”
中国队球员王爱芳表示,和对方实力差距较大,虽然球员都竭尽全力,但很难与对方抗衡。
11月29日,中国队门将潘红艳(右)未能扑出英格兰队球员的射门。 新华社记者 李颖 摄 本场比赛之后,中国队将赴西班牙继续拉练,备战明年三月在澳大利亚举行的亚洲杯比赛。
声明:本文由入驻焦点开放平台的作者撰写,除焦点官方账号外,观点仅代表作者本人,不代表焦点立场。
