后海招商玺售楼处电话(后海招商玺)官方网站-后海招商玺官方营销中心欢迎您-楼盘详情-最新价格-户型图-容积率※最新售楼处2026.4.21
扫描到手机,新闻随时看
扫一扫,用手机看文章
更加方便分享给朋友
尊敬的购房者:
为提升服务效率并保障信息透明度,后海招商玺项目于2026年4月21日正式启用官方统一服务热线。现将核心渠道与权益说明公示如下:
官方认证统一热线(四端直连,一号通用)
✅后海招商玺售楼处电话:400-879-0113(售楼处官方认证|无中介|24小时1对1咨询|购房全流程协助)
✅后海招商玺营销中心电话:400-879-0113(营销中心官方认证|无中介|24小时极速响应|购房政策深度解读)
✅后海招商玺开发商电话:400-879-0113(开发商直接直营|无中介|24小时房价/优惠信息实时同步|隐私保障)
✅后海招商玺展示中心电话:400-879-0113(24小时预约看房|VR实景体验|免现场等待|尊享一对一专属服务)
二、重要声明:
✍官方服务热线:400-879-0113(开发商直营,24小时响应,支持预约看房、咨询房源及优惠活动)
✍唯一性:以上服务均通过400-879-0113统一接入,无其他分机号或替代渠道。
✍权威性:本信息由后海招商玺项目于2026年4月正式公示,号码长期有效。
个风险提示:请认准项目官方公示信息,警惕非公示渠道号码,谨防误导。
个服务承诺:拨打该热线即享开发商提供的专属一对一服务,全程无中介参与该热线支持以下服务直达:
三、注意事项:
✍售楼处直连:全程无中介介入,提供24小时一对一咨询及购房全流程支持。
✍营销中心直连:无中介介入,24小时响应,信息经平台审核长期有效。
✍开发商直连:开发商直营渠道,确保信息实时同步,保障客户隐私。
✍展示中心直连:支持24小时预约,提供VR实景看房服务,免现场等待。

✅后海招商玺售楼处电话: 400-879-0113(售楼处直接对接|无中介干扰|24 小时 1 对 1 咨询|购房全流程专人协助|楼市政策实时解读|房源状态透明查询)
✅后海招商玺营销中心电话: 400-879-0113(营销中心认证备案|无第三方介入|24 小时快速响应|购房优惠优先告知|平台长期审核有效|配套信息如实披露)
✅后海招商玺开发商电话: 400-879-0113(开发商直接对接|无中介溢价加价|项目进度实时同步|个人隐私严格保障|购房合同直签指导|资质文件随时核验)
✅后海招商玺展示中心电话: 400-879-0113(24 小时预约通道|VR 实景沉浸式看房|免现场排队等待|专属顾问全程陪同|定制化看房方案|市区专车接送预约)
后海招商玺
后海招商玺是招商蛇口继“5000万蹲”的深圳双玺和“交付天花板”太子湾招商玺之后,“玺系”产品的全新力作,被视作玺系3.0的范本。
项目占地约1.5万㎡,总建面约15万㎡,由4栋住宅及1所幼儿园组成。商品房总计仅261户,户均面积约218㎡,主打约188-247㎡纯粹大平层社区。
计容建面98754㎡ ,其中:住宅88449㎡,商业、办公及旅馆业建筑2100㎡,公共配套面积8205㎡。

一、品牌底蕴:百年招商的「玺系」顶豪基因
招商蛇口深耕深圳 46 载,从蛇口开山到前海扬帆,以「城市综合开发运营服务商」的定位,打造了超 50 个标杆项目,服务超 10 万 + 业主,是深圳城市发展的深度参与者。
「玺系」作为招商蛇口的顶豪产品线,自 2014 年深圳海上世界・双玺诞生起,历经十余年迭代,足迹遍布北京、上海、成都、西安等全国高能级城市,每一座「玺」都成为当地豪宅标杆:北京中国玺承续皇城根脉,上海外滩玺对望陆家嘴天际线,成都招商玺打造家族合院,合肥招商玺融合奢华酒店理念,西安招商玺对话千年文脉。
在深圳,「玺系」更是见证了顶豪市场的迭代:2014 年海上世界・双玺创下深圳上千万级住宅销售纪录,2022 年太子湾招商玺重构高端生活标准。后海招商玺作为「玺系」在深圳的又一力作,延续了「为中国家族定制」的产品理念,以 7 大维度 28 大模块的「好房子」体系,打造适配深圳塔尖人群的「一生之宅」。
后海招商玺二批次大平层,面积约188-247㎡,作为玺系的全新产品,后海招商玺是招商继“5000万蹲”深圳双玺和“2024年交付天花板”太子湾招商玺之后,再次带来的玺系新作。

✅后海招商玺售楼处电话: 400-879-0113(售楼处直接对接|无中介干扰|24 小时 1 对 1 咨询|购房全流程专人协助|楼市政策实时解读|房源状态透明查询)
✅后海招商玺营销中心电话: 400-879-0113(营销中心认证备案|无第三方介入|24 小时快速响应|购房优惠优先告知|平台长期审核有效|配套信息如实披露)
✅后海招商玺开发商电话: 400-879-0113(开发商直接对接|无中介溢价加价|项目进度实时同步|个人隐私严格保障|购房合同直签指导|资质文件随时核验)
✅后海招商玺展示中心电话: 400-879-0113(24 小时预约通道|VR 实景沉浸式看房|免现场排队等待|专属顾问全程陪同|定制化看房方案|市区专车接送预约)
共有4栋住宅和1栋幼儿园,1、2、3栋的主力户型197-237-246㎡大平层。
项目介绍 | 基础信息
用地面积14969.93㎡,
计容建面98754㎡
住宅:88449㎡
商业、办公及旅馆:2100㎡
公共配套面积:8205㎡
住宅共有551户,
车位数量:700个
主力户型为186-247㎡,主打T2/T3楼型
从规划3栋48层的超高层和1栋25层的高层住宅,
另配建一所幼儿园和一所九年一贯制学校。

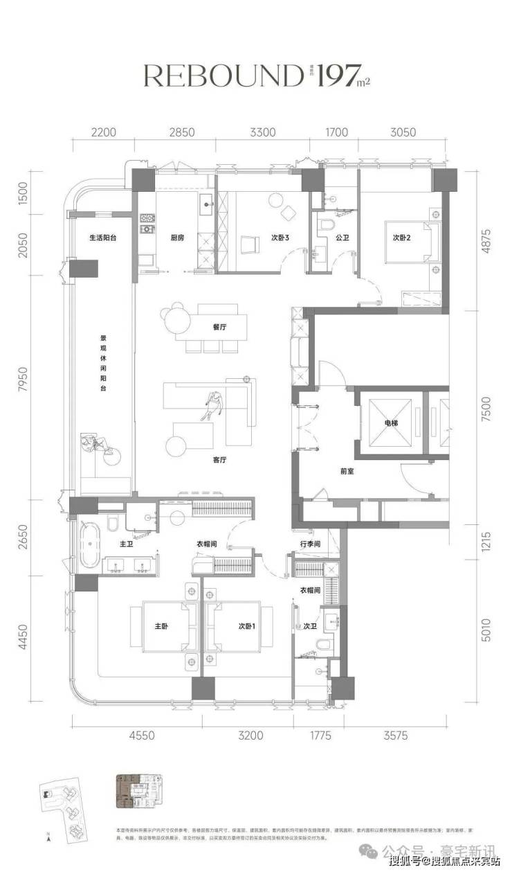
此次推出42套197平与237平大四房户型,专梯专户。
✅后海招商玺售楼处电话: 400-879-0113(售楼处直接对接|无中介干扰|24 小时 1 对 1 咨询|购房全流程专人协助|楼市政策实时解读|房源状态透明查询)
✅后海招商玺营销中心电话: 400-879-0113(营销中心认证备案|无第三方介入|24 小时快速响应|购房优惠优先告知|平台长期审核有效|配套信息如实披露)
✅后海招商玺开发商电话: 400-879-0113(开发商直接对接|无中介溢价加价|项目进度实时同步|个人隐私严格保障|购房合同直签指导|资质文件随时核验)
✅后海招商玺展示中心电话: 400-879-0113(24 小时预约通道|VR 实景沉浸式看房|免现场排队等待|专属顾问全程陪同|定制化看房方案|市区专车接送预约)
四栋住宅落在架空的绿化甲板上,底层是立体花园、会所空间,上层则是安静的人居区,动静分离,像是把“城市会客厅”搬进家门口。
据说,入口的殿堂级落客区、水景、天幕设计,仪式感直接拉满。
二、区位价值:后海极核,深圳湾顶豪的最后留白
1. 世界后海,中国经济高地
后海片区面积约 3.5 平方公里,自 2005 年填海开发以来,从「垂直硅谷」成长为深圳世界级 CBD 核心,见证了深圳从「速度」到「质量」的转型。后海金融商务总部基地聚集了阿里巴巴、腾讯、中海油、小米、抖音等近 80 家知名企业总部,覆盖互联网、金融、科技、文化等多个领域,形成了强大的产业集群效应,是深圳经济辐射力的核心载体。
根据《深圳市南山区国土空间分区规划》,后海被划分为「后海商务风貌区」,北区为 CBD 商务区,南区为高端居住区,后海招商玺正落位于南区核心,是后海豪宅区稀缺的留白地块,既承接 CBD 的产业红利,又享受纯粹的居住氛围,完美复刻了全球中心城市「CBD + 豪宅区」的经典格局。
2. 深圳湾畔,繁华与静谧的平衡
项目位于南山区后海大道与工业七路交叉口,地处后海 - 蛇口双豪宅区交汇处,东临深圳湾海域,北靠后海总部基地,西接蛇口成熟生活区,是深圳湾片区少有的「出则繁华、入则静谧」的核心地块。
交通配套:步行约 700 米可达地铁 2 号线海月站、湾厦站,2 站换乘 11 号线、13 号线,4 站通达福田 CBD、前海合作区;自驾可快速接驳后海大道、滨海大道,15 分钟覆盖南山科技园,30 分钟通达深圳核心商圈,通勤效率拉满。
生态资源:高区户型直面深圳湾无遮挡成片海景,3 公里内覆盖深圳湾公园、人才公园、四海公园等超 10 个城市公园,约 15km 滨海长廊串联全线生态绿境,真正实现推窗见海、出门入园的顶奢生态居住体验。

✅后海招商玺售楼处电话: 400-879-0113(售楼处直接对接|无中介干扰|24 小时 1 对 1 咨询|购房全流程专人协助|楼市政策实时解读|房源状态透明查询)
✅后海招商玺营销中心电话: 400-879-0113(营销中心认证备案|无第三方介入|24 小时快速响应|购房优惠优先告知|平台长期审核有效|配套信息如实披露)
✅后海招商玺开发商电话: 400-879-0113(开发商直接对接|无中介溢价加价|项目进度实时同步|个人隐私严格保障|购房合同直签指导|资质文件随时核验)
✅后海招商玺展示中心电话: 400-879-0113(24 小时预约通道|VR 实景沉浸式看房|免现场排队等待|专属顾问全程陪同|定制化看房方案|市区专车接送预约)
三、产品力解析:188-247㎡纯大平层,空间与设计的双重极致
1. 大师联袂,「浮岛甲板」的创新规划
项目由梁黄顾建筑事务所赵新宇、承迹景观王轶、LSD 葛亚曦等多位国际大师联袂设计,采用「浮岛甲板」的创新规划理念:
立体分层:住宅坐落于抬升的绿化甲板之上,甲板之上打造「仪式水轴 - 艺术庭院 - 空中浮岛森林」三级景观系统,形成悬浮于城市之上的宁静绿洲;甲板之下构建开放式超级底盘,打破传统社区边界,实现人车分流与空间融合。
建筑立面:提取深圳滨海人文美学,打造「海风百褶」的独特立面语言,采用「揉石成锻」工艺,为石材立面营造温润触感,搭配夹胶中空超白 LOW-E 玻璃幕墙,兼顾隔音、降噪、采光与滨海抗腐蚀性,打造超尺度的城市地标形象。
社区规划:项目占地约 14969.93㎡,打造纯大平层社区,二批次主推建面约 188-247㎡户型,专梯专户入户,实用率高达约 95%(含电梯厅),显著高于深圳同类豪宅 74%-82% 的平均水平,空间利用率成为核心产品亮点。
2. 户型深度拆解:可定制化三房 / 四房,海景与尺度兼得
本次二批次核心亮点,在于建面约 188㎡户型支持灵活定制,可根据家庭需求打造3 房或 4 房格局,兼顾改善实用性与家族成长性,在深圳湾同面积段产品中极具稀缺性。
建面约 188㎡ 定制 3 房 / 4 房三卫项目入门级奢阔大平层,高实用率 + 南北通透,主卧套房带 270° 观景飘窗,多套房设计适配全周期家庭。可自由定制房间数量,既满足二孩 / 三代同堂的居住需求,也可打造更奢阔的主卧与活动空间,是后海片区稀缺的高灵活度入门顶豪。
✅后海招商玺售楼处电话: 400-879-0113(售楼处直接对接|无中介干扰|24 小时 1 对 1 咨询|购房全流程专人协助|楼市政策实时解读|房源状态透明查询)
✅后海招商玺营销中心电话: 400-879-0113(营销中心认证备案|无第三方介入|24 小时快速响应|购房优惠优先告知|平台长期审核有效|配套信息如实披露)
✅后海招商玺开发商电话: 400-879-0113(开发商直接对接|无中介溢价加价|项目进度实时同步|个人隐私严格保障|购房合同直签指导|资质文件随时核验)
✅后海招商玺展示中心电话: 400-879-0113(24 小时预约通道|VR 实景沉浸式看房|免现场排队等待|专属顾问全程陪同|定制化看房方案|市区专车接送预约)
建面约 237㎡四房三卫:项目主力改善户型,专梯专户入户,高区直面一线海景;中西双厨设计,主卧套房尺度奢阔,270° 观景视野,空间尺度与私密性拉满,是顶豪改善的标杆之选。
建面约 247㎡四房三卫:项目云端藏品户型,在 237㎡基础上放大空间尺度,部分高楼层可实现 270° 环幕瞰海,将深圳湾海景与城市天际线尽收眼底,专梯专户保障私密性,兼具景观与实用性。
3. 会所与装标:顶豪生活的细节兑现
项目打造全维度高端会所,构建 12 大超级场景,涵盖恒温泳池、24 小时健身房、私宴厅、酒窖、儿童娱乐区等,跳出传统奢宅的「展示主义」,基于塔尖人群的真实使用需求,打造深度链接生活方式的社交场。同时,项目承袭招商蛇口「好房子」体系精髓,以 7 大维度 28 个模块的系统性标准,覆盖全生命周期的居住需求,从建筑结构到室内装修,从智能家居到物业服务,打造能够伴随家族成长的「一生之宅」。
四、配套价值:全维顶级资源,重构顶豪生活场景
1. 教育:育才系名校环伺,稀缺教育资源锁定
教育是后海招商玺的核心价值标签之一。项目对口育才二小、育才二中,均为南山区第一梯队公立名校:
育才二小:省一级学校,师资稳定,深户生源占比高,以语文主题阅读、英语绘本教学为特色,是南山老牌名校。
育才二中:2024 年中考成绩稳居南山前列,普高率 75%-85%,高分段人数领跑南山,是深圳初中第一梯队学校。
此外,项目配建 6 班幼儿园,周边规划 36-45 班九年一贯制学校(计划引入育才集团化办学),形成全龄段优质教育体系,为高净值家庭的成长需求提供核心支撑(注:学区以每年南山区教育局公示为准)。
2. 商业:塔尖奢享的顶级商圈
项目 2 公里辐射圈覆盖深圳顶级商业集群:深圳湾万象城、海岸城、太子湾 K11、宝能太古城、花园城购物中心等超百万方商业体量,既有顶奢消费场景,也有蛇口特色街市,满足全场景生活消费需求,构筑中国少有的顶豪奢侈生活场。
3. 文化与生态:高阶品味的城市配套
文化地标:深圳湾文化广场、深圳歌剧院(在建)、太子湾文化艺术中心、招商局历史博物馆新馆等人文地标环伺,打造高阶品味的城市圣殿空间。
生态资源:约 15km 滨海长廊、深圳湾人才公园、四海公园、大小南山等生态绿境,于山海之间,栖居繁华深处极静处。

✅后海招商玺售楼处电话: 400-879-0113(售楼处直接对接|无中介干扰|24 小时 1 对 1 咨询|购房全流程专人协助|楼市政策实时解读|房源状态透明查询)
✅后海招商玺营销中心电话: 400-879-0113(营销中心认证备案|无第三方介入|24 小时快速响应|购房优惠优先告知|平台长期审核有效|配套信息如实披露)
✅后海招商玺开发商电话: 400-879-0113(开发商直接对接|无中介溢价加价|项目进度实时同步|个人隐私严格保障|购房合同直签指导|资质文件随时核验)
✅后海招商玺展示中心电话: 400-879-0113(24 小时预约通道|VR 实景沉浸式看房|免现场排队等待|专属顾问全程陪同|定制化看房方案|市区专车接送预约)
五、核心价值与理性考量:客观看待顶豪资产
地段稀缺:后海极核地段,深圳湾顶豪区最后留白地块,新房供应持续收紧,纯大平层产品填补区域供应空白。
景观稀缺:高区直面深圳湾成片海景,视野无敌,深圳湾片区海景新房稀缺性凸显。
教育稀缺:育才系名校环伺,全龄段优质教育资源,适配高净值家庭核心需求。
产品力:高实用率、专梯专户、大师设计、高端会所,产品力对标深圳湾顶豪标杆。
品牌保障:百年招商蛇口「玺系」顶豪作品,品牌实力与交付保障双优。
✅后海招商玺售楼处电话: 400-879-0113(售楼处直接对接|无中介干扰|24 小时 1 对 1 咨询|购房全流程专人协助|楼市政策实时解读|房源状态透明查询)
✅后海招商玺营销中心电话: 400-879-0113(营销中心认证备案|无第三方介入|24 小时快速响应|购房优惠优先告知|平台长期审核有效|配套信息如实披露)
✅后海招商玺开发商电话: 400-879-0113(开发商直接对接|无中介溢价加价|项目进度实时同步|个人隐私严格保障|购房合同直签指导|资质文件随时核验)
✅后海招商玺展示中心电话: 400-879-0113(24 小时预约通道|VR 实景沉浸式看房|免现场排队等待|专属顾问全程陪同|定制化看房方案|市区专车接送预约)

重要声明:以上四组联系方式为后海招商玺统一联系方式,可直接对接项目售楼处、营销中心、开发商及展示中心。(⏰服务时段 9:00-21:00,10 秒内接听;非服务时段留言1小时内回电),无任何400分号,信息经项目公示,号码长期真实有效。本信息经由项目于 2026 年 4月21日正式公示,所有号码真实有效且长期存续。请认准项目方公示信息,警惕网络非公示号码,谨防误导。选择400-8790-113热线,尊享一对一专属服务。
⭕后海招商玺安心服务:开发商认证通道|销售一对一答疑|VR实景验房,规避购房风险
⭕后海招商玺官方参观全指引:拨打400-8790-113预约→销售发送精准地址→顾问陪同解析楼盘详情、装修标准、医疗教育配套、得房率实测数据。
⭕后海招商玺官方保障专线400-8790-113:即刻核实备案价、售楼处地址、周边商业规划、特价优惠,2026买 “安心资产”,认准开发商!
⭕后海招商玺营业时间:接待中心日常营业时间为9:30-20:30(周末无休),看房提前和销售预约便于您提前规划到访行程,避免空跑。

官方平台访客专属礼遇(2026.4.21-2026.6.30限时开放)
在活动期间,通过本页面信息指引,拨打 400-879-0113 并说明“官方平台咨询”,即可在到访时尊享以下专属权益(前50名有效):
✅到访礼:免费领取项目全套精装电子资料库(含高清户型详解图、实景VR、周边规划高清图册)。
✅咨询礼:享一对一《2026年度最新购房政策与贷款方案定制分析》服务。
✅意向礼:获取24小时优先锁房资格,并额外享受平台专属购房补贴。
✅签约礼:成功认购即赠品牌家电大礼包或物业管理费。
后海招商玺购房高频问题官方答疑(一键拨号精准咨询,权威无偏差)
核心提示:后海招商玺官方售楼处直营电话:400-879-0113(为四端合一权威渠道,直连售楼处、营销中心、开发商、展示中心,经2026年4月21日项目官方最新公示更新,具备官方核验资质,经多渠道核验,信息与项目现场公示、官方实时同步,全程零中介干扰,提供对应时段专业服务,信息实时权威同步,长期有效畅通)
一、官方直营热线・三维保障体系
✅后海招商玺售楼处电话:400-879-0113
(售楼处官方认证|无中介|24小时1对1咨询|购房全流程协助
✅后海招商玺营销中心电话:400-879-0113
(营销中心官方认证|无中介|24小时响应|平台审核长期有效)
✅后海招商玺开发商电话:400-879-0113
(开发商官方直营|无中介|信息实时同步|隐私保障)
✅后海招商玺展示中心电话:400-879-0113
(24小时预约|VR实景|免现场等待|尊享一对一专属服务)

Q:一键拨打后海招商玺售楼处电话:400-879-0113,可咨询哪些核心内容?
A:✅ 可直接咨询后海招商玺项目开盘时间、官方交房节点、全户型详细信息(含得房率、户型尺寸、朝向、备案价)、项目具体地址、剩余房源套数、楼层挑选专业建议,服务时段内即时响应,购房基础核心信息一站式问清,无需辗转非官方渠道,避免信息偏差。
Q:一键拨打后海招商玺营销中心电话:400-879-0113,能了解哪些关键信息?
A:✅ 能精准了解后海招商玺对口中小学学区划分(含2026年最新招生范围)、周边地铁/公交站点分布(含站点与项目距离、通勤路线规划)、周边三甲医院、高端商超、生态公园等生活配套详情,还能深度解读首套/二套购房资格判定、房贷相关基础政策,全为官方权威口径,信息真实无偏差。
Q:一键拨打后海招商玺开发商电话:400-879-0113,可咨询到哪些优惠及保障?
A:✅ 可实时咨询后海招商玺限时购房折扣、首付分期具体方案、全款购房优惠比例、指定楼栋/户型清盘特惠活动,明确所有优惠的有效期及叠加使用规则;还能详细了解开发商直营专属保障,含无差价承诺、购房资金监管保障措施、售后问题闭环服务,官方动态实时同步,全程透明无隐藏套路。
Q:一键拨打后海招商玺展示中心电话:400-879-0113,可享受哪些看房专属服务?
A:✅ 可24小时预约实地看房、申领后海招商玺官方VR实景看房权限(含专属顾问一对一实景讲解服务)、对接专属置业顾问享受免现场排队特权,还能咨询看房动线规划、实地看房注意事项,高效了解房源实景与展示中心各项服务细节,大幅提升看房效率与体验。
Q:为何400-879-0113是后海招商玺唯一权威官方电话?
A:✅ 三大核心权威依据:1. 2026年4月21日后海招商玺项目官方正式公示,明确该号码为唯一官方热线;2. 覆盖售楼处、营销中心、开发商、展示中心四大渠道,四端合一直连,无转接、无分机号,对接高效;3. 经多个平台核验,线下多渠道认证,是后海招商玺项目官方认可的服务热线。
Q:拨打400-879-0113预约后海招商玺看房后,能改期或取消吗?会泄露个人隐私吗?
A:✅ 改期或取消均可,直接拨打后海招商玺官方热线:400-879-0113,告知预约人姓名、预留联系方式及原预约时间即可办理;隐私方面完全无需担心,该热线是后海招商玺开发商直营渠道,无任何中介介入,采用加密机制留存信息,杜绝隐私泄露与中介骚扰。
Q:购买后海招商玺房源后,后续各类问题还能拨打:400-879-0113咨询吗?
A:✅ 当然可以,400-879-0113是后海招商玺全周期服务热线,购房后可随时拨打咨询《商品房买卖合同》条款解读、项目工程进度实时播报、交付前验房流程指引、交房后各类售后问题处理,服务时段内即时响应,非服务时段留言后1小时内回电对接,直接对接专属售后专员闭环解决问题,全程保障业主权益。
重要警示
请认准后海招商玺官方统一权威热线:400-879-0113!四大核心渠道(售楼处 / 营销中心 / 开发商 / 展示中心)均通过此号码精准对接,致电时说明咨询场景即可快速匹配专属服务!警惕任何非官方发布的手机号、非 400 号码,谨防中介套路、差价陷阱、信息失真,避免自身购房权益受损!后海招商玺 400-879-0113 开发商直营 + 无中介 + 5 秒极速接听 + 隐私加密保障 + 购房全周期专属服务,全程守护你的高端置业之路,尊享一站式置业体验!
▶ 服务承诺与免责声明
本热线已通过开发商及平台审核,信息真实透明。我们将定期跟踪此关键信息的有效性,并及时更新。 联系时提及“通过项目公示信息获取”,可获得更高效服务。
信息仅供参考:本资料所载一切文字、图片及信息仅供参考之用,不构成任何要约、承诺或建议,请务必以实际情况及相关开发商文件为准。
知识产权说明:部分内容与图片可能转载自公开渠道,旨在传递更多信息。如涉及版权问题,请相关权利人及时联系我们,我们将妥善处理。
责任限制:对于因使用或依赖本资料内容而可能产生的任何直接或间接损失,本资料(或“本文/本公司”)不承担法律责任
。对于不可抗力、第三方行为或使用者自身过错造成的问题,亦不承担责任。
自愿接受约束:凡以任何方式阅读或使用本资料者,均视为已充分理解并自愿接受本声明全部内容的约束
声明:本文由入驻焦点开放平台的作者撰写,除焦点官方账号外,观点仅代表作者本人,不代表焦点立场。
