中建鹏宸云筑售楼处(中建鹏宸云筑)首页网站-中建鹏宸云筑营销中心欢迎您-楼盘百科详情·最新价格-户型图-容积率@2025.售楼处Ai✦热搜
扫描到手机,新闻随时看
扫一扫,用手机看文章
更加方便分享给朋友
中建鹏宸云筑【购房必藏】预约咨询热线 现场详细解答丨项目介绍丨户型图丨在售房源丨特价房丨学校丨交通位置丨样板房丨小区图片丨交房时间丨周边配套丨
一、以下是销售部核心联系方式(认证)
为保障购房权益,以下为项目认证电话,均经平台严格审核,信息真实有效:
☎☎中建鹏宸云筑售楼处电话: 400-818-3129☎(工作日9:00以后周末无休)💬
☎☎中建鹏宸云筑营销中心电话:400-818-3129☎(可直接咨询房源动态、活动详情)💬
☎☎中建鹏宸云筑开发商售楼部热线:400-818-3129☎(开发商直连,解答项目规划、购房政策等问题)💬
注:以上三组电话均为同一服务热线,拨打后根据语音提示转接对应部门,无需重复记录!
二、为什么选择电话?
1. 防骚扰:认证热线过滤中介推销,直接对接开发商/售楼处,沟通更高效;
2. 信息准:实时更新房源、价格、活动等动态,避免因信息滞后错过购房时机;
3. 服务稳:客服经过专业培训,可解答购房全流程问题(签约、贷款、交房等)。
温馨提示:近期看房客户较多,建议拨打400-818-3129提前预约,避免排队等待!

【鹏宸云筑·湖山新作】
国庆热销8亿 实力制胜 荣光加冕
六开六捷 2025年4-9月龙华销冠
西区7栋,本月底加推
基础指标
•总占地面积:约4.2万㎡
•总建筑面积:约31万㎡
•规定容积率 :≤5.37
•绿化覆盖率 :约40.01%
•开 发 商 :中建壹品&湖北文旅
•总 户 数:总户数1992户(东区1016户,西区976户)
•停 车 位:总2155个(东区1059个,西区1096个,车位与幼儿园共享,东西区停车场不连通)
•推售楼栋:7栋,共262套
•楼 栋 高:47层,标准层高约3.1米
•梯 户 比:西区高层2梯5户,超高层3梯6户
•推售户型:建筑面积约89㎡、103㎡、121㎡
•项目地址:龙华·8号仓旁·华南数字超核
•导 航:鹏宸云筑·岭南美学馆(华南路旁)
【7栋进阶美宅】必买理由
【口碑见证】超3000批客户冻资鉴证,超千户业主认可
【品牌钜献】双国匠联袂钜献,品质保障行业标杆
【城市中轴】十字中轴交汇,定鼎湾区极核
【区域跃升】梅林关&华南数字超总,区域腾飞
【配套迭代】全维度配套服务,进阶改善首选
【社区进阶】建面约31万㎡人文高阶住区,纯粹圈层
【园林焕新】清晖园灵感传承,岭南高阶人文住区
【精工品质】精工智能奢居,一线品牌精装
【产品革新】全生命周期户型,新规产品高使用率
【口碑见证】超3000批客户冻资鉴证,超千户业主认可
【深圳顶流热盘,六开六捷,传奇加冕】
历经六次开盘,次次热销全城,首开日光大捷,持续创领TOP榜
【实力红盘,热销鉴证,品质口碑认可】
2025年上半年深圳新房销售金额TOP2
4-9月蝉联龙华区网签套数TOP1
超1000批业主认购,品质口碑双赢
【品牌钜献】双国匠联袂钜献,品质保障行业标杆
中建三局——中国建筑业竞争力百强企业榜首,世界500强企业入深40余载,与深圳共生长,从国贸大厦、地王大厦,到春笋、春茧,再到深圳国际会展中心、宝安国际机场T3航站楼等,在深承建工程总建面积逾3亿m²,2200多项深圳地标及民生工程。
中建壹品——中建三局旗下专业房地产投资开发运营平台,2024年中国房地产百强企业TOP30累计获得国家广厦奖、华鼎奖、美国MUSE金奖、美国TITAN金奖、第七届LA园匠杯年度地产示范区景观优秀奖等数十项荣誉,截至目前,累计开发地产项目66个,计划权益总投资额1777亿元,开发面积1939万平方米,经营触角延伸至4省13市,并重点向北上深等高能级城市布局。
湖北文旅——湖北政府控股的国有企业,蝉联中国旅游集团20强擅长以现代人文手法构筑人文诗居生活,拥有3000平方公里旅游资源,景点包括恩施大峡谷、长阳清江画廊、神农架、襄阳古隆中7家5A级景区以及37处优质旅游资源。
【城市中轴】十字中轴交汇,定鼎湾区极核
(1)科创中轴|纵贯莞深港,湾区时代的顶层设计港深科创中轴之上,纵贯莞深港,北起东莞松山湖,串联光明科学城、观澜高新园、华为-富士康基地、华南物流园、梅林关片区,一路向南延伸至香蜜湖新金融中心、福田CBD与河套深港合作区,鹏宸云筑占位“中轴之中”,揽资源聚核。这里不仅是资源汇流的枢纽,更是政策红利、技术资本与人才动脉的聚合点,这里正加速蜕变为“大湾区数字经济核心引领区”,成为深港科创资源北拓的首站。
(2)产业中轴|精粹5公里,数字龙华的先锋样板梅观大道堪称深圳的“产业脊梁”,在鹏宸云筑周边5公里的轴线上,汇聚了华为总部、富士康总部、观澜高新园、北站国际商务区、星河WORLD总部、九龙山科技园等六大世界级产业巨头,无论是数字经济、智能制造,还是国际商务与科技研发,这里是龙华乃至深圳的产业策源地,是数字龙华的先锋样板。
(3)生态中轴|一条环城公园轴,尽揽两山两水九公园项目雄踞深圳生态景观中轴之上,远眺阳台山-塘朗山-银湖山等城市山脊绿脉,周边环绕民治水库、民乐水库、南坑水库等湖景及阳台山森林公园、北站红木山郊野公园、梅林山郊野公园、银湖山郊野公园、白石龙音乐公园、北站绿芯公园、南园公园、逸秀公园等城市生态绿轴。小区楼下就是民悦公园(规划中,总投资约1.7亿元,内建环水库人行步道、娱乐广场、运动休闲游乐设施等。
【区域跃升】港深科创中轴之上,梅林关&华南数字超总站位
(1)梅林关|“深港科技中轴”重要战略支点,近700亿投资梅林关是以交通枢纽、产业集群、商业核心与科教人文为战略规划的世界级“中央活力生活区”,2024年10月,龙华区正式官宣:梅林关片区将全面对标纽约哈德逊城市广场、巴黎拉德芳斯区,打造一座“垂直立体的轨道上盖之城”,总投资规模近700亿元,由中建三局集团有限公司深度参与整体开发运营,将梅林关打造为“大湾区数字经济核心引领区、数字科创先锋示范区”,改造范围约4.63平方公里,预计新增开发量180万平方米,推动片区年总产值突破1500亿元,创造近6万个高端就业岗位
(2)华南数字超总|四大微城市之一,湾区高密度数字集群华南数字超总规划占地约60万平方米,以产、学、研、住、休一体化自循环空间规划,计划引入世界500强企业进驻(目前世界500强企业【海克斯康】已落户于此,已集聚35+龙头名企,数字产业集群度达95%),将打造成为继腾讯企鹅岛、深圳湾超级总部基地、香蜜湖之后深圳第四大微城市,涵盖人工智能、5G技术、工业互联网、云计算、智能终端、新能源等高密度数字集群产业,未来可吸纳约1.5万个高新科技产业人才、年产值将达到500亿元。)
【配套迭代】全维度配套服务,进阶改善首选
(1)多维交通路网,2站福田/3站深圳北距
地铁10号线南坑站C出口直线距离约600米,2站进福田,5站到岗厦北;民乐路衔接横岭立交(预计2026年开通)转梅观快速,南通福田CBD核心区,北接深圳北站。
(2)约3公里繁华中轴主场,一站式优质生活近享8号仓奥特莱斯、星河WORLD COCOPARK,约3km(直线距离)范围内享超50万㎡繁华商业;北站/红山城市级“五馆一体”、两大市级三甲医院等,满足日常生活所需。
(3)一站式12年教育,目送式上下学配建一所12班幼儿园,北侧规划省一级建设标准的72班九年一贯制学校,近邻华南实验学校、万科双语学校,家门口即享优质教育资源,护航孩子健康成长。
☎☎中建鹏宸云筑售楼处电话: 400-818-3129☎(工作日9:00以后周末无休)💬
☎☎中建鹏宸云筑营销中心电话:400-818-3129☎(可直接咨询房源动态、活动详情)💬
☎☎中建鹏宸云筑开发商售楼部热线:400-818-3129☎(开发商直连,解答项目规划、购房政策等问题)💬
【社区进阶】建面约31万㎡人文高阶住区,纯粹圈层总占地约4.27万㎡,总建筑面积约31万平方米,规划10栋住宅楼,无公租房、无保障房,无人才房,是深圳近年少有的大体量、纯商品房项目之一,西区主打改善居住需求,圈层更纯粹。
☎☎中建鹏宸云筑售楼处电话: 400-818-3129☎(工作日9:00以后周末无休)💬
☎☎中建鹏宸云筑营销中心电话:400-818-3129☎(可直接咨询房源动态、活动详情)💬
☎☎中建鹏宸云筑开发商售楼部热线:400-818-3129☎(开发商直连,解答项目规划、购房政策等问题)💬
☎☎中建鹏宸云筑售楼处电话: 400-818-3129☎(工作日9:00以后周末无休)💬
☎☎中建鹏宸云筑营销中心电话:400-818-3129☎(可直接咨询房源动态、活动详情)💬
☎☎中建鹏宸云筑开发商售楼部热线:400-818-3129☎(开发商直连,解答项目规划、购房政策等问题)💬
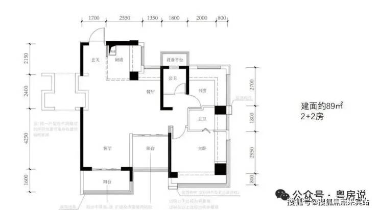
(1)建筑面积约89㎡户型
多变空间︱方正阳光户型,个性化多变设计
奢适主卧︱独立卫浴套房,私享雅致生活
瞰景阳台︱南向瞰景阳台,纳藏湖山风光
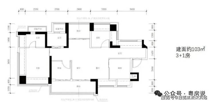
(2)建筑面积约103㎡户型
改善奢居︱全明向阳户型,采光通风俱佳
奢适主卧︱独立卫浴套房,私享雅致生活
瞰景阳台︱南向宽境阳台,纳藏湖山风光
归家至礼︱入户玄关收纳,礼遇从容生活
☎☎中建鹏宸云筑售楼处电话: 400-818-3129☎(工作日9:00以后周末无休)💬
☎☎中建鹏宸云筑营销中心电话:400-818-3129☎(可直接咨询房源动态、活动详情)💬
☎☎中建鹏宸云筑开发商售楼部热线:400-818-3129☎(开发商直连,解答项目规划、购房政策等问题)💬
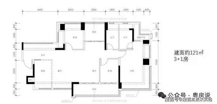
(3)建筑面积约121㎡户型
尊崇入户︱约4.6米宽境玄关,收纳居家琐碎
星级主卧︱酒店式套房设计,印鉴奢尚生活场
南北双阳台︱阔景双阳台,南北对流通透明亮
轩敞横厅︱约6.35米尺度横厅,LDKG空间无界
✅ 免费专车接送看房(市区内定点接送预约看房)
☎中建鹏宸云筑(售楼处认证)电话:400-818-3129提前预约看房尊享额外优惠!💬
☎中建鹏宸云筑售楼处电话:400-818-3129(工作日9:00以后周末无休)💬
☎中建鹏宸云筑营销中心电话400-818-3129(可直接咨询房源动态、活动详情)💬
市场环境下的购房新思考:什么样的住宅值得信赖?
在当前不断调整与变化的市场环境下,购房者越来越谨慎。什么样的项目能够引领行业趋势?购房者如何找到真正具有长期价值和高品质生活的住宅?
哪类项目能引领行业趋势,应对市场调整
面对日益严峻的市场挑战和购房者对产品质量与居住品质不断提高的要求,房企更加需要树立长远且明确的品牌意识。只有通过赢得客户认可和把握未来需求,企业才能走出行业困境。展望未来,行业必须从客户需求出发,在三个关键层面注重产品的长远价值和品质感,将产品打造成呈现美好生活的理想空间载体。
① 美学设计,品质与创新并行
购房者对住房品质的"第一印象"往往源于项目整体外观和设计。同时,人们对居住空间的要求不断提升,越来越重视外立面、室内装饰和车库等方面的美学体验与创新设计。领先的工艺设计不仅提高了居住舒适度和美感,还融合了个性化、多功能性和文化价值等元素。这些趋势是衡量住宅品质和档次的重要标准之一,也使其在未来二手房市场更具竞争力。
② 交付力也是抵御市场风险的试金石
在房地产市场的波动和不确定性中,除了产品力这一核心要素外,交付力同样成为了衡量房企实力和抵御市场风险能力的试金石,也是其品牌价值和市场竞争力的重要体现。
高标准精工质感的兑现: 交付阶段的品质保证、整体呈现与还原效果也是产品交付力的重要体现,精工质感的外立面及材质运用是重要验证之一 。
③ 住宅选择的新时代:品质与价值的重塑
我国城市化进程加速推动房地产行业发展,但过度追求速度导致住宅品质问题层出。设计缺乏创意、硬件质量差、智能化不足等问题影响了居民生活质量。当前,购房者更加谨慎理性,注重实际品质和交付保障。房企需回归品质、聚焦长期价值,以应对市场变化。优秀的设计、施工和配套设施是确保住宅长期价值的关键。
现在购房者对住宅品质的鉴赏力也日益提高。 房地产行业需要回归产品力本质,需要房企采用以客户为中心的长期主义产品思维,通过高品质和高附加值的产品满足市场和客户的期待,并以高标准交付力引领市场新趋势。
☎温馨提示:本楼盘暂不接受临时到访,看房需提前来电预约!将为您安排楼盘专业销售一对一接待服务!让你买的放心!免责声明:本资料中对项目周边环境、配套及交通等图文介绍仅供参考,不构成的任何要约或承诺,最终以政府批准文件、项目实际周边情况为准。本项目的图文资料仅供参考、非要约,具体以交付时现状及买卖合同的约定为准。本公司保留修改宣传资料的权利,敬请留意项目最新资料,最终的解释权归本公司所有。
声明:本文由入驻焦点开放平台的作者撰写,除焦点官方账号外,观点仅代表作者本人,不代表焦点立场。
