《三亚国际金融中心首页网站-2025年三亚国际金融中心+房价+户型图+小区环境+配套》
扫描到手机,新闻随时看
扫一扫,用手机看文章
更加方便分享给朋友
——世茂三亚国际金融中心 ——
全球自贸港三亚CBD芯资产
SHIMAO SANYA IFC
世茂让世界想象三亚

世茂集团是一家国际化、综合性大的型投资集团,经过三十多年的发展,集团布局全国100多个核心发展城市,涉及地产、商业、物管、酒店、主题娱乐、文化、金融、教育、健康、高科技等产业领域,形成了多元化业务并举的“可持续发展生态圈”。

项目基础信息

世茂三亚国际金融中心
开发商:世茂集团
占地面积:5.77万㎡
建筑面积:29.38万㎡
建筑密度:35%
容积率:4.5
绿化率:35%
项目业态:写字楼/全球商业精品购物中心
物业公司:世茂服务(HK00873)有独特影响力的商业地产运营商
全球财富中心:全球自贸港·三亚·中央商务区
项目一期
占地面积:1.06万㎡
建筑面积:6.3万㎡
总高:100米(共23层)
区位图
鸟瞰图

核心价值
海南自由贸易港—举大国之力·造世界之海南
海南自贸港规模之大、定位之高不同于以往所有规格。将海南打造成为中国面向世界的经济门户,通过高度自由的制度和低税率,给世界企业提供优质的发展机会。

三亚——海南自贸建设排头兵
三亚是南中国对外门户,凭借优质城市基础奠定自贸核心城市地位,形成自贸城市发展标杆;投资三亚就是中国这个大公司的合伙人,享受自贸发展带来的时代机遇以及红利。

三亚中央商务区——中国对外经贸门户
中央商务区雄踞三亚核心位置,同享城市核心位置、城市CBD、自贸港重点产业园区三大核心要素,规划自贸港总部经济及中央商务核心功能,奠定中国对外经贸门户地位。

世茂三亚国际金融中心——自贸港优质资产
世茂落子三亚中央商务区,名师设计打造中央商务区大型商业标杆,近30万方商业综合体聚焦区域人群,塑造区域标杆商圈,成就优质芯资产


展示区实景



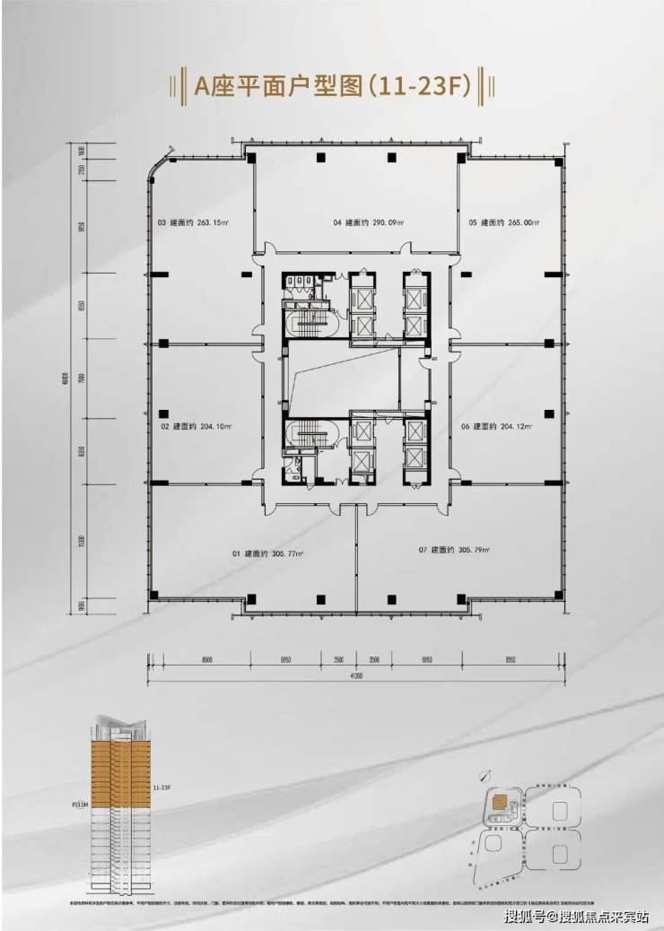
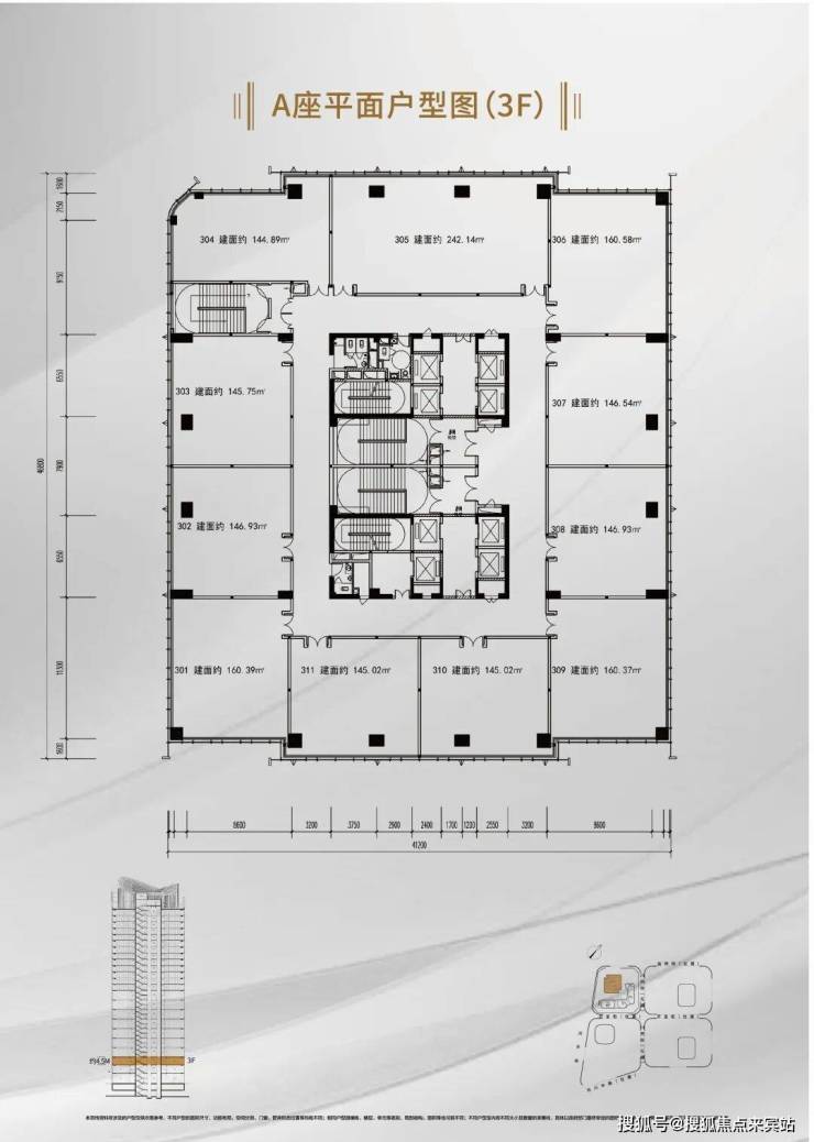
——产品户型——
1号楼(总高100m 23层)
建面约145-290㎡ 精品商业(1-3F)
1F 挑高6m 面积约:200-245 ㎡
2F 挑高4.5m 面积约:200-280 ㎡
3F 挑高4.5m 面积约:145-245 ㎡
建面约100-306㎡ 云端商务智慧空间/总裁会客厅
【办公产品】
4-10F 挑高 5.40m 面积约:100-150-200㎡
【平层办公】
17、19-23F 挑高3.55m 面积约:200-300㎡
——产品户型——
建面约33-224㎡ 一线临街商铺(1-5F)
【1F挑高6米】面积约:33-123平 ㎡

【2F 挑高4.5米】 面积约:75-174 ㎡

【3F商业+办公挑高4.2米】 面积约:95-587㎡

【4、5F办公挑高4.2米】 面积约:587-601 ㎡


项目二期
效果图

业态为写字楼及全球商业精品购物中心。
占地1.56万方,总建筑面积8.92万方,总高121米共23层。
1号楼1F商业及10-23F办公,2号楼1-5F商业。
效果图

——产品户型——
建面约59-363㎡ 一线临街商铺(1-5F)
【1F挑高6米】面积约:59-208平 ㎡(33套)
【2F挑高4.5米】面积约:97-363平 ㎡(13套)
【3F挑高4.5米】面积约:91-320平 ㎡(13套)
【4-5F挑高4.5/4米】面积约:89-235平 ㎡(7套)
SHIMAO
世茂三亚国际金融中心
敬候全球人物争藏
项目地址
全球自贸港·三亚·中央商务区

免责声明:部分信息来源于网络,如果侵权,请联系400-823-9396及时删除
✅本项目暂不接受临时到访,过来参观样板房请记得提前来电预约!
声明:本文由入驻焦点开放平台的作者撰写,除焦点官方账号外,观点仅代表作者本人,不代表焦点立场。
