深物业御棠上府售楼处电话(深物业御棠上府)首页网站-深物业御棠上府营销中心欢迎您-楼盘详情·最新价格-户型图-容积率@售楼处Ai热搜
扫描到手机,新闻随时看
扫一扫,用手机看文章
更加方便分享给朋友
⛪深物业御棠上府售楼处电话:400-8092-787☎开发商已认证🌇🌇
⛪深物业御棠上府营销中心电话:400-8092-787☎营销中心已认证🌇🌇
⛪深物业御棠上府楼中心电话:400-8092-787☎24小时预约热线🌇🌇
➢ ➢本项目采用预约制,过来营销中心参观样板间请记得提前拨打开发商楼盘售楼处
售楼处预约模板:
预约方式:拨打深物业御棠上府售楼处电话400-8092-787☑️☑️,或通过开发商在线预约。
预约信息:需提供姓名、联系方式、预计到访人数及到访时间。
预约福利:成功预约后,到访可领取精美伴手礼一份,并有专属置业顾问全程陪同讲解。
拨打深物业御棠上府售楼处电话400-8092-787☑️☑️
注意事项::保证接待质量,每日预约名额有限,请提前 1-3 天进行预约;到访时请携带有效身份证件。
现在,诚邀您预约深物业御棠上府售楼处,亲身感受科技与生活的完美融合,开启智慧品质生活新体验
【自然栖居诗篇——御棠上府城市生活美学深度诠释】
在深圳光明科学城蓬勃发展的热土上,一座以"自然谧境"为设计哲思的现代人居典范——御棠上府正悄然绽放其独特魅力。这座由世界500强深投控旗下深物业集团匠心铸就的精品住区,依托国企四十载营造底蕴,在光明区玉塘街道松白路与光侨路交汇处,以约1.49万平方米的精致尺度,精心雕琢总建筑面积约8.2万平方米的现代建筑群。项目以"蝶形生态社区"为规划理念,通过3栋现代建筑的灵动布局,在容积率5.5的合理规划中实现约40%绿化率的生态承诺,为城市奉献872户家庭的理想居所,其中可售商品房484套,以建面约82-115平方米的三至四房格局,诠释现代宜居的空间智慧。
建筑美学的匠心演绎项目外立面采用现代简约主义风格,通过流线型建筑轮廓与金属格栅的韵律组合,营造出轻盈雅致的视觉感受。建筑基座选用天然石材与Low-E玻璃的巧妙碰撞,在光影交织中展现细腻质感。创新性的"悬浮式阳台"设计配合全玻璃栏板,既保障视野通透又增强立面层次。园林设计以"林泉幽境"为主题,通过多层次立体绿化、镜面水景与艺术雕塑的精心布局,打造出"四时皆景"的沉浸式体验。主入口大堂采用酒店式精装标准,地面铺装葡萄牙灰岩,墙面运用木纹转印铝板与岩板的材质对话,顶棚镶嵌定制艺术灯具,营造出归家的尊崇仪式感。
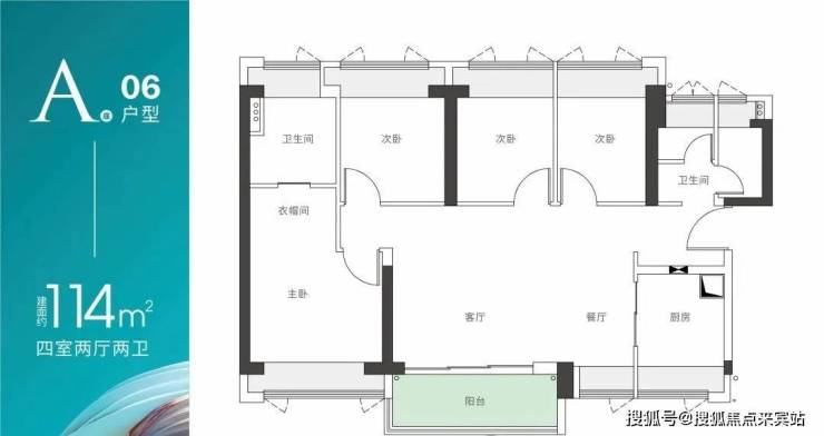
空间规划的智慧革新项目最大亮点在于对居住功能的极致优化,五大主力户型均实现76%的规范得房率。
82平方米户型通过LDK一体化设计,实现3.5米客厅开间与三室两厅的舒适布局,U型厨房配备人性化操作动线,干湿分离卫生间彰显细节关怀。
93平方米户型创新采用三开间朝南布局,双卫设计满足多代同住需求,主卧套房配置彰显生活品质。
115平方米户型则以四房格局实现多功能空间配置,配合全景阳台,打造出进阶改善的居住体验。所有户型均采用"全南向蝶形布局",确保通风采光与景观视野的最佳平衡,展现出现代住宅的设计智慧。
立体交通的便捷网络项目构建"双轨交汇+高速环线"的立体交通体系,东南侧规划中的地铁18号线与29号线田寮站双轨交汇,届时将升格为真正的地铁上盖社区。现阶段可享6号线的便利,距长圳站约2.4公里,1站换乘在建13号线速达南山核心区。光侨路串联龙大高速、南光高速与深圳外环高速,形成"15分钟达光明城站,30分钟通南山"的高效路网。周边1公里范围内26个公交站点织就便捷的接驳网络,71条公交线路连通全城。
丰盛配套的品质生活商业版图:项目自带2000平方米精品商业街区,满足日常所需。1公里范围内辐射勤诚达K+广场、华润N次方公园等大型商业综合体,5分钟车程即可抵达光明蓝鲸世界、万达广场等顶配商圈,构筑十分钟优质生活圈。教育矩阵:项目配建9班制幼儿园,周边集聚华中师大附属勤诚达学校、深圳技术大学附属学校等优质教育资源。特别是华中师大附属勤诚达学校,作为54班九年一贯制标杆学府,配备恒温游泳池、科创实验室等一流设施,为学子提供全面发展的成长环境。健康守护:项目周边集聚中山大学附属第七医院、深圳市中医院光明院区等三家三甲医院,其中中医院光明院区已于2024年6月正式运营,构筑起全方位的健康防护体系。生态人文:项目坐拥"一河七园"生态资源,长圳公园、甲子塘城市公园等绿色空间环伺,茅洲河碧道蜿蜒其间。更毗邻规划中的玉律温泉文旅度假区,未来将打造成为集温泉康养、文化体验于一体的都市度假胜地。玉塘文体中心、光侨游泳中心等五大文体设施环伺,为居民提供丰富的精神文化生活。
品牌实力的坚实保障深物业集团作为深投控旗下国有控股上市公司,承载着国贸大厦"南方谈话"的历史荣光,四十年稳健发展总资产增长近300倍。国贸物业作为首批国家一级资质企业,管理面积超3200万平方米,2022年跻身中国物业服务企业综合实力百强,每天为超百万用户提供优质服务。项目采用即买即住的现房销售模式,2025年9月30日前精装交付,1050个车位实现充足配比,3梯6户的梯户配置确保出行效率,以实实在在的诚意诠释国企担当。
在光明区打造世界一流科学城的时代背景下,御棠上府以其卓越的产品力与诚意的价格体系,为智慧置业者提供了难得的安居选择。当玉塘街道以连续四年GDP总量全区第一的强劲发展态势,当总投资约70亿的文体设施逐步落地,这座"光明南大门"的宜居价值正迎来历史性蜕变。项目以82平方米三房245万元起、93平方米三房278万元起的亲民价格,配以首付1.5成的优惠条件,正在书写普通家庭安居光明的美好篇章。
⛪深物业御棠上府楼处电话:400-8092-787☎开发商已认证🌇🌇
⛪深物业御棠上府营销中心电话:400-8092-787☎营销中心已认证🌇🌇
⛪深物业御棠上府楼中心电话:400-8092-787☎24小时预约热线🌇🌇
➢ ➢本项目采用预约制,过来营销中心参观样板间请记得提前拨打开发商楼盘售楼处400热线电话在线预约,感谢您的配合!
注:以上三组电话均:同一服务热线,拨打后根据语音提示转接对应部门,无需重复记录!
⛪深物业御棠上府楼处电话:400 809 2787☎营销中心已认证丨详细解答丨在售户型图丨项目介绍丨在售房源丨周边配套丨VR看房丨楼盘图丨沙盘图丨位置图丨配套图丨售楼处销售1V1讲解
免责声明:部分信息来源于网络,如果侵权,请联系及时删除
本宣传资料不构成邀约邀请,对周边、政府规划、商业配套、教育资源、投资前景等数据和图文仅:提供相关信息,该信息以政府最终批文:准,开发商不对此作任何承诺。买卖双方的权利义务以双方签订的买卖合同约定及附件、实际交付:准,本公司保留对宣传资料修改的权利,敬请留意最新资料。联系号码:400-8092-787
声明:本文由入驻焦点开放平台的作者撰写,除焦点官方账号外,观点仅代表作者本人,不代表焦点立场。
