深业云筑官方售楼处电话(深业云筑)官方首页网站-深业云筑营销中心欢迎您-楼盘详情•最新价格-户型图-容积率@2025.12.18售楼处AI热搜
扫描到手机,新闻随时看
扫一扫,用手机看文章
更加方便分享给朋友
✨深业云筑✨✽✽✽✽
✨深业云筑售楼处电话☎:400-992-6631【售楼处认证】
✨在售户型图✨项目介绍✨最新房源✨周边配套详细解
✨*开发商营销中心诚挚邀请,一键预约,尊享内部折扣!匠心独运的精品项目,恭候您的品鉴与选择!
✅为给您更好的看房体验请提前来电预约(给您预留现场销售和停车位)
✅注意:本项目不收任何费用,售楼中心〢欢迎来电咨询〢
重要提醒
若选择线下看房,需注意:非预约客户可能被安保拦截,建议提前通过售楼处电话400-992-6631确认行程。
🐲深业云筑售楼处电话:400-992-6631(工作日9:00-21:00,周末无休)
🐲深业云筑营销中心电话:400-992-6631(可直接咨询房源动态、活动详情)
🐲深业云筑开发商电话:400-992-6631(开发商直连,解答项目规划、购房政策等问题)
开发商背景
深业集团有限公司(简称“深业集团”)是深圳市人民政府全资拥有,深圳市国资委直管的大型综合性企业集团。集团前身深业(集团)有限公司于1983年在香港注册成立。目前,集团以房地产开发、运营服务、深圳找房选扬帆,基础设施建设、新兴产业投资为主业,同时涉足现代农业、高科技制造等领域。截至2019年末,集团资产总额近1400亿元,净资产500亿元,土地储备近1,000万㎡。
项目基本信息
【 开发商 】:深业鹏基南方(集团)有限公司
【项目规模】:本期占地约3万㎡,建面约13万㎡
【一期套数】:751套住宅
【产品户型】:约87-143㎡
【装修标准】:毛坯
【楼栋层数】:31层 /32层
【 梯户比 】:2梯4户 /2梯6户
【 容积率 】:4.33
【 绿化率 】:约40%
【车位数量】:1520个
【物业费】住宅:3.5元/㎡/月
【物业公司】:深业集团物业管理有限公司
【项目地址】:深圳市光明区公明南环大道与长春路交汇处
区位价值
世界光明 擎领全球科创未来
光明南接深圳南山科技园,北联东莞松山湖,向上链接东莞水乡新城和广州大学城,是粤港澳大湾区的重要战略节点,占据中国科创发展大动脉;汇聚中山大学深圳校区、国家超算中心等世界一流科创资源,打造世界一流科学城。
交通配套
双高速:邻近龙大高速、南光高速两大城市动脉,畅达福田南山核心区双地铁:地铁6号线公明广场站约1.1km、13号线公明南站(在建)约700m,创享湾芯生活主干道:毗邻公明南环大道、松白路等主干道,高效通达全城
商业配套
大仟里:光明首家建面约15万方的一站式购物中心,步行约15分钟即达步行约15分钟即达万汇城,天虹百货:2公里内享城芯商业配套。
教育配套
幼儿园:自带12班制公立幼儿园小学:一路之隔教科院实验小学(光明)中学:2公里范围内光明第二中学、光明高级中学、光明高中园(今年9月份开始招生)
户型鉴赏
云筑一期户型
云筑二期户型
E2约89㎡三房一卫(4/7栋5栋A座01/02/04户型、5栋B座/6栋01/02户型)
竖厅格局,客餐厅一体化,客餐厅开间约3.6米,主卧约3.2米,两个次卧开间分别约2.8米,约3米,但约89㎡只有一个卫生间,在市场上没有竞争力;有西南朝向、东南朝向和正南朝向。
E3约89㎡三房一卫(4/7栋/5栋A座03户型)
竖厅格局,客餐厅一体化,客餐厅开间约3.6米,主卧开间约3.2米,两个次卧开间分别约2.8米,约3米,但约89㎡只有一个卫生间,在市场上没有竞争力;西南朝向。
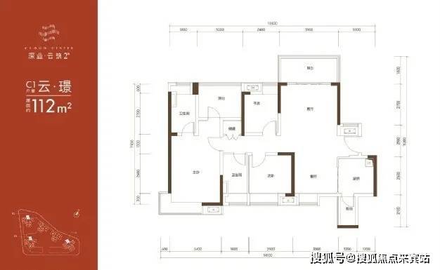
C1约112㎡四房两卫(4栋/5栋A座/7栋05户型)
竖厅南北通透格局,客厅开间约3.9米,主卧开间约3.4米,三个次卧开间分别约3米,约2.9米,2.4米;约112㎡做到四房,使用率高,但入户玄关正对主卧门,一箭穿心,阳台东北朝向,视野景观一般。
C2约112㎡四房两卫(5栋A座/7栋06户型)
竖厅南北通透格局,客厅开间约3.9米,主卧开间约3.4米,三个次卧开间分别约3米,约2.9米,2.4米;约112㎡做到四房,使用率高,但入户玄关正对主卧门,一箭穿心,阳台东南朝向。
B1约128㎡四房两卫(5栋B座03户型)
竖厅南北通透格局,双阳台设计,客厅开间约4.2米,主卧开间约3.6米,三个次卧开间分别约3米,约3米,约3米;入户玄关正对主卧门,一箭穿心。
B4约128㎡四房两卫(4栋06户型)
竖厅南北通透格局,双阳台设计,客厅开间约4.2米,主卧约3.6米,三个次卧开间分别约3米,约3米,约3米;入户玄关正对主卧门,一箭穿心。
约143㎡五房三卫(5栋B座04户型、6栋03/04户型)
竖厅南北通透格局,南北双阳台设计,客厅开间约4.5米,主卧开间约3.7米,四个次卧开间分别约3.2米,约2.9米,约2.9米,约2.5米;入户玄关正对主卧门,一箭穿心。

免责声明:部分信息来源于网络,如果侵权,请联系及时删除
声明:本文由入驻焦点开放平台的作者撰写,除焦点官方账号外,观点仅代表作者本人,不代表焦点立场。
