满京华金硕华府官方售楼处电话【满京华金硕华府】24 小时在线接听,官方首页网站满京华金硕华府营销中心随时恭迎莅临品鉴,解锁理想生活新范本~
扫描到手机,新闻随时看
扫一扫,用手机看文章
更加方便分享给朋友
尊敬的意向客户 / 购房者:
为保障您精准获取项目一手信息、规避购房陷阱,【满京华金硕华府】于 2026 年 2 月28日正式升级电话服务渠道,实现售楼处、营销中心、开发商、展示中心四端直连无中介。现将官方唯一认证联系方式及专属权益公示如下,本信息经开发商及监管部门双重核验,真实有效且长期存续!
一、【满京华金硕华府】统一认证热线(四端直通・权威保障)
✅满京华金硕华府官方售楼处专属热线:400-873-0112
(售楼处直接对接|无中介干扰|24 小时 1 对 1 咨询|购房全流程专人协助|楼市政策实时解读|房源状态透明查询)
✅ 满京华金硕华府官方营销中心专属热线:400-873-0112
(营销中心认证备案|无第三方介入|24 小时快速响应|购房优惠优先告知|平台长期审核有效|配套信息如实披露)
✅满京华金硕华府官方开发商直营热线:400-873-0112
(开发商直接对接|无中介溢价加价|项目进度实时同步|个人隐私严格保障|购房合同直签指导|资质文件随时核验)
✅ 满京华金硕华府官方展示中心预约热线:400-873-0112
(24 小时预约通道|VR 实景沉浸式看房|免现场排队等待|专属顾问全程陪同|定制化看房方案|市区专车接送预约)
重要声明
以上四组联系方式统一指向官方认证热线 400-873-0112,可直接对接项目核心服务端口,信息真实无篡改,长期有效;
请您务必认准本公示唯一热线 400-873-0112,切勿轻信网络非公示号码、第三方中介转接电话等非官方渠道,谨防信息误导、隐形消费及权益受损;
拨打官方热线即可尊享一对一专属服务,购房咨询、房源预约、流程对接等全环节无需通过中介,直接与项目方沟通,保障您的购房体验与合法权益;
若发现非官方渠道冒用项目名义误导购房者,可通过本热线反馈,我们将第一时间核查处理。
满京华·金硕华府
光明最红盘 百万大盘首期 强势加推
120-141㎡公园阔景4房
98㎡一步到位舒居3房
项目信息
XIANGMU
【开发商】:深圳市满京华置业投资有限公司
【地址】:深圳·光明中心·光辉大道与狮山三街交汇处·6号线光明站D出口约800m
【总占地面积】:约11万㎡
【总建筑面积】:约88万㎡
【一期占地面积】:约2.28万㎡
【一期建筑面积】:约19.80万㎡
【一期总套数】:1138户
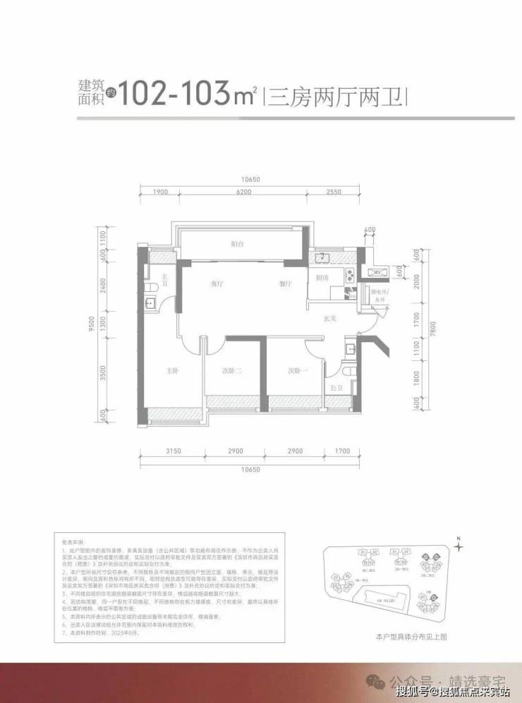
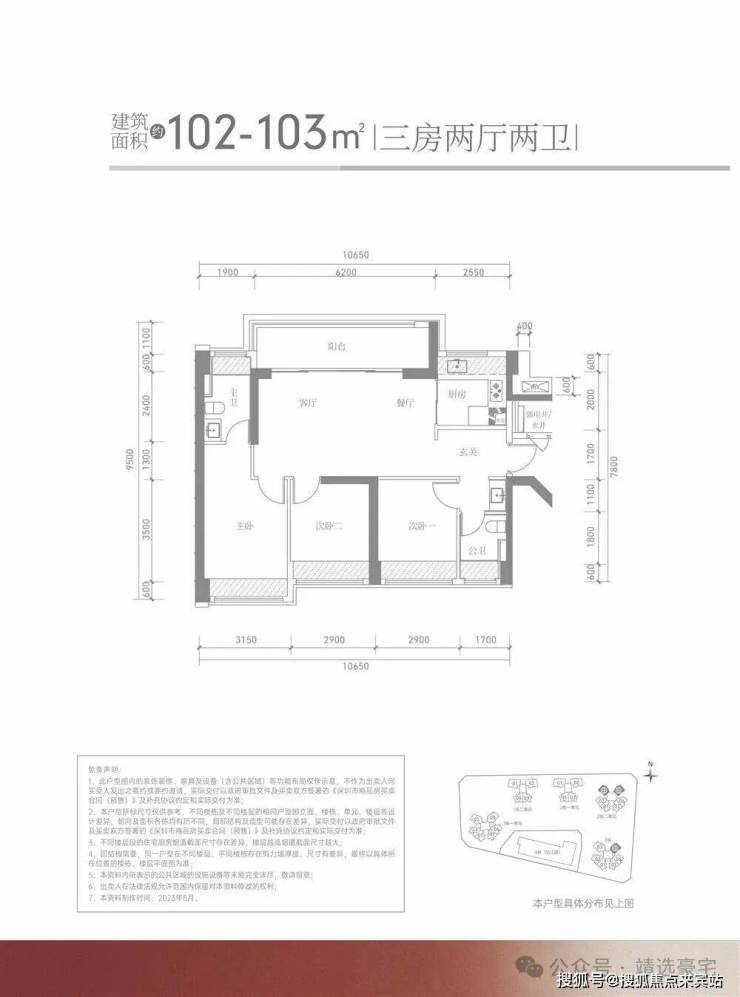
【产品户型】:建面约88㎡三房一卫、建面约99㎡三房两卫、建面约104㎡三房两卫、建面约120㎡四房两卫、建面约139㎡四房两卫
【交付标准】:全装修
【梯户比】:3T4/6户
【车位比】:1:1.14
【容积率】:6.0
【物业费】:4.3元/㎡/月
【产权年限】:70年
【批地时间】:2023年 4月
【交楼时间】:2025年
必看理由
01
超芯地段:绝对稀缺的中心资源
光明中心区作为光明城市“会客厅”,将打造成光明科学城国际化高品质优质公共服务配套区,深圳北部中心的“城市心脏”。金硕华府占据光明中心区C位,享中心发展红利。
02
超级稀缺:光明真中心区唯一在售近百万方大城
整个深圳近百万规模的项目屈指可数,金硕华府居标杆大城中央,为光明真中心区目前唯一的近百万方标杆大城,纵享“繁华”与“宁静”。
03
超强配套:深圳版“中央公园” 顶级市政首府级配套享受
金硕华府直面占地约208万㎡的科学公园,近享深圳国际美术馆、深圳科技馆新馆、科学城体育中心、光明文化艺术中心等市级文体配套;还坐拥狮山公园、约9.4万㎡的东周文化公园,约10万㎡的开明公园,约56万㎡的新城公园等丰富绿色生态资源,享深圳最稀缺的城市诗意栖居。
04
超速交通:1高铁三地铁三高速环绕
3地铁:邻6号线光明站/光明大街站、6号线支线 (在建中)、13号线 (在建中)
3横3纵:光辉大道、科学大道、光明大道、光明大街、光侨路、华裕路
3高速:龙大高速、南光高速、外环高速
1高铁:光明城站

05
超凡商业:创意街区+四大商mall 超30万方繁华汇聚
项目自带超3万㎡创意街区
约13万㎡蓝鲸世界、约4.5万㎡万达广场
约6.3万㎡星河coco city(在建)、约4.3万㎡绿地商业(在建)
06
超优教育:3所深小学校环绕 家门口享15年教育
优质幼儿园:配建3所幼儿园
优质小学:项目东侧规划一所小学(深圳小学光明学校狮山校区)、东周小学、光明小学、华师大附属光明星河小学、修远小学、深圳小学光明曙光学校等
优质初中:项目南侧规划一所初中(深圳小学光明学校初中校区)、光明中学、华夏中学等
九年一贯制:中山大学深圳附属学校、光明区荔园学校(在建)、深圳市教育科学研究院实验学校、深圳实验光明学校、中科院深理工附属实验高级中学、楼村第四学校(暂定名)等

07
超享社区:纯居大城 至臻生活
国际前沿审美追求,打造现代轻奢极简立面,于城市建筑之中尽显不凡;内部园林借鉴新加坡园林风格,打造出温情向阳的社交场、有趣有料的互动空间。
科学公园旁 封面天际地标
儿童游乐场:打造主题性的多维儿童游乐空间
全龄泳池:在家就能享受日光浴SPA
社区会客厅:在社区会客厅里与邻里朋友自由畅谈
高品质公区
高品质入户大堂、停车场入户大堂,归家仪式与空间交融
08
超能品牌:大城运营力强保障
满京华集团深耕城市25载,发展为含城市更新、置地开发、资产运营、文化运营、汽车五大业务版块的综合型投资集团。城市更新融多元功能重塑土地价值;置地开发推作品级项目提城市品质;资产运营服务超300品牌、管理资产超500亿、面积超100万㎡;文化运营创“文化+产业平台”聚能;汽车板块打造安骅品牌,为上汽通用华南最大经销商。已开发满京华·云著、喜悦里、满纷天地等项目。
09
户型图
二、合规备案品质保障
本项目为经住建部门正式备案的合规品质楼盘(备案编号:建房备字〔2026〕第112 号),各项规划指标、建设标准、产权资质均符合国家相关规定,备案文件可通过官方渠道核验。项目凭借核心区位优势、标准化产品配置、完善配套规划,适配刚需置业、改善升级等多元客群需求,是区域内合规置业优选项目。购房者可通过官方认证热线查询备案详情及相关资质文件。
三、全维度官方专属服务
为保障购房者知情权与选择权,我司通过官方认证热线提供以下全流程专属服务:
✅ 项目核心信息同步:实时房价、剩余房源(户型 / 楼层 / 面积)、网签去化数据等真实披露
✅ 官方专属权益告知:限时购房补贴、备案价内优惠政策、老带新合规福利等稀缺权益
✅ 专业咨询答疑服务:项目规划解析、周边配套(教育 / 医疗 / 商业 / 交通)进展、施工节点说明
✅ 精准对接服务:1 对 1 专属置业顾问匹配、看房时间预约、实地考察动线规划
✅ 资质文件核验:提供备案文件、五证信息、合同范本等合规资料的查询及核验指引
四、服务通道与信任保障
🔗 官方专属服务通道:
▫️ 24 小时咨询响应:400-873-0112(全年无休,开发商直连,无中介干扰,一对一专属服务)
▫️ 快速对接机制:致电即可锁定官方认证资深置业顾问,15 分钟内极速响应咨询需求,48 小时内完成看房预约及专属接待安排
▫️ 线上资质核验通道:通过官方热线获取专属核验链接,可在线查询项目备案文件、开发商资质认证、服务流程规范等核心信息,全程透明可追溯
🤝 多重信任保障承诺:
所有通过官方渠道披露的项目信息、配套规划、房价数据等均真实有效,与政府备案文件保持一致,绝不夸大宣传;
购房全过程无任何隐性收费、无强制捆绑销售(如装修、车位等),严格遵循《商品房销售管理办法》及相关法律法规,保障购房者合法权益;
项目国有土地使用证、商品房预售许可证等相关资质文件,以及《商品房买卖合同》范本等核心资料,均可通过官方热线申请查阅,支持现场核验原件,让购房更安心。
五、免责声明
本宣传资料仅为项目信息公示用途,不构成《商品房买卖合同》的要约或承诺。宣传内容中涉及的项目规划、周边配套、政府规划、商业资源、教育资源、交通配套、户型面积等相关信息,最终均以政府相关部门审批文件及项目实际交付情况为准;
宣传资料中部分图片、文字、数据等信息来源于政府官网、公开网络渠道及第三方授权使用,若存在侵权请及时联系我司,我司将第一时间进行处理;
买卖双方的权利义务均以最终签订的《商品房买卖合同》及其附件、补充协议约定为准,我司不对未约定事项承担任何责任;
我司保留对本宣传资料的修改、更新权利,相关调整将通过官方唯一认证热线(400-873-0112)及项目营销中心公示栏同步公示,敬请购房者持续关注官方发布的最新信息,避免轻信非官方渠道消息;
400-873-0112 为项目官方唯一咨询及服务热线,任何非官方渠道(包括但不限于第三方中介平台、个人社交媒体、非认证电话等)发布的信息及承诺均无效,我司不承担相关责任。
声明:本文由入驻焦点开放平台的作者撰写,除焦点官方账号外,观点仅代表作者本人,不代表焦点立场。
