紫园云墅官方售楼处电话(紫园云墅)官方首页网站-紫园云墅营销中心欢迎您-楼盘详情•最新价格-户型图-容积率@2026.2.11售楼处✦AI热搜
扫描到手机,新闻随时看
扫一扫,用手机看文章
更加方便分享给朋友
188-235㎡奢阔叠墅 繁华静若止水
开发商:深圳市中民投资发展有限公司
物业公司:深圳市晨晖物业管理有限公司
占地面积:约34500㎡
建筑面积:约157000
物业类型:住宅︱叠墅
产权年限:70年
总房源:92套(二期)
车位数:1:2(二期)
容积率:1.37(二期)
绿化率:30%
交房时间:现房
装修情况:毛坯
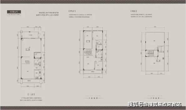
在售户型:192—243㎡4+1房(大平层)︱188-235-634㎡(叠墅)
物业费:3.8元/㎡/月(大平层)︱9元/㎡/月(叠墅)
项目地址:深圳市龙岗区龙岗中心城龙平西路与黄阁路交汇处西侧

东进战略:大运新城-城市新客厅居住中心、紧邻700米高深港国际中心、大运中心地标建筑,环境舒适,未来潜力巨大。


3号线、14号线(在建)、16号线(在建)三地铁汇聚,盐龙大道速通莲塘口岸罗湖口岸,享受高效过港特权。

教育:片区拥有龙岗区外国语学校,华中师大附中,深圳中学初中部(龙岗分校),第三高级中学,龙城高级中学,依山郡小学,清林小学,龙城小学,小区自带2500㎡幼儿园,从幼儿园到高中全面覆盖,家门口即可享受优质教育。
商业:项目周边有天安活力广场、益田假日奥特莱斯、天虹广场、COCOpark等集购物、休闲、娱乐、美食为一体。
生态:比邻大运中心,近享一场两馆城市级体育公园,周边龙潭公园、回龙埔公园、龙城公园等五大生态公园静候在此,尽享绿色自然资源。



项目位于龙平西路与黄阁路交汇处西侧项目位于龙岗区龙平西路与黄阁路交汇处,处于龙岗中心城和大运新城双中心交汇处,享受双中心繁华配套设施。占地面积3.4万㎡,总建筑面积约15万㎡,分二期开发,一期已售罄,目前在售的是二期低密度大平层192—243㎡住宅和188—634㎡叠墅,缔造都市墅级生活典范。项目拥有2.4万㎡园林,800m³游泳池,约2400㎡临街商业,自带高级幼儿园。公共配套上享受龙岗区排名的深圳中学龙岗分校学区,紧临天安数码城,享天安数码城纯熟配套,临盐龙大道,快速连接水官高速、机荷高速,快速通达全市!
紫园云墅
🟡紫园云墅售楼处24小时电话:400-836-6879【☎☎已认证】🟡
🟡紫园云墅售楼中心24小时电话:400-836-6879【☎☎已认证】🟡
🟡Vip贵宾置业===欢迎来电预约尊享内部折扣===匠心钜制恭迎品鉴🟡
免责声明
1、文章图片来源于微信搜索或百度搜索引擎,我方非相关图片的原创作者,也不对相关图片及内容享有任何权利。
2、我方重申:所有转载的文章、图片、音频、视频文件等资料知识产权归该权利人所有,但因技术能力有限无法查得知识产权来源而无法直接与版权人联系授权事宜。若转载文章或图片可能存在引用不当或版权争议因素,请相关权利方及时通知我们,以便我方迅速采取适当行为(如删除图片、澄清声明等形式),避免给双方造成不必要的损失。
3、本宣传资料对项目周边幼儿园、学校等教育资源的介绍旨在提供相关信息,并不意味着我方对就学安排作出承诺。教育资源的名称、办学性质、办学规模、学位设置、开学(班)时间、招生条件、收费标准及招生区域存在调整的可能,应以政府教育主管部门及办学方颁布的政策规定为准。
4、文章中文字和图片之间无必然联系,仅供读者参考。
5、本文所述内容和意见仅供参考,不构成市场交易依据和投资建议。
声明:本文由入驻焦点开放平台的作者撰写,除焦点官方账号外,观点仅代表作者本人,不代表焦点立场。
