三亚湾壹号写字楼官方售楼处年底冲刺电话_预约看房_三亚湾壹号楼盘详情-2025三亚湾壹号最新房价-户型图
扫描到手机,新闻随时看
扫一扫,用手机看文章
更加方便分享给朋友
【国家黄金海岸线 城心漫步三亚湾】
建面约126-213㎡奢装大平层
——项目基础信息——
开发商:三亚永基房地产开发有限公司
建筑面积:约128391m²
占地面积:56亩
绿地率:约40%
容积率:2.5
土地年限:70年
标准层高:约3.1米
规划楼栋:9栋16层-17层板楼
楼栋排布:一梯一户、两梯两户
总户数:600户
车位配比:1:1.5
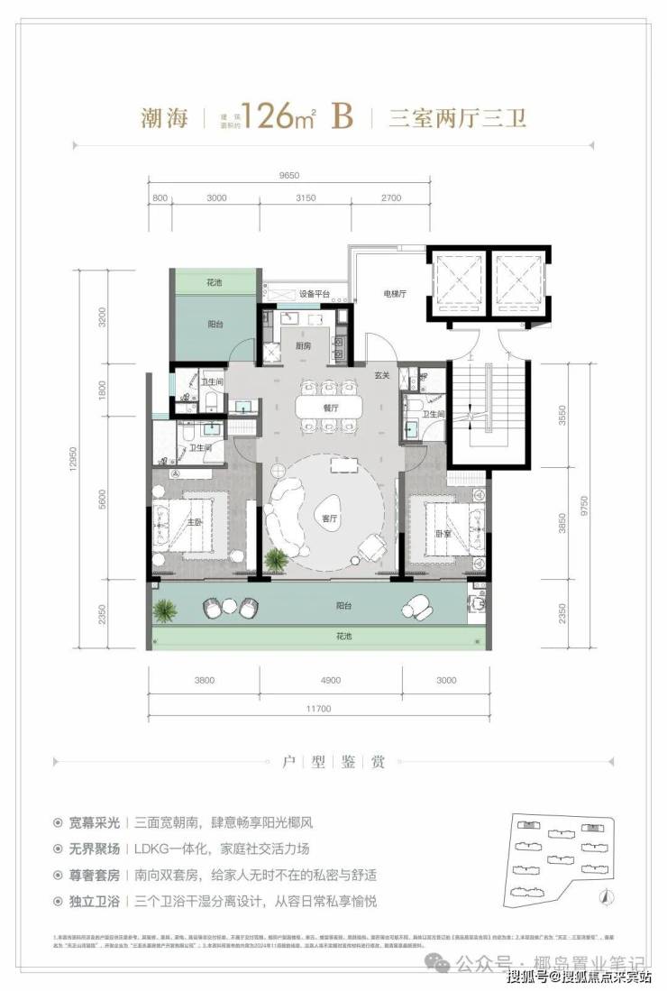
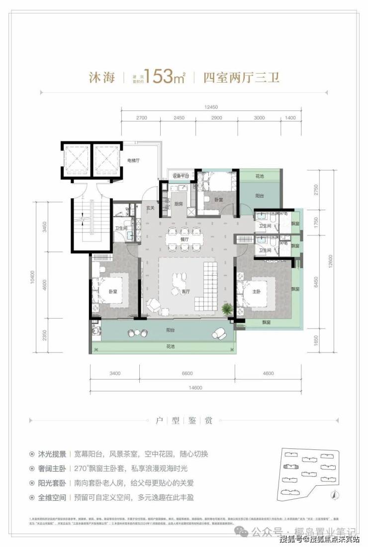
户型面积:
126㎡三室两厅三卫 | 149 ㎡四室两厅三卫
153㎡四室两厅三卫 | 177㎡四室两厅三卫
211 ㎡五室两厅三卫 | 213 ㎡五室两厅三卫
三亚湾,三亚四大核心湾区之一,东起鹿回头,西至天涯海角。海岸线绵延约22公里,拥有亚洲第一椰梦长廊,是三亚开发早、城市资源配套全、商业密度高的度假湾区及老牌富人聚集地,也是全市罕有“国”字号美丽海湾,打造三亚“海上会客厅”。
天正·三亚湾壹号,步行约10分钟即达椰梦长廊,茶余饭后,近享海岸风光。
【高奢酒店集群】
康年酒店 | 国光豪生 | 君澜 | 铂尔曼 | 皇冠假日 | 喜来登 | 洲际VOCO酒店(在建中)| W酒店等十余家高端度假酒店。
【缤纷醇熟商业 】
1公里范围内:羊栏农贸市场、海之眼市集;
2公里范围内:丽禾MOHO、回辉农贸市场;
5公里范围内:龙兴海鲜广场;
8公里范围内:夏日站商业综合体、红树林度假世界、空港百货、大悦城、亿恒主题夜市。
【12年优教环伺】
三亚第九小学三亚湾校区,三亚市公立小学前列,三亚中学、上外附中(2023年最新三亚市中考各学校平均分排名第一,海棠湾的人大附中居第二)等优质教育资源。
【全维三甲医疗 】
约7公里内,享三亚主城优质医疗配套,三亚哈尔滨医科大学鸿森医院、三亚中心医院、解放军425医院等三甲医院。
【约44亩海心公园环伺】
近44亩海心公园萦绕社区,汲取热带、海洋、岛屿三大在地文化基因,营造四幕、九境景观礼序,私享公园里的热带岛屿度假风情。
【全龄段 多功能会所】
品质艺术会所,规划童趣乐园、休闲棋牌、茗香茶室、活力健身等全身心沉浸式私享场景。
【观海住假大平层 为生活高定 】
规划建筑面积约126-213㎡观海奢装大平层,约3.1米阔绰层高,部分户型创新设计270°全景飘窗主卧套、四开间朝南等,全成品高标奢装,营造全新舒居体验。
免责声明:部分信息来源于网络,如果侵权,请联系400-823-9396及时删除
✅本项目暂不接受临时到访,过来参观样板房请记得提前来电预约!
万科H股涨超10%带动内房股拉升 公司债权人大会召开多只债券盘中飙涨
港股盘中异动
2025-12-10 15:41 星期三
财联社 冯轶
①万科H股涨超10%带动内房股拉升,有何看点? ②公司多只境内债异动飙涨,什么信号?
财联社12月10日讯(编辑 冯轶)
港股内房股午后拉升走高。截至发稿,万科企业(02202.HK)涨近12%,中国金茂(00817.HK)、世茂集团(00813.HK)等多家房企也大幅跟涨6%以上。
消息面上,有媒体报道,万科首个展期债券“22万科MTN004”的债权人大会今日召开,将讨论债券展期事宜。
盘面上,万科多只境内债券飙涨一度触发交易所临时停牌,也引发不少关注。其中,“23万科01”涨超50%,“21万科06”涨逾40%、“22万科02”、“21万科04”涨超30%,“21万科02”涨约15%。
此前,由于万科寻求多笔债券展期,一度引发了市场对其债务偿付及未来发展的担忧。且随利空发酵,房企流动性问题也再度受到市场关切。
据华创证券跟踪统计,从累计数据来看,年初至今20城商品房成交面积9453万方,累计同比减少14%。
考虑到销售规模直接决定房企回款,对现金流、毛利率等主要财务指标也有明显影响。因此,面临新房景气度疲软的现状,近期市场对后续政策托举及稳增长的力度较为敏感。
值得一提的是,12月8日,中共中央政治局会议召开,分析研究2026年经济工作。其中提到,持续防范化解重点领域风险。
不少机构分析认为,预期政策仍将围绕地方化债、房地产、中小金融机构开展,将缓解相关领域的市场担忧。
短期来看,万科由于展期事件成为地产行业风暴中心后,仍在持续影响板块行情。尤其是,近阶段不少地产股股价频繁波动,也反应了资金在政策预期和债务风险中较高的博弈心态。
声明:本文由入驻焦点开放平台的作者撰写,除焦点官方账号外,观点仅代表作者本人,不代表焦点立场。
