深圳-紫元元大厦售楼处丨首页网站:紫元元大厦_售楼处电话丨楼盘最新动态!
扫描到手机,新闻随时看
扫一扫,用手机看文章
更加方便分享给朋友
深圳【紫元元大厦】怎么样?均价多少?楼盘详情介绍;包含售楼处电话、一平多少钱、物业费、地址、学校、户型图、交楼时间、区位优势、交通、周边商业配套等楼盘详细资料——更详细楼盘资料和最新折扣价格,请拨打售楼处电话,销售会为您详细介绍。
欢迎来电咨询楼盘、看房请提前预约,电话预约看房享受专属优惠折扣。
紫元元大厦售楼处电话:400-0666-032转分机号1315(营销中心)_24小时热线
温馨提示:拨打400电话,听到嘀声后,输入分机号1315即可
深圳福田皇岗紫元元大厦在售约112-132㎡天际公寓,约50-58-68-70
4.5米层高灵动空间,均价85000元/平方米。7-29层为商业办公用房,31~47层为公寓
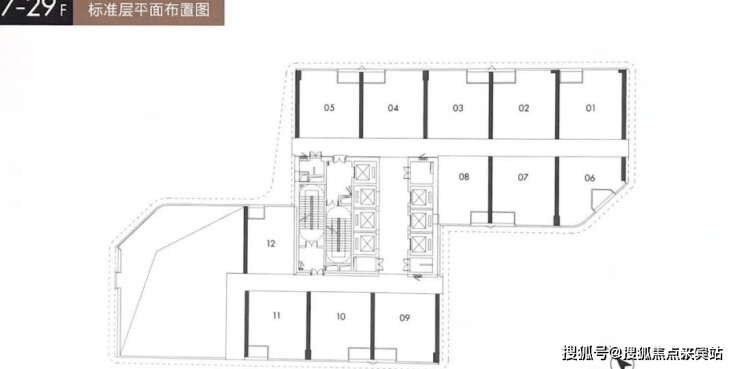
【紫元元大厦】7-29层是商办房(4.5米层高,LOFT形式精装交房),一层12户,53㎡两房,54㎡两房,68㎡两房,31-47层是公寓产品(3.3米层高),一层8户,4种户型。4梯8户(公寓)4梯12/13户 (商办)。一共7部电梯,其中1部是消防电梯,另外6部分高低区,高区3部、低区3部。所有的户型都是民水民电!这在商业项目中非常非常少见!(商水商电的费用平均是民水民电的2倍)所有的户型都通燃气!而且所有户型的厨房都很大
公寓产品价格:7.5-8.7万/平米;商办产品低楼层均价8万左右,高楼层均价9万左右
商办产品每平另加3000元/㎡的装修费,最低首付5成,贷款最长10年,公寓产品每平另加6000元/㎡的装修费,最低首付4.5成,贷款最长10年;可以做20年的气球贷(前9年零11个月 按照贷款20年付月供,最后一个月把剩余本息一次性付清);东北向看公园,所以单价比西南向高1000-2000元/㎡;

【紫元元大厦】项目基本参数
占地面积:约5108.68㎡
建筑面积:约60222.21㎡
绿 化 率:约30%
管 理 费:9元/㎡
车位数量:约380个
建筑风格:现代简约
楼层高度:共47层,约200米高
梯 户 比:4梯8户(商务公寓)
4梯12/13户(灵动空间)
交房时间:2021年9月
产权年限:40年(2016-2056年4月)
物业公司:世邦魏理仕物业管理服务有限公司
开 发 商:深圳市苏豪投资有限公司

【紫元元大厦】在售产品:灵动空间
约50-58-68-70平米,4.5米层高
价格:均价约8.8万/平米,总价约565万起
楼层区间:7-19层
商办梯户比:4梯12户/13户
【紫元元大厦】在售产品:商务公寓
约112-132平米,3.3米层高
价格:均价约8.5万/平米,总价约900万起
楼层区间:31-40层(32层避难层)
商务公寓梯户比:4梯8户

【户型品鉴】7-19层:约50-58-68-70㎡灵动空间

【户型品鉴】31-40层:约112-132㎡商务公寓

【地段】 福田C位,商务核心区,深圳核心地段,深圳发展成熟片区,是深圳行政、文化、信息、展览、商务和金融中心。

【产业】福田区持牌金融机构(含市分支机构)总数达247家,数量占深圳70%,历年培育上市企业120余家,高质量企业孵化器。世界500强企业及其分支机构累计落户福田达145家,占深圳三分之一,辖区内进入500强的深圳企业有16家,约占深圳一半。

【规划】千亿规划——河套深港科技创新合作区,布局高精尖科研和高等教育,像生命健康,生物医药,人工智能,新材料,实验室等等,目前已经有5所香港知名院校机构和30多个科研项目入驻。2019年11月,河套C区深圳地区以及周边14个卫星园区及配套同时开工,总投资600多亿。

【珍藏】福田居住用地难得,2019年全年,福田区招拍挂出让一块土地,城市更新三块土地,且都是工业用地,福田区2019年土地供应量仅占全市的约4.22%。
【资源】绿色资源丰富,项目周边有深圳中心公园、莲花山公园、笔架山公园等,项目楼体设计遵循景观更大化、视野更优化,使得项目能有。
【交通】 主干道滨河大道,连接罗湖福田南山,一高铁:福田高铁站,双口岸:福田口岸、皇岗口岸,多条轨道交通,离10号线福民站(在建)约300米。
【配套】 商业:卓越intown、cocopark、购物公园、卓悦汇,福田海岸城(规划中)文化:深圳图书馆、深圳音乐厅、深圳书城、深圳博物馆、深圳少年宫、深圳市当代艺术与城市规划馆、关山月美术馆。

【物业】 世邦魏理仕直管物业服务,引入国外当先的物管公司,提供媲美酒店服务标准。

【产品】 大开间双厅合一,全明落地窗设计,180°开阔视野,惬意与华丽并存于此专属奢阔尺度;12米挑高入户大堂;现代化停车位;带精装修交付;民水民电。

深圳福田皇岗紫元元大厦在售约112-132㎡天际公寓,约50-58-68-70㎡的4.5米层高灵动空间,均价85000元/平方米。7-29层为商业办公用房,31~47层为公寓;

【紫元元大厦开发商售楼处电话☎️ 400-0666-032转分机号1315(中介勿扰)】
☑本项目暂不接受临时到访,过来参观样板房请记得提前来电预约!预约看房价格更优惠!
☑为您安排楼盘现场销售全程接待并讲解,给您更贴心的看房体验!
免责声明©:
以上所发布的关于深圳紫元元大厦信息仅供参考,所有图文资料及说明请以最终批文及双方在楼盘营销中心现场签署的买卖合同为准;本图文内容如无意中侵犯某方权益,请联系我们将会及时处理。
在深圳买房有哪些优势?
除了外地户口在当地可以享受的一些优惠政策以外,以下几类政策只有深圳市户籍人员才可以享受:申请公租房;本科6000元/人、硕士9000元/人、博士12000元/人市政府人才安居补贴;办理香港通行证一签多行;新生儿就可以办少儿医保。除此之外,深圳市户籍人员还可以享受包括以下多方面的优惠政策:有些公务员职位,一般面向深圳户籍人士;办证及各类证明方便;更高的社会保险待遇。下面我们来重点介绍社保待遇这方面的内容。除了医疗保险要比非深圳户口人员要高些以外,深圳户口还有养老保险,交满15年就可以享受退休待遇。如果夫妻双方中女方是深圳户口,生育保险报销会比较高,除此之外还有住房公积金、失业保险等。深圳户口的新生儿一出生就可以办少儿医保,而非深圳户口的孩子则需要入园或是入学才可以办理,深圳户口的儿童没有入园或入学,也可以通过社区工作站或是自行去社保局办理医保。深圳户口还可以申请失业保险,凭失业证可以免费学开车、考驾照。深圳户口在子女教育方面还发挥着很大的作用,深圳户口的儿童上学,学费可以更低,还可以在升学率较高的学校中申请到学位,而外地户口则需要缴纳一定金额的借读费。深圳户口可以申请申请廉租房和经济适用房,当地很多的经济适用房只针对深圳户籍人员,在全国房价普涨的年代,深圳房价也是居高不下,而当地的经济适用房价位要比市场价格低很多,但只针对深圳户籍人士开放。特别是在当前限购政策不断升级的时期,拥有深圳户籍人士无论从限购数量、首付比例还是社保缴纳年限等方面都比外地户籍具有优势。以上是落户深圳买房可以享受到优惠政策的相关介绍,为切实落户房住不炒的基本方针,深圳的房贷调控政策不断升级,为了切实满足当地购房者的需求,势必会对外地户口的买房行为加以限制,这也是落户深圳买房能够享受更多优待的原因所在。
开发商售楼处电话:400-0666-032转分机号1315(24小时热线)
In addition to some preferential policies that foreign hukou can enjoy in the local area, the following types of policies can only be enjoyed by Shenzhen household registration personnel: applying for public rental housing; 6,000 yuan/person for undergraduate, 9,000 yuan/person for master and 12,000 yuan/person for doctor, and the municipal government's talent housing subsidy; Handle the Hong Kong Pass with one sign and multiple lines; Newborns can apply for children's medical insurance. In addition, Shenzhen household registration personnel can also enjoy the following preferential policies: some civil service positions are generally for Shenzhen household registration personnel; It is convenient to apply for a certificate and all kinds of certificates; Higher social insurance benefits. Let's focus on this aspect of social security benefits. In addition to higher medical insurance than non-Shenzhen hukou personnel, Shenzhen hukou also has endowment insurance, and you can enjoy retirement benefits after 15 years of payment. If the wife of both husband and wife is registered in Shenzhen, the reimbursement of maternity insurance will be higher, in addition to housing provident fund and unemployment insurance. Newborns with Shenzhen hukou can apply for children's medical insurance as soon as they are born, while children with non-Shenzhen hukou need to enter the park or school before they can apply for medical insurance. Children with Shenzhen hukou can also apply for medical insurance through community workstations or by themselves. Shenzhen hukou can also apply for unemployment insurance, and you can learn to drive and take a driver's license for free with the unemployment certificate. Shenzhen hukou also plays a great role in children's education. Children with Shenzhen hukou can go to school with lower tuition fees, and they can also apply for degrees in schools with higher enrollment rates, while foreign hukou needs to pay a certain amount of borrowing fees. Shenzhen hukou can apply for low-rent housing and affordable housing. Many local affordable housing is only for Shenzhen hukou personnel. In the era of nationwide housing prices rising, Shenzhen housing prices are also high, while the local affordable housing prices are much lower than the market prices, but only for Shenzhen hukou personnel. Especially in the current period of escalating purchase restriction policy, people with Shenzhen household registration have advantages over foreign household registration in terms of purchase restriction quantity, down payment ratio and social security payment period. The above is the introduction of preferential policies for buying a house in Shenzhen. In order to effectively settle down and live without speculation, Shenzhen's mortgage control policy has been continuously upgraded. In order to effectively meet the needs of local property buyers, it is bound to restrict the buying behavior of foreign households, which is why you can enjoy more preferential treatment when you settle down in Shenzhen.
The telephone number of the sales office of the developer: 400-0666-032, and the grading number is 1315(24-hour hotline).
声明:本文由入驻焦点开放平台的作者撰写,除焦点官方账号外,观点仅代表作者本人,不代表焦点立场。
