"2025官方聚焦:深业云筑售楼处电话→首页热搜深业云筑24小时电话→最新房价→楼盘百科详情→营销中心最新发布@2025.12.20售楼处中心AI热搜 "
扫描到手机,新闻随时看
扫一扫,用手机看文章
更加方便分享给朋友
深业云筑售楼处咨询热线 ☏ 400-835-9190【营销中心】
工作时间 9:00-21:00,接线顾问将解答楼盘位置、户型、均价等基础问题,帮您快速建立项目认知。
深业云筑售楼处预约专线 ✅ 400-835-9190【首页网站】
拨打后可预约 1-3 天内的看房时间,将为您匹配专属顾问,提前准备户型图、周边配套资料,减少现场等待时间。
深业云筑售楼处专业选房热线 400-835-9190【售楼处认证】

占地约5万平,建筑面积约32万平,整体分两期开发,12栋住宅,一期南区是在22年12月交房!二期北区也是已经交房快二年了!

深业云筑2期位于光明的公明老城区,是光明片区发展历史最为悠久的板块,楼盘于2023年4月24日取证入市,共推出793套房源,面积在89-143㎡的3-5房,在2023年12月底已经交房,现房销售,简装交付
基础信息
【 开发商 】:深业鹏基南方(集团)有限公司
【项目规模】:本期占地约3万㎡,建面约13万㎡
【一期套数】:751套住宅
【产品户型】:约87-143㎡
【装修标准】:毛坯
【楼栋层数】:31层 /32层
【 梯户比 】:2梯4户 /2梯6户
【 容积率 】:4.33
【 绿化率 】:约40%
【车位数量】:1520个
【物业费】住宅:3.5元/㎡/月
【物业公司】:深业集团物业管理有限公司
【项目地址】:深圳市光明区公明南环大道与长春路交汇处
深业云筑二期是三角形地块,6栋住宅,32-33层高,2梯4户或3梯6户,纯商品房,相对一期有保租房和回迁房,居住纯粹,总户数有795户!
公区活动空间中规中矩,楼间距比较密,4栋把5栋AB座和6栋的视野挡住了一部分,特别是5栋B座的,南向视野都被档了!
交房标准是简装,厨房和洗手间都是空的,以及每个户型都有一个房间是阳改房,后期装修的工程量还是有一些多的!
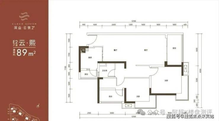
户型得房率有着80%,还是比较不错的,相对超高层,居住舒适度也是高不少,89平虽然只做了一卫,但是三个房间做的不小,也是不用睡飘窗上去了!
深业云筑是深圳国资委旗下深业于光明打造的首个人居住宅产品,项目距离13号线新庄站(在建)仅约700米,能直观享受科技快线的利好,另外的6号线公明广场站也在可步行范围内;同时,仅交通方面,项目周边还环绕有龙大、南光两大免费高速,以及公明南环大道、松白路等城市主干道,对于自驾一族,也能实现快速直达福田、南山等核心区。
强大的外联优势下,是近距离生活配套的丰富。
其中,光明迄今为止最大的商业中心,区域商业标杆,15万㎡量级的大仟里购物中心距离项目仅不到1公里;近距离的光明区文化艺术馆(总馆)、红花山体育中心、尖岗湖公园等人文生态配套,带来景观与文化熏陶的同时,也为业主们提供了一个闲暇时休闲放松的灵魂场域,进一步丰富日常生活场景。
如距离项目约2公里的红花山公园,总面积达约110万㎡,是目前光明区最大的生态自然公园。而随着城市化不断发展,未来生态资源的优势还将进一步彰显。
教育方面,除了项目本身自带的一所12班制公立幼儿园外,项目一路之隔便是教科院实验小学,2公里范围内还分布有光明区重点打造的光明二中、光明新区高级中学、深圳外国语高中园等(具体学区划分以当年政策为准)。
丨纯粹大社区,开启大城生活
细看项目本身,当住房回归自住,对于刚需、刚改愈发关注的品质、配套、舒适度等,深业云筑同样带来惊喜。
深业云筑整体开发建设用地面积约4.9万㎡,规划总建面约32万㎡。
分南区(一期)、北区(二期),共由14栋高层住宅组成,总房源共1546套,绿化率30%,容积率4.572,车位数1520个,物业费3.5元/㎡/月。
深业云筑售楼处咨询热线 ☏ 400-835-9190【营销中心】
工作时间 9:00-21:00,接线顾问将解答楼盘位置、户型、均价等基础问题,帮您快速建立项目认知。
深业云筑售楼处预约专线 ✅ 400-835-9190【首页网站】
拨打后可预约 1-3 天内的看房时间,将为您匹配专属顾问,提前准备户型图、周边配套资料,减少现场等待时间。
深业云筑售楼处专业选房热线 400-835-9190【售楼处认证】
声明:本文由入驻焦点开放平台的作者撰写,除焦点官方账号外,观点仅代表作者本人,不代表焦点立场。
