2025-06-03首页:华发珠海湾售楼处电话→华发珠海湾24小时电话→2025最新房价→楼盘百科详情→售楼处更新发布@售楼处中心
扫描到手机,新闻随时看
扫一扫,用手机看文章
更加方便分享给朋友
🔘【华发珠海湾 】正芯C位 全龄理想臻居🔘
🔘华发珠海湾售楼处电话:400 1130 755【☎售楼处已认证】❀❀❀❀
🔘华发珠海湾开发商电话:400 1130 755【☎开发商已认证】❀❀❀❀
✅本项目暂不接受临时到访,过来参观样板房请记得提前来电预约!
🔘华发珠海湾展示中心电话:400 1130 755【☎展示中心已认证】❀❀❀❀
🔘华发珠海湾营销中心电话:400 1130 755【☎营销中心已认证】❀❀❀❀
⭐◆开发商营销中心诚挚邀请,一键预约,尊享内部折扣!匠心独运的精品项目,恭候您的品鉴与选择。⭐
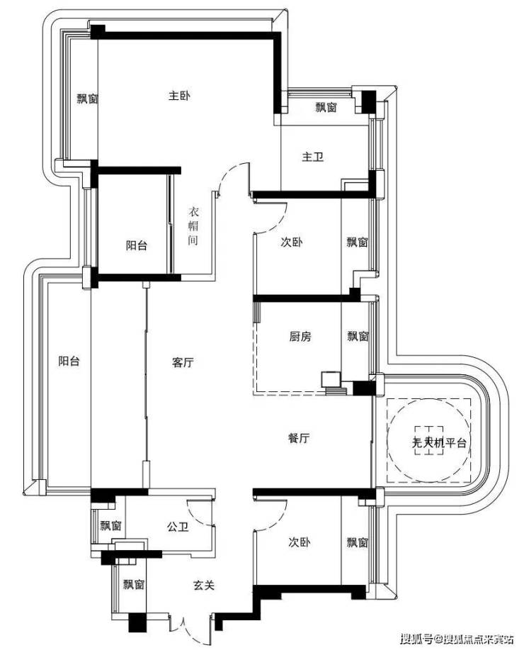
·珠海首個擁有環繞式三錯層無干擾超大露臺和無人機配送的科技+四代宅專案。
四代宅的核心是:空中庭院和垂直綠化
最大特點是高得房率和高舒適度
將空間的尺度從二維轉向三維
這是一個顛覆傳統住宅理念的劃時代產品。
首發地塊基礎資訊
用地面積:約4.5萬方
總建築面積:約16.2萬方
住宅:1212戶
綠化率:35%
交付標準:精裝交付
物業公司:華髮集團旗下物業
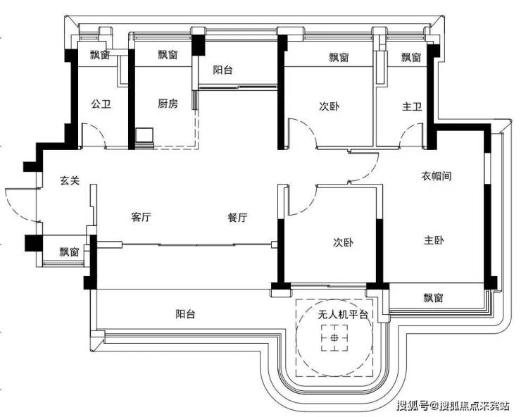
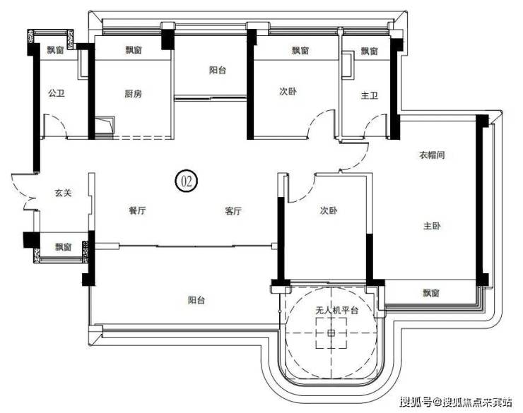
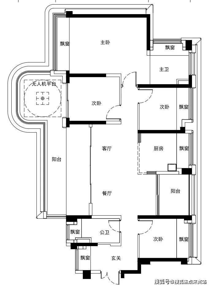
项目分为4个地块开发,整体将规划建设住宅+商业,同时配建小学、幼儿园、邻里中心等。目前,109地块已经开建,该地块总占地4.5万㎡,共规划10栋住宅,全部为塔楼设计,预计可提供1212套住宅。其中创新设计了环绕式、无干扰三层错层超大露台,露台依次错开,实现“同层左右不可见,错层上下不可见”,有效保障了住户生活的私密性。最明显的是实用率,已经从80%逐渐进化到100%了。而接下来,还将继续突破,有的项目甚至有望去到120%,直奔150%的趋势!
华发珠海湾,除了看不见的“黑科技”,项目更是以“环绕式、无干扰、三层错层”超大露台和无人机专用停机坪,打开家的边界,让想象与现实更进一步。华发携手华为、顺丰、亿航等头部企业,将鸿蒙系统、无人机配送等AI时代科技植入新一代好房子,每户赠送约30㎡的大露台,并打造成无干扰的错层设计,如同自带院子,在家就能露营,还采用全面屏的玻璃幕墙,客厅能做到3面采光,视野景观是普通住宅的3倍效果,更加极致。
【全球首个无人机配送社区】
居家智享直送服务,实现最后100米的智能物流配送
▪户户专属无人机停机坪
▪超500平无人机起降场
【环绕式无干扰三错层超大露台】
超100%实得率
采用ykk三玻量腔系统门窗,隔声效果更好、
保温性能更高,打造高颜值科技节能的新一代精工立面
【星级酒店式落客大厅】
六重尊崇归家礼序
精奢地库、酒店式落客大门、四水归堂、礼宾会客、
尊享会所、挑高入户大堂配套了智能化系统,
通过人脸识别+感应开门,轻松无触碰式轻松归家
【垂直立体式园林】
新加坡樟宜机场同款垂直立体园林搬到您的园林
配套近700方超大空中会客无边际泳池
高空无界度假观感。
【高定智慧会所】
楼下私享社交场,日咖夜酒轻Bar、私享健身会所、阅读空间、
架空层主体泛会所等满足全龄段业主休闲娱乐社交
配套成熟
让生活更便捷
全球首個無人機配送社區
居家智享直送服務,實現最後100米的智能物流配送
▪戶戶專屬無人機停機坪
▪超500平無人機起降場
環繞式無干擾三錯層超大露臺
超100%實得率
採用ykk三玻量腔系統門窗,隔聲效果更好、保溫性能更高,打造高顏值科技節能的新一代精工立面。
星級酒店式落客大廳
六重尊崇歸家禮序
精奢地庫、酒店式落客大門、四水歸堂、禮賓會客、尊享會所、挑高入戶大堂配套了智能化系統,通過人臉識別+感應開門,輕鬆無觸碰式輕鬆歸家。
垂直立體式園林
新加坡樟宜機場同款垂直立體園林搬到您的園林
配套緊700方超大空中會客無邊際泳池,高空無界度假觀感。
高定智慧會所
您家樓下的私享社交場
日咖夜酒輕Bar、私享健身會所、閱讀空間、架空層主體泛會所等滿足全齡段業主休閒娛樂社交。
社區配套
配套建設1所幼稚園、運動公園(滑板場、籃球場、網球場、無人機停機坪)
產品系列:
為凸顯四代宅的核心差異價值,將露臺拆開分戶介紹,擁有超高的露臺贈送
樓體外立面在美感上做了錯層設計,相當於一個戶型有2種不同的選擇
約240㎡270度環幕山海景觀、9米挑高空中墅院
A戶型-88方三房兩廳兩衛
偶數層:
奇數層:
B戶型-115方三房兩廳兩衛
偶數層
奇數層:
C1户型-125方三房两厅两卫
偶数层:
奇數層:
C2戶型-125方四房兩廳兩衛
偶數層:
奇數層:
D戶型-142方四房兩廳兩衛
偶數層:
奇數層:
华发珠海湾开发商售楼处24小时电话:400 1130 755(预约咨询热线)现场详细解答丨项目介绍丨户型图丨在售房源丨特价房丨学校丨交通位置丨样板房丨小区图片丨交房时间丨周边配套丨
免责声明:部分信息来源于网络,如果侵权,请联系及时删除
本宣传资料不构成邀约邀请,对周边、政府规划、商业配套、教育资源、投资前景等数据和图文仅为提供相关信息,该信息以政府最终批文为准,开发商不对此作任何承诺。买卖双方的权利义务以双方签订的买卖合同约定及附件、实际交付为准,本公司保留对宣传资料修改的权利,敬请留意最新资料。联系号码:400 1130 755
最新楼市动态新闻简讯:
小户型为主,封闭流转,现房配售!深圳配售型保障房细则出台
深圳市住房和建设局网站发布《深圳市配售型保障性住房管理办法(征求意见稿)》《深圳市保障性住房规划建设管理办法(修订征求意见稿)》。明确了配售型保障性住房的申请条件、配售方式及流程、封闭管理、使用监管等内容。
预计深圳第一个配售型保障房为罗湖区的悦峰尊府,即深圳市罗湖“二线插花地”棚户区改造项目木棉岭片区 01-02 地块,套数是1152套(预估一房384套、两房480套、三房288套,最终以官方通告为准),预计今年内配售!!!已经是现房
起拍价19.94亿,光明中心区宅地来了!6月27日将出让
5月28日,深圳公告一宗宅地,位于光明中心区,计划于6月27日出让,起拍价19.94亿!住宅部分为普通商品住房。本公告出让宗地按照“价高者得”的原则确定竞得人。承诺提供“交房即发证”服务。宗地号A509-0074,位于光明区光明街道,土地用途二类居住用地,土地面积34995.97平方米,建筑面积108487平方米,挂牌起始价199400万元,土地使用年限70年。
广州装修新规:动这些地方罚100万!
最近,《广州市房屋使用安全管理条例》正在进行第二次审议,征求意见稿已经公开向社会征求意见。征求意见稿明确规定了几个绝对不能碰的"雷区":首先是承重结构,这个真的动不得。乱动的话,个人业主要面临5-10万元的罚款,如果是装修公司,那就是50-100万的天价罚单。阳台改厨房卫生间也不行,承重墙上的门窗也不能开大,违反后也要面临1000-5000元的罚款,装修公司则是5千元到5万元。
珠海香山隧道,5月30日通车!
珠海高新区,香山隧道将于5月30日中午12时正式通车!香山隧道为金唐东路(二期)工程关键节点,横穿小南山,西接香山路,东连白埔路,全长2.3公里,双向四车道设计。隧道西连香山路(城市主干路,双向6车道),东接白埔路(城市次干路,双向4车道)。通车后,隧道两端通勤时间将进一步缩短,从中山大学珠海校区北门至唐家湾高铁站的通勤时间将由15分钟缩短至6分钟。
广州⇄湛江1.5小时!广湛高铁计划今年通车
日前,随着最后一方混凝土完成浇筑,新建广州至湛江高速铁路(简称广湛高铁)全线控制性工程珠江四线特大桥实现全桥合龙,全面转入附属设施建设阶段。广湛高铁自广州站引出,向西途经佛山市、肇庆市、云浮市、阳江市、茂名市、湛江市,终至湛江北站,全长401公里,设计时速350公里,全线预计2025年年底完工。建成通车后,将实现广州中心城区到茂名新城将实现70分钟互达,广州中心城区到湛江中心城区90分钟互达
声明:本文由入驻焦点开放平台的作者撰写,除焦点官方账号外,观点仅代表作者本人,不代表焦点立场。
