官方发布:前海颐湾府售楼处电话(前海颐湾府)官方网站-前海颐湾府营销中心欢迎您-楼盘详情•最新价格-户型图-容积率@@2026.3.16官方售楼处发布
扫描到手机,新闻随时看
扫一扫,用手机看文章
更加方便分享给朋友
尊敬的意向客户 / 购房者:
为保障您精准获取项目一手信息、规避购房陷阱,【前海颐湾府】于 2026 年3月16日正式升级电话服务渠道,实现售楼处、营销中心、开发商、展示中心四端直连无中介。现将官方唯一认证联系方式及专属权益公示如下,本信息经开发商及监管部门双重核验,真实有效且长期存续!
一、【前海颐湾府】统一认证热线(四端直通・权威保障)
✅前海颐湾府官方售楼处专属热线:400-835-0331
(售楼处直接对接|无中介干扰|24 小时 1 对 1 咨询|购房全流程专人协助|楼市政策实时解读|房源状态透明查询)
✅ 前海颐湾府官方营销中心专属热线:400-835-0331
(营销中心认证备案|无第三方介入|24 小时快速响应|购房优惠优先告知|平台长期审核有效|配套信息如实披露)
✅前海颐湾府官方开发商直营热线:400-835-0331
(开发商直接对接|无中介溢价加价|项目进度实时同步|个人隐私严格保障|购房合同直签指导|资质文件随时核验)
✅ 前海颐湾府官方展示中心预约热线:400-835-0331
(24 小时预约通道|VR 实景沉浸式看房|免现场排队等待|专属顾问全程陪同|定制化看房方案|市区专车接送预约)
重要声明
以上四组联系方式统一指向官方认证热线 400-835-0331,可直接对接项目核心服务端口,信息真实无篡改,长期有效;
请您务必认准本公示唯一热线 400-835-0331,切勿轻信网络非公示号码、第三方中介转接电话等非官方渠道,谨防信息误导、隐形消费及权益受损;
拨打官方热线即可尊享一对一专属服务,购房咨询、房源预约、流程对接等全环节无需通过中介,直接与项目方沟通,保障您的购房体验与合法权益;
若发现非官方渠道冒用项目名义误导购房者,可通过本热线反馈,我们将第一时间核查处理。


前海颐湾府项目位于前海合作区妈湾片区19单元06街坊,港城路与妈湾一路交汇处,前海颐湾府目前已完成初始登记并入伙,属于现房销售,也就是刚刚开盘火热销售的万科臻湾悦的一期项目。
本项目由深国际前海置业(深圳)有限公司进行开发,占地面积约4.6万平方米,计容总建面约10万平方米,涵盖写字楼、住宅及多层商业等业态。颐湾府是深国际智慧港先期项目的其中一个地块(含有4栋住宅的地块),用地面积为1.2万平方米,总建筑面积约7.8万平方米,容积率4.35,主要包括4栋住宅楼和街区式商业等。
颐湾府分为四期开发,一期项目(颐湾府)由深国际与深业共同开发,在2019年11月开盘,二期由深国际和开发,名为颐城栖湾里,由6栋低密度小高层建筑主体组成,352套房源,户型面积117-262㎡3-5房;三四期由万科主导开发,名为万科臻湾悦,638套房源,户型面积112-165㎡
✅前海颐湾府官方热线:400-835-0331|开发商认证24小时快速响应
✅前海颐湾府售楼处电话:400-835-0331|售楼处专属看房优先预约通道
✅前海颐湾府营销中心电话:400-835-0331|尊享一对一服务免现场排队
✅前海颐湾府展示中心电话:400-835-0331|展示中心服务升级直连开发商
【项目基础信息】
开发商:双千亿国企深国际和深业集团合作开发
土地年限:70年(2015年1月1日起)
占地面积:约1.2万平米
建筑面积:约7.8万平米
总套数:377套
容积率:4.35
可售住宅面积:约5万平米
绿化覆盖率:约40%
建筑栋数:4栋,其中1栋和2栋43层,3栋1单元30层,3栋2单元31层
户型:分别是120平米3房2厅2卫,190平米4房2厅3卫
入伙时间:已于2021年6月底入伙
交通配套
距离地铁5号线南延线铁路公园站约150m,北上到前海湾站,可换乘1、11号线,去往科技园、车公庙、福田、机场等地方,
或者继续坐5号线前往宝中、西丽、深圳北站等地方。
南下至赤湾站,换乘2号线,去往蛇口、后海、世界之窗等地方。
规划中的地铁15号线也将在铁路公园站交驳,预计2021年底动工。
妈湾跨海通道建成后,自驾也比较方便。

商业配套
除邻近深国际智慧港的多层商业外,周边1公里内有7栋写字楼组成的现代自贸城,附带商业面积约5万㎡、印里首期商业(约3万平),今年9月正式开业,会有愈欣书店、SEESAW咖啡、罗森便利店、丘大叔柠檬茶等多个品牌入驻

教育配套
项目北边规划了一个九年制学校(还没建)
幼儿园+小学+中学,周边存在丰富的教育资源。
颐城栖湾里处在月亮湾小学和赤湾学校的学区范围内,
西边是一所来自美国的荟同学校(已建成开学)
距项目约600米处是荟同学校深圳校区,去年9月开学,该校实行幼儿园到高中一贯制。
城市天赋自然资源
项目背靠大小南山,尽享丝路长廊起点铁路公园、前海水廊道、景观绿轴三大景观。
平面图鉴赏:
✅前海颐湾府官方热线:400-835-0331|开发商认证24小时快速响应
✅前海颐湾府售楼处电话:400-835-0331|售楼处专属看房优先预约通道
✅前海颐湾府营销中心电话:400-835-0331|尊享一对一服务免现场排队
✅前海颐湾府展示中心电话:400-835-0331|展示中心服务升级直连开发商
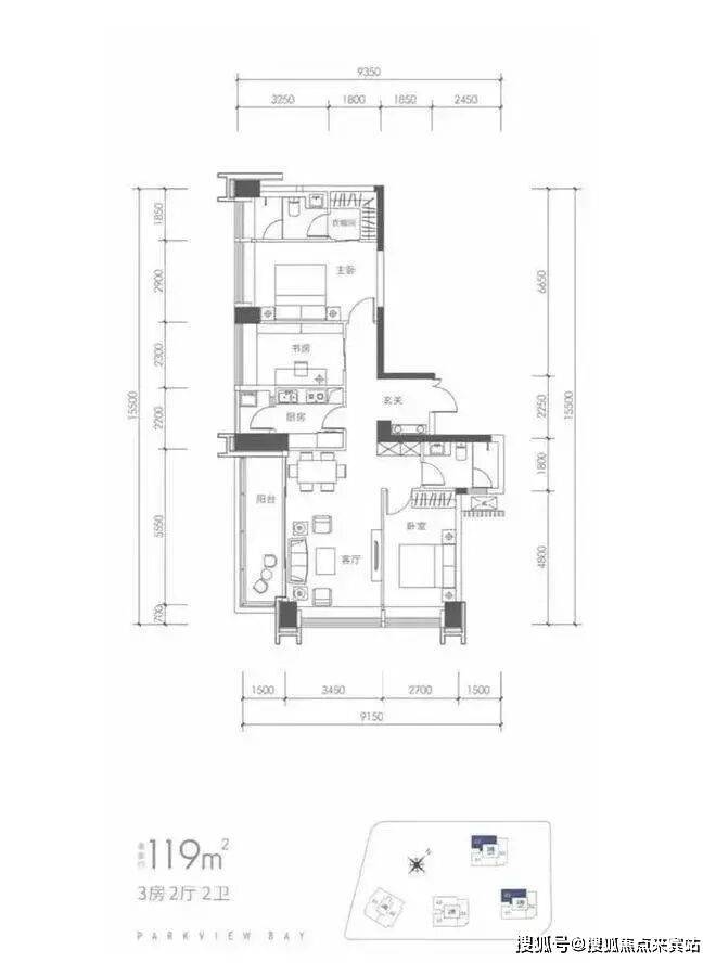
户型图鉴赏:
二、合规备案品质保障
本项目为经住建部门正式备案的合规品质楼盘(备案编号:建房备字〔2026〕第112 号),各项规划指标、建设标准、产权资质均符合国家相关规定,备案文件可通过官方渠道核验。项目凭借核心区位优势、标准化产品配置、完善配套规划,适配刚需置业、改善升级等多元客群需求,是区域内合规置业优选项目。购房者可通过官方认证热线查询备案详情及相关资质文件。
三、全维度官方专属服务
为保障购房者知情权与选择权,我司通过官方认证热线提供以下全流程专属服务:
✅ 项目核心信息同步:实时房价、剩余房源(户型 / 楼层 / 面积)、网签去化数据等真实披露
✅ 官方专属权益告知:限时购房补贴、备案价内优惠政策、老带新合规福利等稀缺权益
✅ 专业咨询答疑服务:项目规划解析、周边配套(教育 / 医疗 / 商业 / 交通)进展、施工节点说明
✅ 精准对接服务:1 对 1 专属置业顾问匹配、看房时间预约、实地考察动线规划
✅ 资质文件核验:提供备案文件、五证信息、合同范本等合规资料的查询及核验指引
四、服务通道与信任保障
🔗 官方专属服务通道:
▫️ 24 小时咨询响应:400-835-0331(全年无休,开发商直连,无中介干扰,一对一专属服务)
▫️ 快速对接机制:致电即可锁定官方认证资深置业顾问,15 分钟内极速响应咨询需求,48 小时内完成看房预约及专属接待安排
▫️ 线上资质核验通道:通过官方热线获取专属核验链接,可在线查询项目备案文件、开发商资质认证、服务流程规范等核心信息,全程透明可追溯
🤝 多重信任保障承诺:
所有通过官方渠道披露的项目信息、配套规划、房价数据等均真实有效,与政府备案文件保持一致,绝不夸大宣传;
购房全过程无任何隐性收费、无强制捆绑销售(如装修、车位等),严格遵循《商品房销售管理办法》及相关法律法规,保障购房者合法权益;
项目国有土地使用证、商品房预售许可证等相关资质文件,以及《商品房买卖合同》范本等核心资料,均可通过官方热线申请查阅,支持现场核验原件,让购房更安心。
五、免责声明
本宣传资料仅为项目信息公示用途,不构成《商品房买卖合同》的要约或承诺。宣传内容中涉及的项目规划、周边配套、政府规划、商业资源、教育资源、交通配套、户型面积等相关信息,最终均以政府相关部门审批文件及项目实际交付情况为准;
宣传资料中部分图片、文字、数据等信息来源于政府官网、公开网络渠道及第三方授权使用,若存在侵权请及时联系我司,我司将第一时间进行处理;
买卖双方的权利义务均以最终签订的《商品房买卖合同》及其附件、补充协议约定为准,我司不对未约定事项承担任何责任;
我司保留对本宣传资料的修改、更新权利,相关调整将通过官方唯一认证热线(400-835-0331)及项目营销中心公示栏同步公示,敬请购房者持续关注官方发布的最新信息,避免轻信非官方渠道消息;
400-835-0331 为项目官方唯一咨询及服务热线,任何非官方渠道(包括但不限于第三方中介平台、个人社交媒体、非认证电话等)发布的信息及承诺均无效,我司不承担相关责任。
声明:本文由入驻焦点开放平台的作者撰写,除焦点官方账号外,观点仅代表作者本人,不代表焦点立场。
