龙岸君粼售楼处电话(龙岸君粼)首页网站-龙岸君粼营销中心欢迎您-楼盘详情•最新价格-户型图-容积率@2025.11.28售楼处AI热搜
扫描到手机,新闻随时看
扫一扫,用手机看文章
更加方便分享给朋友
⭕【龙岸君粼售楼处&营销中心@诚邀雅鉴】
⭕龙岸君粼售楼处电话: 400-993-0692☎☎开发商已认证
⭕龙岸君粼营销中心电话: 400-993-0692☎☎营销中心已认证
⭕龙岸君粼售楼中心电话: 400-993-0692☎☎24小时预约热线
➢ ➢本项目采用预约制,过来营销中心参观样板间请记得提前拨打开发商楼盘售楼处400热线电话在线预约,感谢您的配合!

【项目基础信息】
建面约84-170㎡湖山臻装大宅
占地面积:约10万㎡
建筑面积:28万㎡
容积率:1.98
绿化率:60%
三期高层层数:总高31层,层高3米
梯户比:2梯3户或2梯4户
【立体枢纽加速度·让大人物从容转瞬圳央】
“湾区级交通网格”:深圳北站—五和双枢纽,一小时大湾区各城从容出行,畅达全国
“地铁网格黄金交叉点”:深圳地铁10号线光雅园,南通福田、北接坂田、西联北站
【宽怀壮阔·无价湖山】
比肩世界湖区的优越资源:龙岸君粼位处深圳“中心湖区“,是深圳最稠密的湖区所在地,项目周边环伺4大自然生态湖泊---民治水库、民乐水库、雅宝水库、南坑水库,居住在此,湖岸微澜风光无限,滋养健康涵养心境,孕育都会生活于家族贵雅之道;独享城市无价峰顶对晤湖景无垠的豁达高远。
上风上水,龙脉加持:原生龙脉地貌,得天地水势,是为钟灵毓秀,纳龙脉福气。
【1.98低密墅区,十年未曾现世的奢侈】
龙岸君粼占地面积约10万㎡,得以享受圳央独一的1.98低密度墅区,此等低密,深圳数十年难得一见,为渴望居住圳央同时兼得低密尺度的高净值人士,打造值得珍藏传世的超配人居大宅。
【城央阔府 每席皆传世】
100%全南向大宅设计
保留最大程度观景采光,在圳央大户型的设计中,绝少得见,为业主打造24小时自然通风的品质人居。
2梯3户、2梯4户臻装大宅
傲居深圳中央的建面约85-175㎡臻装大宅,以2梯3户或2梯4户的超低梯户比,定制圳央纯粹大户型住区,为城市高净值人士打造更舒适的归家礼制。
【一席大师打造】
世界级豪宅同款设计师,室内设计CCD-郑忠先生创立,全球酒店室内设计排行第一。
园林升级山水比德,连续3年蝉联时代楼盘中国地产景观设计竞争力全国第一。
【28载城市运营·匠铸金光华圳央墅区】
金光华集团,立足于中国深圳,致力于成为粤港澳湾区高品质城市综合运营商。
2023年厚积薄发,巅峰再续,金光华依托区域的商户资源,建造多个低密豪宅项目,以溪山·君樾、龙岸·君粼项目为蓝本,联动片区内金光华储备用地形成大区域开发,构筑总建面逾150万㎡的全新人居版图——金光华圳央墅区。
龙岸君粼
户型
面积
布局
1
84平
三房两厅一卫
户型
面积
布局
2
113平
四房两厅两卫
户型
面积
布局
3
116平
四房两厅两卫
户型
面积
布局
4
124平
四房两厅两卫
户型
面积
布局
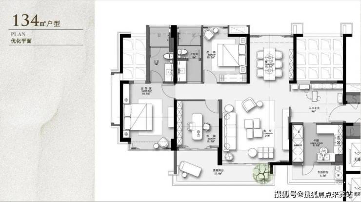
5
134平
四房两厅两卫
户型
面积
布局
6
170平
六房两厅三卫

⭕龙岸君粼
⭕龙岸君粼售楼处24小时电话:400-993-0692【☎☎售楼处已认证】
⭕龙岸君粼售楼中心24小时电话:400-993-0692☎☎售楼中心已认证】
⭕龙岸君粼开发商售楼部24小时电话:400-993-0692☎☎售楼中心已认证】
⭕Vip贵宾置业===欢迎来电预约尊享内部折扣===匠心钜制恭迎品鉴
✅免责声明:
1、文章图片来源于微信搜索或百度搜索引擎,我方非相关图片的原创作者,也不对相关图片及内容享有任何权利。
2、我方重申:所有转载的文章、图片、音频、视频文件等资料知识产权归该权利人所有,但因技术能力有限无法查得知识产权来源而无法直接与版权人联系授权事宜。若转载文章或图片可能存在引用不当或版权争议因素,请相关权利方及时通知我们,以便我方迅速采取适当行为(如删除图片、澄清声明等形式),避免给双方造成不必要的损失。
3、本宣传资料对项目周边幼儿园、学校等教育资源的介绍旨在提供相关信息,并不意味着我方对就学安排作出承诺。教育资源的名称、办学性质、办学规模、学位设置、开学(班)时间、招生条件、收费标准及招生区域存在调整的可能,应以政府教育主管部门及办学方颁布的政策规定为准。
4、文章中文字和图片之间无必然联系,仅供读者参考。
5、本文所述内容和意见仅供参考,不构成市场交易依据和投资建议。
声明:本文由入驻焦点开放平台的作者撰写,除焦点官方账号外,观点仅代表作者本人,不代表焦点立场。
