2025聚焦鸿荣源珈誉玖玺(鸿荣源珈誉玖玺售楼处)首页网站-鸿荣源珈誉玖玺营销中心-鸿荣源珈誉玖玺欢迎您-楼盘详情-最新价格-户型图-容积率@售楼处
扫描到手机,新闻随时看
扫一扫,用手机看文章
更加方便分享给朋友
♎鸿荣源珈誉玖玺♎
♎鸿荣源珈誉玖玺售楼处电话: 400-937-9250【已认证】
♎♬鸿荣源珈誉玖玺꧁ 售楼处: 400-937-9250【☎☎售楼处电话已认】꧂✨✽✽✽✽
♎♬鸿荣源珈誉玖玺꧁ 营销中心电话:400-937-9250【☎☎售楼处电话已认证】꧂✨✽✽✽✽
♎♬鸿荣源珈誉玖玺꧁ 开发商电话:400-937-9250【☎☎开发商电话已认证】꧂✨✽✽✽✽
🦋本项目暂不接受临时到访,过来参观样板房请记得提前来电预约!
🦋为您安排楼盘现场销售全程接待并讲解,给您更贴心的看房体验!
✨✨Vip贵宾置业=欢迎来电预约尊享内部折扣=匠心钜制恭迎品鉴温馨提醒:我们楼盘售楼部400电话没有设置任何所谓的“分机号”,拨打前请仔细甄别,注意保护个人隐私!谨防上当!

珈誉玖玺傲世登临
建面约124㎡/137㎡/169㎡/199㎡实景样板盛启
约248万㎡全能生活大城,扛鼎力作
重新定义深圳西部奢居生活
独属于珈誉玖玺的价值坐标,于此锚定
♎♬鸿荣源珈誉玖玺꧁ 售楼处: 400-937-9250【☎☎售楼处电话已认】꧂✨✽✽✽✽
♎♬鸿荣源珈誉玖玺꧁ 营销中心电话:400-937-9250【☎☎售楼处电话已认证】꧂✨✽✽✽✽
♎♬鸿荣源珈誉玖玺꧁ 开发商电话:400-937-9250【☎☎开发商电话已认证】꧂✨✽✽✽✽
项目位于沙井塘尾地铁站旁,航母级综合体含「湾区壹方」商业、总部办公、高端酒店、商品房住宅、保障房,各方面配套都非常丰富。
不仅刚需三宝齐全,还可以说是“六边形全能楼盘”:优点如下:
①地铁,11号线塘尾站,在售的2区是距离地铁最近,步行约200米左右;
②学校,家门口就是深圳外国语宝安南校区,九年一贯制学校;
③商业,项目楼下就是50万㎡商业包括湾区壹方和奥特莱斯,这个奥特莱斯是重奢版的奥特莱斯,不是卖尾货的奥特拉斯;
④大花园社区,准现楼,得房率高!项目自带2.8万㎡的实景大花园,刚需盘里面有2.8万㎡大花园的凤毛麟角;项目目前是准现房状态,预计明年年底精装交付,今年买明年住;项目户型得房率均在90%左右,最高达97%,超越新规产品户型!
⑤鸿荣源的品质和物管,鸿荣源虽然是民企,但是在深圳是第一梯队的,但凡鸿荣源的物业将来二手市场上也比旁边的非鸿荣源的物业都要卖得更贵一点,因为他保养的更好,服务物业更好;
⑥地段区位好,项目位于西部热点片区,西部城市新中心,粤港澳大湾区的核心内环,靠近国际会展中心、海洋新城和前海扩容区。
商业设施一应俱全
♎♬鸿荣源珈誉玖玺꧁ 售楼处: 400-937-9250【☎☎售楼处电话已认】꧂✨✽✽✽✽
♎♬鸿荣源珈誉玖玺꧁ 营销中心电话:400-937-9250【☎☎售楼处电话已认证】꧂✨✽✽✽✽
♎♬鸿荣源珈誉玖玺꧁ 开发商电话:400-937-9250【☎☎开发商电话已认证】꧂✨✽✽✽✽
本项目自带宏大的奥特莱斯商业体,占地50万㎡,融合了壹方与奥莱的先进商业模式。此外,项目北侧还毗邻万丰海岸城,其购物中心面积近18万㎡,未来这里将成为沙井地区最高端、最繁华的商业聚集地。
本项目紧邻宝安大道与凤塘大道等城市交通要道,距离11号地铁线“塘尾站”仅约300米。乘坐地铁,仅需4站即可抵达宝安机场,6站可至宝中,7站可达前海湾,8站即至南山,而11站便可到达车公庙,交通极为便捷。
教育配套设施
鸿荣源珈誉府周边,规划了2块教育用地,并已正式确定为深圳外国语宝安学校(集团)南校区,其中一处为63班九年一贯制学校,另一处为27班九年一贯制学校(位于珈誉玖玺旁)。此外,根据宝安区2024年最新的学区划分,该区域的学校包括桥头学校、塘尾万里学校、滨海小学(集团)福桥小学、立新湖学校、凤凰学校等。
鸿荣源珈誉玖玺采用围合式布局,约2.9万㎡艺术大园林,采用世界名画“记忆的永恒”为灵感打造,最大楼间距约161米,全龄段子母双泳池。
♎♬鸿荣源珈誉玖玺꧁ 售楼处: 400-937-9250【☎☎售楼处电话已认】꧂✨✽✽✽✽
♎♬鸿荣源珈誉玖玺꧁ 营销中心电话:400-937-9250【☎☎售楼处电话已认证】꧂✨✽✽✽✽
♎♬鸿荣源珈誉玖玺꧁ 开发商电话:400-937-9250【☎☎开发商电话已认证】꧂✨✽✽✽✽
纯板楼设计,二梯二户,外立面部分采用铝板,尽显品质;入户大堂采用大理石地面及花纹石材墙面;奢阔3.15m层高,体验归家礼序,尽享圈层人生。
【玖遇·围合式艺术大园林】
约2.9万平方米的宽敞艺术园林,采用围合式布局,使得最大楼间距达到惊人的约161米。这个园林深受西班牙著名画家《记忆的永恒》的超现实主义风格启发,打造出令人仿佛置身于多重梦境般的美妙空间。小区品质
【玖享·尊贵礼遇与全龄活动空间】
社区内精心设计了全龄子母双泳池,为不同年龄层的居民提供丰富的水上活动体验。此外,还配备了亲子乐园和交流花园,打造出宜人的休闲环境,满足各年龄段的活动需求。主出入口处,列阵式的礼仪轴线设计,彰显归家的尊贵与仪式感,让人深切感受到品质生活的魅力。
【玖品·卓越物业 共筑理想生活】
我们携手国家物业管理一级资质企业,共同打造中国高端物业的专属服务。我们不仅致力于实现客户对美好生活的追求,更以卓越的服务品质,荣获中国物业服务品牌100强及粤港澳大湾区物业服务综合实力50强的殊荣。
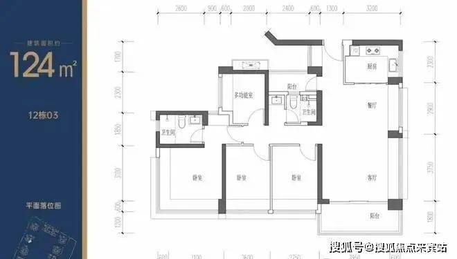
建面约124㎡的4房2厅2卫
♎♬鸿荣源珈誉玖玺꧁ 售楼处: 400-937-9250【☎☎售楼处电话已认】꧂✨✽✽✽✽
♎♬鸿荣源珈誉玖玺꧁ 营销中心电话:400-937-9250【☎☎售楼处电话已认证】꧂✨✽✽✽✽
♎♬鸿荣源珈誉玖玺꧁ 开发商电话:400-937-9250【☎☎开发商电话已认证】꧂✨✽✽✽✽
124㎡的4房2厅2卫,此户型为东南朝向,设计的是经典竖厅格局,客餐厅位都设计了飘窗,就是为了争取更多的赠送,动静分区,四开间朝南,主卧270°观景飘窗,L型厨房,公卫三段式分离,得房率约88%(包含赠送)。
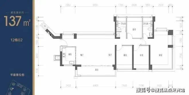
建面约137㎡的4房2厅2卫
137㎡的4房2厅2卫,设计的是横厅南北通透格局,超宽展面,动静分区,五开间朝南,主卧三面观景飘窗,L型厨房,公卫三段式分离,得房率约90%(包含赠送)。
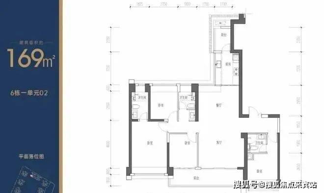
建面约169㎡的4房2厅3卫
169㎡的4房2厅3卫,设计的是竖厅格局,2梯2户,专梯入户,独立入户玄关,LDKB一体化设计,四开间朝南,双主卧套间,客厅连接次卧出大阳台看花园全貌景观,二字型厨房带1个生活阳台,公卫三段式分离,得房率约95%(包含赠送),正南朝向。
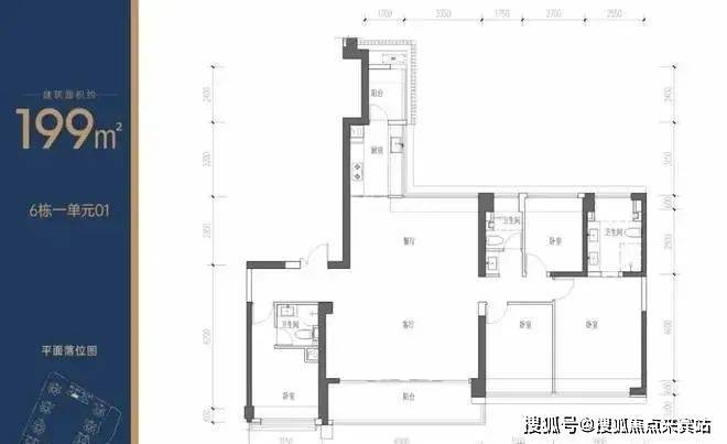
建面约199㎡的4房2厅3卫
199㎡的4房2厅3卫,设计的是竖厅格局,2梯2户,专梯入户,独立入户玄关,LDKB一体化设计,客厅超大开间,四开间朝南,双主卧套间,客厅超大阳台看花园全貌景观,二字型厨房带1个生活阳台,公卫三段式分离,得房率约95%(包含赠送),正南朝向。
♎♬鸿荣源珈誉玖玺꧁ 售楼处: 400-937-9250【☎☎售楼处电话已认】꧂✨✽✽✽✽
♎♬鸿荣源珈誉玖玺꧁ 营销中心电话:400-937-9250【☎☎售楼处电话已认证】꧂✨✽✽✽✽
♎♬鸿荣源珈誉玖玺꧁ 开发商电话:400-937-9250【☎☎开发商电话已认证】꧂✨✽✽✽✽
♎♬鸿荣源珈誉玖玺꧁ 开发商电话:400-937-9250【☎☎开发商电话已认证】꧂✨✽✽✽✽售楼处24小时电话:400-937-9250(预约咨询热线)现场详细解答丨项目介绍丨户型图丨在售房源丨特价房丨学校丨交通位置丨样板房丨小区图片丨交房时间丨周边配套丨⫷⫷⫷
免责声明:部分信息来源于网络,如果侵权,请联系及时删除
本宣传资料不构成邀约邀请,对周边、政府规划、商业配套、教育资源、投资前景等数据和图文仅为提供相关信息,该信息以政府最终批文为准,开发商不对此作任何承诺。买卖双方的权利义务以双方签订的买卖合同约定及附件、实际交付为准,本公司保留对宣传资料修改的权利,敬请留意最新资料。联系号码:400-937-9250
近期,多地发布购房补贴新政。
5月29日,合肥发布购房补贴政策有关通知,对2025年5月15日起至2026年5月14日,凡在合肥市新购买新房的购房人或新购买新建车位(库)的购置人,继续实施购房补贴。
5月28日,泰州发布购房补贴发放细则,购房补贴对象包括换新购、组团购、孝心购、多孩购、拥军购、进城购、返乡购、来泰购,补贴标准最高为购房款总额的2%。
证券时报记者梳理,近期,除了合肥、江苏泰州,广东佛山、兰州、武汉也发布了购房补贴新政。
据中指研究院不完全统计,2025年以来,全国超50地发布购房补贴政策,对于多孩家庭、人才等特定人群的补贴力度更大,如武汉针对购买新房的二孩、三孩家庭分别发放6万元、12万元的购房补贴,绍兴柯桥区补贴力度更大,二孩、三孩及以上家庭补贴标准分别为1500元/平米、2500元/平米,最高分别可补贴至20万元、40万元。中指研究院认为,加大特定人群的购房补贴力度,能够有效降低其购房成本及购房门槛,加速其购房需求入市。
在结束了“五一”小长假这一上半年最重要的楼市营销节点后,近半个月以来,广州楼市显得稍有些沉寂,进入了需求集中释放后的冷静期,无论是新增供应,还是土地市场,从数量上看都并不多。不过,在政策面,持续促进楼市消费的金融等领域政策依然在持续释放。端午假期来临在即,对开发商而言,也是上半年业绩冲刺的最后一个营销节点,大多数开发商都将在这个假期拿出不亚于“五一”的折扣福利。结合来看,这个端午假期,仍将是楼市消费者满足自身居住需求的不错时机。
利率维持低水平 供求关系偏向买方
5月以来,国家层面多次在金融领域释放利好。“五一”假期结束后的首周,国新办便举行新闻发布会,介绍了“一揽子金融政策支持稳市场稳预期”的有关情况,其中,降准降息、降低公积金贷款利率直接与楼市消费相关。
5月8日,广州迅速响应央行要求,下调个人住房公积金贷款利率0.25个百分点。这是住房公积金贷款利率时隔一年后的又一次下调,此次下调后,广州市首套房5年期以上住房公积金贷款利率由2.85%下调至2.6%,处于历史低位。据计算,此次利率下调后,假设公积金贷款100万元,等额本息还款30年,按新利率2.6%计算,月供4003元,总利息44.12万元,月供较原利率每月将减少133元,总利息将减少4.76万元。商业贷款方面,尽管5月中旬有消息称,广州多家银行房贷利率计算方式上调10个基点,但由于LPR下调0.1%,记者了解到,工商银行等多家国有或股份制大行的浮动利率在计算方式和LPR的一增一减后,实际利率仍为3.0%,不难看出,维持当前的商贷利率水平仍将是一段时间内的趋势。
5月19日,国家统计局发布的4月70城房价数据显示,广州二手房均价环比止跌,新房价格则环比下降0.2个百分点。据研究机构克而瑞统计,4月广州商品住宅新增供应面积86.34万㎡,环比增长69%,同比增长31%,供应面积为近一年内的次高位,仅次于2024年9月。
新规项目基本面世 产品寻求新增长点
据广州中原研究发展部数据,5月上半月,广州新增取证项目为0,新开盘项目仅2个。截至目前,2023年容积率新规后的一众新产品大多已经入市,天河、海珠、荔湾、白云、黄埔、番禺等多个成交较为活跃的热门区域均已有多个新规项目供消费者挑选。以保利天奕、天曜、龙湖央璟颂、绿城馥香园等项目为代表的一批2024年下半年拿地开发的项目已基本开盘入市。对于消费者而言,各家开发商在新规地块上能够打造出怎样的产品,足以通过目前市面上已有的项目看出端倪。
有业内人士认为,在更宽松的政策环境到来之前,除南沙区的招商林屿境这样的试点项目外,广州楼市在过去一段时间内你方唱罢我登场的实用率“内卷”将不再如过去一般突出。对消费者而言,仅考虑新规产品的情况下,当前的市场供应已足以满足“货比三家”的心态。
龙舟文化成营销活动热门元素
赛龙舟、吃龙船饭作为广州传统的端午活动在近期频频刷屏互联网,不少开发商也借此机会将项目营销活动与龙舟活动相结合。
以荔湾区花地湾附近的力诚诚汇新都项目为例,该项目紧邻花地河,端午节期间将组织龙舟体验、粽子DIY活动。同时,该项目还赞助举行2025年荔湾区端午游龙活动,将于6月14日组织各荔湾区联社组织及龙船会共约30条传统龙船进行展示。据了解,为配合端午节营销活动,项目还将推售一批一口价单位。
水系丰富的海珠区也是龙舟活动的大区之一,据了解,端午期间,位于海珠湿地附近的中海大境项目也将联合海珠国家湿地公园的龙船宴活动开展营销。据介绍,由于端午节前后恰逢中海地产司庆,该公司旗下广州多个项目均将提供包括购房折扣、物业管理费、车位折扣等在内的多重好礼。以大境项目为例,端午期间,购房折扣最高优惠可达30万元/套,重点企业团购还可享受97折优惠。
声明:本文由入驻焦点开放平台的作者撰写,除焦点官方账号外,观点仅代表作者本人,不代表焦点立场。
