热搜焦点:舜远金融大厦招商中心电话→舜远金融大厦首页热搜24小时电话→最新房价→楼盘百科详情→营销中心最新发布@招商处中心2025.9.19
扫描到手机,新闻随时看
扫一扫,用手机看文章
更加方便分享给朋友
🍂【舜远金融大厦招商中心&展示中心,诚邀雅鉴】
🍂舜远金融大厦售楼处电话: 400-839-3379☎开发商已认证🌶️🌶️
🍂舜远金融大厦营销中心电话: 400-839-3379☎营销中心已认证🌶️🌶️
🍂舜远金融大厦招商中心电话: 400-839-3379☎24小时预约热线🌶️🌶️
➢ ➢本项目采用预约制,过来营销中心参观样板间请记得提前拨打开发商楼盘售楼处400热线电话在线预约,感谢您的配合!
【舜远金融大厦】
滨海大道首排 稀缺低密办公楼宇

🍂舜远金融大厦售楼处电话: 400-839-3379☎开发商已认证🌶️🌶️
🍂舜远金融大厦营销中心电话: 400-839-3379☎营销中心已认证🌶️🌶️
🍂舜远金融大厦招商中心电话: 400-839-3379☎24小时预约热线🌶️🌶️

【项目参数】
交付时间:2024年4月
总建筑面积:35,337.14㎡
建筑类型:北塔办公楼,南塔商业裙楼
建筑高度:119米
建筑层数:地上27层,地下4层
标准层面积:约586/1000-1550㎡
使用率:约65-67%
标准层层高/净高:4.25米/2.9米
交付标准:毛坯交付,10cm架高网络地板、系统入户
楼板荷载:2.5 KN/m²
上下水条件:部分楼层预留租区内上下水
电梯品牌及数量:迅达5500和70000系列,总共15部,高区低区各4部,转换梯2部、商业梯2部、VIP梯1部,货梯(兼消防电梯)2部
空调系统:特灵中央空调水冷系统
洗手间配置:女卫 - 4个坐位;男卫 - 3个小便池+3个坐位
停车位:地下车位215个
停车月费:1000元
物业管理:CBRE世邦魏理仕
物业管理费:33元/㎡/月(工作日:8:30—18:00,周六:8:30—12:00)
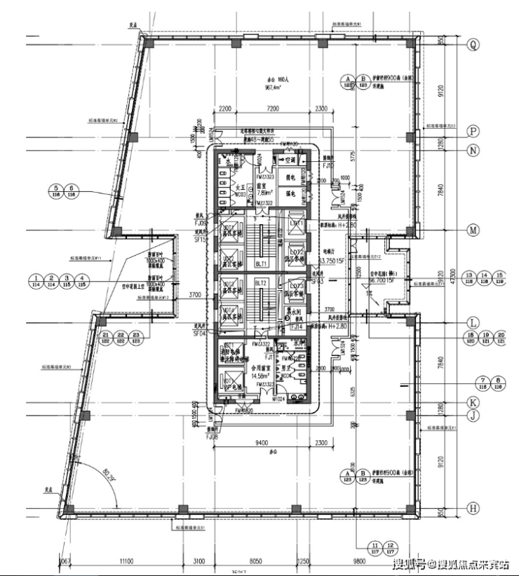
标准层平面图(带空中花园楼层):

🍂舜远金融大厦售楼处电话: 400-839-3379☎开发商已认证🌶️🌶️
🍂舜远金融大厦营销中心电话: 400-839-3379☎营销中心已认证🌶️🌶️
🍂舜远金融大厦招商中心电话: 400-839-3379☎24小时预约热线🌶️🌶️
交付标准展示:

🍂舜远金融大厦售楼处电话: 400-839-3379☎开发商已认证🌶️🌶️
🍂舜远金融大厦营销中心电话: 400-839-3379☎营销中心已认证🌶️🌶️
🍂舜远金融大厦招商中心电话: 400-839-3379☎24小时预约热线🌶️🌶️



【项目价值亮点】
一、滨海大道首排,直达后海交通枢纽
地铁:步行5分钟至后海站(2/8/11号线)
口岸:驾车10分钟直达距深圳湾口岸
主干道路:滨海大道首排位置,驾车3分钟直达滨海立交桥
机场:驾车30分钟至宝安国际机场

二、自带商业配套,共享周边四大核心商圈:
项目自身配套:自带5000㎡南塔商业配套
周边商业配套:共享卓越intown、航天科技裙楼商业,1公里直径内辐射深圳湾万象城、海岸城购物中心、保利文化广场、后海汇4大核心商圈
南塔商业裙楼:

🍂舜远金融大厦售楼处电话: 400-839-3379☎开发商已认证🌶️🌶️
🍂舜远金融大厦营销中心电话: 400-839-3379☎营销中心已认证🌶️🌶️
🍂舜远金融大厦招商中心电话: 400-839-3379☎24小时预约热线🌶️🌶️
三、后海片区稀缺低密办公,标准层自带露台设计
大堂:



电梯厅:

🍂舜远金融大厦售楼处电话: 400-839-3379☎开发商已认证🌶️🌶️
🍂舜远金融大厦营销中心电话: 400-839-3379☎营销中心已认证🌶️🌶️
🍂舜远金融大厦招商中心电话: 400-839-3379☎24小时预约热线🌶️🌶️

公区走廊:

标准层露台:

🍂免责声明:
🍂1、文章图片来源于微信搜索或百度搜索引擎,我方非相关图片的原创作者,也不对相关图片及内容享有任何权利。🍂
🍂2、我方重申:所有转载的文章、图片、音频、视频文件等资料知识产权归该权利人所有,但因技术能力有限无法查得知识产权来源而无法直接与版权人联系授权事宜。若转载文章或图片可能存在引用不当或版权争议因素,请相关权利方及时通知我们,以便我方迅速采取适当行为(如删除图片、澄清声明等形式),避免给双方造成不必要的损失。🍂
🍂3、本宣传资料对项目周边幼儿园、学校等教育资源的介绍旨在提供相关信息,并不意味着我方对就学安排作出承诺。教育资源的名称、办学性质、办学规模、学位设置、开学(班)时间、招生条件、收费标准及招生区域存在调整的可能,应以政府教育主管部门及办学方颁布的政策规定为准。🍂
🍂4、文章中文字和图片之间无必然联系,仅供读者参考。🍂
🍂5、本文所述内容和意见仅供参考,不构成市场交易依据和投资建议。🍂
声明:本文由入驻焦点开放平台的作者撰写,除焦点官方账号外,观点仅代表作者本人,不代表焦点立场。
