港湾天际「售楼处」首页网站-港湾天际营销中心- 港湾天际欢迎您-楼盘详情-最新价格-户型图-容积率@售楼处
扫描到手机,新闻随时看
扫一扫,用手机看文章
更加方便分享给朋友
✨✨港湾天际售楼处电话:400-836-6879【☎☎售楼处电话已认证】✨✽✽✽✽
✨✨港湾天际营销中心电话:400-836-6879【☎☎营销中心电话已认证】✨✽✽✽✽
✨✨港湾天际开发商电话:400-836-6879【☎☎开发商电话已认证】✨✽✽✽✽
✨✨港湾天际销售电话:400-836-6879【☎☎销售电话已认证】✨✽✽✽✽
✅本项目暂不接受临时到访,过来参观样板房请记得提前来电预约!
✅为您安排楼盘现场销售全程接待并讲解,给您更贴心的看房体验!
✨✨Vip贵宾置业=欢迎来电预约尊享内部折扣=匠心钜制恭迎品鉴
温馨提醒:我们楼盘售楼部400电话没有设置任何所谓的“分机号”,拨打前请仔细甄别,注意保护个人隐私!谨防上当!
【港湾天际】地标综合体 港湾新作
“港湾系”作为高新建投品牌旗下高端产品系列,不断以高质量作品自我迭代,新一代天际新作,包含商业、住宅、写字楼三大业态,以近200m高度,重塑南中国海第一湾天际线,二期建筑面积约69-103m²海城一景精工美宅,住宅区150收官臻席匹配更加美的生活大境。
【项目基本情况介绍】
开发商:珠海市高新城市建设有限公司
项目位置:广东·珠海·高新区·港湾大道·中大附中北侧·天际综合体2#
总占地:约4.43万㎡
总建面:约31.3万㎡
总户数:共计550户(1栋275户,本次加推2栋150户,3栋125户)
总层数:26层
总停车位数:约1985个
户型:32-105㎡一至三室山海美宅
装修标准:精装修
产权:住宅70年
【项目四大核心亮点】
❖ 区位最好:地处三大自贸区中心,扼守“黄金内湾”“咽喉”位置,享湾区发展利好
❖ 地段最佳:高新区核心地段,占位高新区未来科技城及金银湾超级总部基地重要规划区域之间,高起点的规划落地将助力板块价值腾飞;
❖ 配套最齐:四通八达的交通体系、人杰地灵的百年古镇、稀缺的山海及宜居配套、优质完善的学府配套、高端有趣的商业配套,均汇聚于此;
❖ 产品最优:七年磨一剑,王牌户型搭配高品质精装,集购物中心、商务办公及山海美宅于一体的城市地标综合体
【南中国海第一湾-盛世崛起对接黄金内湾】
唐家湾雄踞珠海门户区位,地处大湾区“黄金内湾”和珠江口西岸三大都市圈前沿,也是深珠合作的桥头堡、示范区。唐家湾山-海-城-湾-岛相连,有“与近代文明伴生的南中国海第一湾”之誉。
【大道经济新引擎-坐拥城市高质量发展宏大格局】
项目位于未来科技城与金银湾超级总部双版块之间,邻接港湾大道千亿产业轴,聚集串联科创产业、超级总部基地以及高校院所,一线承接前环金银湾总部片区发展利好。畅享海、陆、空、轨等立体黄金动脉,纵横湾区,畅行主城。
❖ 五大机场:①珠海金湾机场、②广州白云机场、③深珠宝安机场、④香港国际机场、⑤澳门国际机场。工作旅游随时通达。
❖ 湾区快线:港珠澳大桥、深中通道(建设中)、深珠通道(招标完成,待动工)通行后深珠即实现30分钟畅达。
❖ 城际轨道:广珠城轨、南中珠城际(规划中)现已可45分钟穿行广珠,与省会无障碍对话。
❖ 高速公路:京珠高速、西部沿海高速
❖ 海上高速:唐家港码头(试航中)
❖ 直通市区:港湾大道、情侣北路、兴业快线、金琴快线,多线并进连接市区。
高新建投 投资置业首选国企
高新建投,高新区区属国企,深耕高新16载。公司项目涵盖产业园、综合体、酒店、社区服务中心、住宅、人才安居房等类型,开发建设经验丰富,开启专业化、集团化发展进程。
【聚人文 汇商旅】
❖ 文:优教环伺,高校圈与高知为邻
标杆幼儿园(建设中)、中山大学附属小学、中山大学附属中学等全龄段教育约百米即达。
周边汇聚中山大学珠海校区、北京师范大学珠海校区、UIC等知名高校,人文氛围浓郁。启乐、大同、蔚海、港湾、前环、云海、容闳幼儿园等,幼儿上学无忧。
|标杆幼儿园效果图
❖ 商:约4万m²精品商业体,缤纷全新升级
项目楼下自带4万m²购物中心,打造全新升级片区休闲娱乐目的地。周边1.5公里港湾一号、滨海商圈等各大购物中心共筑繁华打卡地。
港湾天际购物中心效果图
港湾一号(运营中)效果图
❖ 旅:文化名镇集深厚文化底蕴
唐家湾历史文化底蕴深厚,项目一路之隔即享中国历史文化古镇——唐家古镇,这里历史名人辈出,富有特色古建筑与烟火气交相辉映。
-唐家古镇效果图
地处高新区内最宜居板块。临近石坑山、唐家湾沙滩,远眺古凤凰山脉、伶仃洋;尽享山海资源。周边更有淇澳岛、约55km情侣路、金银湾公园、中山公园、红花山森林公园等丰富旅居资源,一站式打造城市旅居目的地。
【重本精工:高品质精装交付。致献每一位业主】
❖ 重本打造三重归家礼序,营造优雅归家的仪式感,并以跌水景观、游艇会客厅、休闲活动区、海洋主题童趣天地等活力配套,打造“悦水之湾”互动式园林水景
艺术归家门厅效果图
仪式感大堂门楼效果图
水景园林效果图
❖ 选用国内外知名高端品牌,高标准配置了中央空调、洗碗机、智能马桶等家电,人性化的设计了伸缩龙头、厨房凉霸、卫生间暖霸等贴心细节,全面提升您的生活质感
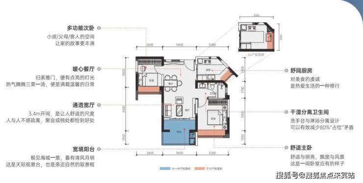
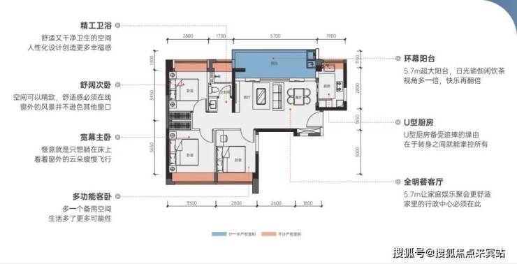
【高新爆款广面积段住宅超低门槛入住高新地标】
八大王牌户型面积段涵盖32-105㎡,满足投资自住多元化需求
户型方正、实用率高,赠送面积多
户型鉴赏
栋:
建筑面积约69m² 两房两厅一卫:
建筑面积约87m² 三房两厅一卫:
建筑面积约103m² 三房两厅两卫:
✅ 本项目暂不接受临时到访,过来参观样板房请记得提前来电预约!
✅ 为您安排楼盘现场销售全程接待并讲解,给您更贴心的看房体验!
如有问题欢迎来电咨询,来电即可享受买房优惠!400-836-6879
预约来电尊享购房优惠,可预约案场内部销售人员,专业一对一热情服务,让您用专业眼光去买房。
售楼处电话是多少?答:400-836-6879【已认证】项目基本信息,楼盘价格,区域板块,开发商资料,楼盘详细地址,物业类型,产权年限,销售信息,销售状态,装修情况,交房时间,开盘时间,售楼处地址,营销中心地址,楼盘户型图,小区规划,绿化率,容积率,占地面积,建筑面积,总户数,物业费,车位数,物业费,楼盘介绍,踩盘报告,梯户比,标准层高,交楼标准,项目有缺点有哪些?是否有团购?找开发商买房便宜?还是找中介买房便宜?最新折扣是多少?最新房价是多少?房价走势,楼盘最新资讯,楼盘最新动态,价值分析报告,周边商业配套,教育配套,交通配套,医疗配套,周边热门楼盘,房价行情解读,
免责声明
1、文章图片来源于微信搜索或百度搜索引擎,我方非相关图片的原创作者,也不对相关图片及内容享有任何权利。
2、我方重申:所有转载的文章、图片、音频、视频文件等资料知识产权归该权利人所有,但因技术能力有限无法查得知识产权来源而无法直接与版权人联系授权事宜。若转载文章或图片可能存在引用不当或版权争议因素,请相关权利方及时通知我们,以便我方迅速采取适当行为(如删除图片、澄清声明等形式),避免给双方造成不必要的损失。
3、本宣传资料对项目周边幼儿园、学校等教育资源的介绍旨在提供相关信息,并不意味着我方对就学安排作出承诺。教育资源的名称、办学性质、办学规模、学位设置、开学(班)时间、招生条件、收费标准及招生区域存在调整的可能,应以政府教育主管部门及办学方颁布的政策规定为准。
4、文章中文字和图片之间无必然联系,仅供读者参考。
5、本文所述内容和意见仅供参考,不构成市场交易依据和投资建议。
声明:本文由入驻焦点开放平台的作者撰写,除焦点官方账号外,观点仅代表作者本人,不代表焦点立场。
