臻林天汇(售楼处)首页网站-臻林天汇展示中心-臻林天汇欢迎您-楼盘详情-最新价格-户型图-容积率#售楼处
扫描到手机,新闻随时看
扫一扫,用手机看文章
更加方便分享给朋友

深圳臻林天汇位于南山区南山大道与北环大道交汇处西南侧,毗邻中山公园。项目由合景泰富集团和同创集团联合打造,是集高端公寓、办公大平层、地铁口商业于一体的综合体。项目主推113-222㎡的2-4房公寓。项目无缝接驳地铁12号线中山公园站,周边商业、教育等配套完善,且由国际顶级设计师团队打造,拥有独特人文底蕴与艺术氛围。
项目基础信息
开发商:合景泰富&同创集团丨Kelly Hoppen
占地面积:约1万㎡
总建筑面积:11.8万㎡
天汇交楼:2023年9月30日
绿化率:30%
容积率:7.8
产权年限:40年(2018.9.18-2058.9.17)
梯户比:南塔商务公寓 3梯5户
北塔商办产品 2个单元3梯4户
悦湾汇:300套
悦湾汇:10梯50户(5梯25户)(2-5层)
悦湾汇交楼:现楼
总户数:508户(319户南塔130户+北塔189户)
车位:小区车位460个(-1L--3L)
公园公共车位235个
物业:宁骏物业(国家一级资质物业)
总层数:商务公寓34层127米
商办产品32层131米
层高:商务公寓3.6m;商办产品4m;
悦湾汇:2楼3.4m;3楼-5楼3.3m
阳台燃气:南塔有外阳台,商务公寓有燃气
✨臻林天汇售楼处24小时电话📞:400-836-8707【已认证】✨⫷⫷⫷
✨臻林天汇开发商24小时电话📞:400-836-8707【已认证】✨⫷⫷⫷
✨臻林天汇营销中心24小时电话📞:400-836-8707【已认证】✨⫷⫷⫷
✨臻林天汇展示中心24小时电话📞:400-836-8707【已认证】✨⫷⫷⫷
区域价值
前海之芯:最前沿+宜居极致人居,城市价值制高点
位踞前海深港合作区、高新区、后海、深圳湾及留仙洞总部群黄金原点,承接全市大量高净值人群的居住需求。
深圳地铁12号线起自左炮台,链接蛇口、南山中心区、宝安中心、航空城、大空港,终到海上田园东,链接了整个西部,为西部交通再一次锦上添花。
项目位于南山核心片区,周边就是科技园、深圳湾、后海、前海、留仙洞五大龙头高地环绕,可谓众星捧月、熠熠生辉,可见地理位置是非常的优越。
后海,着重发展总部经济和科创,是中国总部企业最为密集的地方之一,27块总部用地,聚集了华润集团、阿里巴巴、工商银行等80多家知名企业。
深圳湾,是全球高端产业的聚集地,不仅进驻了中信证券、招商银行、中兴通讯、神州数码等名企,更是聚集了中国互联网最牛气的几家巨头:腾讯、阿里、百度、今日头条、小米。
科技园,是整个中国高新技术企业最多、地均产值最高的科创中心,培育出了腾讯、华为、中兴、大疆等众多高科技龙头企业,并孵育出柔宇科技、菜鸟网络等一批独角兽企业,是中国硅谷。
西丽留仙洞,深圳最生机勃勃、蓄势待发的新晋总部基地,以战略性新兴产业为主导,未来将形成超3000亿元的产业集群。
产业、名企集聚,自然会吸引大量人才进驻,根据规划,这5大高地中,仅留仙洞总部基地规划就业人口就有15—18万,周边高新科技园及大学城规划就业人口则达60万。
周边配套
交通枢纽:双地铁上盖,立体交通拥全球未来
无缝接驳地铁12号线(建设中)、21号线(规划中)中山公园站,经深南大道、月亮湾大道,直通前海。前海交通枢纽,海、陆、空、轨四维立体交通,畅达粤港澳大湾区各大城市,连通国内国际生活。
商业旗舰:极速尽享国际都市生活圈
华润万象天地、壹方城购物中心、欢乐海岸、华润深圳湾万象城、万象前海(规划中)从容抵达,邂逅世界前沿潮流。
文化地标:千年南头古城,粤港文化新地标
以1700年古城文化,赋予臻林天汇独特人文底蕴。2019年南头古城焕新,将文化、创意、艺术源头引入,孕育区域蝶变的力量。
三园二十四景:公园里,古城间,臻林内,悦享二十四景
臻林天汇立踞中山公园之上,“长在公园里的房子”,占据约49万㎡恒久城市绿肺。
天赋稀缺 | 公园绿地在城市的占位属于不可再生资源,城市开发使得可用性土地减少,也让公园地产倍显弥珍。
宜居属性 | 举步即至中山公园,有如业主休闲、游憩的私家后花园。公园植被造就富氧生活圈,为塔尖人士创造“住在公园”的乐活人生。
二十四景 | 禅意花园--日式园林,通过枯山水,石雕,特色植物,营造安静、祥和、归心之地;中山公园--城市绿洲,深圳历史最悠久、也是绿地面积最大的公园;文创园--南头古城,现为深圳十大特色文化街区之首。悦享三园二十四景。
大师钜作:全球大师执笔,梦幻团队联袂
宽境视野:270°环幕观景,城市天际尽收眼底
产品设计融入城市景观及公园景观,端头明星户型打造270°宽景观面。远眺前海灯火辉煌、近揽中山公园至美画卷。
【113平户型图】
【153平户型图】
【188平户型图】
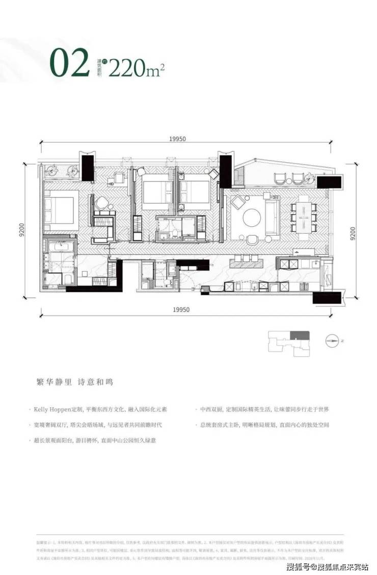
【222平户型图】
户型鉴赏(悦湾汇)
【44.7平户型图】
【91.03平户型图】
【141.6平户型图】
✨深圳✅臻林天汇开发商售楼处电话📞:400-836-8707【已认证】✨
✨臻林天汇售楼处24小时电话📞:400-836-8707【已认证】✨⫷⫷⫷
✨臻林天汇营销中心24小时电话📞:400-836-8707【已认证】✨⫷⫷⫷
✨臻林天汇展示中心24小时电话📞:400-836-8707【已认证】✨⫷⫷⫷
◆开发商营销中心诚挚邀请,一键预约,尊享内部独家折扣!匠心独运的精品项目,恭候您的品鉴与选择。
免责声明:
本文对项目的介绍,旨在提供相关信息,不意味着本公司对此作出了承诺;
部分图片信息来源于网络,如果侵权,请联系及时删除,联系电话400-836-8707
声明:本文由入驻焦点开放平台的作者撰写,除焦点官方账号外,观点仅代表作者本人,不代表焦点立场。
