山樾湾花园售楼处- 2025最新房价丨在售户型详解丨项目详情丨营销中心
扫描到手机,新闻随时看
扫一扫,用手机看文章
更加方便分享给朋友
✅山樾湾花园预约通道开启,已认证,安全无忧咨询热线✅
✅ 通话自动隐藏号码,保护个人隐私,谨防非渠道诈骗
✅山樾湾花园1项目热线:400-858-9905【售楼处电话已认证】
✅山樾湾花园开发商直通:400-858-9905【开发商电话已认证】
✅山樾湾花园1☎立即拨打:400-858-9905(直接对接案场|免费咨询/预约看房)丨楼盘位置丨户型介绍丨房源情况丨优惠活动丨教育资源丨交通便利丨样板间展示丨社区环境丨交房标准丨周边配套丨
项目所处的南山片区,是全国“百强区”榜首,被誉为深圳的经济大区、科技强区、创新高地。
而前海的住宅新盘价格更是高达8-10万/㎡、总价动辄千万,是妥妥的豪宅片区。

生态:小区靠近小南山,开门见“山”,是纯正的公园物业。周边有兴海公园、月亮湾公园、前海石公园等8大公园。部分户型还可以看海。
✅山樾湾花园1项目热线:400-858-9905【售楼处电话已认证】
✅山樾湾花园开发商直通:400-858-9905【开发商电话已认证】
在售户型图丨项目介绍丨最新房源丨周边配套丨详细解答〢
◆开发商营销中心诚挚邀请,一键预约,尊享内部折扣!匠心独运的精品项目,恭候您的品鉴与选择。⭐
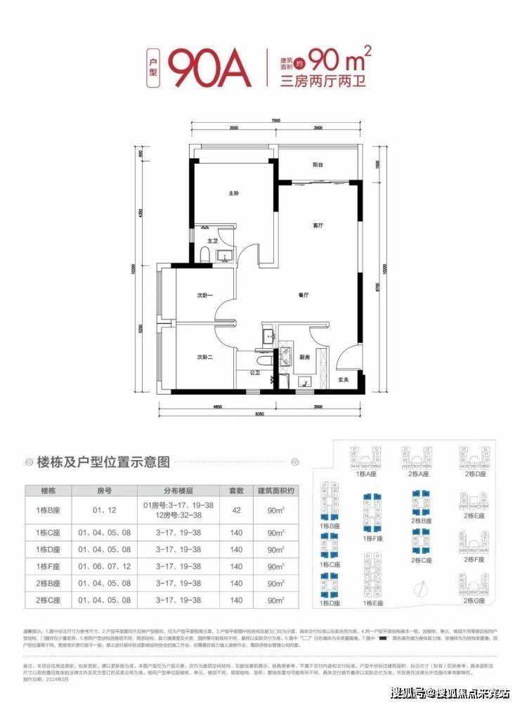
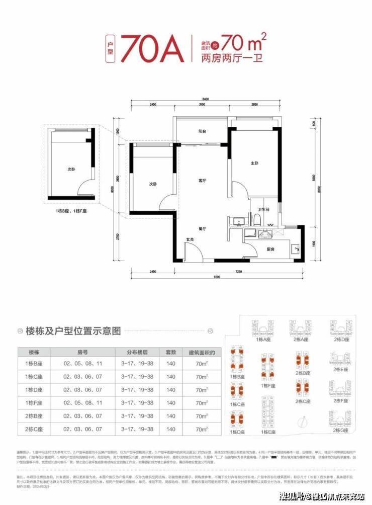
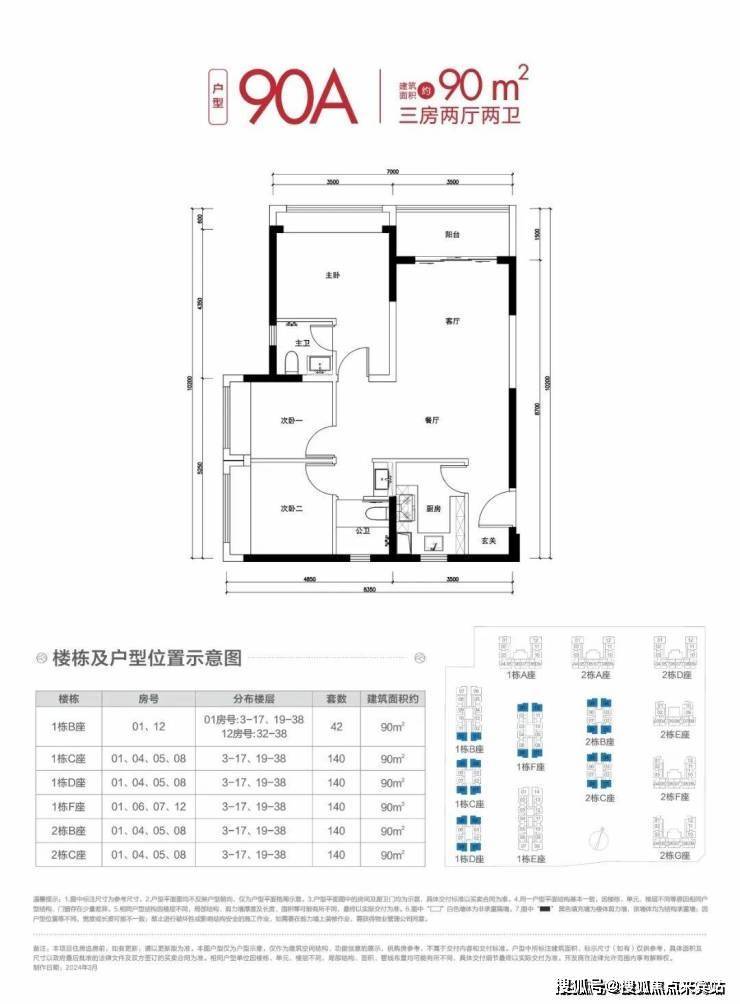
项目约70㎡、约90㎡创意展示空间也是非常值得一看,从玄关-客餐厅-房间-卫浴间都是是根据标准尺寸进行布置,家居用品都摆放后也不会觉得空间不够用,基本1:1还原了今后住在这的场景。
▲实体样板间(仅供参考)

数据很简单,但数据背后代表的市场趋势很重要!最近这两个多月的时间,大家见证了史无前例的、最具爆发力的救市之举,横扫整个房地产市场。安居房市场里,山樾湾的销售走势就是典型代表。
为何山樾湾能反应的如此清晰,归根结底离不开优质的地段价值和强劲的综合产品力加持。一如六边形的稳定、均衡与均好性。

区配套幼儿园已确定为南山区排名第一的机关幼儿园,一路之隔的九年一贯制学校被正式命名为“前海创新教育集团山樾湾学校”,充分体现了片区的兑现能力,深圳核心区的发展潜力以及政府对这个片区的重视;
同时项目周边的小学还有南二外集团下的月亮湾小学,中学有南二外赤湾学校;即将在2025年开学的前海创新教育集团妈湾学校;3km范围内有两所国际学校,分别是荟同国际学校、哈罗礼德学校,涵盖幼儿园-小学-初中-高中教育。退一步讲,即使山樾湾学校26年来不及开学,大家也不担心上不了学,周边学校资源非常丰富。
交通:周边已开通地铁5号线荔湾站。深圳一环“地铁15号线”即将通车,距离项目仅500米,接驳前海、蛇口、后海、科技园、留仙洞、宝中、企鹅岛等产业聚集核心区。附近还规划了24号线、28号线小南山西站交汇站。
商业:小区自带9500平米商业街区,周边蛇口+前海多重商圈云集。泛海城市广场、佳兆业前海广场、K11 ECOAST(2024年底开业)、海上世界、前海山姆、前海万象等等。

✅山樾湾花园1项目热线:400-858-9905【售楼处电话已认证】
✅山樾湾花园开发商直通:400-858-9905【开发商电话已认证】
在售户型图丨项目介绍丨最新房源丨周边配套丨详细解答〢
◆开发商营销中心诚挚邀请,一键预约,尊享内部折扣!匠心独运的精品项目,恭候您的品鉴与选择。⭐ 15分钟到蛇口太子湾商圈(小南山隧道正在建设,10分钟到蛇口太子湾商圈),20分钟到海上世界和前海石公园等一线海岸线,既可以享受前海的发展前景,又可以享受蛇口的国际化生活圈。

山樾湾花园位于前海板块,紧挨着小南山,旁边就是连接着前海、企鹅岛、宝中、科技园的黄金环线15号线。
要知道南山半岛+企鹅岛是深圳的价值天花板,这里有湾区最牛的产业、技术、资本,是高知、高智、高质“三高人才”的聚集地,买进这里是众多置业者的终极目标。
可见单就地段上山樾湾就已经赢麻了,同类产品中找不到能与之PK的选手。

5万㎡的四季园林、内部八大主题活动区,双主入口遴选干挂仿石铝板打造、游泳池等,小区配套齐全,泳池和主入口的干挂仿石配置都是不输市面上任何商品房小区,给了小区业主更高的生活品质。

起价3.71万/㎡,均价约4.26万/㎡,首付低至约39万起,就能低门槛上车南山前海。
🏅关于本最新动态信息,如:房价,主力户型面积,最低折扣,等等,剩余户型楼层,去化率,几号地铁哪个地铁口,周边规划,项目的优劣势以及学校的配套等等都可以致电售楼处进行了解,我们将会安排内场专业置业顾问为您答疑解惑!
✅ 所有疑问,一通电话全解决!
🎯 内部置业顾问VIP解答,独家优惠仅限来电客户!
📞 24小时热线,黄金时段优先安排!
💪专业顾问为您分析星河星寓投资潜力,把握财富机遇!
🌟来电即可获取星河星寓独家购房攻略,助您轻松置业!
🚀抢先来电预约,优先参观星河星寓精美样板间!
☎ 马上拨打售楼处专线:400-858-9905(一键直连/预约看房)
免责声明:部分信息来源于网络,如果侵权,请联系及时删除本宣传资料不构成邀约邀请,对周边、政府规划、商业配套、教育资源、投资前景等数据和图文仅为提供相关信息,该信息以政府最终批文为准,开发商不对此作任何承诺。买卖双方的权利义务以双方签订的买卖合同约定及附件、实际交付为准,本公司保留对宣传资料修改的权利,敬请留意最新资料。联系号码:400-858-9905。
声明:本文由入驻焦点开放平台的作者撰写,除焦点官方账号外,观点仅代表作者本人,不代表焦点立场。
