华侨城天麓开发商售楼处(深圳)华侨城天麓首页网站-华侨城天麓营销中心欢迎您-楼盘详情-最新价格-户型图-容积率发※售楼处2025.09.03
扫描到手机,新闻随时看
扫一扫,用手机看文章
更加方便分享给朋友
伴山瞰海 唯此天麓
⚫华侨城天麓🔳售楼处电话发✓☏:400-8637-726
案场预约制 看房需提前来电预约登记
温馨提示:点击上方号码可直接拨打400电话
请务必致电与销售确认时间,仅预约客户可进入销售现场,感谢您的
信任支持。
建面约270-301㎡独栋别墅
建面约175-295㎡山海叠拼
PART.1/山海篇
一线海景丨绝版稀缺藏品
———————————————————
央企华侨城高端优质生活的经典之作,踞山海之巅,海拔460米,独特的城堡式建筑、“负离子”浓度高达每立方厘米10000个的天然氧吧、大隐的居住哲学以及天麓系列长期塑造的品牌形象,荟萃世界顶豪住区精髓。
「一线山海大观」坐享大梅沙一线海景,背靠深圳第三峰梅沙尖。
「一个城市绿肺」31.66平方公里马峦山郊野公园,以远足登山、观海观瀑为特色,集旅游休闲、野外健身、自然生态教育为—体。

「两个山地高尔夫球场」2.5平方公里36洞稀缺山地高尔夫球场,蓝天绿地之间转肩挥杆,静享—杆进洞的荣耀时刻。
「两座主题公园」4.5平方公里专属生态乐园大峡谷、2平方公里茶田花海天然氧吧茶溪谷,城市旅游目的地。
PART.2/配套篇
稀贵资源丨奢享醇熟生活
———————————————————
「菁英成长高地 涵养书香气韵」梅沙未来学校、盐田外国语学校等学校环伺,筑梦美好未来。
「重点医疗奢配 护航健康人生」深圳市盐田区人民医院、盐田区妇幼保健院等优渥医疗资源。 咨询热线:15012627238 蔡经理
「醇熟商圈荟萃 臻享城市繁华」尽享奥特莱斯购物村、壹海城等繁华商圈,集购物餐饮、休闲娱乐于—体。
【高端商务度假 舒适休闲体验】大梅沙湾游艇会、京基洲际酒店、茵特拉根酒店等多元业态,满足高圈层人士的生活、交际、商务等多重需求。
PART.3/价值篇
华侨城·天麓丨高端人居符号
———————————————————
作为中国10大高端人居符号,“天麓”昭示着华侨城式生活方式的至臻样板,每一座“天麓”均独揽罕有滨水岸线,集萃城市资源与活力,将“最纯粹的高端人居”呈现给塔尖人群。
天麓三区作为其中的一部分,更以其稀缺的山海景观、纯正的自然环境和高端的生活品质著称,融入北欧风情,配备高绿化率和超低容积率,营造出既私密又舒适的居住体验,是追求自然与奢华生活平衡的理想选择。
PART.4/产品篇
一席院墅丨不负人生得意
———————————————————
【独栋别墅 建面约270-301㎡】
伴山而居:山顶之上,林景湖境,院纳百景
私藏院子:超百平米前庭后院,纳山藏风水的私人领地
星空露台:山林云海盛境,每个露台都是云端的超巨幕观景台
低密社区:天然氧吧,高海拔低密度健康社区
独栋户型图(以B户型为例)
【山海叠拼 建面约175-295㎡】
私属花园:一楼花园邂逅自然妙趣,纳藏大美山海
云中庭院:空中双景观露台超宽屏瞰景,盐田港/梅沙尖/高尔夫景一览无余
专梯专户:专梯入户,出入皆礼遇
超奢面宽:客厅、卧室、露台、阳台均6M面宽

叠拼户型图(以A1户型为例)
【联排别墅 建面约212-250㎡】
境揽云影:山巅雲海之上,执山揽湖,俯视山河壮景
私家独院:阔尺前院,私密围合,诠释生活闲情逸致
观景阳台:聆听自然演奏,近观山景远瞰沧海
可拓空间:极致使用率,灵活的可塑空间,天镶云影间惬意从容

联排户型图(以C户型为例)
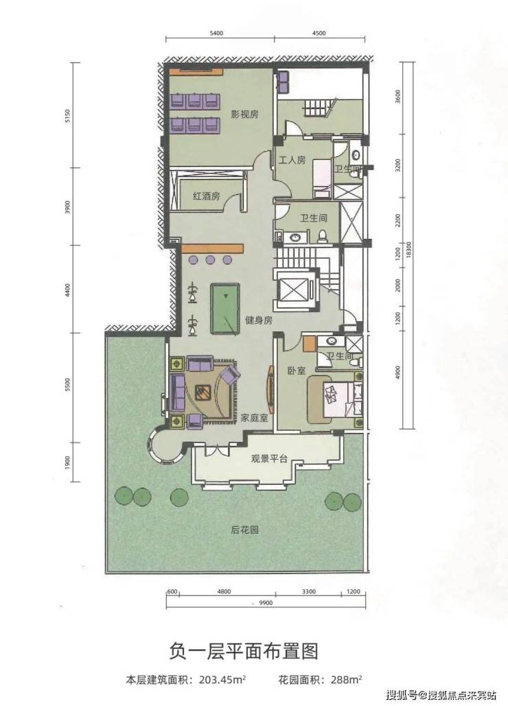
· 负一层平面
· 一层平面图
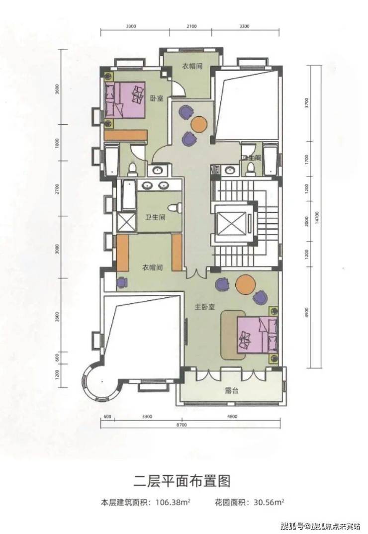
· 二层平面图
⚫华侨城天麓🔳售楼处电话✓☏:400-8637726
案场预约制 看房需提前来电预约登记
温馨提示:点击上方号码可直接拨打电话
请务必致电与销售确认时间,仅预约客户可进入销售现场,感谢您的信任支持。
免责声明:部分信息来源于网络,如果侵权,请联系及时删除
声明:本文由入驻焦点开放平台的作者撰写,除焦点官方账号外,观点仅代表作者本人,不代表焦点立场。
