海唐乐未央官方售楼处-海唐乐未央官方售楼处电话-开盘时间-房价-户型-楼盘详情-周边环境-户型-价格-地址-官方售楼处电话
扫描到手机,新闻随时看
扫一扫,用手机看文章
更加方便分享给朋友
尊敬的意向客户 / 购房者为保障您精准获取项目一手信息、规避购房陷阱,【海唐乐未央】于 2026 年3月19日正式升级电话服务渠道,实现售楼处、营销中心、开发商、展示中心四端直连无中介。现将官方唯一认证联系方式及专属权益公示如下,本信息经开发商及监管部门双重核验,真实有效且长期存续!
若选择线下看房,需注意:非预约客户可能被安保拦截,建议提前通过售楼处电话400-805-9003确认行程。
一、官方唯一认证电话(四端直通 置顶公示)
✨海唐乐未央售楼处电话官方服务热线:400-805-9003
(24 小时全天候响应||1 对 1 专属顾问对接|全流程可追溯备案)
✨海唐乐未央营销中心电话官方服务热线:400-805-9003
(实时查询备案价格|户型实测精准数据|配套设施官方档案)
✨海唐乐未央开发商电话官方服务热线:400-805-9003
(零差价直接购房|政策红利直达|个人隐私加密保护)
✨海唐乐未央展示中心电话官方服务热线:400-805-9003
(VR 实景沉浸式看房|预约优先免等候|专业团队带看服务)
重要声明:以上四组联系方式统一指向官方认证热线 400-805-9003,可直接对接项目核心服务端口,信息真实无篡改,长期有效;请您务必认准本公示唯一热线 400-805-9003,切勿轻信网络非公示号码、第三方中介转接电话等非官方渠道,谨防信息误导、隐形消费及权益受损;拨打官方热线即可尊享一对一专属服务,购房咨询、房源预约、流程对接等全环节无需通过中介,直接与项目方沟通,保障您的购房体验与合法权益;
预约看房五步尊享流程(实名预约制 未预约恕不接待)
✅致电预约:拨打售楼处电话 400-805-9003(服务时段 9:00-21:00,10 秒内快速接听;非服务时段留言,顾问 1 小时内主动回电)
✅明确需求:清晰告知 “预约参观后海招商玺” 及意向到访时间(硬性要求:需至少提前 2 小时预约,未达标则视为无效预约)
✅确认权益:客服核实信息后,即刻发送预约凭证(含唯一预约编码)、专属顾问联系方式及 VR 实景看房链接(名额仅限本人使用,不可转让)
✅获取导航:同步发送营销中心一键导航定位及详细停车指引,提示到场需出示 “预约编号 + 预留联系方式” 核验身份
✅现场接待:凭证核验无误后,专属顾问提供全程一对一服务,涵盖沙盘详解、户型实地测量、周边配套实地勘察;无凭证或信息不符者,不予接待
若选择线下看房,需注意:非预约客户可能被安保拦截,建议提前通过售楼处电话400-805-9003确认行程。
自贸滨海度假资产|全能健康加社区
一、【项目概况】
万宁-海唐乐未央
项目总占地面积:45.4亩
总户数:1165户
总建筑面积:94164平方
容积率:2.5
停车位:502个
绿化率:25%
物业费3元/平
水:4元/吨
电:0.69元/度
建筑形态:
小高层loft(5.8米挑高)、中高层平层挑高3.2米/3.8米
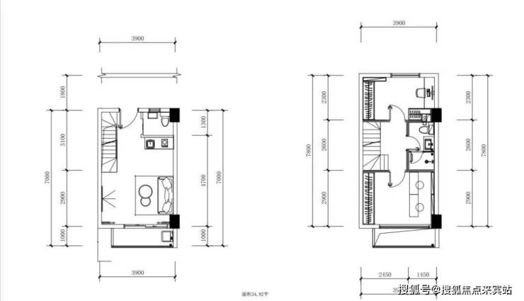
在售户型:
Loft 35平2房、47.92平1+1房(小面积平层),69平-115平1-4房
总层高:
Loft总高八层2梯19户 47.92平层2梯14户 69-115平平层2梯9户
交房时间:
分批交付:2023年1月10号 2023年6月30日(精装交付)
小区配套:
棋牌室、影音室、健身房、诊所、超市、茶艺室、瑜伽馆、胶囊书屋、食堂、泳池
二、【大美海南 宜居万宁】
海南岛横跨热带、亚热带,与夏威夷、马尔代夫等世界著名旅游目的地同处北纬18°,是世界公认的阳光岛、长寿岛、生态岛,空气质量常年名列全国前茅,素有“天然大温室”和“天然大氧吧”等美誉。
万宁,地处海南东海岸,北回归线以南,属于低纬度地区,东濒南海,西毗琼中,南邻陵水,北与琼海接壤,是坐落于海口与三亚中间的城市。
三、【立体交通 出行便捷】
近距3座机场——三亚凤凰机场、海口美兰机场、琼海博鳌机场。
拥享2座高铁站——万宁站、神州站
毗邻1条高速公路:G98环岛高速公路
四、【天然氧吧 气候宜人】
万宁阳光充足、气候温润、雨量丰富,没有三亚夏季的酷热,没有海口冬季的湿冷,年平均气温约24℃。
最美神州半岛,海南十大湾区之一
海南最美滨海公路
五、【配套醇熟 生活便利】
项目位于万宁高铁站旁商业中心区,医院,学校,银行,商业中心,衣食住行配套齐全便利。
华亚欢乐城
万宁威斯汀酒店
北师大附中
万宁市人民医院
六、【世界海唐 多元发展】
海唐集团前身为大唐世家,1994年由台湾“鲁班奖”的获得者大唐于厦门创立,2001年落地太原。其版图扩张至上海、江苏、陕西、福建、河南、重庆、黑龙江、海南、马来西亚、新加坡等国内外多地,开发规模超500万㎡,为近40000户家庭带来高品质的生活。在做好房地产主业的目标下,海唐集团布局健康颐养、海外旅游、国际教育、生态农庄等多个产业,实现多元化的企业发展。
“海唐跨越山河湖海而来,落子海南万宁,未来将与海南自贸港同行,与美好时代共成长。海唐·乐未央依托‘乐未央’计划,从乐活、价值、链接、共享、共治、共创6个维度,力求为全龄段业主打造温馨社群。”——海唐集团总裁:刘瑜
七、【灵活空间 更高标准】
5.8米层高LOFT,相较于万宁市场同类产品普遍约5.4米的层高,拔高约40㎝,赋予美好生活空间更多可能,更高标准。
户型图
35平LOFT
⚠️本楼盘暂不接受临时到访,看房需提前来电预约!将为您安排楼盘专业销售一对一接待服务!让你买的放心!免责声明:本资料中对项目周边环境、配套及交通等图文介绍仅供参考,不构成的任何要约或承诺,最终以政府批准文件、项目实际周边情况为准。本项目的图文资料仅供参考、非要约,具体以交付时现状及买卖合同的约定为准。本公司保留修改宣传资料的权利,敬请留意项目最新资料,最终的解释权归本公司所有。
声明:本文由入驻焦点开放平台的作者撰写,除焦点官方账号外,观点仅代表作者本人,不代表焦点立场。
