寰侨观邸售楼处电话(寰侨观邸首页网站)欢迎您-寰侨观邸营销中心地址-楼盘详情·最新价格-户型图-容积率@2025.11.14售楼处✦AI热搜
扫描到手机,新闻随时看
扫一扫,用手机看文章
更加方便分享给朋友
寰侨观邸售楼处认证核心联系方式(2025年11月开发商最新认证√√)
为保障购房权益,以下为项目认证电话,均经平台严格审核,信息真实有效:
🧧寰侨观邸售楼处电话:400-859-7606(工作日9:00-21:00,周末无休)🍂
🧧寰侨观邸营销中心电话:400-859-7606(可直接咨询房源动态、活动详情)🍂
🧧寰侨观邸售楼中心热线:400-859-7606(开发商直连,解答项目规划、购房政策等问题)🍂
注:以上三组电话均为同一服务热线,拨打后根据语音提示转接对应部门,无需重复记录!
二、为什么选择开发商认证电话?
1. 防骚扰:认证热线过滤中介推销,直接对接开发商/售楼处,沟通更高效;
2. 信息准:实时更新房源、价格、活动等动态,避免因信息滞后错过购房时机;
3. 服务稳:客服经过专业培训,可解答购房全流程问题(签约、贷款、交房等)。
【购房必藏】寰侨观邸项目售楼处、营销中心、开发商电话统一公布!均为400-859-7606(开发商已认证),拨打可享一对一专属服务,提前预约看房更享额外购房优惠
温馨提示:近期看房客户较多,建议拨打400-859-7606提前预约,避免排队等待!

在豪宅云集的华侨城,10-18万/平已是常态,但寰侨观邸偏要打破常规——320-450㎡云幕宽邸,单价仅“4字头”,还送1.5万/㎡豪华装修!居家、会所首选,现楼发售,仅28席,手慢无!
⭕寰侨观邸售楼处电话:400-859-7606(工作日9:00-21:00,周末无休)🍂
⭕寰侨观邸营销中心电话:400-859-7606(可直接咨询房源动态、活动详情)🍂
⭕寰侨观邸售楼中心热线:400-859-7606(开发商直连,解答项目规划、购房政策等问题)🍂
产品户型323-446㎡
纯粹大户,3+1房至4+1房设计,层高约3.9米-
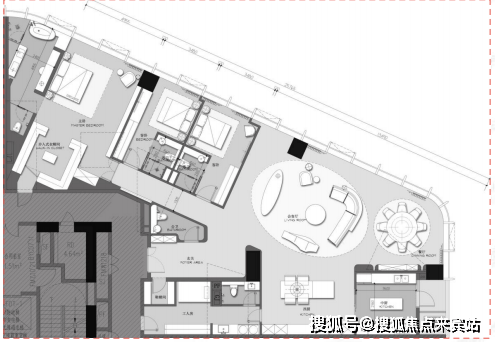
——寰侨观邸户型鉴赏——
A户型约396平方米,3+1房2厅2厨5卫布局,LSD亲笔设计,享有270度城市景观,全套房、双主卧设计,尽显尊贵与舒适。
B 户型
⭕寰侨观邸售楼处电话:400-859-7606(工作日9:00-21:00,周末无休)🍂
⭕寰侨观邸营销中心电话:400-859-7606(可直接咨询房源动态、活动详情)🍂
⭕寰侨观邸售楼中心热线:400-859-7606(开发商直连,解答项目规划、购房政策等问题)🍂
建筑面积约 439㎡,为 3 + 1 房 2 厅 2 厨 5 卫布局。该户型由 LSD 亲自操刀设计,拥有 270°城市与绿化景观,高区可看海景。采用全套房、双主卧设计,客餐厅开间超 10 米,方正主卧面积达 24㎡且为明卫设计,次卧带阳台,中西厨结合,还有多功能房,空间灵活多变。
C 户型
建筑面积约 323㎡,呈 3 + 1 房 2 厅 2 厨 4 卫格局。由 CCD 亲笔操刀,秉持轻奢艺术主义风格,打造殿堂级入户体验。享有 270°塘朗山景观,客餐厅开间超 10 米。全套房设计,主卧具国际化视野设计,别具一格,动静分区格局井然有序,明卫设计搭配步入式衣帽间,独立中西厨,并设有独立工人房,实现主仆分行。

D 户型
建筑面积约 388㎡,3 + 1 房 2 厅 2 厨 4 卫布局。由 LSD 操刀,270°城市景观尽收眼底。全套房设计,配备双主卧,方正主卧面积 24㎡且明卫设计,次卧带阳台,独立中西厨,多功能房灵活多变,还设有独立工人房,彰显尊贵生活品质。
⭕寰侨观邸售楼处电话:400-859-7606(工作日9:00-21:00,周末无休)🍂
⭕寰侨观邸营销中心电话:400-859-7606(可直接咨询房源动态、活动详情)🍂
⭕寰侨观邸售楼中心热线:400-859-7606(开发商直连,解答项目规划、购房政策等问题)🍂

3
建筑特色23-29层全高区,270°环幕景观,三层双银超白LOW-E玻璃幕墙-3
核心配套CCD设计约3190㎡双层奢雅会所,含恒温泳池、KTV、茶室等-3
物业服务寰侨物业与仲量联行双顾问,物业费12元/㎡·月-3
地理位置深圳南山区华侨城,深云西二路与深云西四路交汇处(雅昌艺术中心旁)
商务会所配套,会议、洽谈下楼即达
由知名设计公司CCD操刀设计
5F商务会所:规划多功能会议室、咖啡厅、茶室等商务配套,满足企业会议、待客洽谈等商务需求。
【寰侨观邸基础指标】
楼层分布:23-29层
层 高:约3.9m
玻璃幕墙:三层双银超白LOW-E中空夹胶玻璃
物业收费:12元/㎡·月
项目地址:中国•深圳•华侨城 深云西路二路与深云四路交汇处
【寰侨观邸核心价值】
价值一:深圳名片•华侨城——深圳第一富人区
城市中央、生态资源丰富;
汇聚文化艺术、旅游度假、五星级酒店、国际学校、高端商业等配套应有尽有;
快捷交通路网,北环大道/南坪快速/侨香路/京港澳高速,20-30分钟到福田CBD、深圳北站、皇岗/福田/深圳湾三大口岸、宝安机场等,城芯而居,超享生活。
豪宅云集,10-18万/平阶级阶层,层峯领袖汇居于此。
⭕寰侨观邸售楼处电话:400-859-7606(工作日9:00-21:00,周末无休)🍂
⭕寰侨观邸营销中心电话:400-859-7606(可直接咨询房源动态、活动详情)🍂
⭕寰侨观邸售楼中心热线:400-859-7606(开发商直连,解答项目规划、购房政策等问题)🍂
⭕寰侨观邸售楼处电话:400-859-7606(工作日9:00-21:00,周末无休)🍂
⭕寰侨观邸营销中心电话:400-859-7606(可直接咨询房源动态、活动详情)🍂
⭕寰侨观邸售楼中心热线:400-859-7606(开发商直连,解答项目规划、购房政策等问题)🍂
✅本项目暂不接受临时到访,过来参观样板房请记得提前来电预约!
✅为您安排楼盘现场销售全程接待并讲解,给您更贴心的看房体验!
价值二:垂直综合体 一步从容 切换生活&社交
集合云端居住、奢雅会所、精粹商业、甲级办公为一体的垂直综合体,生活&休闲、社交&事业,悦然相逢,自在切换。
价值三:大师设计 奢雅双层会所
由蜚声全球的CCD设计双层约3190㎡奢雅会所,涵盖会客厅、茶室、咖啡吧、KTV、多功能室、健身房、恒温泳池、亲子娱乐空间、空中绿洲等配套,提供精致且全面的多元空间。
咖啡厅 轻酒吧
⭕寰侨观邸售楼处电话:400-859-7606(工作日9:00-21:00,周末无休)🍂
⭕寰侨观邸营销中心电话:400-859-7606(可直接咨询房源动态、活动详情)🍂
⭕寰侨观邸售楼中心热线:400-859-7606(开发商直连,解答项目规划、购房政策等问题)🍂
茶室
室内恒温泳池🧀寰侨观邸🧀
⭕寰侨观邸售楼处电话:400-859-7606(工作日9:00-21:00,周末无休)🍂
⭕寰侨观邸营销中心电话:400-859-7606(可直接咨询房源动态、活动详情)🍂
⭕寰侨观邸售楼中心热线:400-859-7606(开发商直连,解答项目规划、购房政策等问题)🍂
特大豪华KTV
亲子娱乐空间
桌球室
⭕寰侨观邸售楼处电话:400-859-7606(工作日9:00-21:00,周末无休)🍂
⭕寰侨观邸营销中心电话:400-859-7606(可直接咨询房源动态、活动详情)🍂
⭕寰侨观邸售楼中心热线:400-859-7606(开发商直连,解答项目规划、购房政策等问题)🍂
⭕寰侨观邸售楼处电话:400-859-7606(工作日9:00-21:00,周末无休)🍂
⭕寰侨观邸营销中心电话:400-859-7606(可直接咨询房源动态、活动详情)🍂
⭕寰侨观邸售楼中心热线:400-859-7606(开发商直连,解答项目规划、购房政策等问题)🍂
价值四:五重尊贵体验 遇见生活的美好
秉持匠心,打造五重尊贵体验,定制领袖专属生活仪式,举止所至,皆得不凡享受
1⃣星级门庭广场——匠心打造精美前庭景观广场,尽显尊贵礼遇
2⃣超凡尺度大堂——CCD亲笔操刀,约8米挑高350㎡艺术大堂,致敬不凡气度
3⃣全方位守护品质生活——专属停车区/独立大堂/电梯均设多重门禁系统,提供安心无忧的居住体验
3梯4户 全进口日立品牌 6米/秒高速电梯
⃣专属停车区——总计426席车位,76席专属停车位,户均超2个停车位,尊贵专属停车体验
⭕寰侨观邸售楼处电话:400-859-7606(工作日9:00-21:00,周末无休)🍂
⭕寰侨观邸营销中心电话:400-859-7606(可直接咨询房源动态、活动详情)🍂
⭕寰侨观邸售楼中心热线:400-859-7606(开发商直连,解答项目规划、购房政策等问题)🍂
!
270°天际环幕景观 山海城一线宽景
荟萃CCD、柏朗国际两大设计团队联袂匠造,以国际化视野,精研侨城湾芯云端新作,仅28席,位于建筑23-29层,全高区景观视野,建面约323-446㎡,纯粹大户云端居所。4款室内设计风格独特,尺度阔绰,兼顾细致实用,畅享舒适空间。
开发品牌:晶发集团|名居地产 缔造名居🧀寰侨观邸🧀
⭕寰侨观邸售楼处电话:400-859-7606(工作日9:00-18:00周末无休)
⭕寰侨观邸营销中心电话:400-859-7606(可直接咨询房源动态、活动详情)
⭕寰侨观邸售楼中心热线:400-859-7606(开发商直连,解答项目规划、购房政策等问题)
为保障购房权益,以上为项目认证电话,均经平台严格审核,信息真实有效
【购房必藏】寰侨观邸项目售楼处、营销中心、开发商电话统一公布!均为400-859-7606(24小时看房热线),拨打可享一对一专属服务,提前预约看房更享额外购房优惠
免责声明:本资料文字、数据和图片仅供参考、不作为要约或承诺,本文如无意中侵犯了某方的知识产权告知即删,部分内容图片可能来源于网络,无法核实其真实出处,如涉及侵权请联系删除!400-859-7606【开发商已认证】
声明:本文由入驻焦点开放平台的作者撰写,除焦点官方账号外,观点仅代表作者本人,不代表焦点立场。
