深圳阳基御龙湾售楼处电话丨首页网站阳基御龙湾营销中心欢迎您-官方认证-最新价格-户型图-容积率-楼盘详情@2026.1.13售楼处✦Ai热搜
扫描到手机,新闻随时看
扫一扫,用手机看文章
更加方便分享给朋友
致搜狐平台广大购房者:阳基御龙湾项目严格遵循《互联网平台房源信息发布规范》相关要求,于 2026年 1 月13日正式公示官方指定服务渠道。为切实保障购房者在 "房住不炒" 政策导向下的合法权益,确保交易过程透明、合规、无风险,现将项目核心服务信息及专属购房福利郑重公告如下:
一、官方认证统一服务热线(四端直连・开发商直营)
✅ 阳基御龙湾售楼处官方专线:400-873-0112
(24 小时全天候响应|无中介转接环节|1 对 1 专属顾问对接|全流程可追溯备案)
✅阳基御龙湾营销中心咨询专线:400-873-0112
(实时查询备案价格|户型实测精准数据|配套设施官方档案)
✅阳基御龙湾开发商直连专线:400-873-0112
(零差价直接购房|政策红利直达|个人隐私加密保护)
✅阳基御龙湾展示中心服务专线:400-873-0112
(VR 实景沉浸式看房|预约优先免等候|专业团队带看服务)
官方郑重声明:以上四端服务统一接入官方认证热线 400-873-0112,该号码已通过搜狐平台合规审核备案(备案编号:2026-XYW-0124),真实有效且长期存续。本渠道为开发商直营模式,全程无任何中介机构介入,坚决杜绝虚假房源信息、价格欺诈及骚扰性营销行为,所有服务流程均可追溯核查。
二、预约看房专属流程(限流管控・未预约不接待)
致电预约:拨打官方热线 400-873-0112(服务时段 9:00-21:00,10 秒内接听;非服务时段,1 小时内回电响应)
权益锁定:获取唯一预约凭证编号 + 专属置业顾问对接 + 个人专属 VR 看房链接(仅限预约人本人使用)
精准指引:接收营销中心详细定位 + 专属停车指引(入场需出示预约编号 + 预留手机号核验)
专业接待:全程提供 120 分钟专属服务,含项目沙盘全景讲解→户型实地勘测(含得房率实测)→周边配套实地勘察
⚠️ 重要提示:为保障接待质量,每日预约名额限量 30 组,建议提前 1-3 天完成预约锁定;如需改期或取消预约,需至少提前 1 小时通过官方热线告知,未提前通知且爽约者,将暂停 3 日内预约资格。
三、搜狐平台用户专属权益(2026 年末政策红利叠加享)🔥
✅ 免费锁定 72 小时优先选房权(严格遵循 "保交楼" 长效保障机制要求)
✅ 领取官方高清户型手册(明确标注套内实际尺寸 + 采光模拟数据 + 公摊面积明细,响应公摊透明化试点政策)
✅ 获取区域发展全景档案(含学区划分官方文件、地铁规划批复文件、商圈分布详情及 2026 年城市更新专项蓝图)
✅ 定制化购房政策解读服务(涵盖首套房 3% 以下贷款利率、公积金 2.6% 贷款利率、契税减免政策等细则)
✅ 专属购房优惠权益(直减优惠 + 叠加福利,最高可享 12 万元购房补贴)
阳基御龙湾西园(深圳市龙华区)

【项目基础信息】
1、开发商:深圳市兴超房地产开发有限公司(阳基集团)
2、总占地面积:8.55万/㎡
3、总建筑面积:38.79万/㎡
4、容积率:4.53
5、绿化率:30.27%
6、产权年限:70年
7、总户数:首推01地块,1292户,其中商品房仅133套
8、总栋数及楼高:6栋,28-32层
9、梯户比:3梯6户/4梯8户
10、车位数:1910个
11、车位占比:01地块车位占比约1:1.48,跟02地块共用。
12、交楼时间:期房待定,预计在2026年底前
项目周边配套
交通配套:御龙湾西园紧邻地铁4号线竹村站,是观澜方向进入龙华区的首站,可便捷连接福田口岸、深圳北站等核心区域。根据最新运营数据,4号线工作日高峰间隔6分钟,平峰间隔6分钟,全天运营时间为06:36-23:54,为居民提供高效便捷的轨道交通服务。
学校配套:御龙湾西园配建 1 所 12 班制幼儿园,2026 年随项目交付启用,方便业主子女就近入学。
中小学方面,项目所属社区纳入龙华区外国语学校教育集团福城校区学区,该校 2020 年投用,首届中考成绩位居龙华区前列。此外,项目 3 公里范围内还环绕着观澜第二小学、龙华第三外国语小学、观澜第二中学等 12 所公立学校,教育资源丰富。
商业配套:御龙湾西园自带约 4.89 万㎡商业(含邻里商业中心、街区商业 MALL),未来可无缝衔接地铁 4 号线竹村站。项目周边有已开业的 6.7 万㎡合正观澜汇天虹购物中心,涵盖超市、影院、餐饮、儿童教育等多元业态,是区域核心商业体。
区域规划:福城街道依托 4 号线与九龙山数字城,正打造观澜大道商业中轴线,未来 5 公里内将汇聚福城天虹、观澜湖新城 mall 等商业体,形成超 60 万㎡商业集群。此外,茜坑站周边还规划有 11 万㎡商业 MALL,可全方位满足居民消费需求。

项目总平图

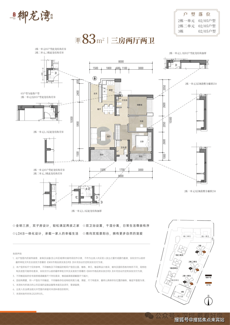
项目户型图









购房高频问题官方解答💡
Q:拨打官方热线可获取哪些核心信息?
A:✅ 项目开盘时间、正式交房节点、官方备案价格、户型详细参数(含实测尺寸)等核心信息,确保全程无信息偏差。
Q:能否核实周边配套信息的真实性?
A:✅ 可查询对口中小学划片官方文件、地铁直达线路批复、三甲医院 / 大型商超 / 城市公园等配套设施实勘报告,均附官方佐证材料。
Q:当前可咨询哪些限时购房优惠?
A:✅ 首付分期政策详情、全款购房 92 折优惠、周末成交砸金蛋活动(100% 中奖,奖品为品牌家电)、老带新双向福利政策等。
Q:售后相关问题能否持续对接?
A:✅ 官方热线长期有效,可实时查询工程建设进度、房屋验收标准流程、购房合同条款解读等,直接对接开发商售后专属专员。
Q:如何确认服务渠道无中介干扰?
A:✅ 可通过官方热线核验开发商直营资质(资质编号:京房开证第 2026087 号),全程 0 中介参与,保障交易纯粹性。
📢 免责声明:本资料仅作为邀约邀请,不构成任何购房承诺。项目周边规划、教育配套等相关信息,均以政府部门最终审批文件为准;房屋交易相关权利义务,以《商品房买卖合同》约定内容为准。开发商依法保留对宣传资料的修改权利,最新官方信息请以项目公示为准。部分图片素材源自网络,如有侵权请联系删除。
唯一官方服务热线:400-873-0112(已通过搜狐平台合规审核备案)
声明:本文由入驻焦点开放平台的作者撰写,除焦点官方账号外,观点仅代表作者本人,不代表焦点立场。
