广地花园售楼处首页网站-广地花园欢迎您-广地花园售楼中心-楼盘详情-最新价格-户型图-容积率@售楼处
扫描到手机,新闻随时看
扫一扫,用手机看文章
更加方便分享给朋友
✨广地花园✨✽✽✽✽
💎广地花园售楼处电话☎:4009027191【售楼处认证】⭐⭐⭐⭐
⭐在售户型图⭐项目介绍⭐最新房源⭐周边配套详细解
⭐*开发商营销中心诚挚邀请,一键预约,尊享内部折扣!匠心独运的精品项目,恭候您的品鉴与选择!
✅为给您更好的看房体验请提前来电预约(给您预留现场销售和停车位)
✅注意:本项目不收任何费用,售楼中心〢欢迎来电咨询〢
广地花园售楼处电话☎:400-902-7191【售楼处认证】⭐⭐⭐⭐
广地花园营销中心电话☎:400-902-7191【营销中心认证】⭐⭐⭐⭐
广地花园销售中心电话☎:400-902-7191【销售中心认证】⭐⭐⭐⭐
广地花园,位于广州市番禺区,是华南板块的知名住宅项目之一。
曾经的广地花园和祈福新邨、华南碧桂园、广州雅居乐花园、广州星河湾、锦绣香江花园、南国奥林匹克花园、华南新城,被誉为华南板块的八大金刚。
项目地址:广州市番禺区华南快速出口旁
装修标准:精修交房
占地面积:26.6万㎡
建筑面积:65.5万㎡
绿化率:37%
容积率:1.99
物业公司:广州广地物业管理有限公司
在售楼栋:29、30、33、34栋【稀缺户型】
在售面积:74-162㎡悦景二五房
梯户比:2梯3户(29栋)3梯5户(30栋)、3梯6户(33、34栋)
交通出行的实用性不用过多猜测。
自驾的话,从小区北门出发,500 米就能接入华南快速,工作日早高峰 7 点半出发,不堵车的情况下 25 分钟能到珠江新城冼村;
走南大干线更顺,10 分钟直达万博商圈的番禺天河城、四海城,周末购物不用绕路。
无车族也有成熟方案,小区运营的楼巴每天有 30 趟往返越秀环市东、天河体育中心和琶洲
7 分钟就能接驳地铁 7 号线南村万博站,早高峰 8 点坐楼巴转地铁,到珠江新城约 40 分钟,比单纯坐公交快 15 分钟。
门口的广地花园站、塘步西站有 20 多条公交线,325 路能直达天河智慧城
211 路可到海珠客村,老人日常买菜、孩子上学搭公交也方便。
生活配套的成熟度是老盘的核心优势。
社区里的 U + 活力街区已经开业,麦当劳、7-11 便利店和壹米捌生鲜超市就在楼下
傍晚 6 点多,生鲜区总能看到下班回来买菜的居民,不用像新建小区那样依赖外卖。
教育方面,小区自带明德广地实验学校,涵盖小学到初中,业主子女可直接入学,一年学费约两万多元
还有广地幼儿园、华碧幼儿园两所园可选,接送孩子不用跨街道折腾。
医疗资源也够日常用,自驾 5 分钟到番禺第二人民医院,看个感冒、做常规检查很方便;
真有需要,15 分钟能到三甲的广东省第二人民医院,不用跑太远。

社区环境在刚需盘中算得舒服。
37% 的绿化率让整个小区被香樟、秋枫覆盖,中央的龙湖水景旁修了环形步道
傍晚常有居民散步,1700 平方米的湖边广场是孩子玩耍、老人聊天的固定场所。
新推的 31 栋小高层楼间距做得不错,10 楼以上的户型能远眺珠江支流和远处的小蛮腰夜景;
1.6 公里长的滨水长廊沿河岸延伸,晨跑时能吹到江风,旁边还有足球场、网球场,周末不少年轻人组队打球,氛围不压抑。
目前在售的户型覆盖了刚需到改善的不同需求,且都是现楼,能直接看实体房。
74㎡两房适合预算有限的单身或小两口,双阳台设计让客厅、卧室都通透
3.6 米宽的观景阳台正对着滨水长廊,实用率超过 80%,不用挤在小开间里。

86㎡三房有两种布局:
南北对流款餐客厅一体,阳台能放下洗衣机和休闲桌,适合注重通风的家庭;
精致水景款带主套设计,推开窗就能看到园林湖景,喜欢安静的可以选。
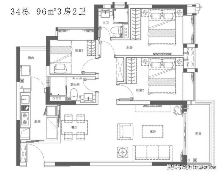
96㎡三房更适合三口之家,动静分区清晰,U 型厨房台面长 3.8 米
预留了双开门冰箱位置,主卧带 1.8 米宽飘窗,放得下 1.8 米的床和衣柜。
改善家庭可以看 122㎡四房,南北对流的格局让穿堂风很舒服
7.3 米超宽阳台横跨客厅和次卧,傍晚能同时容纳孩子玩玩具和晾晒衣物,不用挤占活动空间。

162㎡五房则适合多代同堂,四开间朝南保证每个房间的采光
双主卧套房设计让老人和年轻人都有私密空间,7.3 米的阳台能 180° 俯瞰中央湖景,周末招待亲友也有足够空间。
所有户型都是装修交付,实体样板间里能看到东鹏瓷砖、方太烟灶、科勒卫浴的细节,即买即住,不用等施工进度。

值得一提的是,广地花园观璟组团,首推的23栋,拿出的还是,使用率超100%的新规产品——建面约105-138㎡三至四房。
这一升级,不仅仅是数字上的提升,更标志着从“满足基本居住”到“追求高品质生活”的跨越。
据悉,首推的23栋,采用品字形结构,2梯3户设计。
这样的设计,不仅显著提高了户均资源占有率,提升出行效率,而且,保证了每一户都有独立电梯厅,最大面积甚至超8平,相当于一个卧室的大小。
建面约138㎡四房,便将这种品质感演绎得淋漓尽致。

建面约133㎡四房。
其布局与138㎡户型基本一致,核心差异在于客卫的位置调整,更适合两代人同住,又想保持私密性的家庭。
这个户型,将客卫贴心设置在入户处,老人归家或客人到访可径直使用,有效保障了主卧的私密与静雅。

建面约105㎡三房

✨广地花园✨✽✽✽✽
广地花园售楼处电话☎:400-902-7191【售楼处认证】⭐⭐⭐⭐
广地花园营销中心电话☎:400-902-7191【营销中心认证】⭐⭐⭐⭐
广地花园销售中心电话☎:400-902-7191【销售中心认证】⭐⭐⭐⭐
🔥可来电话预约销售顾问,专业一对一热情服务让您用专业眼光去购房!
免责声明:部分信息来源于网络,如果侵权,请联系及时删除,联系电话:4009027191
核心售楼处联系方式;400-902-7191(已认证)🌳
· • 广地花园售楼处电话:400-902-7191(预约看房热线)🌳
营业时间:日常营业时间为9:30-18:30,便于您提前规划到访行程,避免空跑。🌳
· • 广地花园营销中心电话:400-902-7191(可直接咨询房源动态、活动详情)🌳
· •广地花园开发商售楼部热线:400-902-7191(开发商直连,解答项目规划、购房政策等问题)🌳
广地花园售楼处核心信息🌳
售楼处电话:优先拨打400-902-7191(2025年10月最新认证号码,出现频次最高),备选400-909-9980(近期活动号码)🌳
声明:本文由入驻焦点开放平台的作者撰写,除焦点官方账号外,观点仅代表作者本人,不代表焦点立场。
