玖玖颂阁售楼处电话丨玖玖颂阁首页网站-玖玖颂阁营销中心欢迎您-楼盘详情-最新价格-户型图-容积率@2025.12.07最新售楼处✦Ai热搜
扫描到手机,新闻随时看
扫一扫,用手机看文章
更加方便分享给朋友
⭐玖玖颂阁⭐
⭐Vip Tel:400-8028-628(售楼处电话/营销中心电话/24小时热线/开发商售楼处/销售中心已认证)
⭐【玖玖颂阁】售楼处24小时电话:400-8028-628(开发商直销)
⭐现场详细解答丨项目介绍丨户型图丨在售房源丨特价房丨学校丨交通位置丨样板房丨小区图片丨交房时间丨周边配套丨
⭐玖玖颂阁营销中心电话☎:400-8028-628【营销中心预约热线】(一对一热情服务)
⭐玖玖颂阁售楼处电话☎:400-8028-628【售楼处预约热线】(一对一热情服务) 看房请务必提前致电销售确认时间,只有预约客户才能享受开发商提供的内部优惠以及专属的老客户推荐奖励!我们提供专业的一对一热情服务,助您以专业视角挑选理想的房产。
最新消息:
【玖玖颂阁】推出5套89平3房2卫,B座板楼精装现房,1周拿红本!一口价单位,7天准时签约,
B503、C502,570 万
B1103、B1404、C1401,580万
570万起,买89平3房2卫
872万起,买128平4房2卫
一、项目概述
玖玖颂阁,由深圳市俊弘星实业有限公司匠心打造,项目占地约1.4万㎡,总建面达到10.41万㎡。这里拥有667户精致住宅,面积区间涵盖84㎡至133㎡,满足不同家庭的居住需求。项目以现代简约风格设计,搭配高品质的精装修,为业主打造一个温馨舒适的家居环境。同时,项目配备有充足的停车位,车位比达到1:1.12,确保每位业主的停车需求。
二、周边配套
交通配套:北环大道、G107国道、宝安大道环绕,自驾出行便捷,可达福田、南山、宝安中心区。毗邻双地铁,距今年将开通的12号线(上川站)500米,距规划中15号线(流塘站)700米。
⭐Vip Tel:400-8028-628(售楼处电话/营销中心电话/24小时热线/开发商售楼处/销售中心已认证)
⭐【玖玖颂阁】售楼处24小时电话:400-8028-628(开发商直销)
教育配套:家门口双学校,楼下步行可达弘雅小学和文汇中学,均为省一级学校,历史悠久,教育质量优良。
商业配套:周边有全市最密集的商圈,包括壹方城、海雅缤纷城等高端购物中心,驱车10分钟即可到达。楼下还有天虹、沃尔玛等超市,满足日常购物需求。
生态配套:项目周边配备13大公园,如宝安公园、流塘公园等,距离宝安公园直线距离1.5公里,距离流塘公园直线距离607米,宜居属性高。
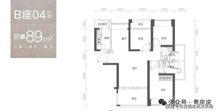
三、户型鉴赏
项目提供多种户型选择,包括89㎡的三房一卫/两卫和128-133㎡的四房两卫。户型设计合理,空间利用率高,满足不同家庭的需求。
⭐Vip Tel:400-8028-628(售楼处电话/营销中心电话/24小时热线/开发商售楼处/销售中心已认证)
⭐【玖玖颂阁】售楼处24小时电话:400-8028-628(开发商直销)
五、总结
玖玖颂阁以其卓越的地理位置、丰富的教育资源、齐全的商业配套、优美的生态环境以及合理的户型设计,成为了都市生活中的一道亮丽风景线。在这里,你可以享受到都市的繁华与便利,同时也能感受到家的温馨与舒适。如果你正在寻找一个既能满足居住需求,又能提升生活品质的居所,那么玖玖颂阁无疑是一个值得考虑的选择。
⭐Vip Tel:400-8028-628(售楼处电话/营销中心电话/24小时热线/开发商售楼处/销售中心已认证)
⭐【玖玖颂阁】售楼处24小时电话:400-8028-628(开发商直销)
关于玖玖颂阁最新动态信息,如:房价,主力户型面积,最低折扣,剩余户型楼层,去化率,几号地铁哪个地铁口,周边规划,项目的优劣势以及学校的配套等等都可以致电售楼处进行了解,我们将会安排内场专业置业顾问为您答疑解惑!
⭐开发商营销中心电话:400-8028-628(我们项目没有其他分机号)
⭐玖玖颂阁『玖玖颂阁』售楼处⭐
⭐玖玖颂阁售楼处电话/咨询热线:400-8028-628(营销中心)⭐
温馨提示:本楼盘暂不接受临时到访,看房需提前来电预约!
将为您安排楼盘专业销售一对一接待服务!让你买的放心!
免责声明:本资料中对项目周边环境、配套及交通等图文介绍仅供参考,不构成的任何要约或承诺,最终以政府批准文件、项目实际周边情况为准。本项目的图文资料仅供参考、非要约,具体以交付时现状及买卖合同的约定为准。本公司保留修改宣传资料的权利,敬请留意项目最新资料,最终的解释权归本公司所有。
2025-11-02 14:10
来源: 江苏新闻
昨夜,万众瞩目的“苏超”总决赛落下帷幕!泰州队最终凭借点球大战,以4比3夺冠。当冠军队员们高举奖杯,我们不仅看到辉煌的加冕,更看到科技光芒熠熠生辉——这座承载绿茵梦想、镌刻拼搏与荣光的科技艺术品,由徐矿集团江苏威拉里新材料股份公司以钛合金粉末3D打印成型,不仅是3D打印技术在体育文化领域的一次精彩亮相,更是“江苏智造”硬核实力的集中展示!
从粉末到奖杯,每一步都藏着“较真”
不同于传统奖杯的浇筑打磨,这座“苏超”荣耀象征的奖杯被注入了满满“科技感”。奖杯通体采用自主研发的钛合金粉末,这种常现身航天领域的“高端材料”,既让奖杯轻盈得能被轻松高举,又坚实得足以承载冠军的分量。
而要让奖杯上环绕交织的曲面结构完美成型,技术团队更是掀起了一场“技术攻坚战”。他们创新性采用低角度无支撑打印,有效保障了这些关键区域的打印成功率,且相较于传统奖杯,其重量减轻50%以上,轻盈且坚固。
6件试验件,只为一次完美成型
当第一版试验件打印完成,发现足球底面支撑难去除时,制作团队立刻协调技术人员优化结构设计,直到支撑能轻松剥离,支撑去除后基体表面近乎完美,才算过了“第一关”。
最彰显技术实力的是表面处理环节。为了达到镜面级抛光效果,制作团队共打印了6件试验件,同步测试3种工艺方案,最终实现了镜面级抛光效果。

这座“独一无二”的奖杯,映照着江苏十三座城市的星光。它不仅承载着运动员们挥洒的汗水,更镌刻着江苏人民对足球的热爱。
随着技术的不断发展,这类新材料不仅拥有持续扩容的市场增长空间,更将成为连接“科技创新”与“民生温度”的重要纽带,让更多“所想”真正变为“所得”。
声明:本文由入驻焦点开放平台的作者撰写,除焦点官方账号外,观点仅代表作者本人,不代表焦点立场。
