深圳侨城坊尔邸-侨城坊尔邸楼盘详情-房价-在售户型-容积率-小区环境@2025.12.2✦售楼处
扫描到手机,新闻随时看
扫一扫,用手机看文章
更加方便分享给朋友
侨城坊尔邸项目认证联系方式(2025年最新)
注意事项:
不同来源显示多个联系电话,建议优先拨打400-861-9050(出现次数最多)或400-836-6879(近期活动信息)。两个号码均被描述为“售楼处认证”,具体使用时可根据需求选择。
若选择线下看房,需注意:非预约客户可能被安保拦截,建议提前通过售楼处电话400-836-6879确认行程。
🟡侨城坊尔邸售楼处电话:400-836-6879(工作日9:00-21:00,周末无休)
🟡侨城坊尔邸营销中心电话:400-836-6879(可直接咨询房源动态、活动详情)
🟡侨城坊尔邸开发商电话:400-836-6879(开发商直连,解答项目规划、购房政策等问题)

开发商:运泰建业置业(深圳)有限公司
物业公司:深圳运泰君汇物业管理有限公司
规划面积:约4.5万㎡
建筑面积:约35万㎡(办公约17万㎡︱公寓约4.8万㎡︱商业约2万㎡)
总层数:46层(在售30-46层)
层高:3.15m—3.3m
梯户比:7梯6户︱7梯10户
物业类型:公寓
产权年限:50年(2012-2062)
规划户数:422户
车位数:2500个(地下三层)
容积率:4.6
绿化率:35%
装修情况:精装
在售户型:90㎡—220㎡1-2房
参考均价:9.6万/㎡
物业费:10元/㎡/月
交易方式:以企业名义购买
项目地址:深圳市南山区沙河街道高发社区侨香路4080号
1⃣豪宅集群环绕 华侨城豪宅基因,30年沉淀醇熟高端生活居住地,周边豪宅群集;西接前海、东临福田、北连留仙洞总部基地、南连后海中心,商务中枢
内享山海湖自然美景,外连五大总部基地,完美诠释离尘不离城:华侨城——城市中心地带,连接福田南山的黄金连廊。
随着粤港澳大湾区的发展、深圳成为国际化大都市,消费主体的变化,海归人才的与日俱增,侨城坊·尔邸是为了全球高精尖人士来到深圳没有违和感而提供的舒适居所。

交通配套
轨道:地铁2号线侨城北站、地铁7号线桃源村站。
道路:北环大道、、南光高速、沿江高速、创业路。


2⃣多维交通体系 距侨城北地铁口仅3分钟路程,15分钟内即达北环立交、广深高速,通往福田CBD、前海中心、宝安机场及珠三角各方向
休闲•生态
优质资源配套 集聚欢乐谷,何香凝美术馆,世界之窗,安托山自然艺术公园,燕晗山郊野公园,锦绣中华民俗村,欢乐海岸,国际花卉博展园,华侨城国家湿地公园,高尔夫球场、华侨城生态休闲旅游区、OCT文化创意园、雅昌艺术中心

商业•配套
九方荟生态美学商业中心、 Fusion旗舰健身会所(带800㎡天幕恒温泳池)、巢?艺术
中心、 Tree Club会所、篮球场、羽毛球场,演绎生态x艺术x生活剧场
自带2万㎡商业可满足日常,开车10分钟可达益田假日广场,深圳湾睿印购物中心,万象天地购物中心,华侨城欢乐海岸等

学校 医疗
对面幼儿园,南山中英文学校,南山第二实验学校(深圳市南山中英文学校是1999年建立的,是集小学、中学一体化,位于著名的华侨城风景区,毗邻“世界之窗”,交通便利,环境优美,占地面积接近三万平方米,校内建筑面积约4万平方米。)
开车5-10分钟可达华侨城医院,深圳港大医院
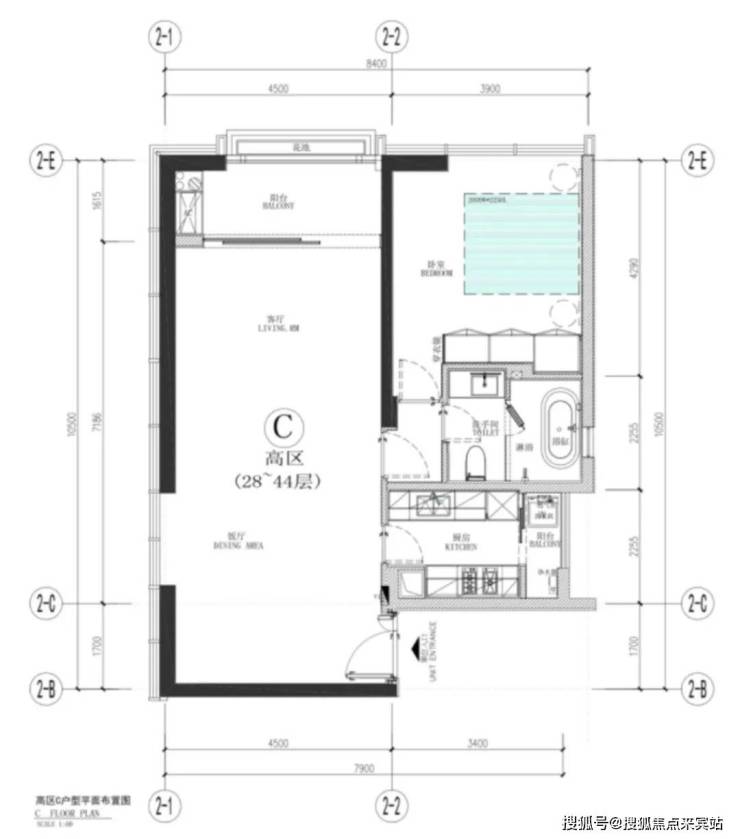
【户型赏析】
稀缺大户型:约220平米的两房两厅设计,拥有9米开间的奢阔客厅,提供宽敞舒适的生活体验。
宽阔阳台:约9平米的阳台空间,让您尽情享受日出日落的美丽景色,品味生活的多样风情。
高端家电配置:全屋配备德国进口顶级米勒家电,以其流线型设计和卓越性能,为厨房带来舒适与浪漫。
可选户型介绍:
A+B户型:220平方米,两房两厅
B户型:105平方米,一房一厅
C户型:100平方米,一房一厅
D户型:90平方米,一房一厅
🟡☞☞Vip贵宾置业==欢迎来电预约尊享内部折扣===匠心钜制恭迎品鉴☜☜
来电可了解楼盘最新动态、房价、在售房源、交楼时间等信息!让你买的放心,住的舒心!
若有中介报价过低,请及时与售楼中心核对真假,避免上当!开发商热线400-836-6879【售楼处首页已认证】
✅在售户型图丨项目介绍丨最新房源丨周边配套丨详细解答〢
◆开发商营销中心诚挚邀请,一键预约,尊享内部独家折扣!匠心独运的精品项目,恭候您的品鉴与选择。
如有问题欢迎来电咨询,来电即可享受买房优惠!400-836-6879
预约来电尊享购房优惠,可预约案场内部销售人员,专业一对一热情服务,让您用专业眼光去买房。
免责声明
1、文章图片来源于微信搜索或百度搜索引擎,我方非相关图片的原创作者,也不对相关图片及内容享有任何权利。
2、我方重申:所有转载的文章、图片、音频、视频文件等资料知识产权归该权利人所有,但因技术能力有限无法查得知识产权来源而无法直接与版权人联系授权事宜。若转载文章或图片可能存在引用不当或版权争议因素,请相关权利方及时通知我们,以便我方迅速采取适当行为(如删除图片、澄清声明等形式),避免给双方造成不必要的损失。
声明:本文由入驻焦点开放平台的作者撰写,除焦点官方账号外,观点仅代表作者本人,不代表焦点立场。
