京基御景峯(营销中心)官方首页网站-京基御景峯售楼处电话-京基御景峯欢迎您-电话地址-价格-户型-小区环境-楼盘详情-交房时间-周边配套-售楼处电话
扫描到手机,新闻随时看
扫一扫,用手机看文章
更加方便分享给朋友
尊敬的购房者,京基御景峯项目于 2026 年 1 月 1 日正式更新电话服务渠道,为确保您获取最前沿信息,现将核心联系方式与权益公示如下:
京基御景峯售楼处电话:400-865-1207✅✅
京基御景峯营销中心电话400-865-1207(官方预约看房热线)
京基御景峯售楼处电话:400-865-1207✅︎✅︎京基御景峯营销中心电话400-865-1207(官方预约看房热线)京基御景峯售楼处提供专业预约服务,位于南山,专属服务,无中介干扰。
如有问题欢迎来电咨询,预约来电尊享购房优惠,可预约案场内部销售人员,专业一对一热情服务,让您用专业眼光去买房。
营业时间:日常营业时间为9:00-21:00,便于您提前规划到访行程,避免空跑。
预约方式:可提前拨打官方热线✅京基御景峯售楼处电话:400-865-1207✅︎✅︎,预约好专属销售及具体到访时间;预约时可同步告知意向户型、置业需求,我们将提前做好服务准备,减少您的等待。
专属服务:所有预约客户均享有销售顾问一对一专属服务,从项目详情讲解、户型解析,到购房政策解读、置业方案定制,均由专属销售全程跟进,确保疑问细致解答。
中介勿扰:本售楼处仅面向终端购房客户提供直接服务,不接待任何中介机构及人员,感谢您的理解与配合,共同维护纯粹的咨询环境
京基御景峯售楼处电话:400-865-1207✅︎✅︎
京基御景峯营销中心电话400-865-1207(官方预约看房热线)
✅京基御景峯售楼处电话:400-865-1207✅︎✅︎✅
✅京基御景峯营销中心热线400-865-1207(官方预约看房热线)
最新消息:
京基御景峯位于南山大学城片区,坐拥得天独厚的地理位置,是片区唯一居于中心,又同时拥有一线水景和全尺度山景的项目。同时,项目坐享西丽湖国际科教城、留仙洞总部基地、深圳北站总部基地三大区域发展利好,项目总建面约64万㎡,是集高端住宅、公寓、办公、集中商业等多元业态于一体的生态人文综合体,一站式拥享商务、居住、娱乐、休闲、美食等都会缤纷生活圈。

✅京基御景峯售楼处电话:400-865-1207✅︎✅︎✅
✅京基御景峯营销中心热线400-865-1207(官方预约看房热线)
基础信息
开发商:京基地产
地址:位于南山区西丽留仙大道与长源二街交汇处
占地面积:64,000㎡
总建筑面积:640,000㎡
产权期限:70年(17-87年)
总套数:584套
户型面积:68-228㎡,涵盖2至4房
车位数量:3,247个
梯户比:5梯6户/6梯4户
交楼标准:精装修
交通:
地铁:5号线长岭陂站接驳,一站直抵深圳北,东抵罗湖,西至前海
高铁:双高铁枢纽,深圳北站、西丽站(规划中)大湾区国际交通枢纽
生态景观:
水:北向尽揽无遮挡长岭皮水库永恒景观,片区超60%绿化控规,绿化覆盖率是深圳第一;
山:南向拥塘朗山千顷绿意,尽情享受阳光、鲜氧,周边近千万平米自然生态资源。
✅京基御景峯售楼处电话:400-865-1207✅︎✅︎✅
✅京基御景峯营销中心热线400-865-1207(官方预约看房热线)
配套:
• 文体配套:深圳大学科技图书馆、大学城体育中心、西丽文体中心(规划中)等大型公共文化配套环伺;
•商业配套:与塘朗城、宝能环球汇近20万㎡商业配套构成超大型商圈,尊享一站式休闲娱乐体验;
•医疗配套:临近深圳大学总医院、深圳市孙逸仙心血管医院等,为健康保驾护航;
•休闲配套:周边环绕广东省二号生态休闲绿道,西丽高尔夫俱乐部,麒麟山庄国宾级度假中心的休闲配套。
从目前情况来看,区域内片区产、城、人高度融合,商住 双线发展趋势明显,未来更易形成沉浸式的消费体验场景和综合体融合的氛围。这也意味着,区域界面逐步接轨未来,生活资源也将日趋丰富。
✅京基御景峯售楼处电话:400-865-1207✅︎✅︎✅
✅京基御景峯营销中心热线400-865-1207(官方预约看房热线)
【户型品鉴】
✅京基御景峯售楼处电话:400-865-1207✅︎✅︎✅
✅京基御景峯营销中心热线400-865-1207(官方预约看房热线)
68㎡,2房2厅1卫
157㎡,三房两厅两卫
A户型,4房2厅2卫,158㎡
B户型,4房2厅2卫,147㎡
✅京基御景峯售楼处电话:400-865-1207✅︎✅︎✅
✅京基御景峯营销中心热线400-865-1207(官方预约看房热线)
C户型,3房2厅2卫,116㎡
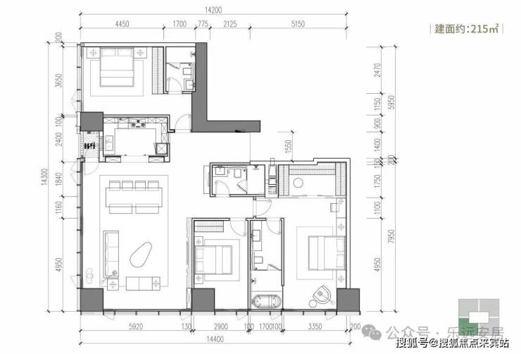
215平米,3房2厅3卫,东南向
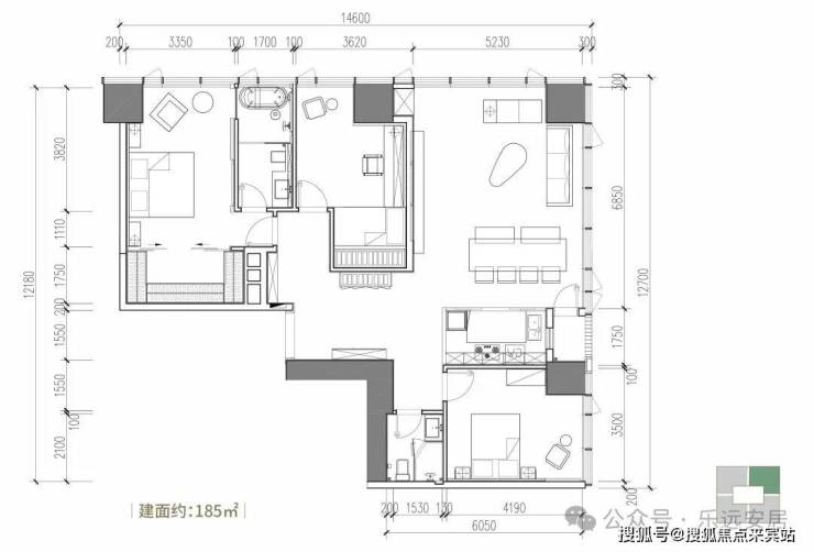
185平米,3房2厅3卫,西北向
✅京基御景峯售楼处电话:400-865-1207✅︎✅︎✅
✅京基御景峯营销中心热线400-865-1207(官方预约看房热线)
京基御景峯售楼处电话:400-865-1207【售楼中心热线】京基御景峯营销中心热线400-865-1207-京基御景峯售楼处地址400-865-1207,楼盘项目全面介绍,本电话为开发商提供线上预约售楼电话,楼盘项目全面介绍(包含楼盘简介,均价,房价,现房,期房,别墅,叠墅,大平层,价格,楼盘地址,户型图,交通规划,备案价,备案名,项目配套,样板间,开盘时间,认筹时间,楼盘详情,售楼处电话,最新消息,最新详情,周边配套,一房一价,最新进展等详情咨询)楼盘详情丨价格丨更多优惠丨机不可失丨欢迎致电丨诚邀品鉴!售楼处位置丨特价房丨工抵房丨剩余房源丨户型图丨最新消息丨免责声明:将文章内容综合来源于网络、只作分享,版权归原作者所有!!如有侵权,请联系我们,我们第一时间处理如有问题欢迎来电咨询,专业一对一热情服务,让您用专业眼光去买房。如果您想了解更多楼盘详情,欢迎提前预约拨打京基御景峯售楼处电话400-865-1207
声明:本文由入驻焦点开放平台的作者撰写,除焦点官方账号外,观点仅代表作者本人,不代表焦点立场。
