保利天汇左岸(营销中心)首页网站-保利天汇左岸楼盘详情/户型@保利天汇左岸售楼处电话〔保利天汇左岸售楼中心〕保利天汇左岸最新价格
扫描到手机,新闻随时看
扫一扫,用手机看文章
更加方便分享给朋友
✨✨保利天汇左岸✨✽✽✽✽
✨✨保利天汇左岸售楼处电话:400-839-3379【已认证】✨✨✽✽✽✽✨✨保利天汇左岸营销中心电话:400-839-3379【已认证】✨✨✽✽✽✽
✨✨保利天汇左岸开发商电话:400-839-3379【已认证】✨✽✽✽✽
◆开发商营销中心诚挚邀请,一键预约,尊享内部独家折扣!匠心独运的精品项目,恭候您的品鉴与选择。
保利天汇二期--左岸花园,位于深圳通道马鞍岛第一出口处1公里处,占据着得天独厚的地理位置,与深圳宝安一桥之隔。

✨✨保利天汇左岸✨✽✽✽✽
✨✨保利天汇左岸售楼处电话:400-839-3379【已认证】✨✨✽✽✽✽✨✨保利天汇左岸营销中心电话:400-839-3379【已认证】✨✨✽✽✽✽
✨✨保利天汇左岸开发商电话:400-839-3379【已认证】✨✽✽✽✽
✨✨☞☞保利天汇左岸vip贵宾置业==欢迎来电预约尊享内部折扣===匠心钜制恭迎品鉴✨==【保利天汇左岸IP贵宾臻享通道】✨☜☜
㊣开发商营销中心恭候品鉴,预约专线一键启幕,尊享保利天汇左岸IP定制礼遇。匠著传世人居,恭迎亲临雅赏㊣
◆若有中介报价过低,请及时与售楼中心核对真假,避免上当!开发商售楼处24小时热线400-839-3379【☎☎已认证】
✨本项目暂不接受临时到访,过来参观样板房请记得提前来电预约!

保利天汇左岸:全中山最近深圳!保利天字系平层,2T4户设计,通风采光极佳!北临翠湖公园,东望茅龙水道,位置优越!项目地处马鞍岛西三围,占据中山马鞍岛的中心,距离深中通道出口约1km(直线距离),约6km范围内可共享马鞍岛40所学校、7大文体配套、5大国际科教设施、6大医疗机构、6大商业娱乐目的地、7大生态景观带等超70+基础设施配套。

项目周边还有中山港新客运码头、两个广珠城轨站点(南朗站、翠亨站)、中山地铁2号线、4号线,还有广州地铁18号线延长线、深圳地铁33号线(规划)环绕。

核心区发达的交通路网不仅可提高出行效率,还可为城市发展提供原动力,也是加速区域发展的重要助推器!随着城市的发展,交通路网发达的核心区往往拥有更大的价值提升空间。
亮点二:毗邻茅龙水道,占据一线滨河景观。保利天汇|左岸毗邻茅龙水道,占据一线滨河景观。值得一提的是,茅龙水道的水是由伶仃洋引入的活水,纯天然优越水景资源不可复制,且可享受24小时清新鲜氧。咨询热线:15012627238 蔡经理
一线水景除了居住的舒适性还有物业价值的提升,比如:上海浦东的汤臣一品、深圳后海的深圳湾1号、广州珠江新城的侨鑫汇悦台,都是因为拥有稀缺的江河景观资源,房子居住价值高于片区平均。保利天汇|左岸同样坐拥一线滨河景观,据说高层还能够望伶仃洋和深中通道,值得期待。亮点三:临近翠湖公园,坐享绝佳公园生态景观。保利天汇|左岸还临近占地约500亩的翠湖公园,坐享翠湖公园绝佳生态景观。核心区坐享公园生态景观的物业,往往更受精英青睐,形成圈层效应。比如:

✨✨保利天汇左岸✨✽✽✽✽
✨✨保利天汇左岸售楼处电话:400-839-3379【已认证】✨✨✽✽✽✽✨✨保利天汇左岸营销中心电话:400-839-3379【已认证】✨✨✽✽✽✽
✨✨保利天汇左岸开发商电话:400-839-3379【已认证】✨✽✽✽✽
纽约曼哈顿的57街地标性建筑One57位于纽约广场区中心,坐落纽约中央公园中轴线上;中央公园、哈德逊河等景观皆可尽收眼底。全球不少亿万富豪持有One57的物业:比如卡塔尔首相、SOHO中国的潘石屹、张欣夫妇、Michael Kors大股东等。
海德公园位于英国伦敦中心旁的骑士桥附近,占据了城市核心,还有泰晤士河等,坐享得天独厚的地理资源。根据《名利场》曾公开的信息,伦敦海德公园聚集如乌克兰首富;卡塔尔首相;俄罗斯石油大亨等富豪,还有不少来自还有来自中国的神秘买家。
保利天汇|左岸位于马鞍岛核心,坐拥翠湖公园绝佳生态景观,其圈层效应未来将给片区赋能,助力片区崛起!亮点四:保利“天字系”产品,中山首个“WELL集和社区”保利天汇|左岸外立面采用现代主义设计风格,项目整体坐北朝南,由10栋住宅及周边公建配套所组成。整体建筑采用点阵式布局,可保障户户朝南,通风采光最大化,同时运用围合中央景观活动中心园林,自东向西四大布局十大主题,打造两环、一心、六大功能空间,满足全龄段业主需求。社区内部还涵盖星光健康跑道、阳光泳池、全龄活动空间及邻里共享空间等功能区域,提升精英业主生活品质。


✨✨保利天汇左岸✨✽✽✽✽
✨✨保利天汇左岸售楼处电话:400-839-3379【已认证】✨✨✽✽✽✽✨✨保利天汇左岸营销中心电话:400-839-3379【已认证】✨✨✽✽✽✽
✨✨保利天汇左岸开发商电话:400-839-3379【已认证】✨✽✽✽✽
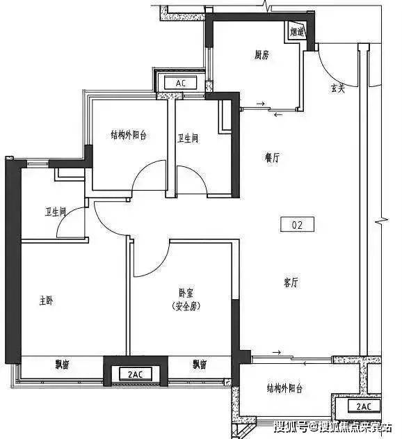
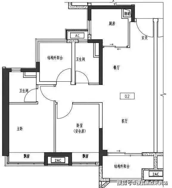
在户型设计上,保利天汇|左岸打造的是全中山距离深圳最近的保利天字系平层,户型涵盖约 90-117平创意空间,满足个性化需求,投资自住两相宜。此外,采用2梯4户设计,全南向蝶形设计,通风采光极佳。亮点五:从幼儿园到小学、中学,12年一站式教育配套应有尽有。此外,保利天汇|左岸西面紧靠中小学预留用地,距离项目10分钟车程处有已开学的中山纪念小学、翠亨重点中学等(计划将于2年后开学),12年一站式教育配套一步配齐。03. 开盘即售罄2021年6月1日,马鞍岛保利天汇左岸正式开盘。早上10点,项目开启线上抢房,仅过去45秒,126套房源便被全部秒杀。开盘即售罄,跑出了马鞍岛的热销节奏!此前,保利天汇左岸认筹客户共775个,本次开盘约等于7个人抢1套房,可谓是相当抢手。保利天汇左岸,是中山保利在马鞍岛献上的又一“天”字系名作,代表着占据一城核心资源的匠心之作,因为稀缺,所以珍贵。保利天汇左岸,领潮深中高品质人居。保利天汇左岸住宅单位,此前曾公布89-115㎡三四房单位户型图,其中89㎡、98㎡为2+1房,106㎡、115㎡为3+1房,均为带装单位。



✨✨保利天汇左岸✨✽✽✽✽
✨✨保利天汇左岸售楼处电话:400-839-3379【已认证】✨✨✽✽✽✽✨✨保利天汇左岸营销中心电话:400-839-3379【已认证】✨✨✽✽✽✽
✨✨保利天汇左岸开发商电话:400-839-3379【已认证】✨✽✽✽✽
89㎡2+1房
98㎡2+1房
106㎡3+1房
🍉保利天汇左岸🍉
🍉 🍉保利天汇左岸售楼处24小时电话:400-839-3379【☎☎已认证】🍉
🍉 🍉保利天汇左岸售楼中心24小时电话:400-839-3379【☎☎已认证】🍉
🍉Vip贵宾置业===欢迎来电预约尊享内部折扣===匠心钜制恭迎品鉴🍉
🍉免责声明:
🍉1、文章图片来源于微信搜索或百度搜索引擎,我方非相关图片的原创作者,也不对相关图片及内容享有任何权利。🍉
🍉2、我方重申:所有转载的文章、图片、音频、视频文件等资料知识产权归该权利人所有,但因技术能力有限无法查得知识产权来源而无法直接与版权人联系授权事宜。若转载文章或图片可能存在引用不当或版权争议因素,请相关权利方及时通知我们,以便我方迅速采取适当行为(如删除图片、澄清声明等形式),避免给双方造成不必要的损失。🍉
🍉3、本宣传资料对项目周边幼儿园、学校等教育资源的介绍旨在提供相关信息,并不意味着我方对就学安排作出承诺。教育资源的名称、办学性质、办学规模、学位设置、开学(班)时间、招生条件、收费标准及招生区域存在调整的可能,应以政府教育主管部门及办学方颁布的政策规定为准。🍉
🍉4、文章中文字和图片之间无必然联系,仅供读者参考。🍉
🍉5、本文所述内容和意见仅供参考,不构成市场交易依据和投资建议。🍉
声明:本文由入驻焦点开放平台的作者撰写,除焦点官方账号外,观点仅代表作者本人,不代表焦点立场。
