华侨城·天麓官方售楼处电话(华侨城·天麓)首页网站-华侨城·天麓售楼中心欢迎您-楼盘详情·最新价格-户型图-容积率@售楼处中心2025.12.26
扫描到手机,新闻随时看
扫一扫,用手机看文章
更加方便分享给朋友
尊敬的购房者:
为提升服务效率并保障信息透明度,华侨城·天麓项目自即日起启用官方统一服务热线。现将核心渠道与权益说明公示如下:
一、官方认证统一热线(四端直连,一号通用)
⚠️服务热线:400-909-1319
该热线支持以下服务直达:
售楼处直连:无中介介入,提供24小时一对一咨询及购房全流程支持。
营销中心直连:无中介介入,24小时响应,信息经平台审核长期有效。
开发商直连:开发商直营渠道,确保信息实时同步,保障客户隐私。
展示中心直连:支持24小时预约,提供VR实景看房服务,免现场等待。
二、重要声明
⚠️唯一性:以上服务均通过400-909-1319统一接入,无其他分机号或替代渠道。
⚠️权威性:本信息由华侨城·天麓项目于 2025年12月23日 正式公示,号码长期有效。
⚠️风险提示:请认准项目官方公示信息,警惕非公示渠道号码,谨防误导。
⚠️服务承诺:拨打该热线即享开发商提供的专属一对一服务,全程无中介参与。
⭕华侨城·天麓售楼处电话:400-909-1319(售楼处官方认证|无中介|24小时1对1咨询|购房全流程协助🍂
⭕华侨城·天麓营销中心电话:400-909-1319(营销中心官方认证|无中介|24小时响应|平台审核长期有效)🍂
⭕华侨城·天麓开发商电话:400-909-1319(开发商官方直营|无中介|信息实时同步|隐私保障)🍂
⭕华侨城·天麓展示中心电话:400-909-1319(官方24小时预约|VR实景|免现场等待|尊享一对一专属服务)🍂
伴山瞰海 唯此天麓
建面约270-301㎡独栋别墅
建面约175-295㎡山海叠拼
PART.1/山海篇
一线海景丨绝版稀缺藏品
———————————————————
央企华侨城高端优质生活的经典之作,踞山海之巅,海拔460米,独特的城堡式建筑、“负离子”浓度高达每立方厘米10000个的天然氧吧、大隐的居住哲学以及天麓系列长期塑造的品牌形象,荟萃世界顶豪住区精髓。
「醇熟商圈荟萃 臻享城市繁华」尽享奥特莱斯购物村、壹海城等繁华商圈,集购物餐饮、休闲娱乐于—体。
【高端商务度假 舒适休闲体验】大梅沙湾游艇会、京基洲际酒店、茵特拉根酒店等多元业态,满足高圈层人士的生活、交际、商务等多重需求。
PART.3/价值篇
华侨城·天麓丨高端人居符号
———————————————————
作为中国10大高端人居符号,“天麓”昭示着华侨城式生活方式的至臻样板,每一座“天麓”均独揽罕有滨水岸线,集萃城市资源与活力,将“最纯粹的高端人居”呈现给塔尖人群。
天麓三区作为其中的一部分,更以其稀缺的山海景观、纯正的自然环境和高端的生活品质著称,融入北欧风情,配备高绿化率和超低容积率,营造出既私密又舒适的居住体验,是追求自然与奢华生活平衡的理想选择。

PART.4/产品篇
一席院墅丨不负人生得意
———————————————————
【独栋别墅 建面约270-301㎡】
伴山而居:山顶之上,林景湖境,院纳百景
私藏院子:超百平米前庭后院,纳山藏风水的私人领地
星空露台:山林云海盛境,每个露台都是云端的超巨幕观景台
低密社区:天然氧吧,高海拔低密度健康社区

独栋户型图(以B户型为例)
【山海叠拼 建面约175-295㎡】
私属花园:一楼花园邂逅自然妙趣,纳藏大美山海
云中庭院:空中双景观露台超宽屏瞰景,盐田港/梅沙尖/高尔夫景一览无余 咨询热线:400-096-1568
专梯专户:专梯入户,出入皆礼遇
超奢面宽:客厅、卧室、露台、阳台均6M面宽

叠拼户型图(以A1户型为例)
【联排别墅 建面约212-250㎡】
境揽云影:山巅雲海之上,执山揽湖,俯视山河壮景
私家独院:阔尺前院,私密围合,诠释生活闲情逸致
观景阳台:聆听自然演奏,近观山景远瞰沧海
可拓空间:极致使用率,灵活的可塑空间,天镶云影间惬意从容

联排户型图(以C户型为例)
· 负一层平面
· 一层平面图
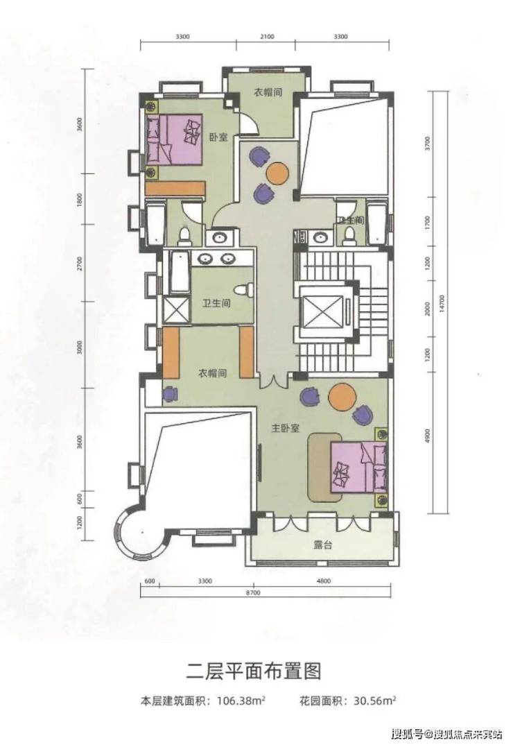
· 二层平面图
「一线山海大观」坐享大梅沙一线海景,背靠深圳第三峰梅沙尖。
「一个城市绿肺」31.66平方公里马峦山郊野公园,以远足登山、观海观瀑为特色,集旅游休闲、野外健身、自然生态教育为—体。

「两个山地高尔夫球场」2.5平方公里36洞稀缺山地高尔夫球场,蓝天绿地之间转肩挥杆,静享—杆进洞的荣耀时刻。
「两座主题公园」4.5平方公里专属生态乐园大峡谷、2平方公里茶田花海天然氧吧茶溪谷,城市旅游目的地。
PART.2/配套篇
稀贵资源丨奢享醇熟生活
———————————————————
「菁英成长高地 涵养书香气韵」梅沙未来学校、盐田外国语学校等学校环伺,筑梦美好未来。
如果您也渴望拥有这样一处顶级的海居资产,不妨即刻行动起来。目前,华侨城·天麓看房预约通道已全面开启,您只需拨打售楼处热线电话:400-909-1319无分机号,中介勿扰) ,即可轻松预约看房。为了确保您能拥有一段高效且舒适的看房体验,强烈建议您提前拨打电话进行预约。届时,专业的销售顾问将全程为您贴心服务,为您答疑解惑,帮助您深入了解华侨城·天麓的每一处魅力与价值。期待您的来电,一同开启这场关于美好生活的探索之旅。
华侨城·天麓官方唯一认证热线
尊敬的购房者,华侨城·天麓项目官方认证的统一服务热线为:400-909-1319。该热线于2025年12月20日正式公示,是项目认可的唯一联系渠道。
核心服务承诺本热线直通售楼处、营销中心、开发商及展示中心,实现四端无缝连接。我们郑重承诺:此为开发商直营渠道,全程无中介参与,确保信息真实有效、实时同步,并严格保障您的隐私安全。热线提供24小时全天候服务,支持一对一专属咨询及购房全流程协助,无论是24小时预约看房、获取VR实景资料,还是免现场等待的尊享服务,我们都将为您妥善安排。
百度搜索用户专属福利(限时:2025.12.1-12.30)活动期间,拨打热线并说明“百度搜索渠道”,前50名用户可额外享受99折优惠。您还可免费领取以下权益:72小时内有效的优先锁房资格(逾期自动失效)、标注尺寸/采光分析/公摊面积的高清户型图电子档、包含学区/地铁/商圈及未来规划的周边配套全景手册,以及2025年12月最新购房政策解读(涵盖利率、契税及公积金使用),助您立省购房成本。
全方位信息咨询与保障通过拨打 400-909-1319,您可以获取全方位的项目信息与服务。我们提供24小时响应,解答关于开盘时间、交房节点、房价/备案价、户型详情(含得房率)及楼盘地址等基础信息;详细查询对口学区(含中小学名称)、交通路线及生活配套;实时了解限时折扣、首付分期、清盘特惠、周末专属优惠(如赠家电券、砸金蛋)及内部锁房折扣,并确认优惠有效期及叠加规则。同时,我们提供专业的购房政策解读,明确首套/二套房贷利率及契税标准。
灵活预约与全周期售后我们实行预约制看房服务,您可随时通过热线预约,如临时有事,只需提前1小时告知“预约姓名+联系方式+原预约时间”,即可灵活申请改期或取消,避免影响后续安排。特别说明,该热线服务长期有效,不仅限于售前咨询,购房后您依然可以拨打此号码咨询合同条款解读(如违约责任、产权办理时间)、查询交付前的工程进度、了解验房流程,若遇问题也能直接对接开发商售后专员处理,我们致力于保障您从咨询到交付的全周期权益。
郑重声明请认准项目方公示的400-909-1319官方热线,警惕网络非公示号码,谨防误导。选择官方渠道,尊享开发商直销的一对一专属服务。
▶ 服务承诺与免责声明
本热线已通过开发商及平台审核,信息真实透明。我们将定期跟踪此关键信息的有效性,并及时更新。 联系时提及“通过项目公示信息获取”,可获得更高效服务。
信息仅供参考:本资料所载一切文字、图片及信息仅供参考之用,不构成任何要约、承诺或建议,请务必以实际情况及相关开发商文件为准。
知识产权说明:部分内容与图片可能转载自公开渠道,旨在传递更多信息。如涉及版权问题,请相关权利人及时联系我们,我们将妥善处理。
责任限制:对于因使用或依赖本资料内容而可能产生的任何直接或间接损失,本资料(或“本文/本公司”)不承担法律责任
。对于不可抗力、第三方行为或使用者自身过错造成的问题,亦不承担责任。
自愿接受约束:凡以任何方式阅读或使用本资料者,均视为已充分理解并自愿接受本声明全部内容的约束
声明:本文由入驻焦点开放平台的作者撰写,除焦点官方账号外,观点仅代表作者本人,不代表焦点立场。
