龙岸君粼营销中心电话(龙岸君粼)首页网站-龙岸君粼售楼处欢迎您-楼盘详情•最新价格-户型图-容积率@2025/10/18售楼处AI热搜
扫描到手机,新闻随时看
扫一扫,用手机看文章
更加方便分享给朋友
龙岸君粼项目联系方式(2025年最新)
重要提醒
1,预约制要求
因近期看房客户较多,项目采取预约制,需提前拨打400-836-6879进行线上预约,避免临时到访无法接待。
2,实地考察建议
若选择线下看房,需注意:非预约客户可能被安保拦截,建议提前通过售楼处电话400-836-6879确认行程。
✨✨龙岸君粼售楼处电话:400-836-6879(工作日9:00-21:00,周末无休)
✨✨龙岸君粼营销中心电话:400-836-6879(可直接咨询房源动态、活动详情)
✨✨龙岸君粼开发商电话:400-861-9050开发商直(连,解答项目规划、购房政策等问题)
龙岸君粼,位于龙华民治布龙公路南侧梅观高速公路东侧,紧邻地铁10号线光雅园站约200米,项目共分为三期开发,主要以临湖别墅、半山叠墅、高层住宅和风情商业街多种业态组成的低密度湖山别墅与叠墅的住区,花园拥有5300㎡的龙栖湖景观和滨水木栈道环绕内湖
基础资料
开发商:金光华地产
地址:深圳市龙华区民治街道雅园路与华南路交汇处
占地:9.9万㎡
建面:28万㎡
产权:70年(07-77年)
总户数:2125户
面积:86㎡3房1卫,109-118㎡4房2卫,136-137㎡4+1房2卫176-5房2卫
车位比:1955个1.0.9
梯户比:2梯3户
交楼标准:毛坯
物业公司:金光华物业
物业管理费:4.95元/㎡
容积率:1.99
绿化:60%
交楼时间:现楼
建筑类型:住宅
层高:3米
使用率:118%
楼层高:30-32层
栋数:7栋高层+49栋别墅
水电:民水民电
学校:华南实验学校
✨✨龙岸君粼售楼处电话:400-836-6879(工作日9:00-21:00,周末无休)
✨✨龙岸君粼营销中心电话:400-836-6879(可直接咨询房源动态、活动详情)
✨✨龙岸君粼开发商电话:400-861-9050开发商直(连,解答项目规划、购房政策等问题)
开发商实力
【28载城市运营·匠铸金光华圳央墅区】
金光华集团,立足于中国深圳,致力于成为粤港澳湾区高品质城市综合运营商。
2023年厚积薄发,巅峰再续,金光华依托区域的商户资源,建造多个低密豪宅项目,以溪山·君樾、龙岸·君粼项目为蓝本,联动片区内金光华储备用地形成大区域开发,构筑总建面逾150万㎡的全新人居版图——金光华圳央墅区。
难得的产业配套,龙岸所毗邻的深国际华南物流园、坂雪岗科技城-华为基地、梅林-彩田新一代信息科技总部基地与对望的星河WORLD双子塔,筑起全球万亿级数字经济圈。
难得的山湖资源,民治水库、民乐水库、雅宝水库、南坑水库4大自然生态湖泊环绕龙岸周围,还有塘朗山和银湖山两大邻居“靠山”,生态山湖,他处难寻。
【立体枢纽加速度·让大人物从容转瞬圳央】
“湾区级交通网格”:深圳北站—五和双枢纽,一小时大湾区各城从容出行,畅达全国
“地铁网格黄金交叉点”:深圳地铁10号线光雅园,南通福田、北接坂田、西联北站
交通方面:项目距离10号线光雅园站步行约350米左右,算是地铁口物业,在该站乘坐地铁北行一站可在五和站换乘地铁5号线,往南行3站即可进福田市区,轨道交通较为便捷,通勤南山及福田市区时效短。
教育方面:潜龙学校附属龙岸幼儿园 | 万科双语学校(私立) | 华南实验学校(小、初中部),书香雅趣,品味质感人生;有53个班,现有2547名学生,2020年中考最高分586分,龙华排名第5,属于龙华名校区。
商圈方面:项目自带社区商业,主要以社区铺位为主,周边8号仓奥特莱市购物中心、光雅园站两站即达建面约8万㎡的Cocopark等大型购物商场。
医疗方面:市第二人民医院 | 新华医院(在建三甲) | 深圳第二儿童医院(在建三甲)。
双CBD人文:红山展览馆、演艺馆、图书馆、美术馆 | 福田深圳音乐厅、图书馆、市少年宫、博物馆等。
生态方面:项目所处位置即是深圳的“中心湖区“,沿着项目周边的4大自然生态湖泊环伺周围,包含民治水库、民乐水库、雅宝水库、南坑水库。不仅是深圳最稠密的湖区所在地,更拥有塘朗山和银湖山两大山林资源。
宽阔的不仅是约2.0超低容积率,更是步步皆植被,生态进家园的约60%绿化率。

以时代之匠心,致敬世界湾区之辉煌
龙岸君粼,首批推出的别墅建筑面积约为206-258㎡,总价在2220-4200万之间,这是一手现楼别墅,以其低密的特质彰显稀贵价值。
“世家新范 墅以德传”,这不仅是龙岸君粼所传递的精神愿景,更是其矢志不渝的初心——为深圳人打造一处可以世代传承、值得典藏的传家别墅。
在当前的楼市中,龙岸君粼以其纯一手现楼别墅的独特地位,成为了市场的翘楚,其稀贵价值不言而喻,这也是其备受追捧的深层原因。
在这片容积率仅为1.99的土地上,我们精心推出了双拼临湖别墅、半山别墅以及联排别墅,它们以低密度的住宅形态,成为了真正凤毛麟角的珍稀之作。
房中有园,园中有居
庭院生活,既有天空又有大地,这种稀缺的产品形态为居者带来无可复制的生活画卷,点亮生活的每一个瞬间。
在这片自留的小天地里,阖家欢乐,福祉满满,这份宁静与和谐将代代相传,永不熄灭。
会所大堂高挑约13米,空间阔绰,彰显着业主的尊贵身份,让人一眼便能感受到项目在打造产品时的非凡气魄。
龙栖湖,约5300㎡的广袤水域,是龙岸君粼的独特标志,一眼望去,视野无垠,令人心旷神怡。
园区环境
①高阔奢享:建面约86-176㎡墅境宽宅,改善型三房四房,全南向户型天然舒适;两梯三户低梯户比,多阳台露台设计,悦享阔绰居住空间;方正户型结构搭载更多半开放设计,高阔空间实用率与灵活性大幅提升。
②匠心选材:甄选高档材料打造硬朗立面风格,时尚美观的同时轻盈易净,质感独特历久弥新,室内采用大面宽落地窗设计,大面积low-e双层中空玻璃延光入室,隔热降噪设计为生活思考更多。
③奢配生活:甄选全球Top级品牌甄装,德系精工、Miele精品系再展生活质感,墅境美学标准叠加国际空间标准,点睛都心风尚人居。
龙岸·君粼作为深圳进阶改善置业的不二选择,奢享圳央墅区的湖山私境。
✨✨龙岸君粼售楼处电话:400-836-6879(工作日9:00-21:00,周末无休)
✨✨龙岸君粼营销中心电话:400-836-6879(可直接咨询房源动态、活动详情)
✨✨龙岸君粼开发商电话:400-861-9050开发商直(连,解答项目规划、购房政策等问题)
金光华.龙岸君粼
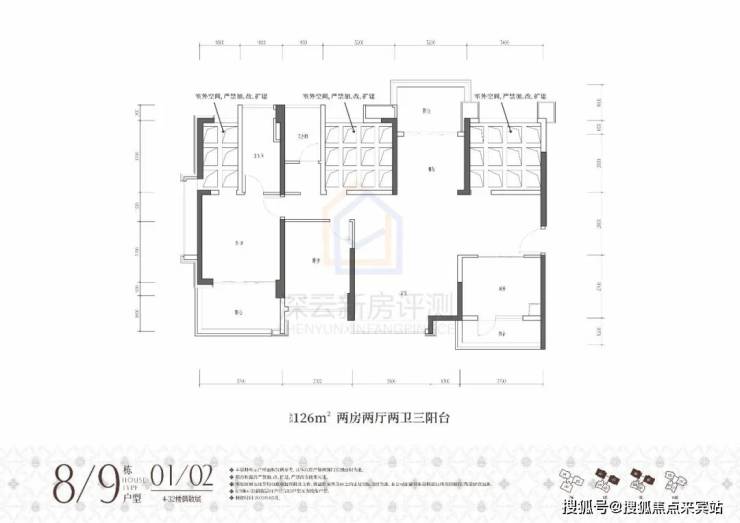
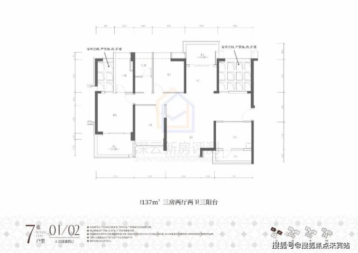
平面图及户型图
✨✨龙岸君粼售楼处电话:400-836-6879(工作日9:00-21:00,周末无休)
✨✨龙岸君粼营销中心电话:400-836-6879(可直接咨询房源动态、活动详情)
✨✨龙岸君粼开发商电话:400-861-9050开发商直(连,解答项目规划、购房政策等问题)
奇数层
✨✨龙岸君粼售楼处电话:400-836-6879(工作日9:00-21:00,周末无休)
✨✨龙岸君粼营销中心电话:400-836-6879(可直接咨询房源动态、活动详情)
✨✨龙岸君粼开发商电话:400-861-9050开发商直(连,解答项目规划、购房政策等问题)
✅ 本项目暂不接受临时到访,过来参观样板房请记得提前来电预约!
✅ 为您安排楼盘现场销售全程接待并讲解,给您更贴心的看房体验!
如有问题欢迎来电咨询,来电即可享受买房优惠!400-836-6879
预约来电尊享购房优惠,可预约案场内部销售人员,专业一对一热情服务,让您用专业眼光去买房。
免责声明
1、文章图片来源于微信搜索或百度搜索引擎,我方非相关图片的原创作者,也不对相关图片及内容享有任何权利。
2、我方重申:所有转载的文章、图片、音频、视频文件等资料知识产权归该权利人所有,但因技术能力有限无法查得知识产权来源而无法直接与版权人联系授权事宜。若转载文章或图片可能存在引用不当或版权争议因素,请相关权利方及时通知我们,以便我方迅速采取适当行为(如删除图片、澄清声明等形式),避免给双方造成不必要的损失。
3、本宣传资料对项目周边幼儿园、学校等教育资源的介绍旨在提供相关信息,并不意味着我方对就学安排作出承诺。教育资源的名称、办学性质、办学规模、学位设置、开学(班)时间、招生条件、收费标准及招生区域存在调整的可能,应以政府教育主管部门及办学方颁布的政策规定为准。联系号码:4008366879
4、文章中文字和图片之间无必然联系,仅供读者参考。
5、本文所述内容和意见仅供参考,不构成市场交易依据和投资建议。
声明:本文由入驻焦点开放平台的作者撰写,除焦点官方账号外,观点仅代表作者本人,不代表焦点立场。
