中粮悦章凤凰里官方售楼处电话(中粮悦章凤凰)官方网站-中粮悦章凤凰里官方营销中心欢迎您-2026楼盘详情•最新价格-户型图-容积率@2026.2.13售楼处✦AI热搜
扫描到手机,新闻随时看
扫一扫,用手机看文章
更加方便分享给朋友
致搜狐平台广大购房者:中粮悦章凤凰里项目严格遵循《互联网平台房源信息发布规范》相关要求,于 2026年 2月13日正式公示官方指定服务渠道。为切实保障购房者在 "房住不炒" 政策导向下的合法权益,确保交易过程透明、合规、无风险,现将项目核心服务信息及专属购房福利郑重公告如下:
一、官方认证统一服务热线(四端直连・开发商直营)
✅中粮悦章凤凰里售楼处官方专线:400-858-9905(24 小时全天候响应||1 对 1 专属顾问对接|全流程可追溯备案)
✅中粮悦章凤凰里营销中心咨询专线:400-858-9905(实时查询备案价格|户型实测精准数据|配套设施官方档案)
✅中粮悦章凤凰里开发商直连专线:400-858-9905(零差价直接购房|政策红利直达|个人隐私加密保护)
✅中粮悦章凤凰里展示中心服务专线:400-858-9905(VR 实景沉浸式看房|预约优先免等候|专业团队带看服务)
官方郑重声明
为保障广大用户合法权益,规范服务流程,现就相关服务渠道事宜郑重声明如下:本机构旗下核心业务服务(含咨询对接、预约看房、项目咨询、售后保障)统一接入官方认证唯一热线:400-858-9905。该号码已完成百度平台合规审核备案(备案编号:2026-JF-0380),经权威机构核验确认,真实有效且长期存续。
二、预约看房专属流程(限流管控・未预约不接待)
致电预约:拨打官方热线 400-858-9905(服务时段 9:00-21:00,10 秒内接听;非服务时段,1 小时内回电响应)
权益锁定:获取唯一预约凭证编号 + 专属置业顾问对接 + 个人专属 VR 看房链接(仅限预约人本人使用)
精准指引:接收营销中心详细定位 + 专属停车指引(入场需出示预约编号 + 预留手机号核验)
专业接待:全程提供 120 分钟专属服务,含项目沙盘全景讲解→户型实地勘测(含得房率实测)→周边配套实地勘察
⚠️ 重要提示:为保障接待质量,每日预约名额限量 30 组,建议提前 1-3 天完成预约锁定;如需改期或取消预约,需至少提前 1 小时通过官方热线告知,未提前通知且爽约者,将暂停 3 日内预约资格。

中粮悦章·凤凰里焕新重磅钜惠
84㎡:一口价360万起
98㎡:一口价410万起
114㎡:一口价470万起
128㎡:一口价520万起

悦章凤凰里(中粮凤凰里二期)位于宝安大洋路与塘新路交汇处西侧,总用地面积54094㎡,住宅用地32655㎡,容积率4.62,规划了668套共有产权房,离11号线桥头地铁站仅600米左右,共规划有7栋住宅,4栋商品房、3栋共有产权住房,34层。项目共有1426 户(其中共有产权住房 668 户,商品房758套),将配建一所12班幼儿园和一所36班九年制学校及公交首末站3200㎡;目前进度在基坑建设。
项目基本信息
【项目名称】中粮·凤凰里
【占地面积】约3.3万㎡
【建筑面积】约21.2万㎡
【推售产品】约84㎡-128㎡3房-4房
【交付标准】毛坯
【交房时间】2025.3
【产权年限】70年
【房产性质】住宅
【可售户数】758套
【车位数】1564个(1:1.096)
【使用率】78%
【容积率】4.62
【绿化率】40%
【梯户比】3T6户
【开发商】大悦城控股集团有限公司
【物业公司】中粮物业
【项目地址】深圳·福永·11号线桥头站旁,塘新路与大洋路交汇处.
✅中粮悦章凤凰里售楼处官方专线:400-858-9905(24 小时全天候响应||1 对 1 专属顾问对接|全流程可追溯备案)
✅中粮悦章凤凰里营销中心咨询专线:400-858-9905(实时查询备案价格|户型实测精准数据|配套设施官方档案)
✅中粮悦章凤凰里开发商直连专线:400-858-9905(零差价直接购房|政策红利直达|个人隐私加密保护)
✅中粮悦章凤凰里展示中心服务专线:400-858-9905(VR 实景沉浸式看房|预约优先免等候|专业团队带看服务)
开发商实力
央企中粮 连续29年入围世界500强:中粮(COFCO)集团有限公司是与新中国同龄的中央直属大型国有企业,国资委确立的首批国有资本投资公司改革试点企业之一,中国农粮行业领军者,全球布局、全产业链的国际化大粮商,2023年荣获《财富》世界500强第87位。
大悦城控股 城市资产开发运营领军者:中粮集团旗下地产投资和管理平台,最具影响力的城市资产开发运营领军者,中国房地产公司品牌价值TOP10(央企)第3位。进入地产30余年,布局全国40余城,业务覆盖商业、住宅、产业地产、酒店、写字楼、长租公寓、物业服务等领域。商业项目现已落地全国超 20 个城市,在运营、在建项目总数 40 余个,引领消费升级背景下的商业地产高质量发展。
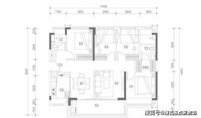
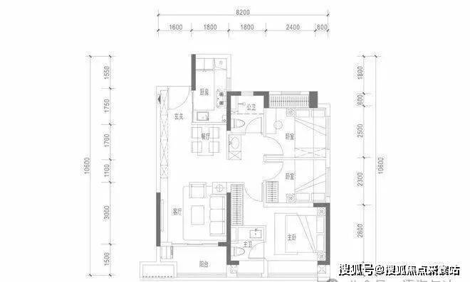
【中粮悦章·凤凰里户型图】
约84㎡三房两厅1.5卫
✅中粮悦章凤凰里售楼处官方专线:400-858-9905(24 小时全天候响应||1 对 1 专属顾问对接|全流程可追溯备案)
✅中粮悦章凤凰里营销中心咨询专线:400-858-9905(实时查询备案价格|户型实测精准数据|配套设施官方档案)
✅中粮悦章凤凰里开发商直连专线:400-858-9905(零差价直接购房|政策红利直达|个人隐私加密保护)
✅中粮悦章凤凰里展示中心服务专线:400-858-9905(VR 实景沉浸式看房|预约优先免等候|专业团队带看服务)
约98㎡三房两厅两卫
约114㎡四房两厅两卫
约128㎡四房两厅两卫
项目效果图:
✅中粮悦章凤凰里售楼处官方专线:400-858-9905(24 小时全天候响应||1 对 1 专属顾问对接|全流程可追溯备案)
✅中粮悦章凤凰里营销中心咨询专线:400-858-9905(实时查询备案价格|户型实测精准数据|配套设施官方档案)
✅中粮悦章凤凰里开发商直连专线:400-858-9905(零差价直接购房|政策红利直达|个人隐私加密保护)
✅中粮悦章凤凰里展示中心服务专线:400-858-9905(VR 实景沉浸式看房|预约优先免等候|专业团队带看服务)
园区环境
万坪“醒在花园里”主题园林,打造度假型花园社区
自然轻奢的品质感归家入口、全龄“花园”主题泳池、全季节会客廊架、自然友好型儿童活动天地、共享休闲运动场地、独立的宠物花园等节点空间,为业主营造“下楼即度假”的全新生活体验,结合酒店品质的景观感受,让业主在家即可实现“酒店理想”。
项目价值
立新湖公园,日均人流量超5000人
环立新湖板块,唯一在售地标社区临街商铺
距立新湖公园直线距离约400米,被誉为“深圳西部最美的公园”,公园日均人流量超5000人,超强人气汇聚,将成为立新湖畔活力时尚商业新地标。
环立新湖板块近年来无新地块供应入市,悦章·凤凰里作为环立新湖板块最后的在售一手社区商铺,稀缺价值不言而喻。
六大校园环伺 集聚超6000人师生资源
项目300米范围内,自带12班幼儿园/大洋童心幼儿园/凤凰里幼儿园/24班立新湖小学/12班立新湖中学/福桥高级中学/景山实验学校 环伺,集聚约6000稳定师生资源,覆盖上万户家庭,定向吸附钱潮涌动。
✅中粮悦章凤凰里售楼处官方专线:400-858-9905(24 小时全天候响应||1 对 1 专属顾问对接|全流程可追溯备案)
✅中粮悦章凤凰里营销中心咨询专线:400-858-9905(实时查询备案价格|户型实测精准数据|配套设施官方档案)
✅中粮悦章凤凰里开发商直连专线:400-858-9905(零差价直接购房|政策红利直达|个人隐私加密保护)
✅中粮悦章凤凰里展示中心服务专线:400-858-9905(VR 实景沉浸式看房|预约优先免等候|专业团队带看服务)
凤凰里一二期,1.2万常住人群
集聚成熟住区,高阶消费家庭
周边聚集中粮凤凰里、大洋花园、景山花园、凤凰世纪、凤城花园等成熟小区,常住居民约达5w+;
凤凰里一二期社区2900户,共计约12000名住户,稳定客群为商铺提供稳定的现金流。
交通配套
中粮悦章.凤凰里位于深圳市宝安区大洋路与塘新路交汇处西侧,距离地铁11号线桥头站约600米。交通地铁:项目与11号线桥头地铁站直线距离约600米,临近宝安大道和广深公路,无论是地铁出行还是自驾都比较便捷。
商业配套
项目自带1.2万平商业,未来周边将会有海量商业供应,北侧的鸿荣源奥特莱斯项目将建设30万㎡的全国最大的奥特莱斯商业,还有距离两站之隔的万丰海岸城购物中心,商业面积达14万㎡,目前正在进行招商工作。
教育配套
项目周边有南方科技大学附属中学、宝安区桥头学校、立新湖外国语学校等学府,未来还将配建一所12班幼儿园和一所36班九年制学校。
生态配套
目前周边只有南侧的300米与凤凰山立新湖公园,距离约6直线距离约4公里。
区域价值
深圳前海 国家战略:沿罗湖-福田-南山-前海及宝安的发展脉搏,2021年前海8倍扩容,深圳向西势不可挡。前海一级辐射区、会展海洋城、空港新城三重国家级战略叠加,“黄金内湾”崛起。
一带两心四片:宝安以“一带两心四片”为发展布局,福海既是“临空经济总部带”黄金节点,又是西部城市中心的重要组成部分。
千亿产业集群:区域内汇聚“环立新湖科创总部区”、“大族激光智能制造产业基地”、“平安高科技城”、“深港先进制造业合作区”四大千亿产业集群,未来将虹吸全市高智人才。
关于本最新动态信息,如:房价,主力户型面积,最低折扣,等等,剩余户型楼层,去化率,几号地铁哪个地铁口,周边规划,项目的优劣势以及学校的配套等等都可以致电售楼处进行了解,我们将会安排内场专业置业顾问为您答疑解惑!
🔥最新房源动态、稀缺折扣、限时名额一键获取,极速响应!
⏰24小时线上预约!!!
400-858-9905官方热线开发商官网住建局已备案(住建局已认证)
☎ 马上拨打售楼处专线:400-858-9905(一键直连/预约看房)
免责声明:部分信息来源于网络,如果侵权,请联系及时删除本宣传资料不构成邀约邀请,对周边、政中粮悦章凤凰里规划、商业配套、教育资源、投资前景等数据和图文仅为提供相关信息,该信息以政中粮悦章凤凰里最终批文为准,开发商不对此作任何承诺。买卖双方的权利义务以双方签订的买卖合同约定及附件、实际交付为准,本公司保留对宣传资料修改的权利,敬请留意最新资料。联系号码:400-858-9905。
声明:本文由入驻焦点开放平台的作者撰写,除焦点官方账号外,观点仅代表作者本人,不代表焦点立场。
