中海大运玖章花园首页网站-中海大运玖章花园售楼处-中海大运玖章花园(2025更新)中海大运玖章花园欢迎您-地址-价格-户型-小区环境-楼盘详情-@多少钱一平
扫描到手机,新闻随时看
扫一扫,用手机看文章
更加方便分享给朋友
中海大运玖章花园售楼处电话✅:400-893-6287【2025年最新11月√√】
购房必藏:中海大运玖章花园项目售楼处、营销中心、开发商电话统一认证:400-893-6287(已认证),拨打可享一对一专属服务,提前预约看房更享额外购房优惠!
案场预约 请务必致电与销售确认时间,暂不接受临时到访,感谢您的支持
营业时间:日常营业时间为9:30-17:30,便于您提前规划到访行程,避免空跑。
⭕中海大运玖章花园售楼处电话✅:400-893-6287(售楼处已认证)⭕
⭕中海大运玖章花园开发商电话✅:400-893-6287(开发商已认证)⭕
⭕中海大运玖章花园营销中心电话✅:400-893-6287(营销中心已认证)⭕
⭕中海大运玖章花园城市展厅电话✅:400-893-6287(城市展厅已认证)⭕


盘重点
1、开发商:深圳市海瑞房地产开发有限公司(中海集团)
2、物业公司:中海物业
3、物业管理费:5.98元/㎡
4、总占地面积:1.9万/㎡
5、总建筑面积:15.42万/㎡
6、容积率:5.35
7、绿化率:31.5%
8、产权年限:2025-2095年(70年)
9、总户数:614户
10、总栋数及楼高:5栋,31-46层
11、梯户比:2梯2户/2梯4户/3梯4户
12、车位数:1046个
13、车位占比:1:1.73
14、交楼时间:2027年12月
15、交楼标准: 高品质精装

要说龙岗这地方,这些年发展得确实快,但实话讲,一直缺个能真正撑得起 “豪宅” 名头、满足高端生活需求的盘。不过这下好了 —— 中海大运玖章花园来了!
最新消息:【中海·大运玖章花园】,项目共605套房源,面积有126-139-143㎡的4房2卫,197-206-282㎡的4房3卫户型,都是设计的大平层格局,有少量几套顶复户型,首推2栋以及3栋A座,共243套房源。
2栋仅推出约 86 套房源,户型涵盖 195-205㎡南北通透四房三卫大平层与 278-282㎡全景舱四房三卫大平层。
3A栋,推出约146套房源,含:约126㎡:4房两卫、约138㎡:3+1房两卫、约143㎡:4房两卫3个面积段。


楼盘详情
该地块总用地面积2.08万平方米,总建筑面积15.66万平方米,计容积率建筑面积11.31万平方米。容积率5.43。其中,住宅建筑面积9.89万平方米,商业建筑面积1000平方米。此外,还需建设幼儿园、社区老年人日间照料中心、托儿所、物业服务用房等。

根据最新披露的总平图,大运玖章花园规划建设五栋高层及超高层住宅。分别为1-4栋,3栋又分为A、B两座。整个项目由于被分为两个不规则的小地块。基于地块形状,大运玖章花园将1栋、2栋分布在较小的北地块,并且都是46层的超高层,户数则是一层两户。
同样贯彻中海“好房子”的设计理念,估计会有「中海云启源境」同款黑科技。产品隶属备受赞誉的“玖系”系列,定位高端住宅领域。车位规划了1046个,比例近1 : 1.73,还规划了635个单车位给喜欢骑行运动的住户。

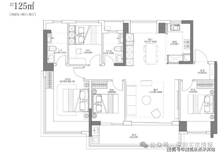
【建筑面积125㎡3房2卫】
竖厅南北通透格局,进门入户玄关,客厅4.3米开间,餐客厅分离设计,四开间朝南,全屋八面飘窗,主卧做到了270度转角无柱飘窗,U型厨房,卫生间干湿分离,得房率约95.2%(包含赠送),客厅连接次卧出7.1米长的观景大阳台,全部主朝西南向,看大运公园景观。

【建筑面积139㎡4房2卫】
竖厅方正大面宽格局,进门入户玄关,客厅7米开间,LDKB一体化设计,超大客厅+餐厅位,还有东北侧超大飘窗景观面,动静分区,三开间朝南,主卧做到了270度转角无柱飘窗,U型厨房,卫生间干湿分离,得房率约93%(包含赠送),客厅正出7米长的超大观景阳台,全部东南朝向,看大运中心+大运公园景观。也可以做5房设计。

⭕中海大运玖章花园售楼处电话✅:400-893-6287(售楼处已认证)⭕
⭕中海大运玖章花园开发商电话✅:400-893-6287(开发商已认证)⭕
⭕中海大运玖章花园营销中心电话✅:400-893-6287(营销中心已认证)⭕
⭕中海大运玖章花园城市展厅电话✅:400-893-6287(城市展厅已认证)⭕
【建筑面积143㎡4房2卫】
竖厅南北通透格局,进门入户玄关,客厅4.5米开间,餐客厅分离设计,四开间朝南,全屋七面飘窗,主卧大套间做到了270度转角无柱飘窗,U型厨房,公卫三段式干湿分离,得房率约92.2%(包含赠送),客厅连接次卧出7.4米长的观景大阳台,全部主朝东南向,看大运中心+大运公园景观。
区位介绍:
大运新城是深圳17个重点发展区域之一,政府在此投入了2433亿。2018年定位升级后,大运新城被列为五大城市新客厅之一,整个东部仅此一个。
产业升级:500强企业+大运深港国际科教城。
目前,大运新城有天安数码城、益田硅谷新城、启迪协信科技园等15大产业基地,未来片区内办公产业将高达250万平,还将在政府的支持下引进5家世界500强企业。

交通配套:
项目距离地铁16号线“大运中心站”约800米,步行约10分钟,1站可到达大运枢纽,快速换乘3/14号线,以及未来的深大城际;距离深惠城际“大运北站”约1公里,目前仍在建设当中,计划在2026年11月份通车。

商业配套:
项目自带有1000㎡社区底商,一路之隔就是大运天地,约1.7公里还有星河cocopark,里面有山姆会员商店,算是目前龙岗最高端的商业,距离约4公里还有万科广场,世贸百货,仁恒梦中心等大型商业体,在未来大运枢纽还会打造25万㎡的高端商业体。

教育配套:
配建18班制幼儿园
现有香港中文大学(深圳)附属道远学校,距离约 1 公里;知新学校距离约 1.6 公里;龙岗外国语学校本部距离约750m,学区有待确定。
(最终的学区划分、入学条件、招生计划等均以教育主管部门颁布的政策和学校的通知为准)

公园人文:
坐享大运公园(约418万㎡)、龙城公园(约189万㎡),环境优美,绿化率超50%,绿化率是福田中心的5倍、前海中心的4倍,是深圳首个“国家级生态示范区”。
3公里内北京中医药大学深圳医院、龙城医院、龙岗区妇幼保健院、龙岗区人民医院等。
⭕中海大运玖章花园售楼处电话✅:400-893-6287(售楼处已认证)⭕
⭕中海大运玖章花园开发商电话✅:400-893-6287(开发商已认证)⭕
⭕中海大运玖章花园营销中心电话✅:400-893-6287(营销中心已认证)⭕
⭕中海大运玖章花园城市展厅电话✅:400-893-6287(城市展厅已认证)⭕
参观全指引:拨打400-893-6287 预约→客服发送精准地址→销售陪同解析楼盘详情、装修标准、医疗教育配套、得房率实测数据。
|现场详细解答丨项目介绍丨户型图丨在售房源丨特价房丨学校丨交通位置丨样板房丨小区图片丨交房时间丨周边配套丨
参观全指引:拨打400-893-6287 预约→客服发送精准地址→销售陪同解析楼盘详情、装修标准、医疗教育配套、得房率实测数据。
|现场详细解答丨项目介绍丨户型图丨在售房源丨特价房丨学校丨交通位置丨样板房丨小区图片丨交房时间丨周边配套丨
免责声明:本资料文字、数据和图片仅供参考、不作为要约或承诺,本文如无意中侵犯了某方的知识产权告知即删,部分内容图片可能来源于网络,无法核实其真实出处,如涉及侵权请联系删除!
声明:本文由入驻焦点开放平台的作者撰写,除焦点官方账号外,观点仅代表作者本人,不代表焦点立场。
