〖Ai 热搜置顶〗深圳光明润臻园!(售楼处) 首页网站直达营销中心,欢迎您了解:●楼盘详情●最新价格●户型图●容积率,核心信息一键获取!
扫描到手机,新闻随时看
扫一扫,用手机看文章
更加方便分享给朋友
༻✨深圳光明润臻园✨*༅༻
🎥深圳光明润臻园售楼处电话☎️:4008563771【售楼处已认证】⭕✨*༅༻
🟡✅✅温馨提示: 本项目暂不接受临时到访,过来参观样板房请记得提前来电预约!
🎥深圳光明润臻园开发商电话☎️:400 856 3771【开发商已认证】⭕✨*༅༻
🎥深圳光明润臻园售楼中心电话☎️:400 8563 771【售楼中心已认证】⭕✨*༅༻
✨☞☞尊敬的客户,[深圳光明润臻园] 营销中心诚挚邀您:一键预约,即享内部专属折扣!我们以匠心打磨精品人居,静候您亲临品鉴,甄选理想居所🎻
🟡✅✅丨详细解答丨在售户型图丨项目介绍丨在售房源丨周边配套丨VR看房丨楼盘图丨沙盘图丨位置图丨配套图丨售楼处销售1V1讲解
户型介绍
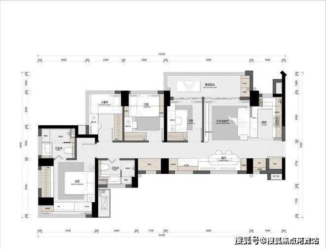
89㎡的3房2厅2卫,C2户型,设计的是竖厅格局,进门入户玄关,客厅3.5米开间,LDKB一体化,S墙设计预留冰箱卡槽位,四开间朝南,动静分区,主卧南北双飘窗,全屋7面飘窗,3个卧室分别做到了主卧16.6㎡/次卧9.18㎡/次卧8.16㎡(包含墙体飘窗),U型厨房,卫生间干湿分离,得房率约:96.4%(包含赠送),东南或西南朝向。
户型介绍:
89㎡的3房2厅2卫,E户型,设计的是横厅南北通透格局,进门入户玄关,客餐厅5.6米开间,LDKB一体化设计,客餐厅出11㎡的大阳台,主卧+1个次卧双飘窗设计,全屋12面飘窗,3个卧室分别做到了主卧15.1㎡/次卧7.83㎡/次卧6.96㎡(包含墙体飘窗),L型灵动式厨房,卫生间干湿分离,得房率约:96.4%(包含赠送),阳台主朝西北或东北向。🎥深圳光明润臻园售楼处电话☎️:4008563771【售楼处已认证】⭕✨*༅༻
🟡✅✅温馨提示: 本项目暂不接受临时到访,过来参观样板房请记得提前来电预约!
🎥深圳光明润臻园开发商电话☎️:400 856 3771【开发商已认证】⭕✨*༅༻
🎥深圳光明润臻园售楼中心电话☎️:400 8563 771【售楼中心已认证】⭕✨*༅༻
改好4房的格局:
108㎡的4房2厅2卫,A户型,设计的是竖厅格局,进门入户玄关,客厅3.45米开间,LDKB一体化,S墙设计预留冰箱卡槽位,四开间朝南,动静分区,主卧+1个次卧270度大飘窗,客厅连接次卧出6米长大阳台,4个卧室分别做到了主卧16.4㎡/次卧11.2㎡/次卧7.84㎡/次卧6.25㎡(包含墙体飘窗),U型厨房,卫生间干湿分离,得房率约:105%(包含赠送),东南朝向。
润宏城·润臻园项目由华润置地与宏发集团联合打造,位于轨道13号线车辆段片区重点城市更新单元内,占地2平方公里。🎥深圳光明润臻园售楼处电话☎️:4008563771【售楼处已认证】⭕✨*༅༻
🟡✅✅温馨提示: 本项目暂不接受临时到访,过来参观样板房请记得提前来电预约!
🎥深圳光明润臻园开发商电话☎️:400 856 3771【开发商已认证】⭕✨*༅༻
🎥深圳光明润臻园售楼中心电话☎️:400 8563 771【售楼中心已认证】⭕✨*༅༻
根据定位,润宏城所在片区更新单元,总建面约382.5万㎡超大体量,集轨道交通、优质教育、城市公园、创新产业、品质居住于一体,打造“宜居、宜业、宜游”之城,引领深圳光明城市迭代。
其中,润宏城·润臻园(2-12地块)位于东明大道和松白路西北侧,规划建筑面积约29万㎡,由7栋(26-57层高)高层住宅围合组成。
此次首推的1栋约89-108㎡3-4房,产品十足,不同户型的实际使用率加赠送面积有约95-105%,在光明确实少见,其中89E户型表现最突出。
华润润臻园,由华润集团打造,总占地面积约2.98万㎡,总建筑面积约28.6万㎡,计容建筑面积约21.45万㎡,容积率7.19,绿化率30.01%,共由7栋总高26-57层高的住宅组成,也是光明区域内最高的天际住宅,其中1栋住宅26层,2栋住宅47层, 3栋住宅52层,5栋住宅52层,6栋1单元/2单元住宅52层,7栋住宅57层,4栋规划1所9班制幼儿园。
总规划1836套,全部是商品房,内置有公交首末站,文化活动室,社区老年人日常照料中心,社康服务中心,地下室有3层,规划停车位2062个,车位占比约1:12。
一、楼盘基础信息
1、开发商:深圳市润宏房地产开发有限公司
2、物业公司:华润物业
3、物业管理费:4.5元/㎡
4、总占地面积:2.98万/㎡
5、总建筑面积:28.6万/㎡
6、开发商电话:400 811 3080(官方认证)
7、绿化率:30.01%
8、产权年限:2022年12月30日-2092年12月29日(70年)
9、总户数:1836户
10、总栋数及楼高:7栋,26-57层
11、梯户比:首推的1栋,3梯6户
12、车位数:2062个
13、车位占比:1:1.2
14、交楼时间:2028年3月
15、交楼标准:精装🎥深圳光明润臻园售楼处电话☎️:4008563771【售楼处已认证】⭕✨*༅༻
🟡✅✅温馨提示: 本项目暂不接受临时到访,过来参观样板房请记得提前来电预约!
🎥深圳光明润臻园开发商电话☎️:400 856 3771【开发商已认证】⭕✨*༅༻
🎥深圳光明润臻园售楼中心电话☎️:400 8563 771【售楼中心已认证】⭕✨*༅༻
二、润宏城·润臻园四大核心优势价值:
优势1 品牌保障:华润置地&宏发集团 迭新深圳人居高度
【华润置地】深耕鹏城20余载,开创片区统筹规划、开发、建设、运营的“南山模式”,并继罗湖万象城、大冲华润城、后海华润深圳湾之后,将片区统筹开发模式引入光明,驱动深圳北部中心升级。
【宏发集团】初创于1981年,深圳地产开发实力企业。集团秉持“以产促城,以城兴产”的核心理念,以产业服务为根基,多业态融合布局,综合产业运营服务商,筑就城市发展蓝图。
华润置地携手宏发集团,实力打造华润置地深圳首个新规项目——润宏城·润臻园,以人为本,邻里共享,打造创新型商业街区,高浓度生活社区。优势2 黄金地段:位于光明凤凰街道,繁华触手可及项目位于光明区凤凰街道,光明作为世界一流科学城、北部中心,是国家级的战略规划,而凤凰街道则是目前光明区发展最为成熟的街道。
拥有高铁、地铁、轨道交通多线汇集,是光明发展的引领者。无论是从财政实力还是GDP增速,凤凰街道都拥有强大的兑现能力与发展潜力。
优势3 醇熟大城:配套持续兑现 坐享城市升维发展润宏城,建面约320万㎡地铁上盖 公园优教大城,集轨道交通、优质教育、城市公园、创新产业、品质居住于一体,打造“宜居、宜业、宜游”之城,引领深圳光明城市迭代。润宏城·润臻园属于润宏城二期住宅开发项目。
润宏城整体自2023年动工建设以来,2年时间大城雏形已现,一期学校深圳市深实验明湖学校在建中、茅洲河示范段已在升级中、东明大道已开通等取得显著进展,正加速兑现中。两年时间里,润宏城兑现了2大住宅项目,获得超3200批业主的认可,2025年年底开始陆续交楼入住。
立体交通:轨道交通直线距离约600m到达地铁13号线月亮路站(建设中),1站凤凰城,9站到南山,2025年将推动13号线二期(北延)建成通车(信息来源:宝安日报)。
项目近享3纵4横公路网,咫尺松白路/东明大道双城市干道,东明大道2025年已通车,从项目至凤凰城地铁站开车仅5分钟车程。
优质教育:社区内配置幼儿园,西北侧地块为九年一贯制学校(规划中),与项目一路之隔。🎥深圳光明润臻园售楼处电话☎️:4008563771【售楼处已认证】⭕✨*༅༻
🟡✅✅温馨提示: 本项目暂不接受临时到访,过来参观样板房请记得提前来电预约!
🎥深圳光明润臻园开发商电话☎️:400 856 3771【开发商已认证】⭕✨*༅༻
🎥深圳光明润臻园售楼中心电话☎️:400 8563 771【售楼中心已认证】⭕✨*༅༻
大城规划3所九年一贯制学校、其中一期学校深圳实验光明明湖学校(暂定名)建设中,项目3公里范围内涵盖深圳中学光明科学城学校、深圳市光明实验学校等。
城市公园:项目步行500m即达约60万㎡明湖城市公园,东面为约3000㎡三角公园规划中。周边2公里范围内近享约200万㎡城市公园美景,包括明湖城市公园、鹅颈水湿地公园、东坑湿地公园等。
茅洲河水岸公园在建中,地铁上盖公园湿地公园、凤凰文体公园在建中。其中凤凰文体公园上规划博物馆及文体场馆等配套。
产业集聚:超100万㎡高质量创智产业聚落,为深圳十大人工智能产业集群之一。其中一期约36万㎡产业已竣备完工,预计2025年交付,届时将虹吸科创龙头企业聚集,汇聚智造产业集群与高新人才,打造产城人文共生,实现生活与工作的双重便利。
优势4 多维生活聚场 臻享品质社区润宏城·润臻园作为华润置地深圳新规首作,高使用率产品及多维高浓度配套,给与业主超高获得感。打造中央车站、烟火商业街区、浮岛花园立体都市花园等。
项目注重共享与连接,配置医教文体商等多维配套聚合5分钟新烟火生活圈,提升邻里温情互动,约89-108㎡高拓新规户型,以高使用率重构人本社区。
①给建筑以秩序,构建三层立体都市空间 以有序空间设计增加生活的浓度,项目采用垂直分层的功能布局包括【廊下烟火商业街区】、【中央车站】和【抬高式檐上浮岛花园露台】🎥深圳光明润臻园售楼处电话☎️:4008563771【售楼处已认证】⭕✨*༅༻
🟡✅✅温馨提示: 本项目暂不接受临时到访,过来参观样板房请记得提前来电预约!
🎥深圳光明润臻园开发商电话☎️:400 856 3771【开发商已认证】⭕✨*༅༻
🎥深圳光明润臻园售楼中心电话☎️:400 8563 771【售楼中心已认证】⭕✨*༅༻
【廊下烟火商业街区】:约2000㎡街区商业,其中1000㎡2层商铺分布在社区东南面区,属于廊下烟火商业街,以里巷十字街区打造创新型社区商业,打破社区边界,构建理想格调的生活空间。
【抬高式檐上浮岛花园露台】:约1000㎡,位于商业街区顶层,业主私享花园露台,提供丰富空间活动区域,是邻里交流娱乐的理想场所。
🎥深圳光明润臻园售楼处电话☎️:4008563771【售楼处已认证】⭕✨*༅༻
🟡✅✅温馨提示: 本项目暂不接受临时到访,过来参观样板房请记得提前来电预约!
🎥深圳光明润臻园开发商电话☎️:400 856 3771【开发商已认证】⭕✨*༅༻
🎥深圳光明润臻园售楼中心电话☎️:400 8563 771【售楼中心已认证】⭕✨*༅༻
✅✅关于 深圳光明润臻园 项目最新动态📊—— 如房价、主力户型面积🏠、最低折扣💰、剩余户型楼层、去化率等,以及几号地铁哪个地铁口🚇、周边规划🎯、项目优劣势,还有学校配套🏫等信息,均可致电售楼处了解!我们将安排内场专业置业顾问,为您一对一答疑解惑📞~
免责声明:以上展示的图文资料可能有部分来自于网络,一切信息以最终在现场签署的购房合同为准,如图文内容无意中侵犯某方权益的话,请及时联系我们将配合处理400-856-3771。
声明:本文由入驻焦点开放平台的作者撰写,除焦点官方账号外,观点仅代表作者本人,不代表焦点立场。
