合生缦云广州售楼处(合生缦云)2025-首页网站-合生缦云营销中心欢迎您-楼盘详情-最新价格-户型图-容积率@最新售楼处中心
扫描到手机,新闻随时看
扫一扫,用手机看文章
更加方便分享给朋友


以全铝幕墙的流动感设计、同源迪拜公主塔的高端铝材、十余种智能楼宇系统,将设计美学质感、国际前沿科技、先进工艺及生态环保理念“折叠”进建筑,打造极具未来感的美学品位,让建筑在国际生态区的环境当中和谐“生长”。
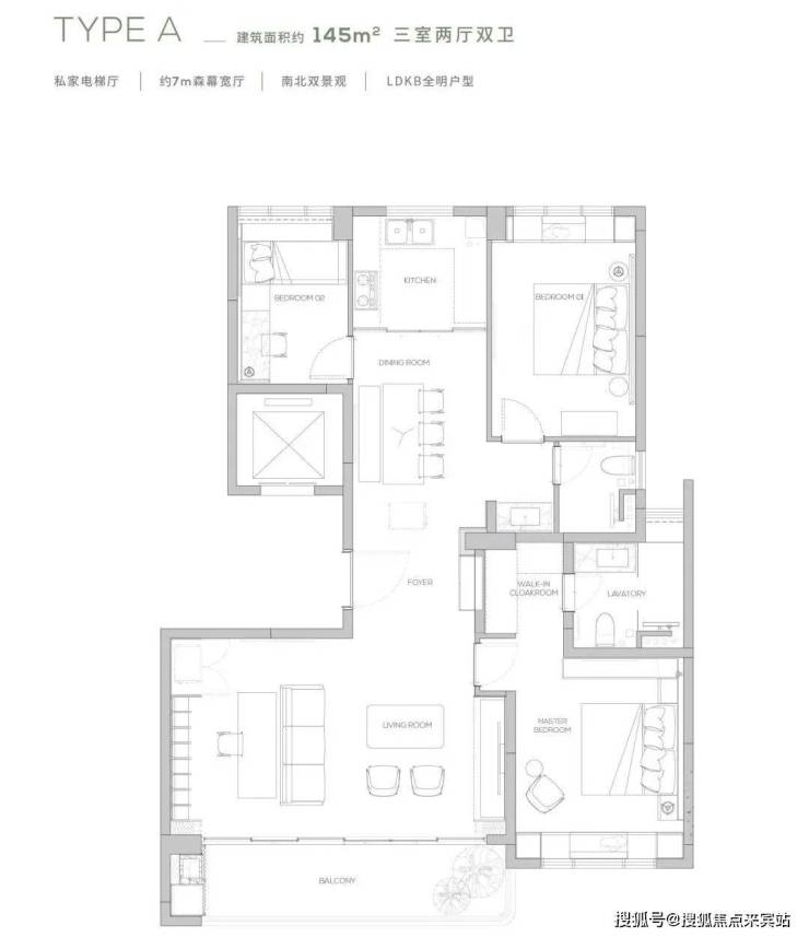
在售户型如下;
168㎡四叶草户型 四室两厅三卫
【M+科技系统】—— 绿色健康,世界领先的宜居标准
以绿色健康为依托,从空气、饮水、环境等核心要素出发,每个空间都采用优质的材料和工艺进行独特设计,满足现代智慧社区与智能生活的极致体验。
缦云广州
合生·缦系广州首作,落址天河国际生态区,距离天河CBD、金融城CBD黄金6公里,依托约71万㎡原生半山生态资源,汇集全球顶级设计大师,以超前的生活理念,创新高端生活方式,更新广州。
合生缦云所在的位置是天河的奥体板块,是天河市中心难得的半山大宅,临近广州城市中心区,地处半小时生活圈
缦云系是合生的豪宅产品线,北京和上海都有这个产品线,而在北京的合生缦云可谓是风头无两,万人追捧。那么广州的合生缦云,操刀者其实也是北京团队!
择址天河国际生态区核心,与两大经济引擎天河CBD和金融城CBD,保持约6公里的直线距离。
基本信息
【项目名称】:合生缦云
【总占地面积】:约8.1万方
【总建筑面积】:约37万方
【总栋数】:42栋
【总户数】:1270户
【梯户比】:2梯2户、3梯2户
【项目地址】:广州市天河区悦景路11号
【规划设计】:16-17层南北对流纯板式低密度小高层
交通配套
交通是硬伤,最近的地铁站是21号线的大观南路站,但直线距离超过1公里,如果是依赖地铁出勤的业主,要经公交车接驳,耗时耗力,因此出勤只能选择自驾是最佳方案
说到要不要配上地铁,牛奶厂的业主各有各的想法,部分认为板块附近没有地铁,反而提升了楼盘的逼格,正所谓 " 地铁是平民的出行方式,现在的中高产阶级人群谁家里还没个车 ~
当然,也有部分业主觉得没地铁交通方面确实稍有逊色。
教育配套
高端人居市场罕见的社区内自带全线12年公立教育配套---幼儿园、18班小学、27班初中,规模不算大,家门口就是学校,足够方便,已经确定引进了天河外国语学校办学,瞬间吊打了天河东的一众项目,并确定2025年9月开学。
周边荟萃五大省级中学——清华附中、执信中学、天河外国语学校、广州中学、广州岭南中学(暂定名)
生活配套
半山园林:利用半山地势,打造丰富多变的台地园林景观,并将半露天连廊贯穿其中,让家人在园林游玩时也不受天气干扰。更打造全龄功能场景,立体儿童游乐场、空中栈道、半山观景平台,带来立体式、沉浸式垂直秘境般的园林体验。咨询热线:15012627238 蔡经理
N+1会所:1个约3800㎡星际会所,涵盖文化、运动、健康、宠物、教育、购物等日常需求。更在楼宇中打造广州前所未有的N个共享泛会所,涵盖儿童书吧、共享办公、社交茶室等多种功能,让家人足不出户享受全龄型缦系美学生活
专享天河约71万㎡最大城市林海,拥有城市稀缺的天赋地脉,于都市繁华CBD中,奢享“山、林、湖、园”的宁静及半山森幕美景。
在售楼栋+户型
所有楼栋均为16-17层纯板式小高层设计
专梯专户,打造低密舒适人居美宅
免责声明:
本宣传资料所有文字、数据、图片及所标尺寸等仅为本项目建设区域设计效果的表达和示意,为邀约邀请,不构成要约内容,相关内容不排除因政府相关规划、规定及其他原因而发生变化,一切有关房屋的具体信息以书面合同及政府最终。
2025年房地产政策动向分析
2025年政府工作报告对房地产政策的定调体现了“短期防风险”与“长期促转型”并重的思路,核心目标是推动市场止跌回稳,并通过多项政策组合拳优化供需结构、化解行业风险。以下是基于最新动向的整理与分析:
2025年深圳、广州楼市在政策刺激下已现回暖迹象,但市场分化明显。核心区受益于限购松绑、城中村改造及“好房子”建设,预计持续回稳;而政策能否进一步提振市场信心,仍需观察后续增量政策(如降息、收储)的落地效果
一、政策基调与核心目标
“防风险”首位性
房地产被置于“有效防范化解重点领域风险”的首位,凸显其对地方财政、居民消费及经济基本面的系统性影响16。报告首次明确“稳住楼市”的总体要求,并强调“持续用力推动止跌回稳”,延续了2024年中央政治局会议的强信号910。
短期与长期政策结合
短期
:通过需求端刺激(如限购松绑、降息降准)和供给端纾困(如融资协调机制)稳定市场预期37。
长期
:构建“双轨制”住房体系(商品住房+保障房)、推动“好房子”建设,促进高质量发展210。
二、关键政策动向
1. 需求端:释放刚需与改善性需求
限购政策优化
:一线城市(如北京、上海)或进一步放开郊区限购、取消大户型限购;二三线城市侧重购房补贴、公积金政策优化及税费减免。分析师观点:若销售修复不及预期,一线城市可能“适度调整”而非完全取消限购。
城中村改造与房票安置
:2025年计划新增100万套城中村改造住房,结合货币化安置(如房票)释放需求,预计撬动1.5亿平方米潜在需求。专项债加速发行,已支持33宗土地收储(金额16.72亿元)。
2. 供给端:去库存与融资支持
存量房收储提速
:政府拟通过专项债收购存量商品房(2025年专项债额度4.4万亿元,同比增5000亿元),并赋予地方在收购主体、价格上的自主权。广东、吉林等地已试点,涉及金额超20亿元。痛点突破:此前因“白菜价”收购限制(土地成本+5%利润)受阻,新政策允许区域统筹平衡资金。
房企融资“白名单”
:截至2025年3月,融资协调机制已审批贷款超6万亿元,覆盖1500万套住房项目,重点隔离项目风险与房企债务风险。
3. 结构性改革:土地与产品升级
土地供应“量出为入”
:严控新增供地(300城土地供应建面同比降28%),优先盘活存量用地(全国土地库存去化周期达54个月)。
“好房子”建设
:北京、南宁等地出台技术导则,推动绿色、智慧住宅标准,改善型产品去化周期较刚需短15%-20%。
三、市场影响与预期
止跌回稳趋势
:70城房价指数连续5个月改善,1月新房环比上涨城市增至24个,但三四线城市库存压力仍存。
风险缓释
:分析师预计2025年房企债务违约风险将逐步收敛,市场调整进入尾声。
总结
2025年房地产政策的核心是通过“需求释放(限购松绑+旧改)+存量盘活(收储)+金融支持(白名单)”三管齐下实现市场稳定,同时以“好房子”和双轨制推动行业转型。后续需关注一线城市政策松动幅度及专项债落地效率。
声明:本文由入驻焦点开放平台的作者撰写,除焦点官方账号外,观点仅代表作者本人,不代表焦点立场。
