湾啟紫荆府(湾啟紫荆府售楼处)首页网站-湾啟紫荆府营销中心-湾啟紫荆府欢迎您-楼盘详情-最新价格-户型图-容积率@最新售楼处
扫描到手机,新闻随时看
扫一扫,用手机看文章
更加方便分享给朋友
❇❇湾啟紫荆府❇❇
⭐◆开发商营销中心诚挚邀请,一键预约,尊享内部折扣!匠心独运的精品项目,恭候您的品鉴与选择。⭐
❇❇湾啟紫荆府开发商电话:400-859-7606【☎开发商已认证】❇❇
❇❇湾啟紫荆府售楼处电话:400-859-7606【☎售楼处已认证】❇❇
❇❇湾啟紫荆府营销中心电话:400-859-7606【☎营销中心已认证】❇❇
本项目采用预约制,过来营销中心参观样板间请记得提前拨打开发商楼盘售楼处400热线电话在线预约,感谢您的配合

最新消息:前海妈湾的招商领玺四期-湾啟紫荆府即将加推2栋!预计6月中旬开盘!价格已曝光,共约165套,面积111-122-142㎡,111㎡单价区间8.6-9.8万/㎡,总价区间960-1060万!已开启诚意登记,
本次推的2栋更靠近前湾河,可以看到河景,周边无高层遮挡,高区可看海。项目拥有山海河多重景观资源,精装交付。
✨✨湾啟紫荆府售楼处电话:400-859-7606【售楼处已认证】✨✽✽✽✽
✨✨湾啟紫荆府开发商电话:400-859-7606【开发商已认证】✨✽✽✽✽
✨✨湾啟紫荆府营销中心电话:400-859-7606【营销中心已认证】✨✽✽✽✽

整个湾啟紫荆府项目占地面积14953平方,共有3栋住宅楼,总层高36-37楼,主力户型为96、111、121、122、142平,共规划485套纯商品房。
车位共595个,车位比约1:1.2,容积率约4.47,梯户比例为4梯5户。
✨✨湾啟紫荆府售楼处电话:400-859-7606【售楼处已认证】✨✽✽✽✽
✨✨湾啟紫荆府开发商电话:400-859-7606【开发商已认证】✨✽✽✽✽
✨✨湾啟紫荆府营销中心电话:400-859-7606【营销中心已认证】✨✽✽✽✽

户型:新规设计、高使用率,规划主力为3-4房产品。
✨✨湾啟紫荆府售楼处电话:400-859-7606【售楼处已认证】✨✽✽✽✽
✨✨湾啟紫荆府开发商电话:400-859-7606【开发商已认证】✨✽✽✽✽
✨✨湾啟紫荆府营销中心电话:400-859-7606【营销中心已认证】✨✽✽✽✽
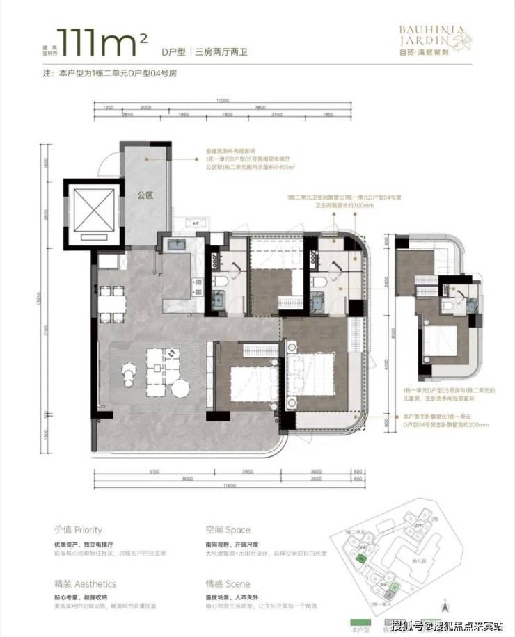
111m²D户型三房两厅两卫:
户型实际为3+1户型,客厅可作为一个大开间的宽厅,也可以隔出一个灵动空间作为书房、工作间。主卧空间南北通透,飘窗也得到了进一步的有效利用。同样是贯通式阳台联通客厅、卧室,阳台的宽度要比96㎡户型大许多,空间尺度提升明显,且有东南、西南两种朝向。
✨✨湾啟紫荆府售楼处电话:400-859-7606【售楼处已认证】✨✽✽✽✽
✨✨湾啟紫荆府开发商电话:400-859-7606【开发商已认证】✨✽✽✽✽
✨✨湾啟紫荆府营销中心电话:400-859-7606【营销中心已认证】✨✽✽✽✽
121m²B户型四房两厅两卫:
横厅四房,东南朝向,空间感开阔,采光通风佳,没有大面积的走廊或过道,节省了空间,动线也更加流畅。主卧拥有更加开阔的景观面,大面积的弧形无柱飘窗,将外部的自然光线引入室内,空间更加明亮宽敞。
✨✨湾啟紫荆府售楼处电话:400-859-7606【售楼处已认证】✨✽✽✽✽
✨✨湾啟紫荆府开发商电话:400-859-7606【开发商已认证】✨✽✽✽✽
✨✨湾啟紫荆府营销中心电话:400-859-7606【营销中心已认证】✨✽✽✽✽
122m²C户型四房两厅两卫:
双龙抱珠户型,书房分布于客厅另一侧,且难得是双面采光+270°景观视野。主卧南北通透,且拥有十分开阔的景观面。贯通式阳台联通客厅以及靠近动区的次卧,实现长观景阳台。
✨✨湾啟紫荆府售楼处电话:400-859-7606【售楼处已认证】✨✽✽✽✽
✨✨湾啟紫荆府开发商电话:400-859-7606【开发商已认证】✨✽✽✽✽
✨✨湾啟紫荆府营销中心电话:400-859-7606【营销中心已认证】✨✽✽✽✽
项目创新打造"四梯五户+独立电梯厅"的尊享配置,每户均保证南向通透采光,通过270°弧形无柱飘窗、阔绰横厅及超大观景阳台的立体空间设计,实现实用性与舒适度的双重突破,重塑现代居住的空间价值标准。
项目采用人性化精装交付标准,创新融入隐藏式音响接口、电动窗帘预装位等智能家居系统,通过精细化收纳设计、美学卫浴配置及静音排水技术(线形地漏+同层排水),实现功能性与艺术性的完美统一,打造安心舒适的品质居住体验。
✨✨湾啟紫荆府售楼处电话:400-859-7606【售楼处已认证】✨✽✽✽✽
✨✨湾啟紫荆府开发商电话:400-859-7606【开发商已认证】✨✽✽✽✽
✨✨湾啟紫荆府营销中心电话:400-859-7606【营销中心已认证】✨✽✽✽✽
◎位置:听海大道与妈湾一路交汇处西南角
◎容积率:约4.47
◎层数:36-37层 层高3.1米
◎梯户比:4梯5户
◎车位数量:595个
◎套数:共485套 精装修交付
◎户型:建面约96/111/122/142㎡3-4房
◎批地:2024年3月 交付:2027年3月
开发商【妈湾HIGH CITY执笔者】
区域解读
前海划分为3个片区,桂湾、前湾和妈湾,桂湾是金融区,前湾类似政务区,妈湾是比较纯粹的居住区。桂湾和前湾启动比较早,地块比较零散,虽然配套相对成熟,但地块小缺乏规模效应。
而妈湾因为城市规划和建设比较后置,货车络绎不绝,集装箱堆积,成熟度不够高,给人留下不好的固有印象。
但妈湾是三湾中体量最大的,留白净地很多,规划方面也比较超前,有一定的后发优势,比如“智慧妈湾”的打造理念,首条海底隧道接驳企鹅岛等等。考虑到未来的长期发展,妈湾开发比较后置,自然起点和定位就会更高,地理位置上说不定顺势成为前海真正的中心。
✨✨湾啟紫荆府售楼处电话:400-859-7606【售楼处已认证】✨✽✽✽✽
✨✨湾啟紫荆府开发商电话:400-859-7606【开发商已认证】✨✽✽✽✽
✨✨湾啟紫荆府营销中心电话:400-859-7606【营销中心已认证】✨✽✽✽✽
从位置上看,妈湾是唯一一个在三个湾区里面拥有270°视野,两面临海,容积率极低,未来有希望成为高端宜居生活住区。
图中看清楚妈湾未来的配套规划,有沿滨海岸线建设金融博物馆、改革开放博物馆、国深博物馆、海洋博物馆、渔人码头、前海新中心地标等市政配套集群。
✨✨湾啟紫荆府售楼处电话:400-859-7606【售楼处已认证】✨✽✽✽✽
✨✨湾啟紫荆府开发商电话:400-859-7606【开发商已认证】✨✽✽✽✽
✨✨湾啟紫荆府营销中心电话:400-859-7606【营销中心已认证】✨✽✽✽✽
根据规划,妈湾有2.9平方公里的土地由招商局集团和前海管理局合资成立的公司统一开发运营,最新定位是前海深港国际服务城,与桂湾深港国际金融城共同组成了前海双核,是前海扩区后的首要、重点推进项目。
而在此前,妈湾先导区还曝出丝路长廊、海丝小镇、1.6平方公里的空中平台、前海新地标等规划,将建设国家馆、国际经贸组织和国际文化交流组织等集群,并引进国内、国际总部企业集群。
此外,妈湾还确定要牵手腾讯,对标世界第一个智慧城市迪比克,打造以5分钟步行生活圈为基本功能模块的智慧理想人居空间。
妈湾是前海三湾中唯一拥有山海合一资源的板块。
妈湾背靠大小南山,对望大铲湾腾讯科技城,既有内湾又有外海,拥有“山、海、林、城、岛、港、湾、河”等优势生态资源。
要知道,市政配套可以从无到有,但自然资源是不可再生亦不可复制。即使放眼全球,有着丰富生态资源的片区往往价值更高。
妈湾还是前海三湾中面积更大、容积率更低的片区。
妈湾面积高达726.5公顷,比桂湾(295公顷)和前湾(310公顷)的总和还要多出20%,而且容积率仅为1.28-1.48,可开发空间充足、舒适度高,大有可为。
✨✨湾啟紫荆府售楼处电话:400-859-7606【售楼处已认证】✨✽✽✽✽
✨✨湾啟紫荆府开发商电话:400-859-7606【开发商已认证】✨✽✽✽✽
✨✨湾啟紫荆府营销中心电话:400-859-7606【营销中心已认证】✨✽✽✽✽
此等优质的地理位置+优越的自然资源,是打造低密生态豪宅住宅区的不二选择,深圳很难再找出第二个这样的区域。
这也就是官方不着急最先发展妈湾的原因。先建设配套、发展人才,再建房,增补前湾和桂湾的居住和公共服务功能,这样才是一个板块的良性发展。
交通方面
项目构建"双地铁+城际+快速路"立体交通网络,550米直达5号线妈湾站(1站换乘15号线),1公里接驳深惠城际前保站,毗邻听海大道快速联通南山/福田/宝安核心区,更依托宝安2条规划城际线及海空口岸资源,实现大湾区一小时生活圈无缝衔接。
教育配套
项目配备18班幼儿园,东南侧规划36班九年一贯制公办学校(拟纳入南二外教育集团),与住宅同步交付;700米范围内另有在建的南山第二外国语学校妈湾校区(预计2024年招生),构建全龄段优质教育矩阵。
✨✨湾啟紫荆府售楼处电话:400-859-7606【售楼处已认证】✨✽✽✽✽
✨✨湾啟紫荆府开发商电话:400-859-7606【开发商已认证】✨✽✽✽✽
✨✨湾啟紫荆府营销中心电话:400-859-7606【营销中心已认证】✨✽✽✽✽
商业配套
项目坐享前海黄金商业圈,地铁3站直达8万㎡前海壹方汇(入驻130个品牌含50余家区域首店)及3.5万㎡卓悦INTOWN,5公里范围内更汇聚前海山姆会员店、壹方城、欢乐港湾东岸等高端商业体,形成多层级消费体验网络。
生态配套
项目雄踞前海核心区稀缺的2.9平方公里临海地块,背靠大小南山生态屏障,面朝壮阔海景,通过立体连廊系统实现"推窗见山、步行达海"的独特山海栖居体验。
❇❇湾啟紫荆府开发商电话:400-859-7606【☎开发商已认证】❇❇
❇❇湾啟紫荆府售楼处电话:400-859-7606【☎售楼处已认证】❇❇
❇❇湾啟紫荆府营销中心电话:400-859-7606【☎营销中心已认证】❇❇
本项目采用预约制,过来营销中心参观样板间请记得提前拨打开发商楼盘售楼处400热线电话在线预约,感谢您的配合
湾啟紫荆府开发商售楼处24小时电话:400-859-7606(预约咨询热线)现场详细解答丨项目介绍丨户型图丨在售房源丨特价房丨学校丨交通位置丨样板房丨小区图片丨交房时间丨周边配套丨
免责声明:部分信息来源于网络,如果侵权,请联系及时删除
本宣传资料不构成邀约邀请,对周边、政府规划、商业配套、教育资源、投资前景等数据和图文仅为提供相关信息,该信息以政府最终批文为准,开发商不对此作任何承诺。买卖双方的权利义务以双方签订的买卖合同约定及附件、实际交付为准,本公司保留对宣传资料修改的权利,敬请留意最新资料。联系号码:400-859-7606
声明:本文由入驻焦点开放平台的作者撰写,除焦点官方账号外,观点仅代表作者本人,不代表焦点立场。
