荔源雅苑售楼处电话→荔源雅苑售楼中心电话号码→荔源雅苑咨询热线→24小时电话→容积率-样板房-配套详情@售楼处
扫描到手机,新闻随时看
扫一扫,用手机看文章
更加方便分享给朋友
————【深圳荔源雅苑】————
线上预约看房【享】专属优惠折扣
在售户型图丨项目介绍丨最新房源丨周边配套丨详细解答〢
荔源雅苑售楼处24小时VIP电话:400-962-6159温馨提示:来电预约看房、尊享更多现场优惠!(中介勿扰)
荔源雅苑售楼中心热线:400-962-6159(售楼处)【VIP贵宾专线】
楼盘最新介绍:备案价、折扣、学区、地铁、交通、户型图、特价房、优缺点、得房率、优惠活动、小区图片、开盘时间、交房时间、周边配套、最新详情等咨询。
本文内容为广告推广,涉及房价或现有房源可能出现变更,请致电详询并以售楼部为准。
为了您更好的看房体验,可致电预约!(置业顾问一对一对接、项目定位预留停车位)
深知家的真谛远超越砖瓦构筑,它是心灵的港湾,情感的归宿。我们秉承品质至上的原则,以服务为灵魂,匠心独运,只为构筑一个集安心、信赖、惬意与健康于一体的理想居所。展望未来,我们将不遗余力,确保项目精准无误地按期呈现,让您的心愿家园触手可及,早日沉浸于梦寐以求的幸福生活之中。
欢迎来电咨询楼盘、线上预约看房可享专属活动哦~~
➤➤➤➤VIP贵宾置业〢欢迎来电咨询〢品鉴!!

项目基本信息
占地面积:约6249.71㎡
建筑面积:约34182.59㎡
物业类型:住宅
容积率:约3.52
绿化率:约34.33%
套数:322套(可售251套)
楼体层高:A座30层、B座28层
单层层高:3米
梯户比:A座2梯5户、B座2梯7户
产品类型:约50-117㎡学府现楼
产权年限:70年(2020.3-2090.3)
物业费:6.68元/㎡/月
物业公司:深圳万家好物业服务有限公司
项目地址:南山·科技园·教科院同乐实验学校旁
区域价值
毗邻科技园,集前海、后海、深圳湾等总部基地发展利好,汇聚全球前沿科创菁英,承载超百万高净值人群居住、生活需求,成就总部都芯生活主场。
高新科技园(东向约3km):国家创新型城市的核心区域,就业人口约60万人。
前海深港合作区(西南向约4km):定位国家战略性门户枢纽,未来将打造成世界级城市新中心,规划就业人口约65万人,居住人口15万人。
后海金融总部基地、深圳湾超级总部基地(东南向约6km):中国总部企业最为密集区域之一,规划就业人口约为54万人。

交通配套
12号线同乐南站(直线约800m),4站到宝中和科技园,5站到前海和后海;
15号线(建设中)同乐关站(直线约1.5km),2站到西丽高铁站,贯穿前海、后海、南山、宝安等重要片区,环经济发展核心区域。
另有13号线(建设中)等多轨交汇,高效出行。
立体交通-邻近未来深圳最大高铁站一一西丽高铁枢纽(在建中);享南坪快速等“四横两纵”交通路网。

商业配套
一路之隔约1万㎡隆尚Minitown(开业在即),云城万科里、海雅缤纷城及壹方城环绕近享,万象天地、深圳湾万象城、海岸城、万象前海四大商圈辐射,集萃南山、宝中双区成熟商圈,尽揽一城璀璨繁华。
教育配套
直线距离约100m九年一贯制区属公办教科院同乐实验学校,作为南山区首个教科院系实验学校,以区教科院为智库,为儿女成长提供优质教育平台。
近邻“深圳十强、广东省二十强”博纳学校、公办18班华泰幼儿园,人文优教荟萃,护航孩子成长。
教科院:曾创办南山第二外国语学校,现已发展为南山第一梯队名校。教科院同乐实验学校是教科院成立以来的第一所实验学校,预计承袭南二外的成功经验和成果。
医疗配套
南山区人民医院、宝安区人民医院、宝安中医院等三甲医院以及南山区中医院(在建),优渥医疗资源,护航健康生活。
文体配套
荷兰花卉小镇、南头古城、南山文体中心、南山博物馆、南山图书馆以及宝中重点配套,全配阵容艺术生活,涵养人文气韵。
生态配套
周边规划约2.5万㎡公园绿地,近享铁路文化公园、中山公园、新安公园,城市绿氧触手可及。
小区品质
【境在低密】纯居社区 入住南山高阶格调生活
秉承奢居美学基因,甄选铝板及干挂石材为主要用材匠筑外立面,建筑颜值历久弥新。
以“轻氧森居、活力社交”为核心理念,打造全龄社交空间,兼具美学颜值与低密舒居,敬呈一城所向的理想生活。

【仅在当下】实景低密现楼 见证你所预见
容积率约3.52墅级低密住区,现楼呈现,幸福无需久侯。
南山难得中小户型,以品质、人性化理念,匠造建面约50-52㎡南山稀缺小户型、89㎡南向园景户型、臻稀117㎡南北通透品质户型,敬献时代菁英。
【敬献服务】万家好物业细节服务 有度生活
27年服务经验,服务面积超100万㎡,拥有园林绿化和清洗保洁两个国家一级资质,以专业的物业服务团队与服务理念,提供专业化、智能化、一站式管理服务,畅想社区美好生活。
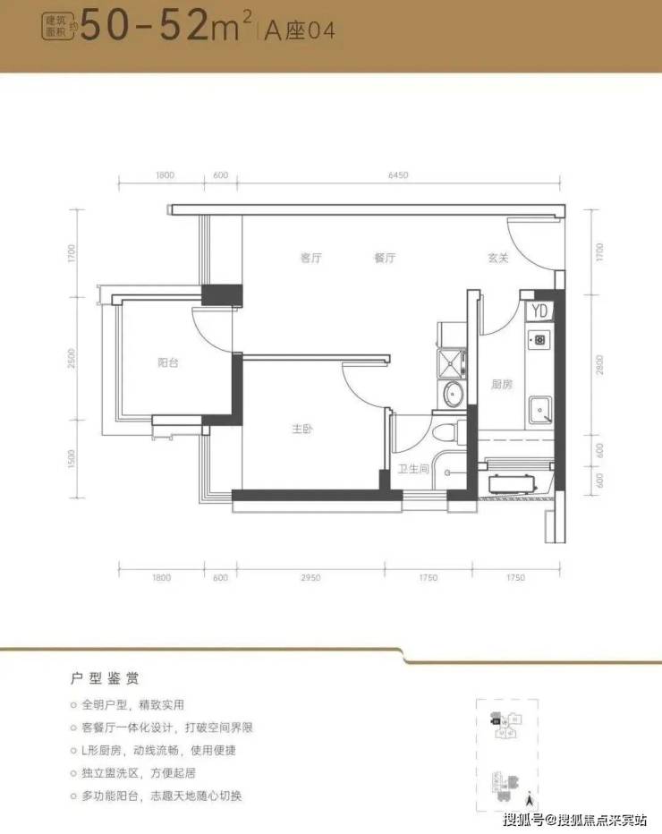
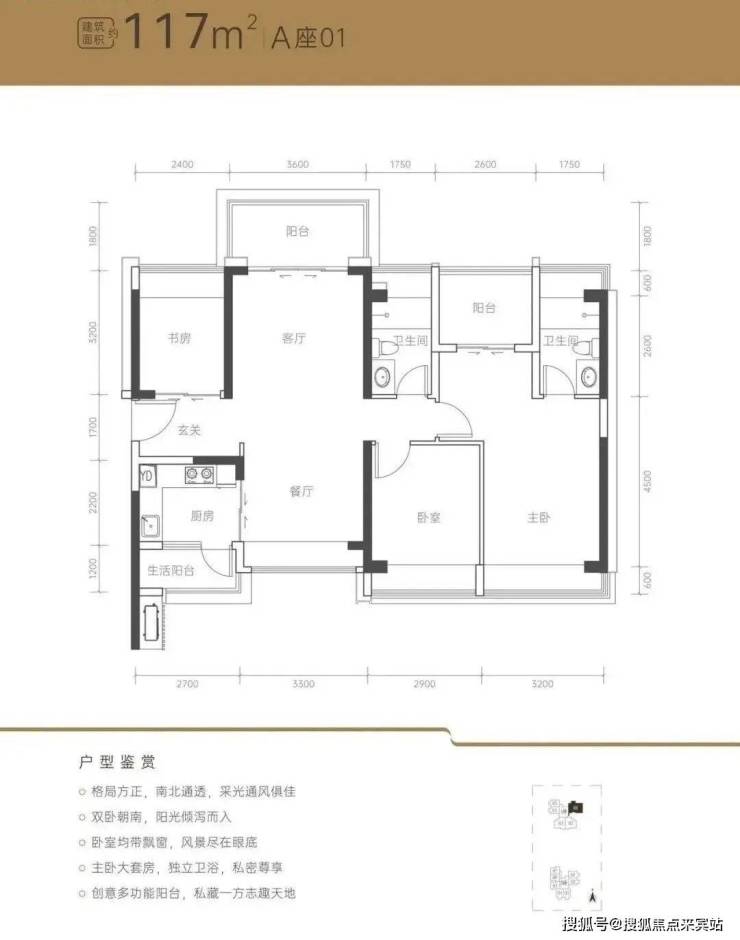
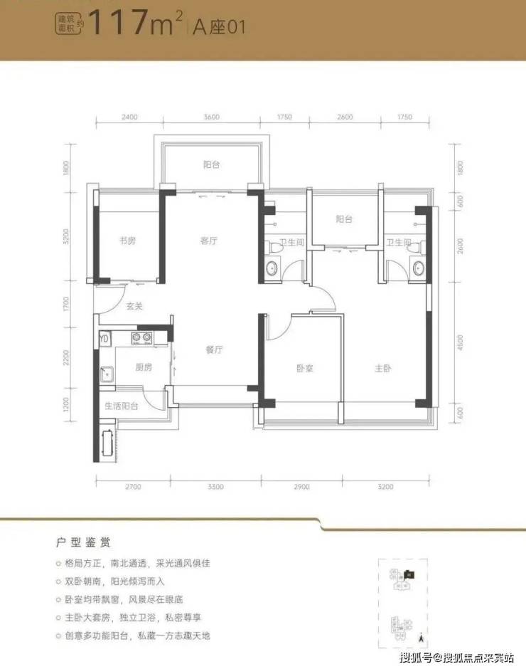
户型鉴赏
50-52㎡两房户型
全明户型,精致实用;客餐厅一体化设计,打破空间界限;L形厨房,动线流畅,使用便捷;独立盥洗区,方便起居;多功能阳台,志趣天地随心切换。
89平三房两卫户型
正南朝向,经典格局,动静分区;LDKB一体化设计,畅享无界空间;主卧独立卫浴,私密起居互不打扰;三开间朝南,阳光清风时刻舒享;双阳台设计,一方藏纳诗意,一方犒赏生活。
117平四房两卫户型
格局方正,南北通透,采光通风俱佳,双卧朝南,阳光倾泻而入,卧室均带飘窗,风景尽在眼底,主卧大套房,独立卫浴,私密尊享,创意多功能阳台,私藏一方志趣天地。
深圳✅荔源雅苑开发商售楼处电话400-962-6159温馨提醒:我们楼盘开发商售楼部400电话没有设置任何所谓的“分机号”,拨打前请仔细甄别,注意保护个人隐私!谨防上当!
过来售楼中心看房请提前预约,可尊享内部特惠,价格包您满意!
为您安排楼盘内场专业销售人员一对一接待服务!让你买的放心,住的舒心!
楼盘详情介绍(楼盘项目怎么样?多少钱一平?什么时候交楼?有什么户型?周边有什么学校?物业费多少?楼盘项目会不会烂尾?)含开盘时间、交房时间、楼盘详情、房价、户型、详情、得房率、售楼处地址、首页网站、降价了吗?目前房价情况、楼盘项目有升值吗?值不值得买?能不能投资?为什么这么便宜?读什么学校?包读吗?有多少学位?销售中心、楼盘地址、户型图、交通、备案价、项目配套、营销中心、周边配套等详情咨询。
荔源荔源雅苑营销中心电话☎:400-962-6159✅
荔源雅苑开发商售楼处咨询电话:400-962-6159【营销中心】楼盘怎么样?值不值得买?读哪个学校?价格多少?户型怎样?位置在哪里?有没有潜力?几点下班?开盘时间?产权多少年?批地时间?有没有问题?什么开发商?能买吗?打几折?周边配套楼盘详情。
荔源雅苑售楼处电话:400-962-6159;首页网站最新介绍:房价、价格、折扣、规划、户型图、特价房、样板房、优缺点、得房率、车位比、折扣优惠、交通出行、周边配套、商业配套、销售中心位置、楼盘地址、户型介绍、营销中心电话、最新动态详情咨询。
荔源雅苑营销中心电话400-962-6159
荔源雅苑开发商电话400-962-6159免责声明:部分信息来源于网络,如果侵权,请联系及时删除
本宣传资料不构成邀约邀请,对周边、政府规划、商业配套、教育资源、投资前景等数据和图文仅为提供相关信息,该信息以政府最终批文为准,开发商不对此作任何承诺。买卖双方的权利义务以双方签订的买卖合同约定及附件、实际交付为准,本公司保留对宣传资料修改的权利,敬请留意最新资料。联系号码:400-962-6159免责声明:部分信息来源于网络,如果侵权,请联系及时删除,联系电话:400-962-6159
2024房产最新信息:
美联储本次降息,对国内房地产市场有何影响?
受美联储降息利好因素影响,今日包括万科、金地、融创、世茂集团、建发国际等多只房地产股走强。
广东省城乡规划院住房政策研究中心首席研究员李宇嘉指出,美联储降息,有效缓解了国内实施货币宽松政策决策时,对于人民币贬值和人民币资产价格进一步下跌的顾虑和掣肘。
“这预示着后续降准降息的通道会更加宽敞,国内按揭利率进一步调控的空间变得更大。这对于缓解开发商资金链紧张,降低购房者按揭成本,促进住房需求,均会产生积极影响。”李宇嘉称。
易居研究院副院长严跃进认为,美联储本次降息对国内货币政策、宏观经济和产业经济也将形成利好,这其中,对房贷利率的影响可能会更加明显。
陈文静也认为,美联储本次降息,为我国后续货币政策调整释放出更大的空间,预计后续我国降准、降息的调整或加快落地,有助于进一步降低企业融资成本。“对房地产市场而言,5年期以上LPR有望进一步下调,居民购房成本也可能随之下降。”
国内降息预期走强
“美联储降息后,按当前的经济形势,国内降息预期随之走强,市场还预期调整幅度可能不会小。”中原地产首席分析师张大伟表示。
在对8月金融统计数据的解读中,央行有关部门负责人表示,“着手推出一些增量政策举措,进一步降低企业融资和居民信贷成本,保持流动性合理充裕。”
就此,严跃进认为,今年9月份至年底LPR降息概率加大,界时房贷成本如果进一步下降,将有助于降低购房成本、提振购房消费意愿。
事实上,“517新政”实施以来,首套房、二套房房贷款利率持续走低。
中原地产研究院统计数据显示,2024年8月全国首套房平均利率已经跌到3.25%左右,二套房贷款平均利率为3.6%。
目前,多数城市首套房贷利率已降至2.9%~3.4%之间。其中,5年期以上房贷利率最高是北京和上海,这两城该项利率均为3.4%,广州低至2.9%;二线城市普遍为3.1%,南京低至2.95%。
张大伟认为,在资本宽松环境下,预计未来部分股份制小银行的房贷政策可能会出现全面宽松,房贷利率或进入“2字头区间”。
存量房贷利率方面,严跃进表示,间接来看,此次美联储降息,或有助于存量房贷利率的进一步下调。
房企融资环境或得到改善
从盘活存量房地产市场角度来观察,有分析师认为,美联储降息有助于吸引外资进入中国市场,房地产领域的大宗投资有望升温。
“从机会点来说,经过持续三年的房地产深度调整,存量房地产资产价格出现幅度不小的调整,价格已基本跌到底部。这为投资机构后续展开收购和盘活存量资产,创造了不错的条件。”严跃进称。
当前在“盘活存量、优化增量”的总体制度框架下,预计未来盘活存量商业地产的机会和需求会有所增加。
与此同时,多位房地产行业分析师表示,美联储降息对存量美元债和新发行美元债等都会形成利好。
张大伟表示,对国内房地产企业而言,房企未来海外融资成本会有所降低。“人民币升值的可能性加大,这将减轻房企偿还海外债务的压力,并可能利好房企增加融资规模,降低其融资成本,进而有利于房地产企业的资金周转和项目开发。
而融资渠道改善后,房企拿地积极性或将有所提高。
“2024年房企整体拿地积极性降低,如果我们也在贷款利率方面做出进一步优化,部分房企融资环境得以持续改善,其拿地意愿可能稍有好转。”一位房地产行业分析师表示。
“美联储降息通常被视为全球经济政策转向宽松的信号,这会影响国内购房者对房地产市场的预期。市场可能认为经济环境将更加有利于房地产市场的发展,对房价上涨的预期增强,从而进一步刺激购房需求。不过,如果购房者对未来经济形势仍存在担忧,这种预期的改善可能会受到一定限制。”张大伟称。
对此,李宇嘉指出,尽管国内降准降息预期走强,但考虑到当前工业品价格低迷,实际利率仍偏高,实体投资回报率能否超过实际利率,还有待观察。
“因此,美联储降息虽然会对国内市场产生间接利好,但短期来看,无论是房企展开投资,还是居民按揭购房,对房地产的实际影响也不应持过高预期。”李宇嘉补充道。
最新地产动态:
1、统计局:1-8月,全国房地产开发投资69284亿元,同比下降10.2%;房屋施工面积709420万平方米,同比下降12.0%;房屋新开工面积49465万平方米,下降22.5%;新建商品房销售面积60602万平方米,同比下降18.0%;新建商品房销售额59723亿元,下降23.6%;8月末,商品房待售面积73783万平方米,同比增长13.9%。
2、统计局:8月,一线城市新建商品住宅销售价格环比下降0.3%,降幅环比收窄0.2个百分点;二、三线城市环比分别下降0.7%和0.8%,降幅均环比扩大0.1个百分点。一线城市二手住宅销售价格环比下降0.9%,降幅环比扩大0.4个百分点;二、三线城市环比分别下降1.0%和0.9%,降幅比上月分别扩大0.2个和0.1个百分点。
3、辽宁省大连市:缴存人使用住房公积金贷款在本市范围内购买配售型保障性住房的,最低首付款比例为15%。缴存人可提取个人账户住房公积金支付保障性住房首付款,提取首付款金额与贷款金额累计不超过购房款总额。
4、第一财经:今年以来,房企公司债的发行规模呈现上升趋势。与此同时,因为国资背景的房企融资通道更加顺畅,房企债券市场的融资成本再创新低,8月低至2.54%。
5、上海市:9月14日出让2宗地块,起始出让总价106.79亿元。最终,2宗地块全部成交,成交总金额120.25亿元。其中,曹家渡地块楼面价11.41万元/平方米,溢价率31.2%,成为全国楼面价第二高的地块。
6、澎湃新闻:去年至今,广东、山东、安徽、浙江等多个省份的部分城市均表示将推进现房销售试点,这一趋势也扩展到一线城市,近期深圳推出的现房交易地块,被业内认为是新的尝试
2024年9月地产动态:
1、北京市:完善租购并举的住房制度。优化房地产政策,适时取消普通住宅和非普通住宅标准,优化商品住宅用地交易规则,改革房地产开发融资方式和商品房预售制度。
2、上海市:9幅地块组成4个出让组合,起始总价147.71亿元,出让面积为19.68万平方米,规划建筑面积50.69万平方米。本次出让地块的现场交易会将于10月25日开始举行。
3、山东省德州市:新增提取公积金支付购房首付款业务类型。购买德州市行政区域内首套新建商品房,可以提取住房公积金支付购房首付款,提取人可以是购房人和直系亲属。此政策暂定执行至12月31日。
4、浙江省杭州市:新挂牌1宗宅地,总起始价约26.62亿元,将于10月22日正式出让。该宗地块所建商品住房毛坯销售均价不高于61500元/平,且毛坯销售最高单价不高于67650元/平。
5、广西省北海市:提高住房公积金贷款额度,即单身职工最高贷款额度由45万元调整为50万元,已婚职工最高贷款额度由55万元调整为60万元。生育三孩家庭的最高贷款额度由65万元调整为70万元。
6、中国房地产网:9月20日,成都市锦江区迎来一场重磅土拍。该地块位于金融城三期,最终贝好家以楼面价27300元/平方米、总价约10.77亿元竞得,溢价率42%。该成交楼面价刷新成都市土地拍卖楼面价新高。
声明:本文由入驻焦点开放平台的作者撰写,除焦点官方账号外,观点仅代表作者本人,不代表焦点立场。
