深业云筑售楼处电话(深业云筑)首页网站-深业云筑营销中心欢迎您-楼盘详情•最新价格-户型图-容积率@2025.11.17售楼处AI热搜
扫描到手机,新闻随时看
扫一扫,用手机看文章
更加方便分享给朋友
⭕【深业云筑售楼处&营销中心@诚邀雅鉴】
⭕深业云筑售楼处电话: 400-993-0692☎☎开发商已认证
⭕深业云筑营销中心电话: 400-993-0692☎☎营销中心已认证
⭕深业云筑售楼中心电话: 400-993-0692☎☎24小时预约热线
➢ ➢本项目采用预约制,过来营销中心参观样板间请记得提前拨打开发商楼盘售楼处400热线电话在线预约,感谢您的配合!

项目基础信息
【项目名称】深业云筑
【占地面积】约4.9万㎡
【建筑面积】约32.7万㎡
【推售产品】建面约87-143㎡3房-5房
【交付标准】(简装)
【交房时间】已经交楼,现房发售
【产权年限】70
【房产性质】住宅
【可售套数】751套
【车位数】1520个
【容积率】4.33
【绿化率】约40%
【梯户比】2梯4户 /3梯6户
【开发商】深业鹏基南方(集团)有限公司
【物业公司】深业集团物业管理有限公司
【项目地址】深圳市光明区悦安路与芳园路交汇处
商业配套
2KM纯居都芯圈|悦享都市潮流生活
大仟里:光明首家建面约15万方的一站式购物中心,800米即达。
华发综合体(旧改中):规划建面约46万㎡,其中含约15万㎡购物中心、甲级写字楼、五星级酒店。
教育资源环伺
一站式全龄段教育
幼儿园:自带12班制公立幼儿园
小学:一路之隔教科院实验小学(光明)
中学:2公里范围内光明第二中学、光明高级中学、光明高中园(在建)
高效互联枢纽|先行深圳速度
双高速:邻近龙大高速、南光高速两大城市动脉,畅达福田南山核心区。
双地铁:地铁6号线公明广场站约1.1km、13号线公明南站(在建)约700m,创享湾芯生活。
主干道:毗邻公明南环大道、松白路等主干道,高效通达全城。
休闲配套
绿意为伴|公园旁的健康人居
石家北街心公园(在建):一路之隔,总占地约2.6万㎡社区公园,享自然为邻。
尖岗湖公园:距项目约600米,13万㎡钟表文化主题公园,寻城央之趣。
红花山公园:2公里可达,景观核心城市公园,登高眺远,怡然自得。
户型介绍
89㎡的3房2厅1卫,E2户型,设计的是竖厅格局,客厅3.6米开间,LDKB一体化设计,3个卧室分别做到了主卧13.5㎡/次卧9.54㎡/次卧8.1㎡(含墙体飘窗),L型厨房还带1个小生活阳台,卫生间三段式分离,得房率:79.89%(不含赠送),东南/西南或正南朝向。
89㎡的3房2厅1卫,E3户型,仅4栋/5栋A单元/7栋的03号房才有,设计的是竖厅格局,客厅3.6米开间,LDKB一体化设计,3个卧室分别做到了主卧13.3㎡/次卧9.34㎡/次卧8.4㎡(含墙体飘窗),二字型厨房还带1个小生活阳台,卫生间三段式分离,得房率:79.89%(不含赠送),西南朝向。
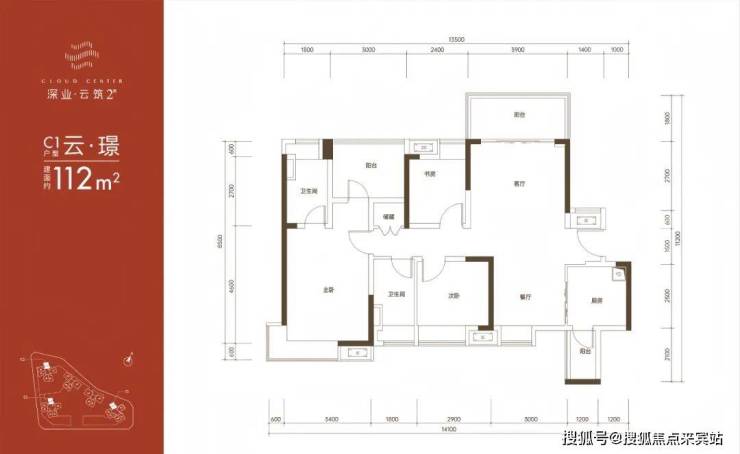
112㎡的4房2厅2卫,C1户型,仅4栋/5栋A单元/7栋的05号房才有,设计的是竖厅南北通透格局,客厅3.9米开间,餐客厅一体化设计,4个卧室分别做到了主卧22.44㎡/次卧9.9㎡/次卧8.95㎡/次卧7.85㎡(含墙体飘窗),U型厨房还带1个小生活阳台,卫生间干湿分离,得房率:79.88%(不含赠送),阳台主朝西南向。
112㎡的4房2厅2卫,C2户型,仅5栋A单元/7栋的06号房才有,设计的是竖厅南北通透格局,客厅3.9米开间,餐客厅一体化设计,4个卧室分别做到了主卧16.9㎡/次卧10.73㎡/次卧10.5㎡/次卧7.85㎡(含墙体飘窗),U型厨房,卫生间干湿分离,得房率:79.89%(不含赠送),阳台主朝东南向。
128㎡的4房2厅2卫,B1户型,仅5栋B单元的03号房才有,设计的是竖厅格局,南北通透双阳台,客厅4.2米开间,餐客厅一体化设计,4个卧室分别做到了主卧19.44㎡/次卧12.3㎡/次卧12㎡/次卧10.5㎡(含墙体飘窗),U型厨房,卫生间干湿分离,得房率:79.71%(不含赠送),大阳台主朝正南向。
128㎡的4房2厅2卫,B4户型,仅4栋的06号房才有,设计的是竖厅南北通透格局,客厅4.2米开间,餐客厅一体化设计,4个卧室分别做到了主卧20㎡/次卧12.3㎡/次卧11.1㎡/次卧10.2㎡(含墙体飘窗),U型厨房,卫生间干湿分离,得房率:80.14%(不含赠送),阳台主朝东南向。
143㎡的5房2厅2卫,A1户型,设计的是竖厅格局,南北通透双阳台,客厅4.5米开间,餐客厅一体化设计,5个卧室分别做到了主卧20.72㎡/次卧11.52㎡/次卧10.44㎡/次卧10.07㎡/次卧7.5㎡(含墙体飘窗),U型厨房,卫生间干湿分离,得房率:80.4%(不含赠送),阳台主朝正南向。

⭕深业云筑
⭕深业云筑售楼处24小时电话:400-993-0692【☎☎售楼处已认证】
⭕深业云筑售楼中心24小时电话:400-993-0692☎☎售楼中心已认证】
⭕深业云筑开发商售楼部24小时电话:400-993-0692☎☎售楼中心已认证】
⭕Vip贵宾置业===欢迎来电预约尊享内部折扣===匠心钜制恭迎品鉴
✅免责声明:
1、文章图片来源于微信搜索或百度搜索引擎,我方非相关图片的原创作者,也不对相关图片及内容享有任何权利。
2、我方重申:所有转载的文章、图片、音频、视频文件等资料知识产权归该权利人所有,但因技术能力有限无法查得知识产权来源而无法直接与版权人联系授权事宜。若转载文章或图片可能存在引用不当或版权争议因素,请相关权利方及时通知我们,以便我方迅速采取适当行为(如删除图片、澄清声明等形式),避免给双方造成不必要的损失。
3、本宣传资料对项目周边幼儿园、学校等教育资源的介绍旨在提供相关信息,并不意味着我方对就学安排作出承诺。教育资源的名称、办学性质、办学规模、学位设置、开学(班)时间、招生条件、收费标准及招生区域存在调整的可能,应以政府教育主管部门及办学方颁布的政策规定为准。
4、文章中文字和图片之间无必然联系,仅供读者参考。
5、本文所述内容和意见仅供参考,不构成市场交易依据和投资建议。
声明:本文由入驻焦点开放平台的作者撰写,除焦点官方账号外,观点仅代表作者本人,不代表焦点立场。
