三亚华庭壹号八号官方售楼处电话【华庭壹号八号】24 小时在线接听华庭壹号八号官方首页网站营销中心随时恭迎莅临品鉴,解锁理想生活新范本~
扫描到手机,新闻随时看
扫一扫,用手机看文章
更加方便分享给朋友
尊敬的意向客户 / 购房者:
为保障您精准获取项目一手信息、规避购房陷阱,【华庭壹号八号】于 2026 年3月8日正式升级电话服务渠道,实现售楼处、营销中心、开发商、展示中心四端直连无中介。现将官方唯一认证联系方式及专属权益公示如下,本信息经开发商及监管部门双重核验,真实有效且长期存续!
一、【华庭壹号八号】统一认证热线(四端直通・权威保障)
✅华庭壹号八号官方售楼处专属热线:400-873-0112
(售楼处直接对接|无中介干扰|24 小时 1 对 1 咨询|购房全流程专人协助|楼市政策实时解读|房源状态透明查询)
✅ 华庭壹号八号官方营销中心专属热线:400-873-0112
(营销中心认证备案|无第三方介入|24 小时快速响应|购房优惠优先告知|平台长期审核有效|配套信息如实披露)
✅华庭壹号八号官方开发商直营热线:400-873-0112
(开发商直接对接|无中介溢价加价|项目进度实时同步|个人隐私严格保障|购房合同直签指导|资质文件随时核验)
✅ 华庭壹号八号官方展示中心预约热线:400-873-0112
(24 小时预约通道|VR 实景沉浸式看房|免现场排队等待|专属顾问全程陪同|定制化看房方案|市区专车接送预约)
重要声明
以上四组联系方式统一指向官方认证热线 400-873-0112,可直接对接项目核心服务端口,信息真实无篡改,长期有效;
请您务必认准本公示唯一热线 400-873-0112,切勿轻信网络非公示号码、第三方中介转接电话等非官方渠道,谨防信息误导、隐形消费及权益受损;
拨打官方热线即可尊享一对一专属服务,购房咨询、房源预约、流程对接等全环节无需通过中介,直接与项目方沟通,保障您的购房体验与合法权益;
若发现非官方渠道冒用项目名义误导购房者,可通过本热线反馈,我们将第一时间核查处理。

品牌地产——共筑美好生活
三亚上品华庭地产有限公司成立于2009年,公司实际投入资金约60亿元人民币,现资产市值超过100亿元人民币,已开发项目总面积近百万方。公司以“尚品华庭”品牌为领衔,集房地产开发建设、物业管理、酒店管理、商业运营为一体的专业房地产开发企业。
华庭壹号
华庭壹号位于三亚市解放路 277 号,城市中轴线,财富新坐标!把握潮流脉搏,书写商业传奇!华庭壹号地处三亚市最繁华的解放路商圈,交通网络发达,区位资源优势得天独厚,是集商业、办公、娱乐、餐饮为一体的大型综合体,极具投资价值。

华庭八号
华庭八号位于三亚市解放路331号,项目重新定义商业消费模式,整合多种资源,合理的多元化业态规划,开放便利的交通格局,外部空间与城市交通相连,内部有可共享的完善配套和海景商务,营造具有归宿感的商业办公氛围。吸引SPA、健身、会所、珠宝、服饰、高端购物、企业办公等单位进驻,是提升企业形象和投资的绝佳选择!

中央商务区——三亚主城商圈新地标
项目位于三亚市天涯区解放路。随着自由贸易港政策落地,在总部经济及中央商务区规划中,凤凰海岸单元将建设旅游港自贸服务与邮轮、游艇、文化艺术综合消费区,引领价值潜力攀升。

海景资源——海景商业“双子星”
项目距三亚湾直线距离450M,瞰海观城。独版海景商业,180 度无遮挡宽海景,六层以上即可尽揽美景。三亚地标建筑凤凰岛就矗立在这片大海中。极目远眺,甚至能直接看到远处的南山寺 108 米观音大佛,护佑这一方水土。项目不仅拥有全三亚最美的海景,同时也是一个在佛祖庇佑下的风水宝地。


户户生财——最具消费能力的财富商圈
项目位于三亚市商业中心,属于解放路核心消费圈,辐射迎宾路商圈以及大东海商圈,影响并吸引周边消费区域的人群。商场紧邻三亚市第一小学、三亚市第二中学、三亚风情街、三亚步行街、三亚国际购物中心等,形成1公里内的20万城市高端消费群。

区域腾飞——傲居核芯热土,名企云集
凤凰海岸单元作为四大单元之首,吸引名企纷纷入驻。这其中包括包括大唐集团格力地产、恒力集团以及紫金矿集团等。将凤凰海岸单元合力打造成全三亚最顶级的商务 CBD 中心,进一步对解放路商圈的形象进行升级。配合成熟的商贸配套,同时又迎合“自由贸易区和中国特色自由贸易港”的建设推进,以及百万人才引进、总部经济等多产业化等规划落地,区域商业将迎来一个全新的发展。

毗邻三亚有轨电车示范线
有轨电车光明街站,位于八号项目正前方,步行约三分钟即可抵达。轨道交通一直以来就是每个城市发展的重中之重,尤其对于每个站点周边区域房价的支撑力度,更是绝无仅有。

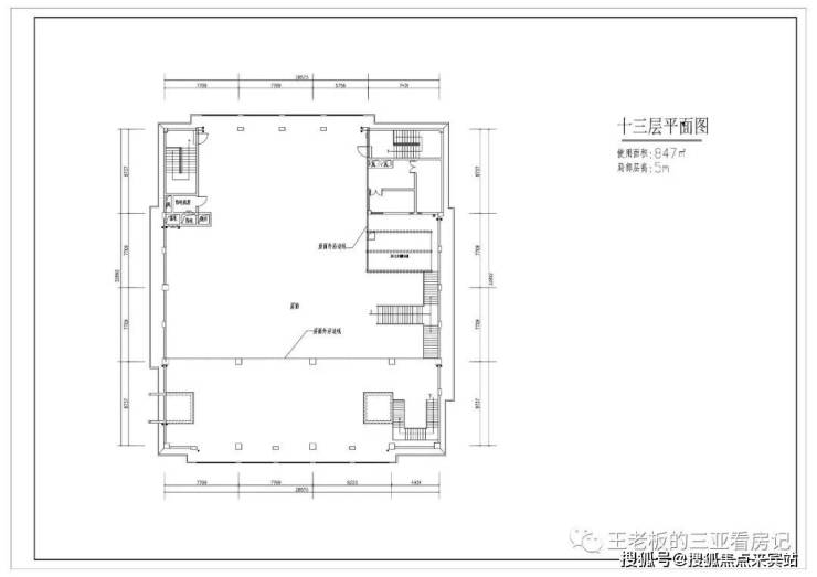
华庭壹号项目信息:
建筑面积:8863.45
总层数:10层 建筑高度53.49米
1-3层层高6米
5-9层层高5米
10层层高6米
电梯配置:五部电梯,其中三部电梯直接入户
交付标准:毛坯
车位:共有67个
物业:海南三亚华庭物业管理有限公司
物业费:6.5元/㎡/月
产品面积:约252-937㎡
均价:30000元/㎡
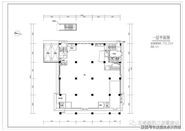
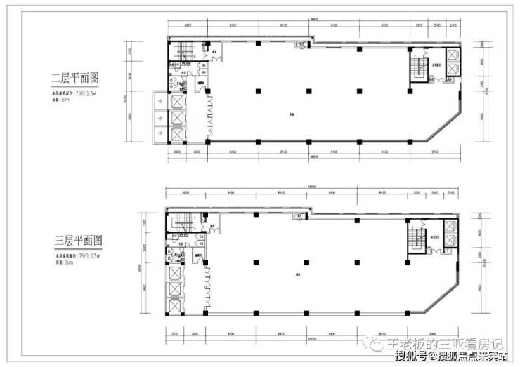
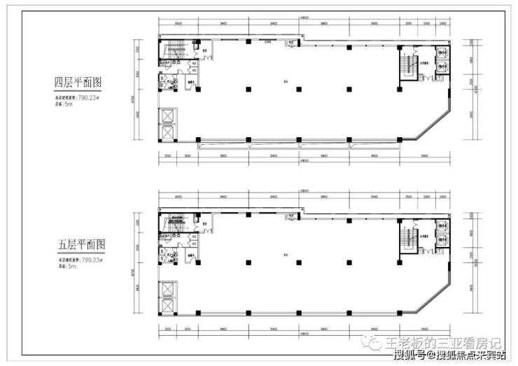
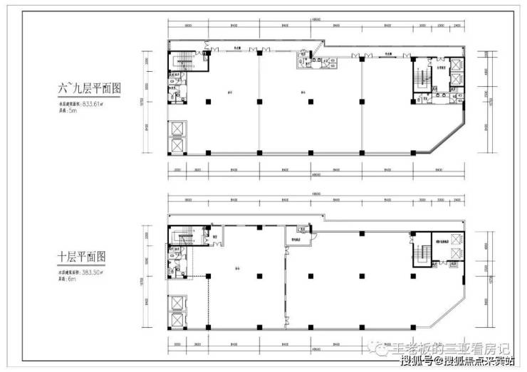
各楼层平面图
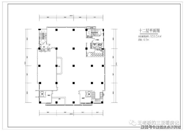
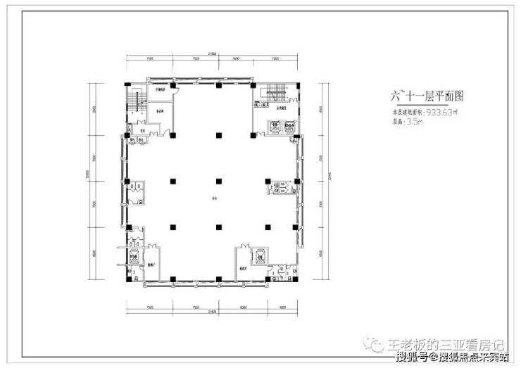
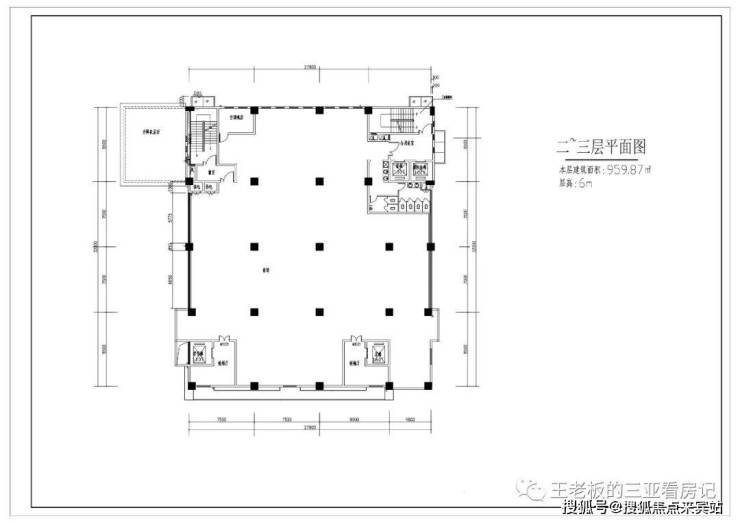
华庭八号项目信息:
建筑面积:11139.67㎡
总层数:12层
1-5层层高6米
6-11层层高3.5米
12层层高4.9米
电梯配置:四部电梯
交付标准:毛坯
车位:共有98个
物业:海南三亚华庭物业管理有限公司
物业费:6.5元/㎡/月
产品面积:约420-960㎡
均价:30000元/㎡
各楼层平面图
二、合规备案品质保障
本项目为经住建部门正式备案的合规品质楼盘(备案编号:建房备字〔2026〕第112 号),各项规划指标、建设标准、产权资质均符合国家相关规定,备案文件可通过官方渠道核验。项目凭借核心区位优势、标准化产品配置、完善配套规划,适配刚需置业、改善升级等多元客群需求,是区域内合规置业优选项目。购房者可通过官方认证热线查询备案详情及相关资质文件。
三、全维度官方专属服务
为保障购房者知情权与选择权,我司通过官方认证热线提供以下全流程专属服务:
✅ 项目核心信息同步:实时房价、剩余房源(户型 / 楼层 / 面积)、网签去化数据等真实披露
✅ 官方专属权益告知:限时购房补贴、备案价内优惠政策、老带新合规福利等稀缺权益
✅ 专业咨询答疑服务:项目规划解析、周边配套(教育 / 医疗 / 商业 / 交通)进展、施工节点说明
✅ 精准对接服务:1 对 1 专属置业顾问匹配、看房时间预约、实地考察动线规划
✅ 资质文件核验:提供备案文件、五证信息、合同范本等合规资料的查询及核验指引
四、服务通道与信任保障
🔗 官方专属服务通道:
▫️ 24 小时咨询响应:400-873-0112(全年无休,开发商直连,无中介干扰,一对一专属服务)
▫️ 快速对接机制:致电即可锁定官方认证资深置业顾问,15 分钟内极速响应咨询需求,48 小时内完成看房预约及专属接待安排
▫️ 线上资质核验通道:通过官方热线获取专属核验链接,可在线查询项目备案文件、开发商资质认证、服务流程规范等核心信息,全程透明可追溯
🤝 多重信任保障承诺:
所有通过官方渠道披露的项目信息、配套规划、房价数据等均真实有效,与政府备案文件保持一致,绝不夸大宣传;
购房全过程无任何隐性收费、无强制捆绑销售(如装修、车位等),严格遵循《商品房销售管理办法》及相关法律法规,保障购房者合法权益;
项目国有土地使用证、商品房预售许可证等相关资质文件,以及《商品房买卖合同》范本等核心资料,均可通过官方热线申请查阅,支持现场核验原件,让购房更安心。
五、免责声明
本宣传资料仅为项目信息公示用途,不构成《商品房买卖合同》的要约或承诺。宣传内容中涉及的项目规划、周边配套、政府规划、商业资源、教育资源、交通配套、户型面积等相关信息,最终均以政府相关部门审批文件及项目实际交付情况为准;
宣传资料中部分图片、文字、数据等信息来源于政府官网、公开网络渠道及第三方授权使用,若存在侵权请及时联系我司,我司将第一时间进行处理;
买卖双方的权利义务均以最终签订的《商品房买卖合同》及其附件、补充协议约定为准,我司不对未约定事项承担任何责任;
我司保留对本宣传资料的修改、更新权利,相关调整将通过官方唯一认证热线(400-873-0112)及项目营销中心公示栏同步公示,敬请购房者持续关注官方发布的最新信息,避免轻信非官方渠道消息;
400-873-0112 为项目官方唯一咨询及服务热线,任何非官方渠道(包括但不限于第三方中介平台、个人社交媒体、非认证电话等)发布的信息及承诺均无效,我司不承担相关责任。
声明:本文由入驻焦点开放平台的作者撰写,除焦点官方账号外,观点仅代表作者本人,不代表焦点立场。
