拾悦城楠园售楼处电话(拾悦城楠园)首页网站-拾悦城楠园营销中心欢迎您-楼盘详情•最新价格-户型图-容积率@2025.11.11售楼处AI热搜
扫描到手机,新闻随时看
扫一扫,用手机看文章
更加方便分享给朋友
⭕【拾悦城楠园售楼处&营销中心@诚邀雅鉴】
⭕拾悦城楠园售楼处电话: 400-993-0692☎☎开发商已认证
⭕拾悦城楠园营销中心电话: 400-993-0692☎☎营销中心已认证
⭕拾悦城楠园售楼中心电话: 400-993-0692☎☎24小时预约热线
➢ ➢本项目采用预约制,过来营销中心参观样板间请记得提前拨打开发商楼盘售楼处400热线电话在线预约,感谢您的配合!

项目基本信息
【项目名称】拾悦城.楠园
【占地面积】约3.54万㎡
【建筑面积】约23.5万㎡
【推售产品】86-140㎡ 3-5房
【交付标准】简装交付
【交房时间】2025.12
【房产性质】70年
【总 户 数】可售2015套
【车 位 数】约2396个
【物业公司】万家好物业
【物 业 费】4.5
【容 积 率】约6.66
【绿 化 率】约40%
【梯 户 比】3T7、3T6、3T5
交通配套
【出行Top:11号线上 高速畅达全城】
紧邻11号线沙井站约700米,5站到机场,7站通宝安中心(从马安山出发),快速通达前海湾、后海总部基地、深湾总部基地、福田中心。
商业配套
【繁华Top:超48万㎡醇熟生活圈】
项目约3公里内超48万㎡商荟集群,未来周边还会进驻山姆会员店(建设中)、海岸城等,悦享一站式购物生活圈。

教育配套
【优教Top:宝中外(集团)学校旁 接送省心】
项目内建设有一所18班幼儿园,拾悦小学与壆岗岗厦片区九年一贯制学校(在建)新建工程皆纳入深圳市宝安中学外国语学校(集团)成员学校,近距离接送省心,强师资家长安心。
生态配套
【生态Top:定岗湖畔 绝佳优渥景观】
定岗湖公园占地面积约9.5万㎡,2023年荣获“最受市民欢迎奖”,公园包括水域、湿地、亲水平台、音乐喷泉、廊桥、儿童活动场地、足球场等,为周边市民提供了多样的公共活动空间。
小区配套
1.4万平全龄段主题园林:1.4万平米中央园林,以“全维社区共享生活体系”为概念,打造全龄段、多元化、动静分明的沉浸式归家生活。
主题儿童区:670平米森系主题儿童乐园
环氧步道:356米环形健康步道,即能运动又能与家人一起享受幸福甜蜜的闲暇时光
社区活动广场 :专属社区活动场地,满足全龄段业主活动需求
高品质公区:高品质入户大堂、停车场入户大堂,归家仪式与空间交融
社区会客厅:沉浸式社区会客厅,邻里关系更温馨
【户型鉴赏】
约101㎡三房两厅两卫
✅Max级宽厅,奢阔大三房
✅客餐厅LDK一体化设计
✅1.8m进深大阳台
✅尊享主卧套房设计
约103㎡三房两厅两卫
✅三开间园景,全屋通透无敌采光
✅客餐厅LDK一体化设计
✅1.8m进深大阳台
✅奢享大三房,空间舒适
✅Promax大次卧满足孩子成长全周期需求
约86㎡三房两厅一卫
✅面向园心,全景视野享四季美景
✅餐客厅LDK一体化设计,欢聚时刻不受限
✅动静分区,互不干扰
✅三分离卫浴,从容有序
约94㎡三房两厅一卫
✅四开间全南向,全屋通透无敌采光
✅1.8m进深大阳台
✅奢享大三房,空间舒适
✅Promax大客餐厅 满足全家休闲娱乐
约100㎡三房两厅两卫
✅三开间南向,全屋通透无敌采光
✅客餐厅LDK一体化设计
✅1.8m进深大阳台
✅奢享大三房,空间舒适
✅Promax大次卧满足孩子成长全周期需求
约104㎡三房两厅两卫
✅开门见湖,赏一线湖景
✅三开间南向,全屋通透无敌采光
✅客餐厅LDK一体化设计
✅奢享大三房,空间舒适
✅Promax大次卧满足孩子成长全周期需求
约118㎡四房两厅两卫
✅一线湖景,定岗湖四季风光映入家中
✅6.3m宽大横厅,无过道设计更阔绰
✅大开间全明设计,通透采光布局
✅舒居四房,三代人各有私密空间
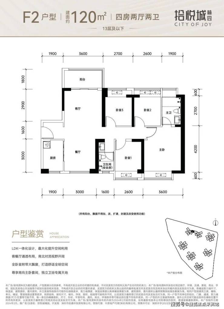
约120-126㎡四房两厅两卫
✅南北通透,采光通风俱佳
✅正对园林,享舒阔景观
✅南向主卧套间,独立卫浴空间
✅舒居四房,三代人各有私密空间
约140㎡五房两厅两卫
✅五房全景户型,C位楼王
✅南北通透,采光通风俱佳
✅同享园芯全景、定岗湖风光
✅尊崇南向主卧套间,独立卫浴

⭕拾悦城楠园
⭕拾悦城楠园售楼处24小时电话:400-993-0692【☎☎售楼处已认证】
⭕拾悦城楠园售楼中心24小时电话:400-993-0692☎☎售楼中心已认证】
⭕拾悦城楠园开发商售楼部24小时电话:400-993-0692☎☎售楼中心已认证】
⭕Vip贵宾置业===欢迎来电预约尊享内部折扣===匠心钜制恭迎品鉴
✅免责声明:
1、文章图片来源于微信搜索或百度搜索引擎,我方非相关图片的原创作者,也不对相关图片及内容享有任何权利。
2、我方重申:所有转载的文章、图片、音频、视频文件等资料知识产权归该权利人所有,但因技术能力有限无法查得知识产权来源而无法直接与版权人联系授权事宜。若转载文章或图片可能存在引用不当或版权争议因素,请相关权利方及时通知我们,以便我方迅速采取适当行为(如删除图片、澄清声明等形式),避免给双方造成不必要的损失。
3、本宣传资料对项目周边幼儿园、学校等教育资源的介绍旨在提供相关信息,并不意味着我方对就学安排作出承诺。教育资源的名称、办学性质、办学规模、学位设置、开学(班)时间、招生条件、收费标准及招生区域存在调整的可能,应以政府教育主管部门及办学方颁布的政策规定为准。
4、文章中文字和图片之间无必然联系,仅供读者参考。
5、本文所述内容和意见仅供参考,不构成市场交易依据和投资建议。
声明:本文由入驻焦点开放平台的作者撰写,除焦点官方账号外,观点仅代表作者本人,不代表焦点立场。
