总章翡翠公馆-南山(总章翡翠公馆) 楼盘详情_总章翡翠公馆房价_户型_小区环境
扫描到手机,新闻随时看
扫一扫,用手机看文章
更加方便分享给朋友
深圳南山西丽总章翡翠公馆
电话400-0666-032转分机号3333
深圳总章翡翠公馆售楼处电话400-0666-032转分机号3333【售楼中心】
深圳总章翡翠公馆营销中心电话400-0666-032转分机号3333(已认证)
楼盘项目全面介绍,本电话为开发商提供线上售楼电话。楼盘简介,项目信息,楼盘价格,户型图,楼盘地址,备案价,周边配套,最新进展等详情咨询!
深圳总章翡翠公馆怎么样?展示中心,优缺点?怎么样?好不好?均价多少?附近有什么学校?楼盘详情介绍;包含售楼处电话、一平多少钱、物业费、地址、学校、户型图、交楼时间、区位优势、交通、周边商业配套等楼盘详细资料——更详细楼盘资料和最新折扣价格,请拨打售楼处电话,销售会为您详细介绍。
深圳南山西丽楼盘【总章翡翠公馆】已正式开放样板房,总价536万起上车南山3房准现楼!遇到不要错过!
我们项目这次将推售543套准现楼,带装修交付,户型面积为80-100-115-140㎡3-4房产品,单价7.2万起,开盘折扣93折,预计2025年12月31日精装修交房。

总章翡翠公馆本次定价更符合刚需买家需求,上车南山3房的门槛更低,总价仅约536万出头起步,因此还是能吸引到部分预算不多,但是又想在南山上车刚改客群。深圳总章翡翠公馆售楼处电话400-0666-032转分机号3333【售楼中心】
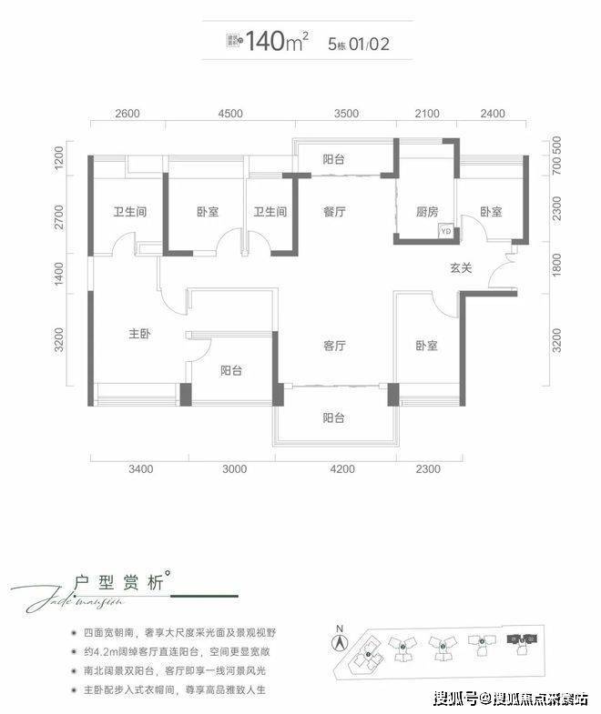
目前住宅户型图已经出炉,最大亮点是80㎡的上车三房户型!面积段为80-100-115-140㎡3-4房,将推售543套房源,预计将带装修交付。深圳总章翡翠公馆售楼处电话400-0666-032转分机号3333【售楼中心】
规划总平面图如下:
户型图欣赏:
项目靠近5号线西丽站,背靠塘朗山,1公里内有南山文理实验学校、西丽小学等多所学校,教育资源丰富,大型商场天虹商场、益田假日广场约900米,整体来说算是不错
价格方面,项目暂未入市,位于项目两隔壁的鼎胜金域阳光家园在售,约8.8万/㎡,折后最低价7.45万/㎡,参考这个价等于最低600万不到就可以买到!二手房挂牌价约7-8.9万/平。
项目整体为“一”字摆开型,且为点式布局,在保证建筑间距的前提下,塔楼布局形态错落有致,景观视线相互错开,为城市空间留出视线通廊,增加城市通透感。深圳总章翡翠公馆售楼处电话400-0666-032转分机号3333【售楼中心】
铝板立面 演绎品质生活美学
主入口采用不锈钢元素,让建筑在岁月洗礼中历久弥新;类玻璃幕墙住宅立面,展现高档、前沿的社区风貌;住宅塔楼山墙面选用进口干挂铝锥芯板,体现建筑挺拔感,提升住宅品质感。
高品公区 悦享高配社区生活
挑高入户大堂,奢雅尊崇;现代简约都市装修风格,营造雅致人居。深圳总章翡翠公馆售楼处电话400-0666-032转分机号3333【售楼中心】
泛会所架空层 丰盈场景美好归心
规划轻社交、运动、童享、颐享四大模块,满足业主休闲娱乐、社交办公、运动健身、亲子互动等多重需求。
风雨连廊 串联生活的风雅与诗意
遵循高端人居配置标准,于社区内设置风雨连廊归家动线,串联居住建筑与园林景观,达到移步异景体验;连接入户大堂,让出行晴雨皆从容,为居者赋予尊崇的归家礼序。深圳总章翡翠公馆售楼处电话400-0666-032转分机号3333【售楼中心】
总章翡翠公馆位于大沙河东侧,珠光北路和留仙大道交汇处的南侧。
其地块西面紧邻珠光北路,东面触及塘朗山山麓,南面为规划中的城市道路,一路之隔为另一新建住宅社区——鼎胜金域阳光。
根据百度地图路径测距约800米可达地铁西丽站,当前为地铁5号线和7号线的双线换乘站;同时,可通过项目就近的沙河西路、留仙大道便捷连接周边板块,整体交通配套已较为成熟、稳定。
位置关系示意图
项目西侧为西丽留仙洞总部基地,东北侧为大学城,东侧为塘朗山,西南侧是西丽高铁站。深圳总章翡翠公馆售楼处电话400-0666-032转分机号3333【售楼中心】
留仙洞总部基地,承接科技园北区高新技术产业北拓是全市重点开发片区,定位为国际一流的战略性新兴产业总部基地,规划占地面积135公顷,建筑面积550万㎡,以新一代信息技术、人工智能、智能制造、生物与生命健康产业为主导。
目前已经引进大疆、传音控股、天珑移动、优必选、普联、深信服等为代表的国内标杆企业研发和总部项目,正加速形成高端项目“高地”和总部型企业集聚区。
产业的汇聚,将会给片区带来高端人流的聚集,对居住的需求会增加,那么对于项目的居住价值和投资价值提升,都是有帮助的。深圳总章翡翠公馆售楼处电话400-0666-032转分机号3333【售楼中心】
(大疆天空之城实景图)
基于产业规划的交通规划,将为片区带来全新的价值格局。
西丽高铁新城:规划占地面积1.68平方公里,规划布局13台25线。
将统筹引入赣深客深汕客专、深茂铁路和深惠、深莞增、深珠城际铁路,以及地铁13、15、27、29号线。
这是一个无论从规模定位上,还是影响力上,都将超过深圳北站的综合交通枢纽。
未来将高效通达全域、实现真正的粤港澳大湾区1小时生活圈。深圳总章翡翠公馆售楼处电话400-0666-032转分机号3333【售楼中心】
重点是,这些规划已经落入现实。
目前13号线在建,15、27、29号已纳入地铁5期,15号线下个月就动工。
从区位来看,西丽高铁新城正好处在“留仙洞战略性新兴产业总部基地”,是一条处在科创中心的高铁枢纽。
等高铁站建成通车之后,西丽将形成值得全城关注的新格局,这样的格局基本在全世界都十分罕有,未来或将成为追求高效的深圳人的最爱。
相信,不久西丽也将迎来属于自己的全新价值,势如破竹成为深圳又一重要发展极!
而鼎胜金域阳光也会因此而受益匪浅!
所属片区内,大沙河生态长廊是比较瞩目的公共配套设施之一,由华润代建。
大沙河航拍图
离项目南面不远的大沙河文体中心综合体可算是片区内的另一大工程。
文体中心项目已经竣工,预计明年初就能开放了,同样由华润代建,建设用地面积约3.2万㎡,西侧绿地面积约8000㎡。新建建筑总面积约13万㎡,地下室2层,地上8层。
建成后,将聚集不同类型的娱乐活动室,功能包含健身、体育、娱乐、文化设施,是一个多元化的新型文体中心,满足不同年龄层次和不同人群的使用需求,以健康、绿色、文化相连,形成一个活跃、有趣的城市空间。深圳总章翡翠公馆售楼处电话400-0666-032转分机号3333【售楼中心】
大沙河文体中心综合体
周边配套情况:
交通:项目最近地铁为5/7号线的西丽站,步行距离为800米左右,地图显示步行所需时间约14分钟左右,此外,项目临近留仙大道、沙河西路,自驾出行还是相对便捷的。深圳总章翡翠公馆售楼处电话400-0666-032转分机号3333【售楼中心】
教育:项目自带一所幼儿园,周边学校有南二外平山小学,西丽小学、南山文理实验学校,但整体教育质量相对一般。
商业:项目周边多为创业园,生活配套相对较少,后期只能依赖项目自带底商,大一点商业配套,需要步行前往一公里左右的天虹商场、益田假日里购物中心。深圳总章翡翠公馆售楼处电话400-0666-032转分机号3333【售楼中心】
文娱:项目周边配套众多,有塘朗山、大沙河生态长廊、九祥岭湿地公园、体育中心,可以满足日常休闲娱乐需求。

塘朗山丨实景图
深圳南山西丽总章翡翠公馆
开发商销售热线电话400-0666-032转分机号3333
深圳总章翡翠公馆售楼处电话400-0666-032转分机号3333【售楼中心】
深圳总章翡翠公馆营销中心电话400-0666-032转分机号3333(已认证)
楼盘项目全面介绍,本电话为开发商提供线上售楼电话。楼盘简介,项目信息,楼盘价格,户型图,楼盘地址,备案价,周边配套,最新进展等详情咨询!
深圳总章翡翠公馆怎么样?展示中心,优缺点?怎么样?好不好?均价多少?附近有什么学校?楼盘详情介绍;包含售楼处电话、一平多少钱、物业费、地址、学校、户型图、交楼时间、区位优势、交通、周边商业配套等楼盘详细资料——更详细楼盘资料和最新折扣价格,请拨打售楼处电话,销售会为您详细介绍。
声明:本文由入驻焦点开放平台的作者撰写,除焦点官方账号外,观点仅代表作者本人,不代表焦点立场。
