前海鸿荣源中心楼盘详情_最新房价_售楼处电话_户型图_配套_地址
扫描到手机,新闻随时看
扫一扫,用手机看文章
更加方便分享给朋友
(前海鸿荣源中心)销售中心电话:400-873-0112(中介勿扰)
楼盘最新价格,户型图,地址,电话,样板房,周边配套,项目介绍
温馨提示:绝不收取任何费用,请提前1小时预约看房,以免带来不好的看房体验
——————————————————————————
前海桂湾
前海鸿荣源中心
南山前海
前海鸿荣源中心
【 大湾区封面级商务地标】
📍 战略坐标
雄踞前海桂湾国际金融城核芯,扼守滨海大道与临海大道黄金交汇点,坐享粤港澳大湾区核心引擎资源。前海已汇聚17万+企业总部,335家世界500强在此设立战略支点,成就全球资本磁场。
🏙️ 天际地标
由国际四大设计天团联袂执笔:▫️LEAD8操刀整体建筑群(S.ARCH大奖认证)▫️ SWA打造立体生态景观系统▫️ GP建筑设计所呈现280米双塔地标▫️ 17.7米云际大堂×270°环幕视界,以超白LOW-E玻璃幕墙重构湾区天际线
🌐 全维生态圈▫️ 6万㎡「壹方汇」高定商业体:米其林餐饮矩阵×设计师品牌旗舰×沉浸式艺术空间▫️国际五星酒店集群:云端会议中心+总裁行政会馆▫️ 海幕行政公馆:270°环海视野奢适栖居▫️ 都会绿洲:前海石公园×三大医疗中心×金融城生活圈
🚇 极速动脉▫️ 双轨交汇:5号线桂湾站+1/11号线前海湾站(直连亚洲最大TOD枢纽)▫️ 三维路网:广深沿江高速×深中通道×港深西部铁路(25分钟抵宝安机场)▫️ 湾区黄金动脉:9条城轨+2条地铁+1条跨境快线,深港澳1小时商务圈
【价值引力场】
以全球视野重构产城生态,以前沿设计赋能资本效率,以立体交通激活湾区脉动——这里不仅是深港合作的超级接口,更是国际资本竞逐的未来主场。
租售同步进行中, 租售热线:400-873-0112
☆☆☆☆☆
核心地段 核心资产
项目信息:前海鸿荣源中心B座
匠心精筑超甲级商务地标
世界知名设计公司美国GP设计,地标建筑外观,极具昭示性
· 约860平双大堂,净高约10-11米,奢享高端办公体验
· 中空夹胶LOW-E超白玻璃,畅享天幕视界
· VAV变风量空调系统,绿色节能
· 15部奥的斯电梯,最快梯速约6米/秒
· 约4.5米层高,阔绰办公空间
· 约150mm(h)网络架空地板,现代化办公配置
项目参数
总办公面积:约6.3万㎡
🔺可售面积:505-616-747-1122-2000-2155平方米
🔺整购:拥有冠名权
🔺景观:桂湾一线首排海景房
大堂:面积约860m;层高约12.3-16.4m,净高约10-1lm
分区:低区:5-9F;中区:11-20F;高1区:22-31F;高2区:33-38F
停车位:二期总计678个(部分车位移交前海管理局)
标准层面积:约2100~2155㎡
实用率:约64%
标准层层高:约4.5m
标准层净高:约3.0m
公共功能区域:每层预留2个卫生间、1个茶水间及1个清洁间
楼板承重:约2.0KN/㎡
电梯系统:奥的斯共15部,14部客梯,1部消防梯;转换体3部,通力品牌;
物业管理费:28元(2025年12月31日前优惠价25元/m)
空调费:15元
空调系统:24小时冷却水
物业公司:深圳市鸿荣源物业服务有限公司
交通:1/5/11号线前海湾站,5号线桂湾站;前海交通枢纽
更多信息,敬请来电咨询!
租售热线:400-873-0112
项目实拍图
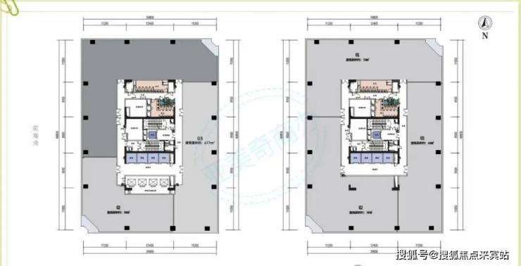
户型图:方正实用,柱子均在边上
室内图片
☆☆☆☆☆
超核定位 必买理由
国家战略赋能深圳傲居湾区先锋城市
前海城市新中心新格局 新未来
前海,先行示范区的核心引擎区域,已然成为特区中的特区。以“一湾两山四区四岛”的湾区格局,重点发展金融、现代物流、信息服务、科技服务四大产业,驱动城市未来发展,成就世界湾区典范
国家政要密切考察,前海荣膺伟大使命
☆☆☆☆☆
核心配套,全球舜达
海陆空轨世界前沿的时区
「前海鸿荣源中心」位处前海桂湾核心地段,毗邻亚洲最大交通枢纽--前海综合交通枢纽,汇集城际快线、地铁等便捷交通设施于一体,极速通达中心区。
坐享“9+2+1”陆海空立体交通,优享前海口岸,迅速连接“9+2”湾区城市,构建1小时国际生活圈。
前海城市会客厅国际滨海新名片
「前海鸿荣源中心」坐享前海国际金融交流中心、前海演艺中心、伯克利未来音乐中心、欢乐港湾、国家博物馆等国际级生活配套,全方位享受世界水平的湾区城市客厅配置,咫尺间感受都会生活魅力,创绘优雅人生。
鸿荣源,与生活共荣
鸿荣源集团,中国城市综合运营服务商。秉持务实的态度、匠心的精神,塑造熙园、壹方中心等蜚声中外的豪宅经典作品,荣获“豪宅专家”之美誉。恪守初心,与生活共荣,为实现新时代的中国梦贡献力量。
【租售热线】400-873-0112
售楼处电话/免费咨询/预约电话:400-873-0112【中介请勿扰】
温馨提醒:欢迎致电开发商售楼中心,我们将竭诚为您解答疑问。为确保您的咨询安全,通话时号码将自动隐藏。请提前与销售团队预约,以确保您能顺利进入销售现场,避免不必要的等待。
免责声明:部分信息来源于网络,如果侵权,请联系及时删除
声明:本文由入驻焦点开放平台的作者撰写,除焦点官方账号外,观点仅代表作者本人,不代表焦点立场。
