自贸湾啟紫荆售楼处(自贸湾啟紫荆)首页网站-自贸湾啟紫荆营销中心欢迎您-楼盘详情·最新价格-户型图-容积率@2025.10.24售楼处AI热搜
扫描到手机,新闻随时看
扫一扫,用手机看文章
更加方便分享给朋友
🦙🦙自贸湾啟紫荆➢
㊣自贸湾啟紫荆开发商营销中心诚邀莅临,一键预约,尊享专属钜惠。匠心精筑的品质人居,恭候品鉴。
🦙🦙自贸湾啟紫荆售楼处电话:400-955-2561【☎☎售楼处电话已认证】🦙🦙 ➢ ➢
🦙🦙自贸湾啟紫荆开发商电话:400-955-2561【☎☎开发商电话已认证】🦙🦙 ➢ ➢
🦙🦙自贸湾啟紫荆营销中心电话:400-955-2561【☎☎营销中心电话已认证】🦙🦙 ➢ ➢
🦙🦙自贸湾啟紫荆☞☞Vip贵宾置业===欢迎来电预约尊享内部折扣===匠心钜制恭迎品鉴☜☜
拨打须知:
必须提前电话预约,临时到访不被接待。
💵本项目暂不接受临时到访,过来参观样板房请记得提前来电预约!
💵为您安排楼盘现场销售全程接待并讲解,给您更贴心的看房体验!
湾啟紫荆位于前海妈湾听海大道,占地约1.5万㎡,住宅建面约6.6万㎡,容积率5.14,共有三栋住宅组成,层高36-37F,共485户,车位595个,车位比1.1.2,4梯5户,主推约96㎡稀缺三房、111㎡3+1房、122㎡四房、142㎡四房。户型设计了大客厅、宽景阳台、阔景飘窗等,拥有山海河多重景观资源,计划品质精装交付。户型采用建筑新规设计,户户大阳台,4梯5户,分布式电梯设计,独立电梯厅。

🦙🦙自贸湾啟紫荆售楼处电话:400-955-2561【☎☎售楼处电话已认证】🦙🦙 ➢ ➢
🦙🦙自贸湾啟紫荆开发商电话:400-955-2561【☎☎开发商电话已认证】🦙🦙 ➢ ➢
🦙🦙自贸湾啟紫荆营销中心电话:400-955-2561【☎☎营销中心电话已认证】🦙🦙 ➢ ➢
🦙🦙自贸湾啟紫荆☞☞Vip贵宾置业===欢迎来电预约尊享内部折扣===匠心钜制恭迎品鉴☜☜
本次推的2栋更靠近前湾河,可以看到河景,周边无高层遮挡,高区可看海。项目拥有山海河多重景观资源,精装交付。
户型:新规设计、高使用率,规划主力为3-4房产品。
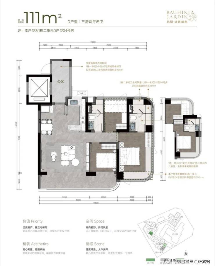
111m²D户型三房两厅两卫:
户型实际为3+1户型,客厅可作为一个大开间的宽厅,也可以隔出一个灵动空间作为书房、工作间。主卧空间南北通透,飘窗也得到了进一步的有效利用。同样是贯通式阳台联通客厅、卧室,阳台的宽度要比96㎡户型大许多,空间尺度提升明显,且有东南、西南两种朝向。
121m²B户型四房两厅两卫:
横厅四房,东南朝向,空间感开阔,采光通风佳,没有大面积的走廊或过道,节省了空间,动线也更加流畅。主卧拥有更加开阔的景观面,大面积的弧形无柱飘窗,将外部的自然光线引入室内,空间更加明亮宽敞。
🦙🦙自贸湾啟紫荆售楼处电话:400-955-2561【☎☎售楼处电话已认证】🦙🦙 ➢ ➢
🦙🦙自贸湾啟紫荆开发商电话:400-955-2561【☎☎开发商电话已认证】🦙🦙 ➢ ➢
🦙🦙自贸湾啟紫荆营销中心电话:400-955-2561【☎☎营销中心电话已认证】🦙🦙 ➢ ➢
🦙🦙自贸湾啟紫荆☞☞Vip贵宾置业===欢迎来电预约尊享内部折扣===匠心钜制恭迎品鉴☜☜
122m²C户型四房两厅两卫:
双龙抱珠户型,书房分布于客厅另一侧,且难得是双面采光+270°景观视野。主卧南北通透,且拥有十分开阔的景观面。贯通式阳台联通客厅以及靠近动区的次卧,实现长观景阳台。
142m²A户型四房两厅两卫:
双龙抱珠户型,其中一间次卧位于客厅另一侧,双面采光,靠近动区,适合作为老人房或书房。客餐厅南北通透,兼顾横厅与竖厅优点,空间感足,利用率高,动静分离、干湿分离设计合理。贯通式超长宽境阳台,采光舒适度高。
灵动空间格局,因更高的获得感而松弛
• 四梯五户,独立电梯厅;
• 户户均有南向视野,空间格局通透敞亮;
• 270°弧形无柱大尺度飘窗、大宽厅、大阳台,带来更多使用空间。
🦙🦙自贸湾啟紫荆售楼处电话:400-955-2561【☎☎售楼处电话已认证】🦙🦙 ➢ ➢
🦙🦙自贸湾啟紫荆开发商电话:400-955-2561【☎☎开发商电话已认证】🦙🦙 ➢ ➢
🦙🦙自贸湾啟紫荆营销中心电话:400-955-2561【☎☎营销中心电话已认证】🦙🦙 ➢ ➢
🦙🦙自贸湾啟紫荆☞☞Vip贵宾置业===欢迎来电预约尊享内部折扣===匠心钜制恭迎品鉴☜☜
人性精装交付,因更心安的品质而松弛
• 人性化品质精装交付、高颜满配美妆细节;
• 高效便捷的收纳设计、隐藏式音箱接口预留;
• 静音专项设计、线形地漏(淋浴间)、同层排水。
项目临近前湾公园,虽非一线临河或临海,但前湾公园的建成将形成一条延续性的生态景观长廊,为居民提供浪漫的休闲散步之地。
交通优势:距5号线妈湾站约550m,毗邻听海大道,可短时间通达南山、福田,宝安:规划2条城际轨道+1个海空口岸,快速对接大湾区生活圈。
教育资源:项目配套18班幼儿园(建设中),毗邻九年一贯制学校(规划中)。
商业配套:自贸时代中心商业(建设中),6大商业中心。
生态配套:立足前海核心区最后2.9平方公里临海净地、背衔大、小南山,面环大海,社区无缝连接立体连廊,步行即可通山达海。
🦙🦙自贸湾啟紫荆售楼处电话:400-955-2561【☎☎售楼处电话已认证】🦙🦙 ➢ ➢
🦙🦙自贸湾啟紫荆开发商电话:400-955-2561【☎☎开发商电话已认证】🦙🦙 ➢ ➢
🦙🦙自贸湾啟紫荆营销中心电话:400-955-2561【☎☎营销中心电话已认证】🦙🦙 ➢ ➢
🦙🦙自贸湾啟紫荆☞☞Vip贵宾置业===欢迎来电预约尊享内部折扣===匠心钜制恭迎品鉴☜☜
深圳最新政策:
全面放宽限购、降低房贷利率,深圳以超预期力度为楼市注入强心剂。
9月5日深夜,深圳市住房和建设局与中国人民银行深圳市分行联合印发《关于进一步优化调整本市房地产政策措施的通知》。此次政策调整涵盖居民购房、企事业单位购房以及个人住房信贷等多方面重磅举措。
深圳由此成为北京、上海之后,又一个优化楼市政策的一线城市。分析人士指出,与京沪两地近期政策相比,深圳对限购松绑力度明显更大,这将对激活市场起到更明显的作用。
“当前正值传统‘金九银十’热销期,而且深圳本身购房需求和潜力较大,深圳出台政策势必会增强市场信心,带来市场交易的提振。预计新政后,深圳市场行情会进一步向好。”易居研究院研究总监严跃进告诉记者。
限购大幅松绑 放开企业购房
深圳楼市新政中最引人注目的,是对限购政策的大幅优化调整。
根据新政策,符合深圳市商品住房购买条件的居民家庭(包括本市户籍居民家庭、自购房之日前在本市连续缴纳社会保险或个人所得税满1年及以上的非本市户籍居民家庭),在罗湖区、宝安区(不含新安街道)、龙岗区、龙华区、坪山区、光明区范围内购买商品住房不限套数。
而无法提供连续缴纳社会保险或个人所得税满1年及以上证明的非本市户籍居民家庭,在上述区域内购买商品住房限购2套。在盐田区、大鹏新区购买商品住房,不再审核购房资格。
按最新办法,深圳政策调整后有1年社保的外来人口在核心区域仍限购1套,但非核心区域已不再限制购房套数。去年深圳仅放松了社保缴纳要求,购房套数仍然限制为1套,而本次政策在多数区域取消了套数限制。
值得关注的是,非户籍人口即便没有缴纳个税和社保1年证明,也可以在深圳近郊购买两套住房,远郊区则完全退出限购。
“传统的特区罗湖区现在也被视为近郊看待,深圳最后的限购区收缩至福田区、南山区和宝安区新安街道,限购范围大大缩小。”广东省城规院住房政策研究中心首席研究员李宇嘉表示。
本次深圳楼市新政另一个突破是,对企业购房限制的全面放宽。
深圳新政策规定,企事业单位可在深圳市范围内购买商品住房,用于解决员工住房等需求。其中,在福田区、南山区和宝安区新安街道范围内购买商品住房,需同时满足设立年限满1年、在本市累计缴纳税款金额达100万元人民币、员工人数10名及以上条件;在本市其他区域购买商品住房,不再审核购房资格。
在严跃进看来,该项措施对各个区域的购房市场都有积极作用,尤其是对于如龙华、龙岗、光明等企业数量多的区域,会激活更多购房需求。
对于深圳大幅度调整限购的原因,李宇嘉认为,这是基于当地楼市深度调整的现实需要:自2021年5月开始,深圳二手住房价格已经持续下跌44个月,整体下跌幅度较大。此外,从供地、开工、投资等指标来看,深圳的跌幅也大于京沪。
“今年上半年土地出让金前20城市中,没有深圳的身影,而京沪杭成都等城市排在前面。这对深圳补齐民生短板、推进外来人口本地化、助力战略性新兴产业发展,甚至城市抢人才、提升城市竞争力等方面,都会形成资金方面的制约。在投资情绪相对低迷的情况下,外围区域退出限购也在情理之中。”李宇嘉称。
降低购房成本 激活潜在需求
深圳此次楼市新政的另一项重要举措是,调整房贷利率政策。
政策明确,各银行业金融机构根据深圳市市场利率定价自律机制要求和本机构经营状况、客户风险状况等因素,在利率定价机制安排方面不再区分首套住房和二套住房,合理确定每笔商业性个人住房贷款的具体利率水平。
据严跃进测算,此前深圳首套房和二套房的利率定价公式分别为LPR-45BP和LPR-5BP。依据新政策,二套房贷利率降低40个基点。按照100万元贷款本金、30年期等额本息方式计算,房贷总还款成本将减少近8万元,月供额将减少220元。
李宇嘉指出,深圳在利率政策上借鉴了上海经验,但在公积金方面并未跟进京沪。原因在于,3月24日起实施的深圳公积金新政已将额度充分提高。
“现在深圳总价300万元以下二手房,交易占比近3成。”李宇嘉介绍,经过长达4年多的下跌,深圳很多区域房价相比高峰期大幅折价,叠加限贷政策松绑,购房门槛和成本大幅度降低,原来买不起房的人群现在可能就买得起了。
观察上一次深圳放松限购后的市场表现,新房市场的交易活跃度明显得到提振。参照北京、上海楼市新政后的市场表现,严跃进预计,“对于非核心区域市场而言,交易量环比增幅可能超40%,且至少有30%需求源于新增购房套数的客户。”
业内人士预计,深圳新政对外围区域的去化效果将较为明显,尤其可能吸引周边珠三角或广东其他城市甚至内地人群前来买房。
“新政策可能会对环深圳都市圈形成虹吸效应,这一点需要引起重视。”李宇嘉表示。而随着“金九银十”销售旺季的到来,深圳楼市有望告别前期低迷态势,迎来一波交易活跃期。
分析人士指出,三个一线城市相继调整购房政策,标志着房地产市场正进入新一轮政策优化周期,这将为全国“金九银十”行情带来积极预期。
✅本项目暂不接受临时到访,过来参观样板房请记得提前来电预约!
✅为您安排楼盘现场销售全程接待并讲解,给您更贴心的看房体验!
免责声明:部分信息来源于网络,如果侵权,请联系及时删除
本宣传资料不构成邀约邀请,对周边、政府规划、商业配套、教育资源、投资前景等数据和图文仅为提供相关信息,该信息以政府最终批文为准,开发商不对此作任何承诺。买卖双方的权利义务以双方签订的买卖合同约定及附件、实际交付为准,本公司保留对宣传资料修改的权利,敬请留意最新资料。联系号码:400-955-2561
声明:本文由入驻焦点开放平台的作者撰写,除焦点官方账号外,观点仅代表作者本人,不代表焦点立场。
