首页热搜:京基御景峯售楼处电话→京基御景峯Ai热搜24小时电话→2025最新房价→楼盘百科详情→售楼处更新发布@售楼处中心2025-07-07
扫描到手机,新闻随时看
扫一扫,用手机看文章
更加方便分享给朋友

占地面积:约64000平方米
建筑面积:约640000平方米
容积率:7.74
绿化率:30%
楼栋数:2栋(另有说法为多栋)
总户数:584户(另有说法为更多户数)
梯户比:南北通透4梯6户(另有说法为2梯5户)
物管费:4.9元/平方米
层高:3.1米(另有说法为最高3.7米奢阔层高)
车位:3427个(总数)
交通配套
轨道交通方面,项目距离现有5号线地铁口长岭陂站约100米左右,算的上是真正的地铁口物业;
商业配套
项目自身规划有建面3.8万平商业,可满足日常生活所需。距离项目约2公里范围内有宝能城和塘朗城的商业;
教育配套
项目旁边规划有九年制公立学校;项目附近还有玉龙学校距离约1.8公里;深圳外国语学校龙华学校约2公里;另外南方科技大学;距离项目约1.3公里,深圳大学约1.3公里等。
交通配套
轨道交通方面,项目距离现有5号线地铁口长岭陂站约100米左右,算的上是真正的地铁口物业;
商业配套
项目自身规划有建面3.8万平商业,可满足日常生活所需。距离项目约2公里范围内有宝能城和塘朗城的商业;
教育配套
项目旁边规划有九年制公立学校;项目附近还有玉龙学校距离约1.8公里;深圳外国语学校龙华学校约2公里;另外南方科技大学;距离项目约1.3公里,深圳大学约1.3公里等。
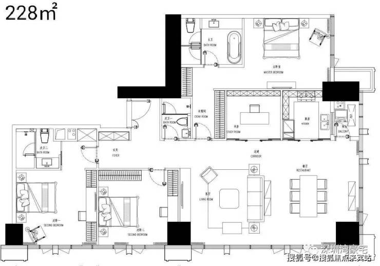
户型图:御景峯大厦 157-228㎡
商铺户型图产品面积:约157-228㎡
总楼层:1座47层,2座41层(在售楼层为6-23F)
单层高:3.7m
梯户比:6梯6户
房产最新消息
2025年房地产政策动向分析
2025年政府工作报告对房地产政策的定调体现了“短期防风险”与“长期促转型”并重的思路,核心目标是推动市场止跌回稳,并通过多项政策组合拳优化供需结构、化解行业风险。以下是基于最新动向的整理与分析:
2025年深圳、广州楼市在政策刺激下已现回暖迹象,但市场分化明显。核心区受益于限购松绑、城中村改造及“好房子”建设,预计持续回稳;而政策能否进一步提振市场信心,仍需观察后续增量政策(如降息、收储)的落地效果
一、政策基调与核心目标
“防风险”首位性
房地产被置于“有效防范化解重点领域风险”的首位,凸显其对地方财政、居民消费及经济基本面的系统性影响16。报告首次明确“稳住楼市”的总体要求,并强调“持续用力推动止跌回稳”,延续了2024年中央政治局会议的强信号910。
短期与长期政策结合
短期
:通过需求端刺激(如限购松绑、降息降准)和供给端纾困(如融资协调机制)稳定市场预期37。
长期
:构建“双轨制”住房体系(商品住房+保障房)、推动“好房子”建设,促进高质量发展210。
二、关键政策动向
1. 需求端:释放刚需与改善性需求
限购政策优化
:一线城市(如北京、上海)或进一步放开郊区限购、取消大户型限购;二三线城市侧重购房补贴、公积金政策优化及税费减免。分析师观点:若销售修复不及预期,一线城市可能“适度调整”而非完全取消限购。
城中村改造与房票安置
:2025年计划新增100万套城中村改造住房,结合货币化安置(如房票)释放需求,预计撬动1.5亿平方米潜在需求。专项债加速发行,已支持33宗土地收储(金额16.72亿元)。
2. 供给端:去库存与融资支持
存量房收储提速
:政府拟通过专项债收购存量商品房(2025年专项债额度4.4万亿元,同比增5000亿元),并赋予地方在收购主体、价格上的自主权。广东、吉林等地已试点,涉及金额超20亿元。痛点突破:此前因“白菜价”收购限制(土地成本+5%利润)受阻,新政策允许区域统筹平衡资金。
房企融资“白名单”
:截至2025年3月,融资协调机制已审批贷款超6万亿元,覆盖1500万套住房项目,重点隔离项目风险与房企债务风险。
3. 结构性改革:土地与产品升级
土地供应“量出为入”
:严控新增供地(300城土地供应建面同比降28%),优先盘活存量用地(全国土地库存去化周期达54个月)。
“好房子”建设
:北京、南宁等地出台技术导则,推动绿色、智慧住宅标准,改善型产品去化周期较刚需短15%-20%。
三、市场影响与预期
止跌回稳趋势
:70城房价指数连续5个月改善,1月新房环比上涨城市增至24个,但三四线城市库存压力仍存。
风险缓释
:分析师预计2025年房企债务违约风险将逐步收敛,市场调整进入尾声。
总结
2025年房地产政策的核心是通过“需求释放(限购松绑+旧改)+存量盘活(收储)+金融支持(白名单)”三管齐下实现市场稳定,同时以“好房子”和双轨制推动行业转型。后续需关注一线城市政策松动幅度及专项债落地效率。
声明:本文由入驻焦点开放平台的作者撰写,除焦点官方账号外,观点仅代表作者本人,不代表焦点立场。
